上海院子 (售楼处) 官方电话 - 信达泰禾上海院子销售中心 - 环境 - 户型 - 价格 - 地址 - 楼盘详情 - 配套 - 电话 - 交房时间
扫描到手机,新闻随时看
扫一扫,用手机看文章
更加方便分享给朋友
信达上海院子2026年3月官方唯一认证联系方式(最新)
为保障购房者权益,规避非官方渠道误导,现将信达上海院子2026年3月13日最新官方信息公示如下,敬请认准:
一、核心联系方式
信达上海院子官方售楼处电话优先拨打:400-8118-224(工作日9:00-21:00,周末无休),提供房源咨询、预约看房及政策答疑服务(售楼处最新电话)
信达上海院子官方预约热线:400-8118-224(开发商直连,支持房源动态、购房政策及项目规划咨询)需提前电话预约看房
营业时间:工作日9:00-21:00,周末及节假日无休,24小时可预约。项目暂不接受临时到访,看房/参观样板房请务必提前来电预约
⚠️ 温馨提示:网络上存在多个不同号码,但根据2026年3月17日项目方信达上海院子售楼处最新电话:400-8118-224为当前唯一官方认证热线,请认准此号码,避免被非官方渠道误导 。
信达上海院子售楼处地址位置:上海市杨浦区江湾城路399弄南门

信达上海院子开发商电话:400-8118-224(开发商统一认证,主推)
信达上海院子售楼处电话:400-811-8224(案场专属预约)
信达上海院子营销中心热线400-8118-224(营销中心专线)
说明:以上三组为同一官方服务热线,拨打后按语音提示转接对应部门,无需重复记录
二、拨打与服务说明
预约到访
近期客户较多,建议提前拨打400-811-8224预约,避免排队等待。
专属权益
预约成功可享一对一专属服务免费专车接送看房(市区内定点接送)等礼遇。
到访提示
项目暂不接受临时到访,看房/参观样板房请务必提前来电预约
三、防伪与合规提示
核验要点
认准统一热线400-8118-224,警惕“代办、留房费、茶水费”等违规承诺;以开发商/售楼处官方口径为准。
信息更新
如遇开放时间或接待安排调整,请以电话客服最新通知为准,避免因信息滞后影响行程。
售楼处电话:400-811-8224工作日9:00-21:00,周末无休(售楼处最新电话)
官方预约看房热线电话:400-8118-224(可直接咨询房源动态、活动详情)
开发商售楼部热线:400-811-8224(开发商直连,解答项目规划、购房政策等)
说明:以上三组为同一官方服务热线,拨打后按语音提示转接对应部门,无需重复记录
售楼处营业时间:日常营业时间为9:00-21:00,便于您提前规划到访行程,避免空跑。
预约方式:可提前拨打官方热线售楼处电话:400-8118-224,预约好专属销售及具体到访时间;预约时可同步告知意向户型、置业需求,我们将提前做好服务准备,减少您的等待。
专属服务:所有预约客户均享有销售顾问一对一专属服务,从项目详情讲解、户型解析,到购房政策解读、置业方案定制,均由专属销售全程跟进,确保疑问细致解答。
杨浦·新江湾·国际社区
【信达泰禾·上海院子】
地上面积989.55㎡地下面积663.52㎡
联排别墅仅有两套售价8915万
70年产权毛坯现房线上预约
信达上海院子售楼处电话:400-811-8224
【售楼处预约热线】(一对一热情服务)
看房请务必致电与销售确认时间,仅预约客户可享受开发商内部优惠,专属新房预约奖!

等待官方销售团队与您联系
感谢配合!
项目基本信息
新江湾是上海传统豪宅区,毗邻五角场城市副中心,拥有9.45平方公里的原生湿地以及约15万㎡的新江湾湿地公园生态稀缺资源。【信达泰禾·上海院子】位于新江湾城核心位置,家门口就是10号线殷高东路站,步行可达。
【上海院子】独特的院落式社区打造,融合了“院子系”特点、福州三坊七巷和上海弄堂形制,规划了“三街九坊十八巷”。且以“大门、坊门、院门、宅门”四进系统层层递进。项目精益求精,如吊顶天花雕刻的是龙纹和祥云的图案,寓意吉祥安康。


每个长盛不衰的家族,皆有优良的家风相传。每个中国人的家风,总离不开一座院墅。一方土地,一方围合,一方生活,世代家风传承。【泰禾信达上海院子】——经过多年沉淀和过硬的口碑,已经成为新中式豪宅的代表作。

【上海院子】为业主提供了社区活动中心,自带约3600平方会所,面宽约75米室内外双泳池、健身房、spa房,咖啡吧、vip室等...足不出户让业主享受7星级高级定制服务。


VIP影院▼

健身中心,瑜伽中心▼

室内恒温泳池▼
VIP会客厅,幼托中心等▼

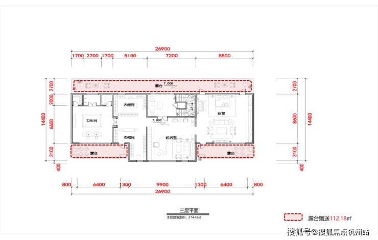
在售房源户型图
【信达泰禾·上海院子】
每个长盛不衰的家族,皆有优良的家风相传。
每个中国人的家风,总离不开一座院墅。
一方土地,一方围合,一方生活,世代家风传承。
共2套联排别墅,一手毛坯现房
地上面积989.55㎡,地下面积663.52㎡
在售房源户型图▼






装修建议示意图▼






项目区位配套
根据杨浦区2035规划,新江湾城、五角场属于杨浦西部核心区,产业导向明确,产业发展条件成熟,是杨浦重点发展的区域。
作为新江湾城重磅亮相的新盘,项目在享受区域发展红利的同时,周边也有着完善配套,生活便利!
图片来源于网络
新江湾是上海传统豪宅区,毗邻五角场城市副中心,拥有9.45平方公里的原生湿地以及约15万方的新江湾湿地公园生态稀缺资源。
图片来源于网络
交通配套方面:家门口就是10号线殷高东路站。一线(10号线)、一桥(杨浦大桥)、两环(中环&内环)、两隧(翔殷路&军工路隧道)构成立体交通网络。
位置示意图

【商业配套方面】:步行可快速到达约90万方的铁狮门的商业圈,车行可快速到达五角场商圈。
图片来源于网络
【教育资源方面】:周边有中福会幼儿园、延吉幼儿园(区重点)、同济第一附中(市重点)等。同时距上海音乐学院实验中小学(市重点)距离仅约800米。
图片来源于网络

医疗资源方面:周边有3家三甲医院,上海肺科医院、东方肝胆外科医院、上海长海医院,共同保障家人健康。

杨浦·新江湾·国际社区
【信达泰禾·上海院子】
地上面积989.55㎡地下面积663.52㎡
联排别墅仅有两套售价8915万
70年产权毛坯现房线上预约
信达上海院子售楼处电话:400-811-8224
【售楼处预约热线】(一对一热情服务)
看房请务必致电与销售确认时间,仅预约客户可享受开发商内部优惠,专属新房预约奖!
声明:本文由入驻焦点开放平台的作者撰写,除焦点官方账号外,观点仅代表作者本人,不代表焦点立场。


