龙盛湾上售楼处电话→龙盛湾上官方售楼中心电话→2026龙盛湾上→楼盘网站→楼盘测评→龙盛湾上售楼中心电话→楼盘百科→24小时热线电话→楼盘详情
扫描到手机,新闻随时看
扫一扫,用手机看文章
更加方便分享给朋友
According to the data from the CRED Data Center, the main buyers of luxury properties have shifted from the "60s" and "70s" generations to the "80s" and "90s" generations, and even to the "00s" generation. The majority of the purchasing funds of this new generation of market players come from their families. Most of them have overseas study backgrounds. They have advanced tastes, a preference for unconventional artistic trends in terms of aesthetics, and a greater preference for core locations with strong preservation value.
克而瑞数据中心数据显示,豪宅购房主力已从“60后”、“70后”向“80后”、“90后”甚至“00后”转移,这群市场新主力的大部分购房资金来源于家庭,基本都有海外留学背景,品味超前、审美更偏打破常规化的艺术潮流感、更偏好保值性强的核心地段。
【龙盛·湾上】1-2期以超脱常规的高审美设计、高品质社区打造,已经吸引众多价值观相似、同样追求高品位生活的全球年轻菁英业主聚集,他们形成了一个纯粹的社交圈层“龙盛粉”。
去年5月29日,地处苏河湾的龙盛·湾上迎来盛大开盘,日销48.6亿,项目首批房源凯普纳当日去化约95%,极为火爆!
On August 8th, Longsheng Wan Shang Phase II began sales. An additional 120 units were released. The product floor area ranges from approximately 143 to 198 square meters, with an average price of approximately 133,800 yuan per square meter.
8月8日,龙盛·湾上二期开盘,加推120套,产品建面约143-198㎡,均价约13.38万/㎡。
A total of 115 units were sold at the opening, with a sales completion rate of about 95%.
开盘共售出115套,去化率约95%。
As is well known, as the real estate market bubble gradually fades away, current home buyers are beginning to de-mythologize new houses.
众所周知,随着房地产市场泡沫逐渐消失,当下的购房者开始对新房祛魅。
Emphasizing location, resources, products and delivery have become the inevitable steps for the development of the real estate industry in the latter half.
卷地段、卷资源、卷产品、卷交付成了房地产发展到后半场的必经之路。
However, for Longshengwan, no matter from which angle you observe it, it is flawless - occupying the central location of Suhe Bay, having high-quality neighborhood resources among the elite owner community, having first-class product quality, and having a strong development background...
但对于龙盛湾上而言,不管你透过任意角度审视,它都无懈可击——占据城市中心位置苏河湾、精英业主圈层优质邻里资源、产品力一流、拥有雄厚的开发背景……
It is undoubtedly a "prominent" and "outstanding" high-standard presence in this year's market.
妥妥是今年市场上“突出”、“拔尖”的高规格存在。

在目前这个阶段,能逆势飞升的一定具备这样的特性:对稀缺地段资源的占有:横穿市中心的苏州河,荟萃了上海楼市精华!“一江一河”规划加持,约53.1千米的苏州河岸线,登顶城市制高点!

苏州河,外滩源渡口
对生活方式的重塑:滨水不仅是一种地段,更是一种生活!当下上海,滨水资源是优雅闲适的生活方式代名词!在这里更接近自然,静享悠然生活的惬意!
对住宅品质的升级:更纯粹的业主圈层、更令人向往的豪宅基因,安放身心的归属。苏河湾地标豪宅——约150米超高层住宅「龙盛·湾上」三期即将加推!


龙盛湾上共开盘了三次,具体为:
第一次开盘:5月29日,216套,149-211㎡,认购率240%,均价约13.3万
第二次开盘:8月8日,120套,143-381㎡,认购率240%,均价约13.38万
第三次开盘:10月30日,这次开盘覆盖了过去两次热销的138㎡/143㎡、194㎡、198㎡三个面积段,并且也加上了第壹次也是唯壹一次开盘248㎡户型,总共开盘240套。均价约13.46万
三次开盘累计劲销120亿,收到市场认可和追捧!

最新消息!静安内环内「龙盛·湾上」前两期均开盘热销,高热背后,究其原因是户型产品的优秀。目前项目一期二期三期少量珍藏房源,建面约194/198/210/248㎡3-4房;超值性价比,总价约2800-3500万入住上海核芯 享受精英业主圈层!


















而此次售楼处-湾上荟馆的开放,无论哪个方面,都是我心目中独一档的审美。
龙盛荟馆的接待处设计:空间讲究对称性、秩序感,暗绿纹哑光、温润的石材+仿铜金属板,调性和仪式感极佳,家具的选品又富有居家轻松氛围,有种俱乐部的感觉。
精致入户大厅+架空层+社区会所:我们可以看到,楼栋内部,项目打造了约5.1米层高的架空层泛会所,并且将室内精装标准延伸至架空层内部。

项目采用地上+地下三层同标准精装入户大堂,一楼大堂层高约6.6米,大堂选用有着媲美艺术品表现力的亚马逊绿天然奢石,结合仿古铜不锈钢、艺术壁灯为点缀,将上海的摩登气息注入归家大堂,给业主更强烈的入户仪式感。

还打造了一个具有会客区、恒温泳池、瑜伽健身的会所。

龙盛通过实力设计和选材用料,将项目的产品品质展露无遗。凭借龙盛品牌的强大实力,以及在苏河湾多年深耕的运营经验,我们有理由相信,湾上未来的交付值得期待。





一江一河规划中,苏州河沿岸明确定位为“特大城市宜居生活的典型示范区”,上海2035规划中,苏河湾定位上海中央活动区!

苏州河是上海的母亲河,具有丰富的人文资源和滨水景观,是上海重要的生态和功能和公共活动廊道。
苏州河沿岸定位为特大城市宜居生活的典型示范区。承载着独有的禀赋条件和优异能级,这里是一个多元功能复合的活力城区。

图源:网络
更是一个尺度宜人,有温度的人文城区;是亲切和谐、引人向往的底蕴滨水游憩场所;也是生态效益最大化的绿色城区,河流沿岸有机的融入生态建设,生活与自然相融。

图源:网络
「龙盛福新里」位于静安区内环内&苏州河沿岸,四轨交汇,商业紧靠大悦城,人文依托苏州河。
苏州河图源:2035规划
内环,上海人心中真正的“黄金地段”,仅占全市约1.8%面积的土地,却占有超70%的核心资源;苏河湾,不仅在百年前是远东大都市的商贸中心,如今还入选了中央活动区,与外滩、陆家嘴共同承载上海参与全球竞争的核心功能,更是上海极力想要打造的全球滨水宜居生活典型示范区!
龙盛湾上,落位于内环内+苏河湾板块,实属含着“金钥匙”出身的TOP级新盘。

交通方面,项目与3、4号线宝山站直线距离仅约300m;与8、12号线曲阜路站、10、12号线天潼路站直线距离皆在1公里内。周边有3、4、8、10、12号线,五轨交汇,出行十分方便。

商业方面:项目附近的福新汇-1层到4层包含全生活业态,东侧华润苏河湾打造的中央公园中,地下部分全部为城市商业,约500米左右静安大悦城、1站人民广场、3站黄陂南路(步行约60米新天地)、3站静安寺,轨交10分钟内便有上海最大、最繁华的商圈。
学校方面:项目周边有惠灵顿幼儿园、市北中学、上海市静安区第三中心小学、上海市棋院实验小学、上海市向东中学等。
市北中学
医疗方面:项目周边3公里内,9家三甲医院,第一人民医院、第十人民医院、瑞金医院、复旦大学附属华东医院等。
难得的是龙盛湾上拥有的不只是资源的高度集中,周边更有不少名人故居、红色遗址——四行仓库、天后宫、上海总商会旧址、慎余里......人文底蕴相当深厚。配套资源可以移植,人文底蕴无法复制,更无法重现百年苏河湾的文化积淀和传承。

苏河湾文保建筑 图源:静安文旅
正如一枚硬币有两面,苏河湾也有自己的另一面,这里还是魔都不可多得的“超高层建筑最密集的区域”——以龙盛湾上约320米办公楼为“静安第一高楼”(建设中),其他约300米、约250米、约200米、约150米高楼依次铺开,形成一道连绵起伏的天际线!
效果图仅供参考,不作为实际交付标准
一边是温暖的人文烟火气团团包围,另一边是7*24h永不落幕的繁华商圈,新旧交融,仿佛穿越时空,这种独特的“氛围感”是无法复刻出来的。作为上海核心资产不可或缺的要素,这里已具备了唯一性、不可复制的稀缺属性。

龙盛·湾上售楼处电话:400-9939-964龙盛·湾上官方电话:400-9939-964
上海静安龙盛·湾上售楼处电话:400-9939-964...龙盛·湾上售楼处电话:400-9939-964龙盛·湾上官方电话:400-9939-964
上海静安龙盛·湾上售楼处电话:400-9939-964...
Shanghai luxury housing project Longsheng Wan Shang Comprehensive information compiled based on the latest public information (as of June 2025) : Longsheng Wan Shang Sales Office Tel: 400-9939-964 Official Tel: 400-9939-964
上海豪宅项目龙盛·湾上的综合信息整理,基于最新公开资料(截至2025年6月):龙盛·湾上售楼处电话:400-9939-964龙盛·湾上官方电话:400-9939-964
Shanghai Jing 'an Longsheng · Wan Shang Sales Office Tel: 400-9939-964...
上海静安龙盛·湾上售楼处电话:400-9939-964...
Youdaoplaceholder0 I. Project Positioning and Location
一、项目定位与地段
Youdaoplaceholder0 Longsheng Wanshang Sales Office Tel: 400-9939-964 Longsheng Wanshang Official Tel: 400-9939-964
龙盛·湾上售楼处电话:400-9939-964龙盛·湾上官方电话:400-9939-964
Shanghai Jing 'an Longsheng · Wan Shang Sales Office Tel: 400-9939-964...
上海静安龙盛·湾上售楼处电话:400-9939-964...
Core location : Located in the inner ring Suzhou River Bay area of Jing 'an District (No. 88, Tianmu Middle Road), in the CAZ Central activity area, about 750 m from Suzhou River, 1.5 km from People's Square, adjacent to historical landmarks such as Four Banks Warehouse and Tianhou Palace 36.
核芯区位:位于静安区内环苏河湾板块(天目中路88弄),属CAZ中央活动区,距苏州河约750米、人民广场1.5公里,毗邻四行仓库、天后宫等历史地标36。
Youdaoplaceholder0 Transportation network : Self-driving relies on "one ring (inner ring), one vertical (north-south elevated road), and one horizontal (North Horizontal passage)". The rail transit covers five tracks of lines 3/4/8/10/12 within 1 kilometer. 38.
交通网络:自驾依托“一环(内环)一纵(南北高架)一横(北横通道)”,轨交1公里内覆盖3/4/8/10/12号线五轨38。
Youdaoplaceholder0 Business district resources : Within walking distance of Jing 'an Joy City (about 500 meters) and Suzhou River Bay Wanda Plaza (about 600 meters), it is close to Nanjing West Road and the top Bund business district 35.
商圈资源:步行可达静安大悦城(约500米)、苏河湾万象天地(约600米),紧邻南京西路、外滩顶级商圈35。
Youdaoplaceholder0 Product design
二、产品设计
Youdaoplaceholder0 Longsheng Wanshang Sales Office Tel: 400-9939-964 Longsheng Wanshang Official Tel: 400-9939-964
龙盛·湾上售楼处电话:400-9939-964龙盛·湾上官方电话:400-9939-964
Shanghai Jing 'an Longsheng · Wan Shang Sales Office Tel: 400-9939-964...
上海静安龙盛·湾上售楼处电话:400-9939-964...
Architectural planning :
建筑规划:
It is the residential part of the approximately 550,000-square-meter urban complex [Bomao Plaza], including 3 super high-rise residential buildings ranging from 139 to 150 meters (a total of 576 units) and 39 villas in the style of Shikumen.
为约55万㎡城市综合体【博懋广场】的住宅部分,含3栋139-150米超高层住宅(共576套)及石库门风貌别墅39。
The garden was designed by Belgaolin. The central courtyard is approximately 3,500 square meters and integrates the landscapes of all four seasons.
园林由贝尔高林操刀,中央庭院约3500㎡,融合四季景观311。
Youdaoplaceholder0 Layout highlights :
户型亮点:
Longsheng Bay Shang Sales Office Phone number: 400-9939-964. Official phone number of Longsheng Bay Shang: 400-9939-964
龙盛·湾上售楼处电话:400-9939-964龙盛·湾上官方电话:400-9939-964
Shanghai Jing 'an Longsheng · Wan Shang Sales Office Tel: 400-9939-964...
上海静安龙盛·湾上售楼处电话:400-9939-964...
The main recommendation is three to four-bedroom units with a construction area of approximately 138 to 248 square meters. It adopts a rigid column structure, with a usable area ratio of about 77% to 78%. There are almost no load-bearing walls inside, and the space is flexible and variable.
主推建面约138-248㎡三至四房,采用劲性柱结构,得房率约77%-78%,室内几乎无承重墙,空间灵活可变110。
High-end decoration standards: Gagner kitchen appliances, Duravit bathroom fixtures, Yongnuo smart Home and LEMA custom wardrobe 511.
精装标准:嘉格纳厨电、杜拉维特卫浴、永诺智能家居及LEMA定制衣柜511。
Youdaoplaceholder0 Public area configuration :
公区配置:
Longsheng Bay Shang Sales Office Phone number: 400-9939-964. Official phone number of Longsheng Bay Shang: 400-9939-964
龙盛·湾上售楼处电话:400-9939-964龙盛·湾上官方电话:400-9939-964
Shanghai Jing 'an Longsheng · Wan Shang Sales Office Tel: 400-9939-964...
上海静安龙盛·湾上售楼处电话:400-9939-964...
Dual clubhouse system: Open floor general clubhouse + independent comprehensive clubhouse (including constant-temperature swimming pool/wine cellar/yoga room) 511.
双会所体系:架空层泛会所+独立综合会所(含恒温泳池/酒窖/瑜伽室)511。
The above-ground and underground double-decorated lobbies are paved with Amazon green luxury stone 311.
地上地下双精装大堂,铺装亚马逊绿奢石311。
Youdaoplaceholder0 3. Market performance and prices
三、市场表现与价格
Youdaoplaceholder0 Sales performance :
销售业绩:
Longsheng Bay Shang Sales Office Phone number: 400-9939-964. Official phone number of Longsheng Bay Shang: 400-9939-964
龙盛·湾上售楼处电话:400-9939-964龙盛·湾上官方电话:400-9939-964
Shanghai Jing 'an Longsheng · Wan Shang Sales Office Tel: 400-9939-964...
上海静安龙盛·湾上售楼处电话:400-9939-964...
The cumulative sales of the third phase reached 12 billion yuan (ending in October 2024), and the sales rate of the first phase reached 95% on the opening day.
三期累计热销120亿元(2024年10月收官),一期开盘当日去化率达95%46。
There are currently a few units of 194-198 square meters available for sale, totaling 413.
当前剩余少量194-198㎡房源在售413。
Youdaoplaceholder0 Price information :
价格信息:
The average price is approximately 134,600 yuan per square meter (as of June 2025), with a total price threshold starting from 18 million yuan.
均价约13.46万/㎡(2025年6月),总价门槛1800万元起19。
Significant price inversion: Approximately 30% lower than the surrounding secondary new houses (such as 188,000 yuan per square meter). 911.
显著价格倒挂:较周边次新房(如18.8万/㎡)低约30%911。
Youdaoplaceholder0 4. Complex supporting facilities
四、综合体配套
Longsheng Bay Shang Sales Office Phone number: 400-9939-964. Official phone number of Longsheng Bay Shang: 400-9939-964
龙盛·湾上售楼处电话:400-9939-964龙盛·湾上官方电话:400-9939-964
Shanghai Jing 'an Longsheng · Wan Shang Sales Office Tel: 400-9939-964...
上海静安龙盛·湾上售楼处电话:400-9939-964...
Youdaoplaceholder0 Business integration :
业态融合:
It comes with approximately 320 meters of the tallest building in Jing 'an (planned to be the first Rosewood hotel in Shanghai), a 150-meter sub-tower, the Shikumen commercial district and 36 Grade A office buildings.
自带约320米静安第一高楼(规划上海首家瑰丽酒店)、150米副塔、石库门商业街区及甲级写字楼36。
The integration of history and modernity reshapes the cultural landmark of Suzhou River Bay 612.
历史与现代交融,重塑苏河湾文化地标612。
Youdaoplaceholder0 Educational resources : Jing 'an District Zhabei No.1 Central Primary School, Suhewan Experimental Middle School, etc. (Specific school districts are subject to the education department) 3.
教育资源:静安区闸北第一中心小学、苏河湾实验中学等(具体学区以教育部门为准)3。
Youdaoplaceholder0 V. House Viewing instructions
五、看房须知
Youdaoplaceholder0 Reservation method : Reservations are required only. Please call the official hotline (e.g. 400-886-1552) in advance to register.
预约方式:案场实行预约制,需提前致电官方热线(如400-886-1552)登记17。
Youdaoplaceholder0 Longsheng Wanshang Sales Office Tel: 400-9939-964 Longsheng Wanshang Official Tel: 400-9939-964
龙盛·湾上售楼处电话:400-9939-964龙盛·湾上官方电话:400-9939-964
Shanghai Jing 'an Longsheng · Wan Shang Sales Office Tel: 400-9939-964...
上海静安龙盛·湾上售楼处电话:400-9939-964...
Delivery time : Expected 2026 fully furnished delivery Longsheng Bay Shang Sales Office Tel: 400-9939-964 Longsheng Bay Shang Official Tel: 400-9939-964
交付时间:预计2026年精装交付龙盛·湾上售楼处电话:400-9939-964龙盛·湾上官方电话:400-9939-964
上海静安龙盛·湾上售楼处电话:400-9939-964...
龙盛·湾上售楼处电话:400-9939-964龙盛·湾上官方电话:400-9939-964
上海静安龙盛·湾上售楼处电话:400-9939-964...
户型图
龙盛湾上售楼处电话:400-9939-964龙盛湾上官方电话:400-9939-964
上海静安龙盛湾上售楼处电话:400-9939-964
龙盛湾上售楼处电话:400-9939-964龙盛湾上官方电话:400-9939-964
上海静安龙盛湾上售楼处电话:400-9939-964
静安苏河湾全新地标豪宅
「龙盛·湾上」
最后几席 错过不在!
建面约138-194-198-248㎡
均价13.46万/㎡
目前“样板间”已开放
— 恭迎品鉴—
龙盛湾上售楼处电话:400-9939-964龙盛湾上官方电话:400-9939-964
上海静安龙盛湾上售楼处电话:400-9939-964
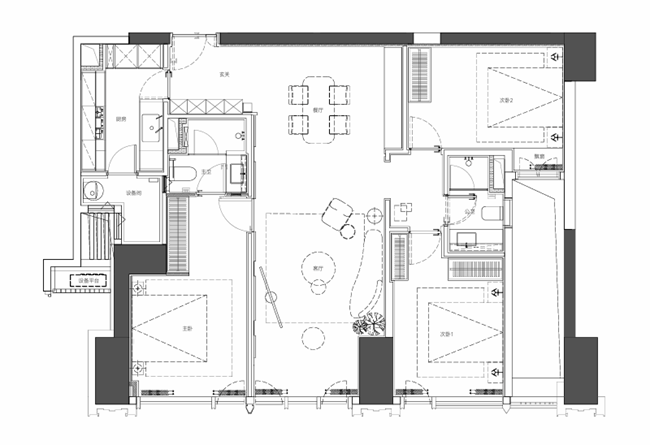
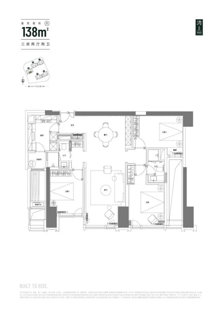
建面约138㎡3房2厅2卫
138㎡户型方正,在视觉上显得宽敞大气,功能分区合理,空间利用率高,三开间朝南,确保了室内充足的自然采光。主卧套房设计,全屋配置了充足的收纳空间,并通过设计做到了三个房间与两个卫生间的全明,为居住者提供了更为舒适的生活体验。
(项目实景图)
建面约194㎡3房2厅3卫
龙盛湾上售楼处电话:400-9939-964龙盛湾上官方电话:400-9939-964
上海静安龙盛湾上售楼处电话:400-9939-964
边套户型横厅设计,客厅约5.3米的面宽保证了空间的尺度感,客厅及南侧卧室的大面积落地窗,加上北面大面积飘窗,约270度的采光+视野,保证了室内充足的自然光线。两南一北的卧室布局,尽可能把南向尺度给到卧室,提高居住的舒适性。宽敞的步入式衣帽间,主卫双台盆和宽敞的淋浴区,每一个清晨都是感官的享受,每一个夜晚都是身心的彻底放松。
(项目实景图)
建面约198㎡3房2厅3卫
龙盛湾上售楼处电话:400-9939-964龙盛湾上官方电话:400-9939-964
上海静安龙盛湾上售楼处电话:400-9939-964
三开间朝南,标准动静分离户型,进门十字中轴,南北通透,客餐厅有足够长的纵深,极大提高了生活舒适感。主卧和次卧双套房设计,室内5飘窗1阳台,更增加了198户型的空间延展度。未来还可以根据家庭结构的变化,自行改造室内空间布局。
(项目实景图)
建面约248㎡4房2厅3卫
龙盛湾上售楼处电话:400-9939-964龙盛湾上官方电话:400-9939-964
上海静安龙盛湾上售楼处电话:400-9939-964
三期压轴推出的建面约248㎡4房2厅3卫更是别出心裁!是今年上海豪宅市场首次出现的定制户型,龙盛为业主定制了2+1+1房,3+1房,及纯4房三种自由交付选择,满足了现代家庭多元化的居住需求。
龙盛湾上售楼处电话:400-9939-964龙盛湾上官方电话:400-9939-964
上海静安龙盛湾上售楼处电话:400-9939-964
该户型将西厨、岛台、餐厅、客厅进行一体化打造,能够大大增强家庭成员之间的互动;西面大面积落地窗搭配北面大面积飘窗,实现270度的宽阔城市视野。
(项目实景图)
龙盛湾上售楼处电话:400-9939-964龙盛湾上官方电话:400-9939-964
上海静安龙盛湾上售楼处电话:400-9939-964
龙盛湾上售楼处电话:400-9939-964龙盛湾上官方电话:400-9939-964
上海静安龙盛湾上售楼处电话:400-9939-964龙盛湾上一期于今年5月开盘,首开房源216套,产品建面约149-210公寓,均价约13.3万/㎡。开盘当日劲销48.6亿,共售出205套,去化率约95%。
内环内新房均价破17w
龙盛湾上售楼处电话:400-9939-964龙盛湾上官方电话:400-9939-964
上海静安龙盛湾上售楼处电话:400-9939-964
今年内环重磅事件:新房均价突破17w+大关,并且销售情况都十分震撼!中海顺昌玖里17.2w的均价,200亿货值当天售罄!同样内环内的「龙盛·湾上」一期才13.3w/㎡,价格优势突出!(数据来源于网上房地产,仅供参考)
数据来源于网上房地产,仅供参考
苏河湾板块价格洼地!
龙盛湾上售楼处电话:400-9939-964龙盛湾上官方电话:400-9939-964
上海静安龙盛湾上售楼处电话:400-9939-964
「龙盛·湾上」所在的苏河湾板块,次新房挂牌均价势头依旧迅猛,普通次新房的链家挂牌均价在15w/㎡左右,而品质次新豪宅已经达到18.8w/㎡以上,而「龙盛·湾上」一期均价仅约13.3w/㎡,与其品质相当的次新豪宅相比存在约66%的倒挂率。(数据来源于链家网,截止于5月17日,仅供参考)
数据来源于链家网,截止于5月17日,仅供参考
龙盛湾上售楼处电话:400-9939-964龙盛湾上官方电话:400-9939-964
上海静安龙盛湾上售楼处电话:400-9939-964「龙盛·湾上」身处苏河湾板块内,自带不凡商业底盘+刷新静安城市天际线的地标级办公楼,可以预见的是,未来这里的生活方式必将是高效、精致又别具一格~
约55w方地标综合体:博懋广场
龙盛湾上售楼处电话:400-9939-964龙盛湾上官方电话:400-9939-964
上海静安龙盛湾上售楼处电话:400-9939-964
项目自身处于约55.2万方博懋广场城市地标综合体内,其中包含一栋约320米超高层塔楼,一栋约150米副塔楼及裙房商业建筑,石库门商业街区,三栋约150米超高层住宅及低密风貌别墅,集合了高端办公、奢华酒店、摩登商业、精品住宅等多元业态。
龙盛湾上售楼处电话:400-9939-964龙盛湾上官方电话:400-9939-964
上海静安龙盛湾上售楼处电话:400-9939-964
其中,超高层主塔楼约320米,未来建成后将成为静安第一高楼新地标,也为浦西地区带来一个全新的标志性建筑。
主塔顶端引入国际奢华酒店品牌瑰丽,也是上海首家瑰丽酒店(拟引入)。
对于这种国际顶尖酒店品牌选址于此,一方面得益于苏河湾“一江一河”的独特地理位置,另一方面不得不提到项目的开发商:龙盛。
作为深耕苏河湾的豪宅专家,龙盛不仅打造了福新里等高端改善标杆住区,还是一个专注苏河湾的城市运营商。
龙盛湾上售楼处电话:400-9939-964龙盛湾上官方电话:400-9939-964
上海静安龙盛湾上售楼处电话:400-9939-964
不同于别的开发商,龙盛所秉承的城市运营,是通过好的空间吸引好的内容打造好的邻里,形成一个良性循环,带来区域价值的体现。
目前板块内我们熟知的法拉利亚太定制中心、法拉利意特展厅、Liaigre、苏富比空间、Poltrona Frau等国际顶尖资源,背后的推手都是龙盛。
龙盛湾上售楼处电话:400-9939-964龙盛湾上官方电话:400-9939-964
上海静安龙盛湾上售楼处电话:400-9939-964
凭借龙盛在苏河湾多年深耕的运营实力与对创新资源的卓越整合能力,我们有理由相信,龙盛亦将在博懋广场地标综合体项目中会有更加亮眼的表现。
“一江一河”世界级滨水中央活动区
龙盛湾上售楼处电话:400-9939-964龙盛湾上官方电话:400-9939-964
上海静安龙盛湾上售楼处电话:400-9939-964
根据“上海2035规划”,苏河湾板块划入中央活动区,未来将与陆家嘴、外滩等共同承载上海参与全球竞争的核心功能。
龙盛湾上售楼处电话:400-9939-964龙盛湾上官方电话:400-9939-964
上海静安龙盛湾上售楼处电话:400-9939-964
在上海“一江一河”十四五规划中,苏河湾是“十四五”期间上海重点建设的板块。2023年市政府工作报告提出:着力优化城市空间格局,打造城市发展新的增长极。
龙盛湾上售楼处电话:400-9939-964龙盛湾上官方电话:400-9939-964
上海静安龙盛湾上售楼处电话:400-9939-964
加强中央活动区功能复合,推动苏河湾等区域打造世界级滨水区。“十四五”期间,苏河湾功能区将通过推动总部经济中心建设、焕活历史文化底蕴魅力等举措,努力打造成为世界级滨水中央活动区、世界级“城市会客厅”。
龙盛湾上售楼处电话:400-9939-964龙盛湾上官方电话:400-9939-964
上海静安龙盛湾上售楼处电话:400-9939-964
正在进行大规模城市更新的苏河湾,必将成为上海未来的高端产业聚集地,也或将成为魔都“超高层建筑最密集的区域”。
未来将建成约10栋“超高天际建筑”,其中至少有2栋建筑高达300米以上,其中一栋规划建筑高度更是达到320米,与目前“浦西第一高楼”白玉兰广场一样高,就是龙盛湾上地块内主塔博懋广场!
龙盛湾上售楼处电话:400-9939-964龙盛湾上官方电话:400-9939-964
上海静安龙盛湾上售楼处电话:400-9939-964
苏河湾,坐落于苏州河北岸,根据苏州河的流向,亦即苏州河之左岸。而在规划中,苏河湾被定位为“上海文化左岸”。
“左岸”一词,源自巴黎塞纳河左岸,如今已成为城市公共活力的象征,苏河湾作为上海的新“左岸”,承载着相似的城市文化使命。
如果说,塞纳河左岸犹如巴黎艺术生命的脉搏;那苏州河左岸则浓缩着上海文化的精华。
内环内高密度生活配套资源
龙盛湾上售楼处电话:400-9939-964龙盛湾上官方电话:400-9939-964
上海静安龙盛湾上售楼处电话:400-9939-964
项目坐拥苏河湾,板块内的苏河湾中心万象天地、静安大悦城商业早已成为地区商业中心,步行可至,周边直线距离3km范围覆盖市中心各大顶层地标商圈、文化设施、生活配套资源相当丰富。(百度地图测距)
龙盛湾上售楼处电话:400-9939-964龙盛湾上官方电话:400-9939-964
上海静安龙盛湾上售楼处电话:400-9939-964
项目直线距离人民广场仅约1.5公里,外滩、南京东路和南京西路都在2公里范围之内!(百度地图测距)上海大部分核心的城市地标、商业配套和文化资源几乎都步行可至,宛如自家的配套!
龙盛湾上售楼处电话:400-9939-964龙盛湾上官方电话:400-9939-964
上海静安龙盛湾上售楼处电话:400-9939-964
项目周边南北高架、西藏北路,北横通道环伺,上下班、聚会、旅行处处快人一步。
轨交方面,项目约1公里范围内可选择3/4/8/10/12号线五条轨道交通,轻松通达各个城市节点。(百度地图测距)
龙盛湾上售楼处电话:400-9939-964龙盛湾上官方电话:400-9939-964
上海静安龙盛湾上售楼处电话:400-9939-964
项目与苏州河直线距离仅约750米,距离黄浦江也不到2公里,非常适宜Citywalk或者晨跑。
龙盛湾上售楼处电话:400-9939-964龙盛湾上官方电话:400-9939-964
上海静安龙盛湾上售楼处电话:400-9939-964
值得一提的是,在《上海市静安区单元规划》中明确,未来湾上西北侧的上海火车站的铁轨道,规划为约17.5万方城市绿地,土地属性调整为市区级文化设施,为未来业主提供一个散步的好去处。
示意图,图源《上海市静安区单元规划》
龙盛湾上售楼处电话:400-9939-964龙盛湾上官方电话:400-9939-964
上海静安龙盛湾上售楼处电话:400-9939-964
苏河湾作为上海工商业的发源地,项目周边的历史底蕴也非常丰富,坐拥四行仓库、慎余里、天后宫、上海总商会旧址等约50万方保留保护建筑、17个风貌保护街坊,体量超越了新天地与田子坊的总和!
龙盛湾上售楼处电话:400-9939-964龙盛湾上官方电话:400-9939-964
上海静安龙盛湾上售楼处电话:400-9939-964
除了历史底蕴之外,项目周边还环绕着上海博物馆、上海大剧院等文化资源,以及尤伦斯当代艺术中心、上海苏富比空间、外滩艺术馆、外滩美术馆、上海展览中心等艺术空间,艺术文化氛围也是相当浓厚。
龙盛湾上售楼处电话:400-9939-964龙盛湾上官方电话:400-9939-964
上海静安龙盛湾上售楼处电话:400-9939-964
无论是摩登的商业、自然的风光、历史的厚重,还是文化的瑰丽,都在这里得到了完美的融合。
龙盛湾上售楼处电话:400-9939-964龙盛湾上官方电话:400-9939-964
上海静安龙盛湾上售楼处电话:400-9939-964
「龙盛·湾上」特邀国际大师团队合力打造:
住宅建筑设计——天华建筑设计有限公司
商办建筑设计——Foster + Partners福斯特建筑事务所
景观设计团队——Belt Collins 贝尔高林
室内&会所设计——W.DESIGN 无间设计
龙盛湾上售楼处电话:400-9939-964龙盛湾上官方电话:400-9939-964
上海静安龙盛湾上售楼处电话:400-9939-964
由此得出「龙盛·湾上」惊艳的产品力~
劲性柱结构实现超高得房率
龙盛湾上售楼处电话:400-9939-964龙盛湾上官方电话:400-9939-964
上海静安龙盛湾上售楼处电话:400-9939-964
相较于传统的超高层剪力墙结构,湾上所采纳的劲性柱结构设计,特色在于其室内几乎无承重墙。
示意图,仅供参考
龙盛湾上售楼处电话:400-9939-964龙盛湾上官方电话:400-9939-964
上海静安龙盛湾上售楼处电话:400-9939-964
不仅解决了传统超高层在实际使用中空间受限的问题,更赋予了项目室内空间极高的可变性,实现了空间布局的多样性和灵活性,为业主提供了更高程度的个性化居住体验。
同时也解决了超高层得房率低的壁垒,据了解项目预测得房率高达约78%!(数据仅供参考,具体以购房合同约定为准)
数据仅供参考,具体以购房合同约定为准
高审美外立面
龙盛湾上售楼处电话:400-9939-964龙盛湾上官方电话:400-9939-964
上海静安龙盛湾上售楼处电话:400-9939-964
「龙盛·湾上」更符合塔尖审美,打造了质感镜幕建筑风格,配合地块历史风貌建筑底蕴特色,选用低饱和度的橙色和深灰色作为主基调色,使用复合铝板结合深灰色门窗线条,形成简约高奢的风格。
更是采用了LOW-E涂层中空钢化夹胶玻璃,部分采用全落地窗室内设计,大幅提高节能、采光及遮阳效果。
高奢度假风格中央景观花园
龙盛湾上售楼处电话:400-9939-964龙盛湾上官方电话:400-9939-964
上海静安龙盛湾上售楼处电话:400-9939-964
「龙盛·湾上」社区由3幢超高层住宅错落分布,实现了栋距达到75米惊艳尺度,有足够的空间做社区景观~
龙盛湾上售楼处电话:400-9939-964龙盛湾上官方电话:400-9939-964
上海静安龙盛湾上售楼处电话:400-9939-964
特邀贝尔高林设计的中央主题景观,配合分布式的泛会所打造“公园式度假生活”主题景观;社区外还有北站规划的大面积集中公共绿化,在寸土寸金的内环,实在是奢侈。
龙盛湾上售楼处电话:400-9939-964龙盛湾上官方电话:400-9939-964
上海静安龙盛湾上售楼处电话:400-9939-964
社区入口采用了酒店式环岛落客区设计,并且中庭配备了约3500㎡具有“公园感”的中央庭院,社区内利用不同的植物形态表现提升景观空间的品质,营造典雅精致的植物景观,将归家仪式和日常休闲的体验感拉满。
高效智能梯控、精致入户大堂
龙盛湾上售楼处电话:400-9939-964龙盛湾上官方电话:400-9939-964
上海静安龙盛湾上售楼处电话:400-9939-964
为保证业主生活私密性与便捷性,「龙盛·湾上」将电梯厅远离户内,并且在三梯三户的优质高梯户比标准下,引入迅达智能梯控系统,让未来业主在日常高峰期间等候梯时间不超过1分钟,确保未来业主在高峰时段内享受高效的电梯服务。(数据来源于迅达测试,预计高峰期间平均等候梯时间为47秒)

这是为美术生打造的270度环幕江景大平层,高楼层赋予的辽阔视野,江景成为空间的天然背景。
整体以现代自然主义为基调,借自由开放的空间美学与个性家居布置,诠释简约松弛的生活哲学。


玄关
Vestibule
归家序章,以简素勾勒空间韵律
作为入户第一幕,玄关以极简姿态开启生活叙事,素净墙面如天然画布。清透支架托举着素白花瓶,植物姿态俏皮延展,成为连接户外与生活的温柔过渡。

客厅
Living Room
没有 “标准答案” 的互动场
全开放式设计,岛形沙发打破边界,让交流随光影自由发生。午后的光线从侧面洒落,家具被赋予立体的光影层次。

中央的B&B Camaleonda模块组合沙发,以岛状布局重构空间逻辑,双向陈设的低椅背设计。一面朝向书柜电视墙,一面衔接餐厨区。让场景切换随心意而生,既保持空间通透感,又以功能分区提升使用效率。



休闲区
Leisure Area
多元需求的美学平衡




厨房
Kitchen
暮光先抵达的日常剧场






餐厅
Dining Room
暮色里的光影焦点







主卧
Master Bedroom
个性与舒适的共生
















小儿子房
Younger Son's Room
斑斓里的活力感




大儿子房
Elder Son's Room
简素里的生长感







这是为美术生打造的270度环幕江景大平层,高楼层赋予的辽阔视野,江景成为空间的天然背景。
整体以现代自然主义为基调,借自由开放的空间美学与个性家居布置,诠释简约松弛的生活哲学。


玄关
Vestibule
归家序章,以简素勾勒空间韵律
作为入户第一幕,玄关以极简姿态开启生活叙事,素净墙面如天然画布。清透支架托举着素白花瓶,植物姿态俏皮延展,成为连接户外与生活的温柔过渡。

客厅
Living Room
没有 “标准答案” 的互动场
全开放式设计,岛形沙发打破边界,让交流随光影自由发生。午后的光线从侧面洒落,家具被赋予立体的光影层次。

中央的B&B Camaleonda模块组合沙发,以岛状布局重构空间逻辑,双向陈设的低椅背设计。一面朝向书柜电视墙,一面衔接餐厨区。让场景切换随心意而生,既保持空间通透感,又以功能分区提升使用效率。



休闲区
Leisure Area
多元需求的美学平衡




厨房
Kitchen
暮光先抵达的日常剧场






餐厅
Dining Room
暮色里的光影焦点







主卧
Master Bedroom
个性与舒适的共生
















小儿子房
Younger Son's Room
斑斓里的活力感




大儿子房
Elder Son's Room
简素里的生长感



房地产基础知识300问
1、什么是房产:房屋产权的简称。
2、什么是地产:是指土地财产。
3、什么是房地产:是房产和地产的总称。
4、什么是房地产业:从事房地产开发、建设、经营、管理以及维修、装饰和服务的综合性产业。
5、什么是房地产开发:是指在依法取得土地使用权的土地上按照使用性质的要求进行基础设施、房屋建筑的活动。
6、什么是土地开发:是将“生地”开发成可供使用的土地。
7、集体土地是指:农村集体所有的土地。
8、征用土地是指:国家为了公共利益的需要,可依照法律规定对集体所有的土地实行征用。
9、什么是土地所有权:是指国家或集体经济组织对国家土地和集体土地依法享有的占有、使用、收益和处分的权能。
10、什么是土地使用权的出让:指国家以协议、招标、拍卖的方式将土地所有权在一定年限内出让给土地使用者,由使用者向国家支付土地使用权出让金的行为。
11、什么是土地使用权转让:是指土地使用者通过出售、交换、赠与和继承的方式将土地使用权再转移的行为。
12、什么是地籍、产籍:是对在房地产调查登记过程产生的各种图表、证件等登记资料,经过整理、加工、分类而形成的图、档、卡、册等资料的总称。
13、 生地是指:不具备开发条件的土地。
14、熟地是指:已完成三通一平(水、电、道路,土地平整)或七通一平,具备开发条件的土地。
15、什么是宗地:是地籍的最小单元,是指以权属界线组成的封闭地块。
16、什么是宗地图:是土地使用合同书附图及房地产登记卡附图。它反映一宗地的基本情况。包括:宗地权属界线、界址点位置、宗地内建筑位置与性质、与相邻宗地的关系等。
17、证书附图是指:房地产后面的附图,主要反映房地产情况及房地产所在宗地情况。
18、什么是物业管理:泛指一切有关房地产开发、经营、商品房销售、租赁及售后服务。
19、什么是业主委员会:是在物业管理区域内代表全体业主实施自治管理的组织。是代表物业全体业主合法权益的社会团体,其合法权益受国家法律保护。
20、业主委员会是如何产生的:由业主大会从全体业主中选举产生。
21、住房补贴是指:国家为职工解决住房问题而给予的补贴资助。
22、房屋的所有权是指:对房屋全面支配的权利。
23、房地产交易的两种主要形式是:地产交易形式 与 房产交易形式。
24、建筑物是指:人工建造而成的房屋和构筑物。
25、构筑物是指:建筑物中除房屋以外的东西。
26、什么是期房:是指消费者在购买时不具备即买即可入住的商品房。
27、期房是如何介定的:房地产开发商拿到商品房预售许可证开始至取得房地产权证大产证或竣工验收合格可以直接入住使用)为止。
28、什么是预售合同:消费者在购买期房时签定的销售合同。
29、什么是现房:是指消费者在购买时具备即买即可入住的商品房,即开发商已办妥所售的商品房的大产证(或已经竣工验收合格并交付使用)的商品房。
30、什么是毛坯房:房地产商交付屋内只有门框没有门,墙面地面仅做基础处理而未做表面处理的房叫毛坯房。
31、什么是成品房:是指对墙面、天花、门套、地板实行装修。
32、什么是商品房:是指以完全的市场价格向购房者出售的房子。
33、商品房预售是指:在房地产尚未建成以前,房地产的经销商在取得受买人一定数量的定金后,将期房出售给受买人。
34、商品房现售是指:指房地产开发企业将竣工验收合格的商品房出售给买受人。
35、二手房通常指的是:再次进行买卖交易的住房。
36、经济适用房指的是:面向中低收入家庭的普通住宅。
37、例出3种以上的安居房的种类:准成本房、全成本房、全成本微利房和社会微利房。
38、低层住宅的介定:1-3层的住宅。
39、多层住宅的介定:4-6层的住宅。
40、小高层住宅的介定:7-11层的住宅。
41、中高层住宅的介定:12-16层的住宅。
42、高层住宅的介定:16层以上为高层住宅。
43、超高层建筑的介定:总高度超过100米的建筑。
44、商品房的结构是指:房屋主体所使用的施工工艺和用材。
45、钢结构的意思是:承重的主要结构是用钢材料建造的,包括悬索结构。
46、钢混结构的意思是:承重的主要结构是用钢和混凝上建造的。
47、砖木结构的意思是:承重的主要结构是用砖、木材建造的。
48、砖混结构的意思是:主要是砖墙承重,部分是钢盘混凝土承重的结构。
49、框架结构的意思是:以钢筋混凝土浇捣成承重梁柱,再用预制的隔墙分户的结构。
50、开间指的是:一间房屋内一面墙的定位轴线到另一面墙的定位轴线之间的实际距离。
51、进深指的是:一间独立的房屋或一幢居住建筑内从前墙的定位轴线到后墙的定位轴线之间的实际长度。
52、层高指的是:下层地板面或楼板面到上层楼层面之间的距离。
53、净高指的是:下层楼板上表面到上层楼板下表面之间的距离。
54、占地面积指的是:地块的总面积。
55、1亩约等于多少平方米:666.66㎡
56、居住小区总用地指的是什么用地的总和:住宅总用地,公共建筑设施总用地,道路、广场用地、庭院、绿化用地的总和。
57、住宅总用地是指:住宅用地面积的总和。
58、公建总用地是指:小区内部公共建筑占地面积的总和。
59、建筑用地面积的介定:建设用地位置和界线所围合的用地之水平投影面积。
60、建筑基底面积是指:建筑物首层的建筑面积。
61、建筑高度是指:建筑物室外地平面至外墙面顶部的总高度。
62、房屋的基底面积是指:房屋的基底面积是指建筑物底层勒脚以上外围水平投影面积。
63、道路面积是指:小区内宽度大于1.5米道路的面积总和。
64、广场面积是指:停车、回车广场和有铺砌地面的场地面积之和。
65、庭院、绿化面积是指:小区内集中绿化带、小公园,以及公共活动场所等为小区所有居住人员 共同使用权的绿化面积的总和。
66、假山、小池算不算庭院、绿化面积:算。
67、人均总占地面积(㎡/人)的计算公式:人均总占地面积=建筑红线内总用地÷本小区规划居住总人数。
68、人均住宅用地面积(㎡/人)的计算公式:人均住宅用地面积=小区内总住宅用地÷本小区规划居住总人数。
69、总建筑面积是指:小区内住宅、公共建筑、人防地下室面积总和。
70、人防地下室算不算在总建筑面积之内:算
71、住宅建筑面积是指:住宅建筑外墙外围线测定的各层平面面积之和。
72、套建筑面积是指:一套房屋的整体面积。
73、套建筑面积的构成是:套内建筑面积和套分摊的公用建筑面积
74、幢(栋)是指:一座独立的,包括不同结构和不同层次的房屋。
75、架空房屋是指:一般为底层架空,以柱子作为承重支撑物的房屋。
76、夹层是指:位于两自然层之间的楼层,指房屋内部空间的局部层次。
77、技术层的意思是:用作水、电、暖、卫生等设备安装的局部层次。
78、技术层层高在多少以上计算层数:2.20米以上的计算层数。
79、结构转换层是指:建筑物某楼层的上部与下部因平面使用功能不同,该楼层上部与下部采用不 同结构类型,并通过该楼层进行结构转换,则该楼层称为结构转换层。
80、跃层式住宅是指:一套住宅占两个楼层,由户内楼梯联系上下层,上下两层完全分隔。
81、阁楼是指:利用房屋内的上部空间加建的楼层。
82、阁楼层高在多高以上计算面积:2.20米以上。
83、地上层数是指:即房屋的自然层数,指室内地坪±0.00以上的按楼板结构分层的层高在2.20米以上的楼层数。
84、地上层数用什么数表示:自然数。
85、地下层数是指:采光窗在室外地坪以下的,其室内层高在2.20米以上的地下室的层数。
86、地下层数用什么数表示:负数。
87、房屋总层数是指:房屋的地上层数与地下层数之和。
88、地下层数算不算在房屋总层数之内:算。
89、例出3个以上不算在房屋总层数内的建筑层:假层、夹层、阁楼、装饰性塔楼、楼梯间、水箱间。
90、柱廊是指:有顶盖和支柱,供人通行的建筑物,称为有柱走廊,简称柱廊。
91、骑楼是指:底层为有柱廊房,廊道上方建为楼房的一部分。
92、挑廊是指:指二层以上挑出房屋墙体外,有围护结构,无支柱有顶盖的外走廊。
93、门廊是指:建筑物门前有顶盖,有支柱或围护结构的进出通道。
94、门斗是指:支撑建筑物门前顶盖的是实体墙称为门斗。
95、檐廊是指:房屋檐下方两端有支撑墙体无柱的通道。
96、天棚是指:即天篷,有透明顶篷履盖的屋面。
97、晒台又称什么:露台。
98、露台是指:供人室外活动的上人屋面或底层地面伸出室外的有维护无顶盖的台面。
99、阳台是指:有永久性上盖、有围护结构、有台面、与房屋相连、可以供人活动或利用的房屋附属设施。
100、阳台的分类有:封闭式阳台和半封闭式阳台。
101、封闭阳台是指:在围护栏、墙上部用铝合金玻璃窗等围闭的阳台。
102、封闭阳台面积如何计算:全部计算建筑面积。
103、半封闭阳台是指:除围护栏、墙以外没有进行围闭的阳台。
104、半封闭阳台面积如何计算:计算一半建筑面积。
105、楼梯是指:是指房屋层之间供垂直交通用的通道,
106、室外楼梯是指:依靠房屋外墙体搭建的永久性楼梯。
107、屋顶楼梯间是指:突出房屋屋面有顶盖,四周有围护结构,层高在2.20米以上供上屋顶维修或安全出口用的用房。
108、屋顶楼梯间算不算总层高:不算。
109、屋顶电梯间:指突出房屋屋面,层高在2.20米以上,供停放、检修、升降电梯的用房。
110、屋顶电梯间算不算总层高:不算。
111、设备间是指:一幢大楼内放置各种应用设备以及进行综合布线交接的房屋。
112、功能区的意思是:根据各共有建筑部位的用途而划分的服务范围称为功能区。
113、连廊是指:连接两幢房屋的走廊。
114、连楼是指:连接两幢房屋的楼房。
115、过街楼是指:底层局部为通道的楼房。
116、架空通廊是指:指以两端房屋为支撑,有围护结构,有顶盖无支柱的架空通道。
117、围护结构是指:将空间竖向分割成相对独立,不易通行的两个或多个部分的实体,起隔离作用。
118、墙和栏杆算不算围护结构:算。
119、基地面积是指:一个小区总的占地面积。
120、间距是指:建筑平面外轮廓线之间的距离。
121、国家间距标准的比例是:楼高:间距=1:1.2。
122、国家日照标准是:2个以上居住空间大寒日底层满窗连续日照不低于1小时,全天满足2小时。
123、结构面积是指:房屋建筑中外墙、内墙、柱等结构构件所占面积的总和。
124、公用面积是指:住宅楼内为住户方便出入,正常交往而设置的公共走廊、楼梯、电梯间等所占面积总和。
125、公用面积是如何分摊的:按栋或单元户数面积按比率分摊。
126、套内建筑面积是指:套门内范围的建筑面积。
127、套内建筑面积包括:套内使用面积、套内墙体面积和阳台建筑面积。
128、套内使用面积是指:指套内住户独自使用的面积。
129、套内使用面积的计算包括:卧室、厨房、卫生间、过厅、起居室、内走道、阳台、壁柜等净面积的总和。
130、套内墙体面积是指:套内使用空间周围的维护或承重墙体或其它承重支撑体所占的面积。
131、套内墙体面积的计算:全部。
132、各套之间的分隔墙按多少计入套内墙体面积:一半。
133、套与公共建筑空间的分割墙以多少计入套内墙体面积:一半。
134、外墙以多少计入套内墙体面积:一半。
135、套内自由墙体以多少计入套内墙体面积:全部。
136、套内阳台建筑面积是指:阳台外围与房屋外墙之间的水平投影面积。
137、公用建筑面积是指:各产权主体共同占有或共同使用权的建筑面积,指各套(单元)以外为各户共同使用,不可分割的建筑面积。
138、容积率是指:项目规划建设用地范围内全部建筑面积与规划建设用地面积之比。
139、一个项目总建筑面积为64000㎡,占地面积为40亩,容积率是多少:2.4
140、建筑密度又称:建筑覆盖率。
141、建筑密度是指:项目用地范围内所有基底面积之和与规划建设用地之比。
142、人口毛密度的计算公式:人口毛密度=小区内总居住人数÷小区内占地面积。
143、平均每平方米造价(元):平均每平方米造价=建筑物总造价÷建筑面积。
144、使用面积系数K1(%):使用面积系数=总使用面积(平方米)÷总建筑面积(平方米)×100%。
145、居住面积系数K2(%):居住面积系数=总居住面积(平方米)÷总建筑面积(平方米)×100%。
146、绿地率:指公共绿地、宅旁(宅间)绿地、公共服务设施所属绿地和道路绿地等四类绿地面积的总和占居住区用地总面积的比率。
147、公共绿地的介定:最小的要求是宽度不小于8米,面积不小于400平方米,
148、哪些绿化不能算入绿地面积:距建筑外墙1.5米和道路边线1米以内的用地,地下车库、化粪池等地表覆土达不到3米深度的设施不能计入。
149、绿化覆盖率:所有绿化面积与建设用地面积之比。即绿化面积÷基地面积×100%
150、绿化覆盖面积:所有植被垂直投影面积的总和。
151、得房率:指套(单元)内建筑面积与套建筑面积的比率。
152、公共能耗:是小区共用部位、共用设备和公共设施及在公共性服务中所发生的水、电、煤等能源消耗。
153、公共能耗费:因公共能耗而产生的费用
154、公共能耗费由谁承担:由全体业主承担。
155、规划形态是指:项目的具体建筑构成。
156、单元式住宅:是指在多层、高层楼房中的一种住宅建筑形式
157、居住单元:每个楼梯的控制面积称为一个居住单元。
158、一梯几户是指:一个单元里平层有几户的俗称。
159、房型(户型):是指一套住宅由多少卧厅、厨、卫等组成的总称。
160、面积配比:指的是各种房型面积在项目或单元中所占比例的多少。
161、房型配比:指的是各种房型在项目或单元中所占的比例的多少。
162、阁楼:是指位于房屋坡屋顶下部的房间。
163、普通住宅:是指按一般民用住宅标准造的居住用住宅。
164、准现房:准现房是指房屋主体已基本封顶完工,工程正处在内外墙装修和进行配套施工阶段的房屋。
165、居住组团:指一般被小区道路分隔,配建有居民所需的基层公共服务设施的居住生活聚居地。
166、公寓:是指二层以上供多户人家居住的楼房建筑。
167、纯办公楼:是指专为各类公司的日常营运提供办公活动空间的大楼。
168、商场:是指规划为对外公开进行经营的建筑物。
169、综合楼:是指兼有住家、办公甚至商场的大楼。
170、商住住宅:是住宅观念的一种延伸,它属于住宅,但同时又融入写字楼的诸多硬件设施,使居住者在居住同时又能从事商业活动的住宅形式。
171、别墅:是指在郊区或风景区建造的供住宿休养用的花园住宅。
172、联排别墅:三户或三户以上连体的别墅。
173、双拼别墅:二户连体的别墅。
174、独栋别墅:单楼独栋的别墅。
175、跃层式产品:住宅占有上下两层楼南,卧室、起居室、客厅、卫生间、厨房、及其它辅助用房可以分层布置,上下层之间的交通采用户内独用小楼梯联接。
176、跃层式产品的优点:跃层式住宅的优点是每户都有较大的采光面,通风较好,户内居住面积和辅助面积较大,布局紧凑,功能明确,相互干扰较小。
177、复式产品(LOFT):在建造上仍每户占有上下两层,实际是在层高较高的一层楼中增建一个夹层,两层合计的层高要大大低于跃层式住宅。
178、错层式住宅:是指楼面高度不一致错开之处有楼梯联系的住宅。
179、SHOPPING MALL:大型购物广场的英文名称。
180、共有房产:共有房产是指某一房产属于两个或两个以上的所有人共同所有。
181、半地下室:是指房间地面低于室外地平面的高度超过该房间净高的1/3,且不超过1/2者。
182、地下室:地下室是指房间地面低于室外地平面的高度超过该房间净高的1/2者。
183、一地下室室内净高2.6米,2米低于室外地平面,属于半地下室还是地下室:属于地下室。
184、商品房验收合格指的是:单体(即单幢楼盘)验收合格。
185、商品房综合验收合格指的是:包含所有配套设施在内的全部建筑物的验收合格。
186、空鼓:局部面与基层没有胶合剂或胶合剂没有起作用。
187、地基:建筑物下面直接承受建筑物重量的土层称为地基。
188、基础:建筑物的最下端与土壤直接接触的部分称为基础。
189、基础的作用:基础的作用是承受建筑物全部重量并将之分散传递给地基。
190、墙体是构件,也可以是构件:是维护分割构件,同时也可以是承重构件。
191、在一般砖混结构房屋中,墙体也是主要的:承重构件。
192、停车场:指在建设用地内为停放机动车和非机动车须配置的场地。
193、停车场小型机动车位面积计算:按每车位25平方米计算。
194、自行车位按每车位多少平方计算:1.2平方米计算。
195、商品房销售面积又称之为:套建筑面积
196、套建筑面积包括哪两部份:套内建筑面积和分摊的公用建筑面积。
197、商品房预售许可证是由什么单位向什么单位发放的一项证书:是房地产管理部门向房地产开发公司颁发的一项证书。
198、商品房预售许可证的作用是:用以证明列入证书范围内的正在建设中的房屋已经可以预先出售给承购人。
199、契税是指:房屋所有权发生变更时,就当事人所订契约按房价的一定比例向产权承受人征收的一次性税收。
200、公共维修基金是指:住宅楼房的公共部位和共用设施、设备的维修养护基金。
201、公共维修基金的交纳人是:购房人。
202、公共维修基金何时交纳:在交房时交纳。
203、印花税是指:印花税是对经济活动和经济交往中书立、领受凭证征收的一种税。
204、居住用地使用年限:70年。
205、商业用地使用年限:40年。
206、工业用地使用年限:40年。
207、综合用地使用年限:50年。
208、土地使用年限届满后怎么办:业主可以在继续交纳土地出让金或使用费的前提下,继续使用该土地。
209、申办产权需具备哪些资料:审核后购销合同一份、收件收据、产权申请登记表、产权登记发证审批表、房屋所有权情况调查表、测量后的正式图纸。
210、办理产权需交纳哪些费用:产权登记费、勘丈测绘费、工本费。
211、房地产产权初始登记是指:对未经登记机关确认其房地产权利,领取房地产权利证书的土地使用权及建筑物、附着物的所有权进行的登记。
212、房地产登记是指:房地产产权登记。
213、房地产登记的种类:分为初始登记、转移登记、抵押登记、变更登记、其它登记。
214、什么情形属于房地产变更登记:
(1)地产使用用途改变;
(2)权利人姓名或名称发生变化的;
(3) 房地产座落名称或房地产名称发生变化的;
(4)建筑物、附着物倒塌、拆除。
215、房地产登记是以什么单位进行登记的:是以一宗土地为单位进行登记的。
216、申请房地产登记可否委托他人代理:可以委托他人代理。
217、由代理人办理申请房地产登记的,应向登记机关提交什么材料:申请人的委托书。
218、通过买卖、交换、赠与将房地产转移给他人的法律行为称之为:房地产转让。
219、房地产转让时其他公用设施是否一起转让:转让人对其他公用设施所拥有的权益同时转移。
220、在什么情况下房地产开发项目可以交付使用:房地产开发项目竣工,经验收合格后,方可交付使用;
221、未经验收或者验收不合格的房地产开发项目可否交付使用:不得交付使用。
222、预售面积是指:预售面积是指全部按建筑设计图上尺寸计算的房地产建筑面积。
223、预售面积只供什么情况下使用:只供房地产预售时使用。
224、竣工面积是指:竣工面积是指房地产竣工后实测的面积。
225、商品房预售须符合哪些条件?:
(1)交付全部土地使用权出让金,取得土地使用权证书;
(2)有建设工程规划许可证;
(3)按提供预售的商品房计算,投入开发建设资金达到工程建设总投资的25%以上,并已经确定施工进度和竣工交付日期;、
(4)向县级以上人民政府房产管理部门办理预售登记,取得商品房预售许可证明。
226、哪些情况下预售房购买者可以要求取消预售房合同:
(1)房屋开发公司不能按照原定日期交付预购房屋;
(2)建成后的房屋实际面积与预售房合同确定的面积不相符;
(3)建成后房屋建筑的材料与预售合同所列建材不相符。
227、五证是指:《国有土地使用证》、《建设用地规划许可证》、《建设工程规划许可证》、《建设工程开工证》、《商品房预售许可证》。
228、国有土地使用证:是证明土地使用者向国家支付土地使用权出让金,获得了在一定年限内某块国有土地使用权的法律凭证。
229、建设用地规划许可证:是建设单位在向土地管理部门申请征用、划拨土地前,经城市规划行政主管部门确认建设项目位置和范围符合城市规划的法定凭证。
230、建设工程规划许可证:是有关建设工程符合城市规划要求的法律凭证。
231、二书是指:《新建住宅质量保证书》和《新建住宅使用说明书》。
232、房地产抵押是指:指债务人或第三人(抵押人)以其合法拥有的房地产作为担保物向债权人(或押权人)提供债务履行担保的行为。
233、房地产按揭是否属于房地产抵押的一种形式:是。
234、申请抵押登记应提交什么资料:
(1)《房地产抵押登记申请书》;
(2)委托书;
(3)房地产证;
(4)夫妻双方身份证、户口簿、结婚证或未婚姻证明;
(5)商品房买卖合同和个人住房借款合同。
235、贷款期限在1年内的如遇利息调整如何处理:不做调整。
236、贷款期限在1年以上的如遇利息调整如何处理:于下一年1月1日开始,按相应期限档次利率执行新利率。
237、贷款人提前偿还贷款时本息如何计算:提前清偿的部分在以后期限不再计息,此前已计收贷款利息不作调整。
238、银行按揭是指:购房抵押贷款,是购房者以所购房屋的产权作抵押,由银行先行支付房款给发展商,以后购房者按月向银行分期支付本息。
239、个人住房按揭需提交哪些资料:购房身份证、户口簿、结婚证原件及复印件(未婚证明原件)、 收入证明(个体户则提供营业执照及税票)、已首付购房款收据原件及复印件、购房合同、贷款行的活期存折、贷款申请书、个人住房借款合同、借款借据、委托银行扣收购房还款协议书、住房抵押承诺书。
240、住房公积金是指:单位为其在职职工缴存的长期住房储金。
241、公积金贷款是指:由城市住房资金管理中心委托银行向购买自住住房的公积金交存人发放的贷款。
242、公积金贷款担保费用计算公式:贷款金额×贷款年限×千分之0.75。
243、什么情况下公积金贷款担保服务费可有优惠:首次购买普通自住房和改善型住房的客户在申请公积金(组合)贷款时。
244、公积金贷款担保服务费优惠幅度是:减免40%。
245、申请住房公积金贷款的条件:凡住房公积金连续缴存6个月以上或累计缴存公积金一年以上, 并且目前仍在缴存公积金,才有资格申请。
246、办理公积金贷款应提供哪些资料:身份证、户口簿、结婚证、收入证明、公积金卡、审核后购房合同一份,首付款票据。
247、组合贷款是指:公积金贷款与商业贷款的合称。
248、北京市限购政策:连续满五年的社保或五年的纳税申报记录。
249、目前住房公积金贷款最高额度为:80万元。
250、存量成套住房公积金贷款首付款比例为:30%。
251、90平方米以内(含)商品住房公积金贷款首付比例为:30%。
253、什么情况下可再次申请办理住房公积金贷款:借款申请人还清住房公积金贷款后。
254、契税是以什么价格为基数收取的:总房价。
255、契税税率为:90㎡以下的1%;90~140㎡为1.5%;140㎡以上为3%。
259、纯企划是指:由发展商出广告费,代理公司根据项目的特点,来为这个项目进行一系列的广告策划,不包括现场业务。
260、企划代销是指:由发展商提供广告费用,我们公司根据这个项目的特点给这个项目重新定位,从前期的案前准备、广告策划以及现场的销售进行一系列正题的运行。
261、包柜是指:代理销售者或公司仅负责销售,而企划则由其它的广告公司负责。
262、包销是指:由代理公司来承担广告费用的一种代理形式。
263、个案是指:房地产项目。
264、开盘:一个项目正式公开发售。
265、销售率:指售出的户数占可销的总户数的比例。
266、起价:是指商品房在销售时各单元或整个项目销售价格中的最低价格。
267、均价:单元或整个项目总销售额除以可销售面积得出的价格。
268、基价:经过核算而确定的每平方米的基本价格。
269、销售价:以基价增减楼层和朝向差价后得出的价格。
270、总价:总价是指每套房子的单价乘以面积所得出的价格,是购房者购买该套房子所要付出的全款。
271、定金:只是预付款的一部分,起到担保债权的作用。
274、SP的中文解释:销售促进。
275、SP是指:一种个人或团体用以促进成交或营造现场热烈气氛的炒作行为。
276、DSP:有一定针对性的网路弹窗广告。
277、PR:用以提升企业和产品形象的公关活动。
278、CF:电视广告。
279、DM:一种对于目标客源进行专门邮寄的邮政专递广告。
280、POP:指树立在户外的,大型的平面看板广告。
281、NP:报纸广告。
282、VI:平面广告表现的总称。
283、CI:企业形象表现的总称。
284、SOWT:个案的优势、劣势、市场威胁和市场机会的英文简写。
285、销海:用以促进销售的单张平面印刷海报。
286、夹报:一种跟销售海报类似的平面印刷品,用以夹在各类报纸中做宣传。
287、KT板:售楼处现场内布置的一种表现企业和产品形象的看板。
288、LOGO:展现产品形象和特色的标志。
289、鸟瞰图:从空中俯视的整个区域的效果表现图。
290、墨线图:单个产品或楼层的平面表现图,一般会标明比例及尺寸。
291、家配图:在墨线图的基础上配置上家具的平面效果表现图。
292、效果图:一种表现建筑外立面、小区景观等的平面图片。
293、地理位置图:一种表明个案所处位置的平面表现图。
294、交通表现图:一种表明个案周边交通情况的平面表现图。
295、生活机能图:一种表明个案周边生活、休闲、娱乐场所、学校、金融设施等的平面表现图
296、房型单片:印有单个房型或家配图的单片印刷图纸。
297、楼书:对小区的基本情况、发展商、产品、配套设施、智能化等做全面介绍的印刷文本。
298、道旗:沿马路设置在灯杆或其它立杆上的宣传旗帜。
299、灯箱:一种有内部灯光设置的,用以宣传企业和产品形象的广告表现物,一般为箱体结构。
300、高炮:一种不依附建筑物,用钢管或钢架等直接在空地上树立起来的巨大的广告物。
301、软文:直接以文字表达,着重企业形象推广和个案报导的广告形式。
302、硬广告:以直觉的平面表达形式(如效果图、房型图),配以少量的文字,直接述说企业或产品形象的广告手法。
303、控台:销售现场用以行政作业或控制销售速度、现场气氛、SP活动等的操作台。
304、BY位表:业务人员轮流接待客户的顺序表。
305、来访登记表:记录每组来访客户基本信息及购房需求的表格。
306、来电登记表:记录客户来电询问重点及需求的表格。
307、日报表:记录销售现场当天销售情况及人员出勤、资金流量情况和突发事件的综合表格。
308、周报表:记录销售现场一周销售情况及人员出勤、资金流量情况和突发事件的综合表格。
309、月报表:记录销售现场每月销售情况及人员出勤、资金流量情况和突发事件的综合表格。
310、销控表:综合记录现场销售情况及所剩房源的表格。
311、底价:一般为开发商开发成本和期望收益合成的销售价格。也指代理公司与开发商约定的合作最低销售价格。
312、表价:现场或对外的公开报价(一般会在底价上加上一定的百分比)。
313、佣金:业务人员根据销售业绩及提成比例所得的收入。
314、主力户型:个案中最为主要或最多的户型。
315、主力面积:主力户型的面积。
316、去化:指个案的销售情况。
317、利多:指个案的优点或主要卖点。
318、利空:指个案的缺点或明显不足点,也是个案的弱点。
319、市场调研:对相关项目的市场信息进行系统的收集、整理、记录和分析的过程。
320、市场调查包括哪几项:环境分析、产品分析、价格分析、去化分析、客源分析、业务分析、媒体分析、综合分析。
321、环境分析:包括区位情况、交通情况、配套设施等。
322、产品分析:包括基地情况、经济指标、房型配比、面积配比等。
323、价格分析:包括单价范围、总价范围、付款方式、折扣情况等。
324、去化分析:包括去化顺序、去化特征、去化抗性等。
325、客源分析:包括区域划分、客源层次、消费意图等。
326、业务分析:包括业务配备、业务能力、业务执行等。
327、媒体分析:包括媒体选择、宣传模式、主要述求等。
328、综合分析:包括优势分析、劣势分析、综合结论等。
329、计算全部建筑面积有哪些,例出5种:
房屋、夹层、插层、技术层、楼梯、电梯间、通道、门厅、回廊、楼梯间、电梯井、垃圾道、管道井、电梯机房、斜面构屋顶2.20米以上的部位、挑楼、全封闭的阳台、室外楼梯、通廊、地下室、半地下室、门廊、门斗、、车棚、货棚等。
330、计算一半的建筑面积有哪些,例出5种:
有盖无柱的外走廊、檐廊、单排柱的车棚、货棚、站台、未封闭的阳台、建筑物外有顶盖,无柱的走廊、檐廊、建筑物间有顶盖的架空通廊等。
331、不计算建筑面积的有那些,例出5种?:
柱、垛、无柱雨篷、悬挑窗台、室外爬梯、屋顶水箱、建筑物上无顶盖的平台(露台)、游泳池、独立烟囱、油罐、贮油(水)池、地下人防干道、支线等。
332、分摊公用建筑面积的计算方法:分摊公用建筑面积=套内建筑面积×公用建筑面积分摊系数
333、公用建筑面积分摊系数计算方法:公用建筑面积分摊系数=公用建筑面积÷套内建筑面积之和
334、公用建筑面积计算方法:公用建筑面积=整幢建筑的面积-套内建筑面积之和-不应分摊的建筑面积
335、哪些公用面积应分摊,例出5种:室内外楼梯、内外廊、公共门厅、通道、电梯、配电房、设备层、设备用房、结构转换层、技术层、空调机房、消防控制室、为整栋楼层服务的值班警卫室、建筑物内的垃圾房以及空出屋面有围护结构的楼梯间、电梯机房、水箱间等。
336、哪些公用面积不能分摊,例出5种:不能分摊的公用面积为底层架空层中作为公共使用的机动车库、非机动车库、公共开放空间、城市公共通道、沿街的骑楼作为公用开放使用的建筑面积、消防避难层;为了整栋建筑物使用的配电房;公民防护地下室以及地下车库、地下设备用房等。
声明:本文由入驻焦点开放平台的作者撰写,除焦点官方账号外,观点仅代表作者本人,不代表焦点立场。


