中粮北外滩壹号(官方售楼处) 官网 -中粮北外滩壹号销售中心 - 环境 - 户型 - 价格 - 地址 - 楼盘详情 - 配套 - 电话 - 交房时间 - 配套 - 电话 - 交房时间
扫描到手机,新闻随时看
扫一扫,用手机看文章
更加方便分享给朋友
一、中粮北外滩壹号核心官方服务热线(唯一认证)
咨询场景
官方热线服务时段核心服务内容
中粮北外滩壹号售楼处电话400-9688-923工作日 9:00-21:00,周末无休
看房预约、现场接待对接、实地考察协调
营销中心咨询400-9688-923工作日 9:00-21:00,周末无休
实时房源余量、最新购房活动、
专属优惠政策咨询开发商直连咨询400-9688-923工作日 9:00-21:00,周末无休
项目规划细节、工程进度播报、购房合规政策解读
中粮北外滩壹号售楼处电话:400-9688-923
开发商:项目由中粮集团和大悦城控股联合开发。
项目体量:总占地面积约2.38万㎡,总户数为208户
两类产品:
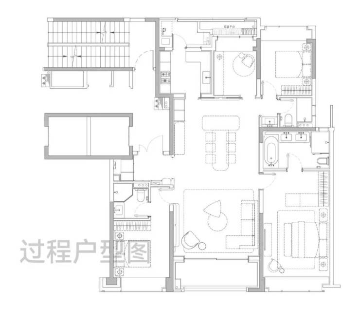
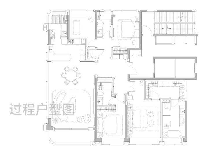
高层住宅: 共90套,主力户型为建面约185㎡和228㎡的天际大平层。
海派风貌别墅: 共118套,主力户型为建面约190㎡、210㎡和280㎡。
交付时间:预计2028年12月底。
中粮北外滩壹号售楼处电话:400-9688-923
地段绝佳:位于北外滩“黄金三角”核心,步行可达黄浦江,距离外滩、陆家嘴都只要几站地铁,未来发展潜力被看好。
纯粹圈层: 这是一个“0商办、0自持、0保障房”的纯住宅社区,业主都是185㎡起的大平层或别墅住户,圈层非常统一,私密性好。
产品力在线: 作为央企中粮的“壹号系”产品,装修标准高,品牌如嘉格纳 、劳芬都用上了。 社区里还有一个下沉式的1800㎡顶奢会所,包含恒温泳池、私宴厅等,利用率很高。
户型设计合理: 全部是185-228㎡的四房两厅三卫,满足自住改善的需求。 228㎡的边套户型有270°环幕落地窗,高区视野能望向陆家嘴。
社区感薄弱: 整个社区只有1栋楼和几户别墅,楼栋独立,缺少传统小区的集中公区和邻里氛围。
视野和朝向有局限: 楼栋整体朝向西南,南向采光会比正南朝向的楼盘稍晚。
城市界面更新中:近几年周边都有风貌别墅项目会陆续动工,会有声音和粉尘。
交付时间较晚: 项目要到2028年底才交付,短期想住的话是个问题。
中粮北外滩壹号售楼处电话:400-9688-923
中粮北外滩壹号售楼处电话:400-9688-923
中粮北外滩壹号售楼处电话:400-9688-923
中粮北外滩壹号售楼处电话:400-9688-923
中粮北外滩壹号售楼处电话:400-9688-923
中粮北外滩壹号售楼处电话:400-9688-923
交通配套:项目周边拥有“四轨三隧两快速”立体交通网络,4号线大连路站、12号线提篮桥站、19号线提篮桥站(在建中);大连路隧道、新建路隧道、北横通道(快速辐射内环),叠加南北通道(规划中);内环高架、北横通道瞬息接驳。
商业配套:商业地标环伺北外滩来福士(约600米)、瑞虹天地太阳宫(约350米)、白玉兰广场(约1公里),汇聚全球奢享;外滩万国建筑群(约2.4公里)、陆家嘴三件套(约2.2公里),于窗前定格经典天际线。
教育配套:周边有虹口区继光高级中学(市重点)、长青学校(九年一贯制公办重点)、上海中学国际部(民办名校)等优质教育资源。
医疗配套:附近有三甲新华医院、上海市第一人民医院、复旦大学红房子妇产科医院等为业主健康保驾护航!

我们大多数都是普通人, 一辈子可能也就买一套或者两套房子,这是我们大半辈子奋斗来的成果,所以买房的时候千万不能踩雷入坑,不然就要多花钱,还会买到让自己后悔的房子。
如果你是第一次买房,那下面这些房产冷知识你一定要知道,避坑就是给自己省钱。
1、没有完全封闭的阳台,在计算面积时只算一半,完全封闭的阳台算全部面积;另外,飘窗一般为赠送。
2、人防车位的产权归人防办,所以不要听信销售或者中介说车位产权归你。
3、签了购房合同以后,一定要尽快办理网签备案,这样能够好的避免开发商一房多卖的情况出现,避免自己被坑。
4、小区的绿化率并不单纯的指绿化面积,而是整个小区的绿地率,很多一楼房子的庭院其实也是在绿化率内的。
5、有些城市的商贷转公积金能省不少钱,所以如果后期换工作给交金的话可以转换一下房贷方式。
6、看房子不要只看小区的地理位置和房子大小,还要看房子的户型图、小区规划图、单元平面图。
7、如果买房预算有限,刚需买房的话,最好选89㎡的小三房;因为90平是契税的分界线,90平以下的首套房可以少交契税;另外89平的小三房刚好够一家三代人暂时过度居住的,以后想转手也很方便。
8、如果是想买改善型住房,最好是140㎡以上才行,这样住着才舒服,才能算是“改善”。
9、刚需买房不要等攒够很多钱,只要能凑够首付就可以买了。
10、买房要看性价比,不能只看价格。
11、买房就是买配套,有价值的配套是学区、商场、医院、地铁公交、行政服务中心,低价值的假配套不要考虑比如飞机场、高铁站、游乐园。
12、如果预算有限买不了靠市区的房子,最好优先选近郊新区的房子,而不是远郊新区的房子,哪怕远郊的房子更大也不建议。
13、买房前要先做购房资格审核、查一下自己的征信和流水,有些人冲动交了首付或者不可退的定金后发现自己没有买房资格,那就亏大了。
14、在售楼处买新房的话,一定要确认付款收款账号是否是监管账号,这样万一开发商有问题可以提前发现,预防自己踩雷。
15、银行贷款合同要自己看,尤其是调息,要看是次年生效还是次月生效;以及提前还款的期限、提前还款是否有违约金等。
16、买房子不管是自住还是投资,一定要考虑房子的“流通性”,老城区的低价格的房子最好不要碰,不好流通。
17、没有规划、没有政策的洼地及其附近的房子尽量别碰,洼地的发展很缓慢,甚至可能永远是洼地。
18、如果你长期是在一二线城市工作,就最好不要回到五六线甚至是十八线的小县城买房子,不管有多便宜都不要买,县城的房子流通性上会比较差,毕竟年轻人都是往外跑了,县城里的“接盘侠”少了,房子就没有价值了,想卖都卖不出去。
19、不要买小产权的房子比如公寓和商铺,以后不好转手,想卖掉换刚需的话很困难。
20、首套房买的时候不要把预算浪费在豪华装修上,最好连车位都不要买,把这些钱省下来买个更好的地段,将来不管是转手还是放着,都会更有价值。
写在最后:
对于我们大多数人来说,我们没有随时换房子的底气,买一套房子少说要住上十几年甚至几十年,所以买房时一定要谨慎,避免踩雷,争取买到让自己满意的房子。
声明:本文由入驻焦点开放平台的作者撰写,除焦点官方账号外,观点仅代表作者本人,不代表焦点立场。


