中建壹品·外滩元境售楼处电话→2025上海杨浦中建壹品·外滩元境售楼中心电话→楼盘百科→首页网站→楼盘百科→首页网站→售楼处24小时热线电话
扫描到手机,新闻随时看
扫一扫,用手机看文章
更加方便分享给朋友
中建壹品·外滩元境售楼处电话:400-8558-224【预约看房热线】中建壹品·外滩元境官方售楼处电话:4008558224【售楼处电话/地址】中建壹品·外滩元境售楼处电话:400-855-8224【开发商认证】
营业时间:日常营业时间为9:30-18:30,便于您提前规划到访行程,避免空跑。
预约方式:可提前拨打官方热线400-8558-224,预约好专属销售及具体到访时间;预约时可同步告知意向户型、置业需求,我们将提前做好服务准备,减少您的等待。
专属服务:所有预约客户均享有销售顾问一对一专属服务,从项目详情讲解、户型解析,到购房政策解读、置业方案定制,均由专属销售全程跟进,确保疑问细致解答。
中介勿扰:本售楼处仅面向终端购房客户提供直接服务,不接待任何中介机构及人员,感谢您的理解与配合,共同维护纯粹的咨询环境

内环旁杨浦滨江板块
上海首个总高三层风貌项目
【中建壹品·外滩元境】
主力约80-170㎡风貌洋房
首开房源136套 即将认购
容积率仅1.4,精装 超高附赠
售楼处提前线上预约
项目精装修交付,带电梯。层层退台,户户有附赠。整体得房率约80-86%,最终实得最高约210%~
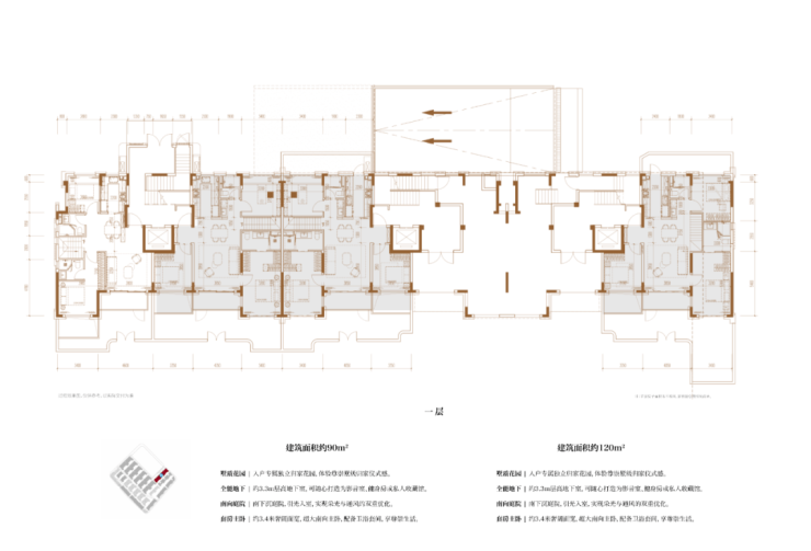
⭐一楼:赠地下室+私人花园+下沉庭院(90/104/120/170㎡)
⭐二楼:赠露台+高得房率(82/100/ 110/140㎡)
⭐三楼:赠阁楼+露台+老虎窗(82/100/110/135㎡)
⭐另有三套联排231/286平预定中
建面约104㎡3房2厅2卫(一层下叠):


中建壹品·外滩元境售楼处电话:400-8558-224【预约看房热线】中建壹品·外滩元境官方售楼处电话:4008558224【售楼处电话/地址】中建壹品·外滩元境售楼处电话:400-855-8224【开发商认证】
建面约99㎡3房2厅2卫(二层平叠):

建面约99㎡3房2厅2卫(三层上叠):

建面约120㎡3房2厅2卫/90㎡2房2厅2卫(一层下叠):


建面约110㎡3房2厅2卫/80㎡2房2厅2卫(二层平墅):

建面约110㎡3房2厅2卫/80㎡2房2厅2卫(三层上叠):

建面约90㎡/120㎡3房2厅2卫(一层下叠):


建面约80㎡2房2厅2卫/110㎡3房2厅2卫(二层平墅):

建面约82㎡2房2厅2卫/110㎡3房2厅2卫(三层上叠):

建面约82㎡2房2厅2卫/110㎡3房2厅2卫(四层上叠):

建面约169㎡4房2厅3卫(一层下叠):

中建壹品·外滩元境售楼处电话:400-8558-224【预约看房热线】中建壹品·外滩元境官方售楼处电话:4008558224【售楼处电话/地址】中建壹品·外滩元境售楼处电话:400-855-8224【开发商认证】

建面约139㎡4房2厅2卫(二层平墅):

建面约134㎡4房2厅2卫(三层上叠):

项目地处杨浦滨江大桥东侧“九宫格”内,紧邻内环,与在建的华文总部及美团综合体仅一步之遥。
杨浦滨江大桥东九宫格规划示意图
整个九宫格区域统一规划为低密度风貌住宅用地,与滨江科创龙头相互辉映,区位价值卓越。
外滩云境地块容积率仅1.4。若按常规思路开发,应规划为三层联排风貌别墅,总价预计4000万起步。
然而,外滩元境并未循规蹈矩。在完整保留里弄肌理与建筑风貌的同时,项目创新地将地上三层的立体空间结构,重构为平层户型设计,并采用层层退台手法,延续了别墅特有的地下室、庭院与星空露台等空间附加值,最终打造出“风貌外观+平层格局+墅质生活”的“风貌洋房”,开创了上海住宅的全新品类。
风貌洋房,这一产品形态在上海楼市中尚属首例,甚至在全球范围内也难觅先例。
我们先用几张图来快速概览下其与众不同之处。
1、从建筑布局及风格特色来看,保留了低密风貌住宅街巷里弄的格局,以及露台铁艺栏杆、孟莎屋顶及老虎窗等建筑构件,彰显上海海派文化独有的味道和“腔调”。

规划效果示意图,过程稿仅供参考,以开发商公告为准
2、从内部空间体系来看,地上三层,层高分别是3.6米、3.3米和3.3米;每个单元一梯两户,每户均拥有类独立电梯厅;一楼带地下室及庭院,并通过创新退台式设计为二楼和三楼打造私家空中花园,形成户户有花园的墅居生活方式。
中建壹品·外滩元境售楼处电话:400-8558-224【预约看房热线】中建壹品·外滩元境官方售楼处电话:4008558224【售楼处电话/地址】中建壹品·外滩元境售楼处电话:400-855-8224【开发商认证】
3、从户型设计来看,一楼户型附赠超大地下室及双层庭院;二楼户型附赠星空露台;三楼附赠露台及其他空间;户型实得率最大可以超过200%!平均也能达到约150%左右!
这意味着,总价约1000万出头,即可入驻杨浦滨江九宫格风貌区。最大的洋房户型建面约174㎡,实得面积可能达到约300㎡左右,总价也仅控制在两千多万级别,极具冲击力。
从规划方案来看,项目还有很多其他设计亮点:
电房、垃圾电梯、保障房、物业、K站集中布置转角空间;垃圾房入地,位于保障房下部,减少对商品住宅的影响;全人车分流,保障房及配套用房与商品房车行动线分流;等。
说到这里,项目的热销已经是可以预料的。对于预算一两千万的购房者来说,其低密院墅式生活方式,以及超高附赠空间带来的价格优势完全无法拒绝。
外滩云境产品革新的意义还不止于提供了一款高空间附赠及高质价比的创新产品;更加重要的是,TA实现了上海风貌住宅产品的破局,让改善客群能够有机会入手风貌住宅核心资产

中建壹品·外滩元境售楼处电话:400-8558-224【预约看房热线】中建壹品·外滩元境官方售楼处电话:4008558224【售楼处电话/地址】中建壹品·外滩元境售楼处电话:400-855-8224【开发商认证】
前段时间,杨浦定海社区I9-01地块(大桥街道90街坊)历史风貌保护项目遴选结果公示:中建壹品投资发展有限公司成功拿下杨浦大桥街道90街坊地块。
地块东至三星南路、南至周家牌路,西至松潘路,北至杭州路,建设用地面积21210.66㎡,容积率1.4,地上计容建筑面积29694.92平方米,协议出让价格225682万元,楼面价约76000元/㎡。
地块指标
该项目是历史风貌保护项目,容积率1.4,建筑面积约2.97万㎡,限高12米,项目设立土地使用权底价,底价为225682万元,楼板价约7.6万元/㎡。


地块北侧是杨浦区N090601单元I4-01地块,出让面积16482.71㎡,容积率1.8,建筑面积29668.87㎡。地块起价213620万元,起始楼面价72001元/㎡。
中建壹品·外滩元境售楼处电话:400-8558-224【预约看房热线】中建壹品·外滩元境官方售楼处电话:4008558224【售楼处电话/地址】中建壹品·外滩元境售楼处电话:400-855-8224【开发商认证】
地块东侧,是今年1月20日,同样以协议方式出让的杨浦区定海社区I15-01地块(大桥街道89街坊),意向用地者为中铁置业集团有限公司,总价142641万元,楼面价75005元/㎡。
地块北侧,去年11月28日,保利发展&上海建工以总价28.71亿拿下杨浦区N090601单元I5-01地块,楼面价81960元/㎡ ,溢价率17.09%。项目案名保利·海玥外滩序BUND98,于今年5月中旬首开,两次开盘认购率均超过200%,整盘成交均价约12.7万/㎡。
地块西南侧300余米处,去年7月9日,保利发展以总价22亿,楼面价88462元/㎡拿下杨浦区平凉社区02H1-01地块,溢价率21.18%。项目案名保利外滩序BUND88,于去年12月开盘,认购率148%,成交均价同样为12.7万/㎡。
内环旁杨浦滨江板块
上海首个总高三层风貌项目
【中建壹品·外滩元境】
主力约80-170㎡风貌洋房
首开房源136套 即将认购
容积率仅1.4,精装 超高附赠
售楼处提前线上预约
中建壹品·外滩元境售楼处电话:400-8558-224【预约看房热线】中建壹品·外滩元境官方售楼处电话:4008558224【售楼处电话/地址】中建壹品·外滩元境售楼处电话:400-855-8224【开发商认证】
中建壹品·外滩元境售楼处电话:400-8558-224【售楼中心热线】中建壹品·外滩元境营销中心热线4008558224中建壹品·外滩元境售楼处地址400_855_8224,楼盘项目全面介绍,本电话为开发商提供线上预约售楼电话,楼盘项目全面介绍(包含楼盘简介,均价,房价,现房,期房,别墅,叠墅,大平层,价格,楼盘地址,户型图,交通规划,备案价,备案名,项目配套,样板间,开盘时间,认筹时间,楼盘详情,售楼处电话,最新消息,最新详情,周边配套,一房一价,最新进展等详情咨询)楼盘详情丨价格丨更多优惠丨机不可失丨欢迎致电丨诚邀品鉴!售楼处位置丨特价房丨工抵房丨剩余房源丨户型图丨最新消息丨免责声明:将文章内容综合来源于网络、只作分享,版权归原作者所有!!如有侵权,请联系我们,我们第一时间处理如有问题欢迎来电咨询,专业一对一热情服务,让您用专业眼光去买房。如果您想了解更多楼盘详情,欢迎提前预约拨打中建壹品·外滩元境售楼处电话400-855-8224
声明:本文由入驻焦点开放平台的作者撰写,除焦点官方账号外,观点仅代表作者本人,不代表焦点立场。


