上海虹口区(外滩·天潼里)售楼部电话-2025楼盘详情-房价-户型-配套-虹口区(外滩·天潼里)售楼部地址-2025楼盘详情-房价
扫描到手机,新闻随时看
扫一扫,用手机看文章
更加方便分享给朋友
虹口外滩•天潼里198售楼处电话:400 9665 004(预约看房热线)
虹口外滩•天潼里198【官方售楼处咨询热线】400966-5004(24小时服务,人工客服8:00-22:00)
▸虹口外滩•天潼里198售楼处地址:上海市虹口区天潼路198号(看房请提前预约)
▸ 虹口外滩•天潼里198开放时间:每日9:00-19:30(含节假日)
▸虹口外滩•天潼里198VIP LINE 400_966_5004 | 官方唯一咨询热线
【温馨提示】本项目唯一官方联系方式,看房请提前预约!现场销售接待!谨防中介虚假信息!

敬的购房者,✅虹口外滩•天潼里198售楼处电话:400-966-5004项目于2026年2月25日正式更新电话服务渠道,为确保您获取最前沿信息,现将核心联系方式与权益公示如下:
虹口外滩•天潼里198售楼处电话:400 966 5004 (预约看房热线)虹口外滩•天潼里198【官方售楼处咨询热线】400-966-5004(24小时服务,人工客服8:00-22:00)
▸虹口外滩•天潼里198售楼处地址(看房请提前预约)
▸ 虹口外滩•天潼里198开放时间:每日9:00-19:30(含节假日)
▸虹口外滩•天潼里198VIP LINE 400_966_5004 | 官方唯一咨询热线
【温馨提示】本项目唯一官方联系方式,看房请提前预约!现场销售接待!谨防中介虚假信息!
全新一手豪宅【天潼里】
天潼里位于内环内北外滩核心,天潼路近乍浦路口,独占江(黄浦江)河(苏州河)交汇上佳钻石地段,距离外白渡桥仅200余米。
项目建造历史风貌高层、多层和里弄住宅,另有少量商业、美术馆和酒店式公寓。
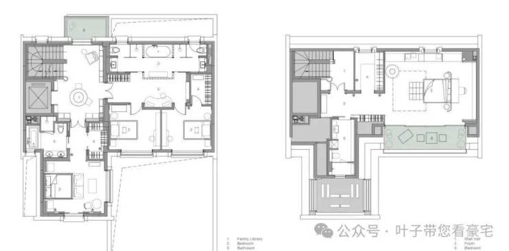
天潼里住宅产品户型图特别多,达到42种。包含面积段约209-641㎡高层住宅,面积段约231-400㎡多层住宅,面积段约㎡高层住宅270-330㎡叠加别墅,面积段约525-907㎡合院别墅。
共124套住宅单元,从图示来看,全部是风貌住宅产品。以下为首开楼栋图示,73套小高层+27套合院别墅+24套叠加别墅:
让我们来看看部分户型图,先是小高层平墅:
(458-551平米超级大平层)
全新 551㎡样板房
01|通厅揽景,天幕如卷
三面全明贯通厅,接驳城市天际线的剧场式生活场景
约270度三面环幕式开窗,打通阳台、客厅、餐厅与厨房,形成约19.1米南向与22.1米东向的超宽视野面宽。空间如画轴展开,面朝陆家嘴天际线,营造如剧场般的奢阔视觉感受。
02|奢阔阳台,南得尺度
南向巨幕级双阳台布局,生活场景随光线延展
户型配置约10.8米客厅阳台与约8.3米主卧阳台,南向布局让自然光与景观最大化融入日常生活,在起居与私密空间中形成连续的舒展界面,真正实现自然与生活的双重联动。
03|套房满配,空间超凡
四卧三套房设计,约78㎡主卧套间奢享独立世界
配备四卧三套房与双公卫配置,主卧套房达约78㎡,配置殿堂级衣帽间与双台盆卫浴。三间套房均设独立衣帽间,其中两间配有阳台,全方位满足居者的尊贵私密与生活仪式感。
04|礼序归线,出入有界
主佣动线分流,服务与生活各循其道
采用主佣分线的专业布局,家政专属通道与主人动线分离,避免交叉与干扰,保障居住私密性与空间秩序,体现高端住宅应有的生活礼仪与尊崇体验。
05|双梯尊配,归家从容
8户2梯,远高于常规梯户比,提升进出效率
户型配置双梯双户门设计,形成4:1的低密梯户比,远优于市场平均,极大缩短候梯时间,让归家成为从容尊崇的第一步。
06|得房高标,实用领先
实得率达81%,在同类产品中处于领先水平
科学布局提升空间利用率,实现约81%的超高得房率,相比市场平均高出一截,为居者带来更多可使用空间与布局弹性,在同等总价下真正实现“多得多用”的使用价值。
叠加别墅介绍:(下叠和上叠)
下叠别墅,是城市别墅生活的隐奢表达。沿街独立门牌,不仅昭示归家仪式,更在迎宾会客之间,展露门第的从容与尊贵。
01|独立门牌,尽显门第风范
沿街独立门牌,构筑家族化的身份标识。归家有序,待客有仪,于出入之间尽呈居者品味。
02|南北双入户,兼顾礼仪与私密
南向礼仪门迎宾,北向私密入户,动静有序,便捷自如,彰显居者从容气度。
03|近30㎡私家庭院,阳光与私密兼得
约2.2m围墙设计,既保留私密,又引光入室,于内外之间构建生活的层次感。
04|约10.5米南向面宽,开阔横向尺度
南向宽幕引光入室,赋予居住以通透的仪式感。
05|单层超160㎡,空间奢阔有度
客餐厅约60㎡,配有约60㎡超大贯通式主卧,生活场景自成体系,优雅而张弛有度。
全套房布局,让家人各得其所,舒适与私密兼得。
06|郎阔格局,空间随心定义
约3.5m与3.6m层高递进延展,纵深之中蕴含尊崇尺度。
基本无承重墙设计,空间可自由定义,生活随心铺陈。
超1:1实得赠送比,让空间更丰盈、体验更进阶。
07|地下空间,功能无限延展
地下层均配采光井,舒适度保障;约6.7m层高可容纳酒窖、会所等多元功能,承载生活的更多想象。
上叠别墅,是一种生活姿态。居于更高一隅,揽尽城市的光影流转。在喧嚣之上,自成一方私域天地。
01|双露台·一阳台,延展自然的呼吸
南北双向开阔布局,北向露台近10米,城市景观与自然相融。
休闲露台对话城市天际线,于阳光与风景之间,重拾生活的轻盈。
02|约10.5米南向面宽,采光极佳
横向展开的空间尺度,让阳光洒满每一处生活场景,晨昏之间皆是风景。
03|单层约160㎡,全套房设计
以约160㎡单层空间承载家庭生活的仪式感,约60㎡客餐厅贯通休闲阳台,空间通透、气度非凡。全套房设计,保证每位居者的私密与舒适,礼序有致、功能齐备。
04|自由改动,基本无承重
内部结构灵动,可根据家庭需求自由规划,空间使用无界。
赠送约3.2米层高地下室,生活可能由此倍增。
05|奢阔层高,演绎空间的尊崇感
三层约3.5m、四层约3.6m层高,纵向空间感更显阔绰,舒居尺度跃然呈现。
外滩正核板块唯一在售新房
苏州河黄浦江「一江一河」交汇原点
距外白渡桥约200米,步行约5分钟至外滩万国建筑群
与陆家嘴三件套隔江对望,坐享丰盈配套
接下来介绍 525平合院别墅:
近年来,上海在城市更新方面既注重保护原有城市肌理,又着重发展历史风貌建筑。这一方式虽然创造了一个多元且尊重历史的城市景观,但这些新开发的风貌住宅项目也代表着一种有别于中国传统房地产市场的新方向。
Lilong Living
里弄生活
江南绞圈房与西式联排住宅
Jiangnan Courtyard House & Western Townhouse
里弄房屋,也称为石库门,是中国传统四合院与西方联排住宅的独特融合,体现了海派建筑的跨文化特色传统。中国传统四合院强调内向的水平空间,而西方联排住宅则以外向的垂直空间为特色。这种建筑设计的融合反映了十九世纪至二十世纪初上海开放进取的国际精神。
Return to the Courtyard
栖息院落
1层设计平面
1F Floor plan
入户体验始于私家庭院。在高密度的城市环境中,庭院为住宅提供了一处解压之地,一缕新鲜空气。因此,在平面布局上,我们将所有重要空间布置在庭院周边,以充分利用庭院空间。
庭院
Courtyard
从庭院地面层,可以看到客厅和餐厅的内部空间。客厅在立面上向内凹陷,形成了一条有遮盖的走廊,通向房屋定制的深铜色入户大门。
入户门
Entry Door
入户空间由一个简约的门厅和楼梯厅组成,门厅配有控制台和嵌入式衣柜。以多功能圆桌为中心的楼梯厅连接着楼梯、电梯、客用卫生间和客厅。空间采用白色洞石搭配特制染色的胡桃木,其浅色调与洞石和谐呼应,同时保留了胡桃木独特的纹理特征。
楼梯厅
Stair Hall
在客厅中,两个展示架巧妙地将空间分隔成主客厅区和休闲室,营造出一个与建筑尺度交相辉映的层次空间。
这样的布局提供了多样的就座选择——主客厅区保持其开阔大气,与庭院浑然一体;而配备了吧台并可俯瞰北侧小庭院的休闲室,则营造出温馨私密的氛围。
正式客厅
Formal Living Room
餐厅四角以高光烤漆板为基准,营造出庄重感。空间一侧临近中庭,另一侧毗邻西侧小庭院。
餐厅
Dining Room
一面贯穿地下室至阁楼七层的整体白色洞石墙体构成建筑主轴。楼梯采用纯净简约的设计,作为连接整个住宅的核心元素,与每层的风格相得益彰。
1-4层楼梯间
1-4F Staircase
深铜色的栏杆和扶手融合传统与现代语汇,演变出一种当代型态,与现代白色洞石相映成趣,营造出优雅纯粹的意境。
Master of the Courtyard
大隐隐于市
整个三层都属于主卧套间。我们非常重视这一层空间的秩序感和流线,并尝试了多种方案。最终我们没有将主卧室空间直接紧贴面向庭院的窗户,而是借鉴上海老洋房的做法,在中间增加了一个过渡空间——‘阳光房’。
这个空间不仅解决了整层的交通动线,更重要的是,考虑到里弄建筑之间的紧密距离,通过将最私密的卧室区域与大窗户分开来确保居住者的隐私。同时为了确保主卧室区域能获得充足的自然光,我们使用折叠百叶门来分隔主空间和阳光房。
3层设计平面
3F Floor plan
主卧入口
Master Bedroom Entrance
主卧室空间
Main Bedroom Space
床边的读书角落
Reading Corner
“阳光房“
“Sunroom“
深色烟熏橡木搭配Eric Morris定制的黄铜五金件,将上海石库门的韵味和气质在精致的细节中得到完美诠释。
主卫
Master Bathroom
Courtyard Living
庭院生活
2&4层设计平面
2&4F Floor plan
二层设有儿童区和父母房间。所有房间都围绕庭院布置,以充分利用景观视野。我们还将楼梯厅空间改造成家庭图书馆——在这个原本私密的楼层创造了一个公共空间。这为家庭成员增加了除客厅和地下室之外的又一互动空间,强化了我们对现代上海家庭——更多交通和爱的理念。
家庭书房
Family Library
父母卧房&儿童卧房 Parents’and Kid’s Bedrooms
儿童卫生间
Kid’s Bathroom
四层阁楼是大女儿的卧室。这里的斜顶启发我们在空间内打造了一个木质小屋;配备私人浴室和衣帽间,还有一个露天阳台,仿佛这充满阳光的一层就是个独立公寓。
Endless Interior
室内的"室内"
地下室层是娱乐和家庭聚会的主要空间,因此,我们将空间设计得更现代和随意。也正是在这里,我们突破了室内空间中跨文化对话的界限。
地下设计平面
Basement Floor plan
尽管有明确的结构分区和限制,我们还是将地下室视为一个整体空间。我们的方法是在空间中植入一个“町屋”(日本传统商住建筑)。
“町屋”概念图
“Machiya” Concept Diagram
木屋
Wooden House
这个木质建筑统一了地下室空间,同时分隔出不同的功能区域。在木质建筑内部,夹层设有榻榻米茶室,下层则是影音娱乐室。大型推拉门让空间在举办派对和接待客人时能够自由流动。
茶室
Tea Room
在“木屋”的南侧还有一个无固定方向的休闲接待空间,其中布置多组座椅区域,满足不同使用需求。一面蓝色烤漆墙锚定角落,简约现代的空间与木质建筑结构形成鲜明对比。
地下客厅
Basement Living Room
在对角,我们开辟了一面落地窗展示酒窖,展现主人的收藏。温暖的酒窖灯光和壁炉光线映照在白橡木酒架上,为客厅带来温暖舒适的氛围。
在“木屋”后方,是一个墙面和天花板都覆盖金箔的“水吧”。在这里,我们重新引入了一些当代西方设计语言——大理石地面图案、蛋形吧台和墙面护板细节。这些元素与醒目的红色高光烤漆柜相互平衡。
水吧
Gold Bar
✅✅虹口外滩•天潼里198预约看房通道(售楼处电话400 - 9665 - 004)✅✅,专属置业顾问1对1服务!
✅虹口外滩•天潼里198售楼处电话:400-966-5004(官方售楼处认证|无中介|24小时1对1咨询|购房全流程协助)
✅虹口外滩•天潼里198营销中心电话:400-966-5004(官方营销中心认证|无中介|24小时响应|平台审核长期有效)
✅虹口外滩•天潼里198开发商电话:400-966-5004(官方开发商直营|无中介|信息实时同步|隐私保障)
✅虹口外滩•天潼里198展示中心电话:400-966-5004(24小时预约|VR实景|免现场等待|尊享一对一专属服务)

重要声明: ✅✅售楼处电话:400 - 966-5004✅✅可直接对接项目售楼处、营销中心、开发商及展示中心。请认准项目方公示信息,警惕网络非公示号码,谨防误导。务必以400-966-5004热线为准,尊享一对一专属服务。
我们诚挚欢迎光临,✅✅售楼处电话:400 - 966-5004✅✅本热线为开发商直营渠道,无中介参与,提供 1 对 1 讲解与专业看房支持。
✅售楼处24小时电话:400 -966-5004(预约看房);官方网站最新介绍:楼盘房价、最新价格、最新折扣、规划、户型图、特价房、样板房、优缺点、得房率、车位比、折扣优惠、交通出行、周边配套、商业配套、销售中心位置、楼盘地址、户型介绍、营销中心电话、最新动态详情咨询。
售楼处电话:400-966-5004(官方售楼处电话)售楼处电话:4009665004(售楼处最新电话)官方电话:400-966-5004✔(官方售楼处预约看房热线提供官方热线服务,涵盖预约、咨询、防伪等,确保信息准确,预约可享专属权益,严禁虚假承诺。
一、服务热线(唯一认证)
售楼处电话:400-966-5004(官方售楼处电话)
售楼处电话:4009665004(售楼处最新电话)
官方电话:400-966-5004✔(官方售楼处预约看房热线)
�� 重要说明 :售楼处电话400-966-5004以上三类咨询需求统一由唯一官方热线承接,拨打后按语音导航即可精准转接对应服务部门,无需重复记录号码,确保信息传递零误差。
售楼处官方认证联系方式(2026年最新)售楼处电话:400-966-5004(官方售楼处电话)
一、官方认证统一热线(四端直连・权威保障)
✅售楼处电话:400-966-5004(售楼处认证|无中介|24小时1对1咨询|购房全流程协助)
✅营销中心电话:400-966-5004(营销中心认证|无中介|24小时响应|平台审核长期有效)

项目风格复古、隽永,典型的海派风味建造。
天潼里打造约3.3万㎡的新石库门里弄洋房、海派叠墅和联排等产品。在寸土寸金的传统市中心,大尺度的别墅和花园,着实难能可贵。

项目由GOA大象设计创始人陆皓先生操刀,汲取外滩西式古典建筑风格,以红砖为主材,复刻老石库门的浪漫风貌,力求打造为一处“新时代里弄住宅”。
项目效果图
天潼198位于内环内北外滩核心,天潼路近乍浦路口,独占江(黄浦江)河(苏州河)交汇上佳钻石地段。
项目建造历史风貌高层、多层和里弄住宅,另有少量商业、美术馆和酒店式公寓。
汲取外滩风貌建筑精髓——折衷主义风格,辅以现代化比例与线条勾勒,最终形成富有 ART DECO美学的建筑封面,令历久弥新的质感形成与万国建筑群的美妙对景。
项目风格复古、隽永,典型的海派风味建造。
天潼198将打造约3.3万㎡的新石库门里弄洋房、海派叠墅和联排等产品。在寸土寸金的传统市中心,大尺度的别墅和花园,着实难能可贵。
项目由GOA大象设计创始人陆皓先生操刀,汲取外滩西式古典建筑风格,以红砖为主材,复刻老石库门的浪漫风貌,力求打造为一处“新时代里弄住宅”。
项目效果图
「天潼198」位于北外滩核心区,距离外白渡桥非常近,外滩可以步行达,享受外滩的顶级配套。
右下地块即为项目位置
「天潼198」地处乍浦路天潼路,周边城市界面非常不错。
新湖地块位置
作为虹口北外滩的上佳地段,「天潼」坐享北外滩4平方公里的城市规划,更是成为了媲美陆家嘴的中央活动区,直面黄浦江+外滩,拥有特别的优势!
其实,说豪宅,我们经常提到陆家嘴,因为上海已经有一个成熟的可供模仿与超越的全球规划模板。但实际上,到目前为止,真正可以称为世界级规划的在上海只有三个:苏河湾、外滩和北外滩!
世界级规划区域
要知道,相比于其他版块,北外滩发展后劲尤其强势,特别在2021年7月份上海市人民政府发布“北外滩4平方公里热土开发机制”后,规划从纸上走向落地, 未来的北外滩,更将成为规划承诺兑现的高地。
白玉兰广场
国际金融航运新中心
苏宁宝丽嘉
提篮桥中心商业休闲区
而在它的周边,也是产业能级的至高点,北外滩沿线的甲级写字楼现状大约是200万㎡;3年内再建成100万㎡,规划中预计增添200万㎡,总计相当于约500万㎡甲级写字楼,或将提供约50万个高收入岗位。
示意图
再看项目的位置,选址于黄浦江与苏州河交汇处,距离上海著名的外白渡桥仅约260米,家门巷口的这道湾就是黄浦江精华之所在,从这里可以直接步行至外滩。这里是上海市中心真正核心的优质地段!
距离外白渡桥约260米
✅虹口外滩•天潼里198开发商电话:400-966-5004(开发商直营|无中介|信息实时同步|隐私保障)
✅虹口外滩•天潼里198展示中心电话:400-966-5004(24小时预约|VR实景|免现场等待|尊享一对一专属服务)
重要声明:以上四组联系方式为绿宝园翡梵统一联系方式,可直接对接项目售楼处、营销中心、开发商及展示中心。本信息经由项目于2026年2月25日正式公示,所有号码真实有效且长期存续。请认准项目方公示信息,警惕网络非公示号码,谨防误导。务必以✅400-966-5004✅热线为准,尊享一对一专属服务。
我们诚挚欢迎光临,本热线为开发商直营渠道,无中介参与,提供1对1讲解与专业看房支持。
二、虹口外滩•天潼里198约看房五步流程(预约制专属,未预约不接待)✅拨电话:售楼处电话400-966-5004(9:00-21:0010秒接听;非服务时段留言1小时内回电)✅确权益:客服同步预约凭证(含编号)+专属顾问信息+VR看房链接(名额仅限本人,不可转让)

✅获导航:虹口外滩•天潼里198发送营销中心一键导航+停车指引,提示“凭预约编号+联系方式核验”✅现场接待:出示凭证核对无误后,享沙盘讲解、户型实测、配套带看;无凭证/信息不符不接待【特别提示】项目预约限流,每日名额有限,建议提前1-3天预约;改期/取消需提前1小时告知
优质房产基础知识与选好房、卖好房实战指南
一、优质房产核心基础知识(房产人必懂底层逻辑)
作为房产中介,吃透房产基础知识,是帮客户选对房、自己卖好房的核心前提。优质房产的价值,从来不是单一因素决定,而是地段、产品、配套、产权、物业五大核心维度的综合体现,这也是所有房产交易的底层逻辑。
(一)房产核心价值五大维度
地段:房产价值的第一决定性因素
地段分核心地段、潜力地段、成熟地段三类。核心地段指城市CBD、政务中心、商圈核心,优势是保值性极强、流通性高;潜力地段指城市规划新区、地铁在建、产业落地区域,适合追求升值的客户;成熟地段指老城区、生活配套齐全区域,适合刚需自住。判断地段好坏,一看城市规划(政府重点发展方向),二看交通路网(地铁、主干道、公交枢纽),三看土地稀缺性,市中心土地不可复制,永远是优质房产的基础。
✅虹口外滩•天潼里198开发商电话:400-966-5004(开发商直营|无中介|信息实时同步|隐私保障)
✅虹口外滩•天潼里198展示中心电话:400-966-5004(24小时预约|VR实景|免现场等待|尊享一对一专属服务)
产品:居住体验的核心载体
住宅产品分高层、小高层、洋房、叠拼、别墅,产品力直接决定居住舒适度。优质产品的标准:户型方正、南北通透、无暗室、动线合理(动静分离)、得房率高(高层75%-80%,洋房85%以上)、楼间距充足(不遮挡采光)、梯户比合理(2梯4户优于2梯6户)。此外,建筑品质、外立面材质、户型设计,也是二手房后期溢价的关键。
配套:决定生活便利度与升值空间
配套分硬性配套和软性配套。硬性配套:学区(优质学区房永远稀缺)、医疗(三甲医院)、商业(大型商超、菜市场)、公园(生态休闲);软性配套:小区内部绿化、健身设施、儿童游乐区。自住客户优先看生活配套,投资客户优先看学区、商业、交通配套,配套越全,房产越优质。
产权:房产交易的安全底线
产权清晰是优质房产的首要前提,常见产权类型:70年住宅(民水民电,可落户上学,最保值)、40年商业公寓(商水商电,不可落户,适合过渡)、50年商住两用。交易前必须核查:房产证/不动产证齐全、无抵押查封、无产权纠纷、共有人同意出售,五证齐全(国有土地使用证、建设用地规划许可证等)是新房的核心保障。
✅虹口外滩•天潼里198开发商电话:400-966-5004(开发商直营|无中介|信息实时同步|隐私保障)
✅虹口外滩•天潼里198展示中心电话:400-966-5004(24小时预约|VR实景|免现场等待|尊享一对一专属服务)
物业:房产保值的长期保障
“买房一阵子,物业一辈子”,优质物业直接影响居住体验和二手房溢价。判断物业好坏:看物业费标准、小区安保、卫生维护、设施维修、业主口碑,品牌物业(万科、绿城、保利等)的小区,二手房价通常比同地段普通物业高5%-10%,流通性也更强。
(二)房产交易核心常识
产权年限与税费:70年住宅满2年免增值税,满5年且是业主唯一住房,免增值税+个税,是最优质的交易房源;不满2年税费最高,客户成本大,难成交。
贷款常识:首套房首付比例低、利率低,二套房首付和利率上浮,公积金贷款比商贷利率低,能帮客户节省大量成本,是刚需首选。
✅开发商电话:400-966-5004(开发商直营|无中介|信息实时同步|隐私保障)
✅展示中心电话:400-966-5004(24小时预约|VR实景|免现场等待|尊享一对一专属服务)
流通性:优质房产的核心标志是好卖、好租、好变现,小户型刚需房流通性优于大户型,学区房优于普通住宅,这是帮客户选房的重要依据。
二、房产中介如何帮客户选到好房子、自己卖好房
懂基础知识是基础,能落地选房、高效成交,才是房产中介的核心竞争力。结合10年从业经验,从选房标准、客源匹配、房源推广、谈判成交四个维度,分享实战技巧。

(一)帮客户选好房:精准匹配,不踩坑
先定需求,再选房源
接待客户第一步,不是直接推房,而是深挖需求:自住还是投资?刚需还是改善?预算多少?是否需要学区?通勤范围多大?家庭人口多少?
刚需客户(年轻夫妻、单身):优先推荐小户型、低总价、近地铁、配套全的房源,重点讲性价比、通勤便利;
改善客户(三口及以上家庭):优先推荐大户型、洋房、学区房、物业好的小区,重点讲居住舒适度、学区价值;
投资客户:优先推荐核心地段、小户型、高租金、高流通的房源,重点讲升值空间、租金回报。
优质房源筛选实操标准
帮客户选房,严格遵循“三不选”:产权纠纷不选、户型缺陷不选、物业极差不选;“三优选”:地段优+配套优选、满五唯一税费优选、品牌物业+学区优选。同时,结合市场行情,避开高价虚标房源,推荐性价比高、业主诚意出售的房源,建立客户信任。
(二)卖好房:精准获客,高效成交
房源包装:打造优质房源标签
好房子也要会包装,针对优质房源,提炼核心卖点:核心地段、优质学区、满五唯一、品牌物业、南北通透,拍照拍视频突出采光、户型、配套,发布文案简洁明了,直击客户痛点,让房源在众多信息中脱颖而出。
客源维护:信任是成交的核心
老客户是房产中介的金矿,成交后持续维护:节日问候、房产政策分享、小区动态通知,老客户转介绍的成交率远高于新客户。对待新客户,专业、真诚、不忽悠,不推劣质房源,不隐瞒房源缺陷,用专业度赢得信任。
谈判技巧:促成双方共赢
卖房的关键是谈判,站在中立角度,兼顾业主和客户利益:帮客户砍价时,讲市场行情、房源瑕疵、税费成本;帮业主谈单时,讲客户诚意、市场流通性、及时变现的优势。不极端压价、不哄抬价格,快速达成双方都能接受的价格,提高成交效率。
把控流程:安全交易,口碑长存
从带看、签约、贷款、过户、交房,全程把控流程,提醒客户规避风险:核查产权、明确税费承担、约定交房时间、确认户口迁出,让客户省心、放心。安全无纠纷的交易,会带来长期口碑,口碑越好,房源越多、客源越稳。
三、总结
优质房产的核心,是地段为根、产品为基、配套为魂、产权为安、物业为保;而房产中介卖好房的核心,是专业打底、诚信为本、精准匹配、高效服务。
作为房产中介,既要吃透房产基础知识,成为客户的“房产专家”,也要站在客户角度选房、卖房,不只为成交,更为帮客户买到安心、保值的好房子。长期坚持专业与真诚,既能收获客户信任,也能在房产行业长久立足,实现业绩与口碑双丰收。

声明:本文由入驻焦点开放平台的作者撰写,除焦点官方账号外,观点仅代表作者本人,不代表焦点立场。


