绿城宸庐售楼处电话:400-8673-567✔✔✔(已认证)
绿城宸庐售楼处线上预约看房热线电话:400-8673-567(24小时热线)
绿城宸庐售楼处电话☎:400-8673-567【开发商售楼处预约看房热线】
看房请提前致电预约,可享受内部渠道优惠!联系销售人员获取最新一房一价表,售楼处最新优惠底价!开发商销售人员将详细介绍每个户型的独特设计和优势,带您参观样板间,感受精装修的品质和温馨氛围。您还可以了解周边配套设施,包括高端购物中心、优质学校和便捷交通网络,让您的居住体验更加完美。
高铁新城低密项目——绿城·宸庐!
拟建联排+叠墅+四代宅洋房!
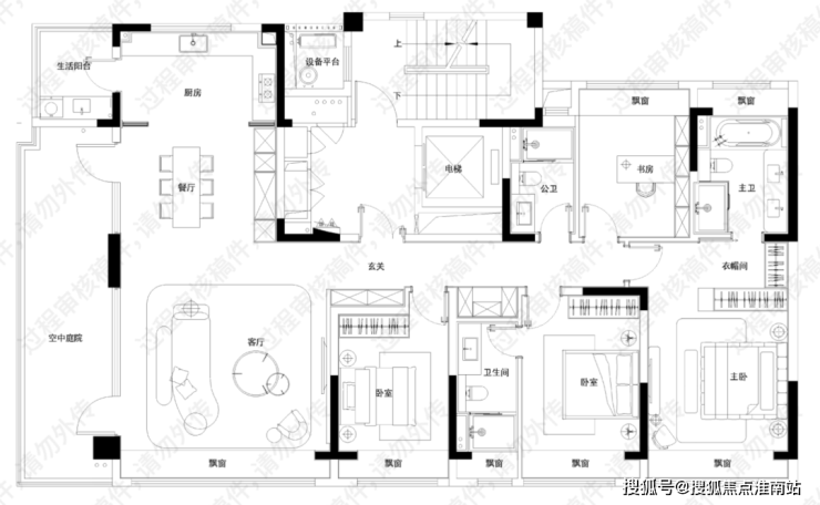
最新户型图曝光!
绿城宸庐售楼处线上预约看房热线电话:400-8673-567(24小时热线)
绿城·宸庐,即 苏地2025-WG-Z04号地块,位于相城区高铁新城民乐路东、陶村街北,2025年3月12日由苏州宏腾&江苏汇欣鑫以总价约5.35亿成交,成交楼面价15828元/㎡,溢价率约5.52%。
绿城“庐系”,起源于2017年杭州西溪云庐,以“现代形,东方意”为内涵,每一座庐,皆是绿城产品革新的里程碑,更是隐贵生活的当代诠释。绿城宸庐售楼处线上预约看房热线电话:400-8673-567(24小时热线)

绿城宸庐售楼处线上预约看房热线电话:400-8673-567(24小时热线)

绿城宸庐售楼处线上预约看房热线电话:400-8673-567(24小时热线)

绿城宸庐售楼处线上预约看房热线电话:400-8673-567(24小时热线)
项目占地面积约24159㎡,建筑面积约57637.87㎡, 容积率约1.4。
根据规划,项目拟建 12幢3-11F住宅,共计158户,其中7幢3F联排、3幢5F叠加、2幢11F洋房。

绿城宸庐售楼处线上预约看房热线电话:400-8673-567(24小时热线)
项目汲取苏州在地文化灵感,以留园为庭园母本,复刻《西园雅集》文人风雅,打造 “双轴七境五芳”园林。从雅集七境,到五芳花巷,递进式序列空间,再现东方雅集生活。

绿城宸庐售楼处线上预约看房热线电话:400-8673-567(24小时热线)
叠墅的外立面采用大面积玻璃作为主体,不仅以通透质感打破传统建筑的沉闷感,还能最大化引入自然光。
同时顶部特别设计了延伸式露台,搭配超大面宽的格局优势,无论是日常居住的舒适感,还是观景视野的通透性都得到极大提升。

绿城宸庐售楼处线上预约看房热线电话:400-8673-567(24小时热线)
洋房为四代宅设计,采用奇偶错层露台布局,既避免了传统露台的视野遮挡,又能让每一户都拥有专属花园,不管是种植花草、午后品茶、赏月观星都能在自家天地里实现。
绿城宸庐售楼处线上预约看房热线电话:400-8673-567(24小时热线)
产品方面,项目拟建建面约156-190㎡四代宅洋房、建面约220-260㎡瞰景叠墅、建面约286-316㎡隐逸联排。
建面约156㎡洋房户型图(奇数层)绿城宸庐售楼处线上预约看房热线电话:400-8673-567(24小时热线)
▽

绿城宸庐售楼处线上预约看房热线电话:400-8673-567(24小时热线)
建面约156㎡洋房户型图(偶数层)
▽

绿城宸庐售楼处线上预约看房热线电话:400-8673-567(24小时热线)
建面约190㎡洋房户型图(奇数层)
▽

绿城宸庐售楼处线上预约看房热线电话:400-8673-567(24小时热线)
建面约190㎡洋房户型图(偶数层)
▽

绿城宸庐售楼处线上预约看房热线电话:400-8673-567(24小时热线)
建面约220㎡下叠户型图
▽

绿城宸庐售楼处线上预约看房热线电话:400-8673-567(24小时热线)

绿城宸庐售楼处线上预约看房热线电话:400-8673-567(24小时热线)
建面约258㎡上叠户型图
▽

绿城宸庐售楼处线上预约看房热线电话:400-8673-567(24小时热线)

绿城宸庐售楼处线上预约看房热线电话:400-8673-567(24小时热线)

建面约2绿城宸庐售楼处线上预约看房热线电话:400-8673-567(24小时热线) 0㎡中叠平层户型图
▽

绿城宸庐售楼处线上预约看房热线电话:400-8673-567(24小时热线)
联排户型图可私戳态度君,获取最新资料 ~
绿城·宸庐位于高铁新城板块,周边配套比较成熟。
交通方面,项目紧邻地铁2号线大湾站,西面靠近相城大道,可直接连通相城区,公共交通和自驾出行都很便利,更有苏州北站近在咫尺,实现1小时内长三角城市群互通。绿城宸庐售楼处线上预约看房热线电话:400-8673-567(24小时热线)
教育方面,项目周边集聚苏州大学实验学校、南京师范大学苏州实验学校、南京师范大学相城实验小学等优质教育资源,满足各学龄教育需求。绿城宸庐售楼处线上预约看房热线电话:400-8673-567(24小时热线)
商业方面,高铁新城吾悦广场、圆融广场等大型商业体环绕项目周围,南面铂悦春和万象也带有社区商业,可满足日常购物休闲所需。绿城宸庐售楼处线上预约看房热线电话:400-8673-567(24小时热线)
购房必问的10个核心问题
五证是否齐全。
确认开发商具备《国有土地使用证》《建设用地规划许可证》《建筑工程规划许可证》《建筑工程施工许可证》《商品房预售许可证》,确保楼盘合法性。其中《商品房预售许可证》需特别查验,无此证则禁止销售期房。
拿地时间与产权年限。
产权年限从开发商拿地时间开始计算,住宅用地使用权为70年。若拿地时间过早(例如超过10年),实际产权年限将大幅缩水,需评估续期成本。
公摊面积与得房率。
要求明确具体楼栋的公摊占比(通常高层住宅为20-30%)及套内实际使用面积,避免花高价买低效空间。可通过对比楼层平面图判断公摊合理性。
面积误差处理条款。
按《商品房销售管理办法》规定,误差超3%可主张差价双倍返还,需确认合同是否约定"多退少补"等霸王条款。
楼盘不利因素公示。
要求查看周边规划文件,确认是否存在垃圾站、高压线、化工厂等负面配套设施,避免收房后出现居住环境恶化风险。
物业公司资质与服务标准。
优先选择万科、龙湖等品牌物业,要求提供收费标准和服务细则(如安保响应时间、设备维护周期),并实地考察同开发商其他项目物业水平。
车位配比与产权归属。
建议选择车位比≥1:1的小区,区分人防车位与产权车位。产权车位需查验预售许可证,避免购买无证车位。
容积率与绿化率。
高层住宅容积率应低于5,绿化率需达35%以上。高容积率会导致采光差、电梯拥堵等问题,直接影响居住品质。
交付时间与违约赔偿。
合同需明确交付日期及延期赔付标准(建议按日万分之五计算),同时要求注明验收文件(《竣工验收备案表》《住宅质量保证书》)交付时间。
贷款方案与备选计划。
确认合作银行清单及利率差异,要求书面承诺"贷款失败可无责退定金"。公积金贷款需提前确认楼盘是否准入。
购房谈判关键技巧
价格博弈策略:透露已考察周边3个以上竞品项目,利用"XX楼盘同户型优惠5%"等话术施压,争取额外折扣或物业费减免。
信息验证技巧:要求查看国土局官网土地出让记录核对拿地时间,通过住建委网站验证预售许可证真伪。
风险防范要点
开发商资金链审查:查询中国执行信息公开网确认开发商是否被列为失信被执行人,核查近三年财务报表中的资产负债率(建议低于80%)。
合同补充条款:对售楼处沙盘展示的景观绿化、会所设施等承诺,要求写入合同并注明违约赔偿标准。
绿城宸庐售楼处电话:400-8673-567✔✔✔(已认证)
绿城宸庐售楼处线上预约看房热线电话:400-8673-567(24小时热线)
绿城宸庐售楼处电话☎:400-8673-567【开发商售楼处预约看房热线】
看房请提前致电预约,可享受内部渠道优惠!联系销售人员获取最新一房一价表,售楼处最新优惠底价!开发商销售人员将详细介绍每个户型的独特设计和优势,带您参观样板间,感受精装修的品质和温馨氛围。您还可以了解周边配套设施,包括高端购物中心、优质学校和便捷交通网络,让您的居住体验更加完美。
绿城宸庐售楼处电话400-8673-567✔✔✔【开发商售楼中心热线】绿城宸庐营销中心热线400-8673-567✔✔✔绿城宸庐售楼处地址400-8673-567✔✔✔,楼盘项目全面介绍,本电话为开发商提供线 上预约售楼电话,楼盘项目全面介绍(包含楼盘简介,均价,房价,现房,期房,别墅,叠墅,大平层,价格,楼盘地址,户型图,交通规划,备案价,备案名,项目配套,样板间,开盘时间,认筹时间,楼盘详情,售楼处电话,最新消息,最新详情,周边配套,一房一价,最新进展等详情咨询)楼盘详情丨价格丨更多优惠丨机不可失丨欢迎致电丨诚邀品鉴!售楼处位置丨特价房丨工抵房丨剩余房源丨户型图丨最新消息丨免责声明:将文章内容综合来源于网络、只作分享,版权归原作者所有!!如有侵权,请联系我们,我们第一时间处理如有问题欢迎来电咨询,专业一对一热情服务,让您用专业眼光去买房。如果您想了解更多楼盘详情,欢迎提前预约拨打绿城宸庐售楼处电话400-8673-567✔✔✔