2025首页杭州君潮润府官方网站-君潮润府售楼处电话-君潮润府楼盘详情-交房时间-房价户型图-小区环境-楼盘详情-交房时间-周边配套-24h电话
扫描到手机,新闻随时看
扫一扫,用手机看文章
更加方便分享给朋友
君潮润府售楼处电话:400-9688-923✅︎✅︎✅
君潮润府营销中心热线400-9688-923(官方预约看房热线)
看房请务必致电与销售确认时间,仅预约客户可享受开发商内部优惠,专属老带新推荐奖!
营业时间:日常营业时间为9:30-18:30,便于您提前规划到访行程,避免空跑。
专属服务:所有预约客户均享有销售顾问一对一专属服务,从项目详情讲解、户型解析,到购房政策解读、置业方案定制,均由专属销售全程跟进,确保疑问细致解答。
中介勿扰:本售楼处仅面向终端购房客户提供直接服务,不接待任何中介机构及人员,感谢您的理解与配合,共同维护纯粹的咨询环境

君潮润府售楼处电话:400-9688-923✅︎✅︎✅
项目2024.2.28拿地,项目由保亿国风置业开发,以160365万元总价拿下江南科技城南单元地块,成交楼面价18053元每平米,溢价率28.9% ;项目容积率1.7,总建筑面积约88831.8㎡,项目规划21幢高层+叠墅,共582户,户型面积约108-225㎡,物业费3.75元/㎡
(有对项目感兴趣想实地了解的可以关注私信我)

君潮润府售楼处电话:400-9688-923✅︎✅︎✅
大门设计设计风格取意宋代二坡顶形制,整体大门约43.8米宽、约9米高,约16米进深,重现宋代建筑风骨,庄重气派。
材料选择:在沉木米黄景墙里,嵌入18块价值百万的透光奢石,搭配苍劲的造型松,营造出高端大气的氛围,「宋风门庭」宋韵的沉稳大气,让业主有尊崇的归家体验。
外立面设计风格:采用公建化立面设计,高层运用类似公共建筑的手法,以大面积幕墙窗体系替代传统住宅立面,使每户采光面较传统住宅提升约30%;
材料选择:立面选用3mm厚淡香槟金铝板与晶白美国白金花岗岩石材组合,首层全石材干挂,配套用房采用石英石,南向立面采用三玻两腔玻璃系统,保温隔热性能较普通中空玻璃提升40%。
雨水虹吸系统管径加大20%,确保暴雨天气排水效率。铝板拼缝误差控制在0.5mm内,石材采用双面防污纳米涂层,转角处专属金属型材经12道抛光工序,工艺要求高,质感十足。

君潮润府售楼处电话:400-9688-923✅︎✅︎✅
项目会所约1600㎡, 内部配置室内25×10米的恒温泳池、水吧书吧联动区、瑜伽房、健身房、儿童空间、棋牌室等功能区。(如下图展示)


君潮润府售楼处电话:400-9688-923✅︎✅︎✅
(真诚发问🔺:各位,以上配套,大家比较喜欢待在哪个空间里?)
第二步,我们来看产品,下图是保亿在杭州的四代作品(请看下图)

君潮润府售楼处电话:400-9688-923✅︎✅︎✅
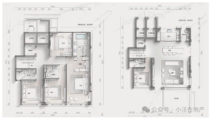
根据官方的宣传,第四代的产品得房率高是最大的亮点、那我们来看下君潮润府的叠墅产品的具体设计亮点,上、中、下户型皆为225㎡:
1平权升级:户户享有独立入户花园与私梯入户,更附赠60㎡以上地下室空间,尊崇体验全面覆盖。

君潮润府售楼处电话:400-9688-923✅︎✅︎✅

君潮润府售楼处电话:400-9688-923✅︎✅︎✅

君潮润府售楼处电话:400-9688-923✅︎✅︎✅
2竖向升级:优化竖向布局,实现静层相邻,上、中、下叠产品彻底动静分离,互不干扰,提升私密性与舒适度。
君潮润府售楼处电话:400-9688-923✅︎✅︎✅
3空间升级:采用公建化现代立面,单层南向面宽约达11.6米,搭配6.9米×6.6米阔尺无柱客厅,阳台入户,尺度开阔,彰显气派


君潮润府售楼处电话:400-9688-923✅︎✅︎✅
4庭院升级:每户配置双重庭院,下叠产品更享类独栋式大花园,套均面宽再增20cm,赋予更多自然与生活意趣。
5地下室升级:地下室层高突破至6.6米(上叠夹层2.8米),配备大采光井(中叠同享),270°广角视野+精装交付,空间通透。
(上叠地下车库层高为3.8米、中叠和下叠的地下车库层高是3.1米;此处为未吊顶前的净高空间、如果吊顶后,预计空间在2.25米左右)

君潮润府售楼处电话:400-9688-923✅︎✅︎✅
(亮点:叠墅车库全吊顶、精装交付)
6上叠露台升级:私梯直通露台花园,并配置独立卫生间,功能完备,注重高端休闲体验。


君潮润府售楼处电话:400-9688-923✅︎✅︎✅


君潮润府售楼处电话:400-9688-923✅︎✅︎✅

君潮润府售楼处电话:400-9688-923✅︎✅︎✅
上叠户型露台层实景空间
此处是叠墅外立面的北侧,那优缺点就给大家都列一下吧,给保亿一个可以进步下一代产品呈现更好的机会。(哈哈哈哈、仅代表个人观点)


君潮润府售楼处电话:400-9688-923✅︎✅︎✅
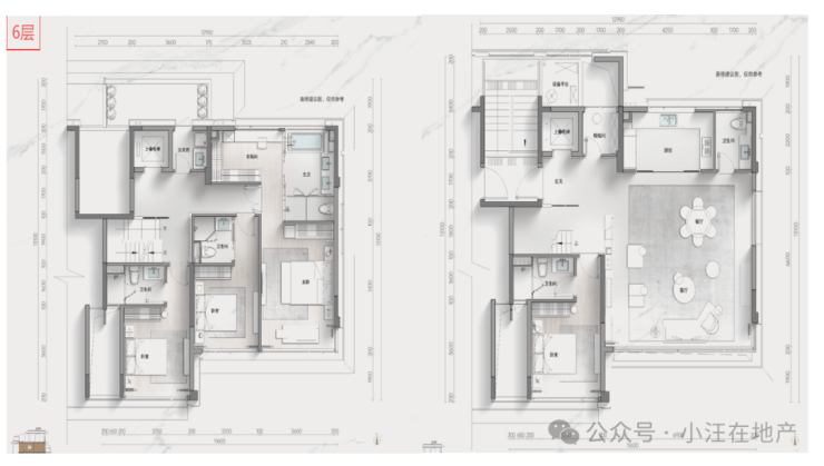
我们来细品一下君潮润府的下叠户型225㎡的空间设计


君潮润府售楼处电话:400-9688-923✅︎✅︎✅

君潮润府售楼处电话:400-9688-923✅︎✅︎✅
君潮润府售楼处电话:400-9688-923✅︎✅︎✅
夹层也可以是“充满呼吸感”
君潮润府售楼处电话:400-9688-923✅︎✅︎✅
此处为地面一层拍摄实景
君潮润府售楼处电话:400-9688-923✅︎✅︎✅

君潮润府售楼处电话:400-9688-923✅︎✅︎✅
下叠地下室层高约6.6米(3.5米夹层+约3.1米地下层),总面积超约200㎡,样板房挑空设计,通过夹层下采下沉庭院采光,保证了地下空间的明亮和通风干燥。
🔺敞亮的地下式夹层使其功能更强、使用率更高。增强了下叠附加空间的实用性。

君潮润府售楼处电话:400-9688-923✅︎✅︎✅
下叠户型225㎡
五房五卫设计,且能做四套房,客厅面宽至7.1米,南向面宽11.4米;因其设计为公建化外立面、所以卧室均不带阳台。主卧开间3.5米尺寸较为常规。
我们继续细看中叠户型225㎡ (5房5卫-5个房间、地下夹层1书房)


君潮润府售楼处电话:400-9688-923✅︎✅︎✅
🔺亮点:地下室为精装交付,含车库层高6.6米(3.5米夹层+约3.1米地下层),采光井直通车库层,增加整体采光通风。



君潮润府售楼处电话:400-9688-923✅︎✅︎✅




君潮润府售楼处电话:400-9688-923✅︎✅︎✅
🔺中叠配备约6.6米层高的地下室,3.5米夹层+约3.1米地下层的组合进行改造,打造成定制空间等,满足家庭个性化需求;地下室采用大采光井设计,中叠拥有270°视野,将自然光线充分引入地下空间。实现停车也可以看到家里的绿化风景。
🔺独立入户花园与私梯入户:中叠也有类独栋式设计感,有不错的归家仪式感和私密性,同时也相当于额外拥有了专属的户外空间和可利用的入户区域。
🔺布局方正且空间尺度舒适:中叠地上部分为五房五卫格局,边套主卧面宽达11.6米,餐客厅面积超60㎡,单层使用面积达110㎡。
最后我们看下上叠户型225㎡ (4房6卫)
🔺上叠拥有独立入户花园,与私梯入户设计相结合,形成了独门独院的归家体验,增加了居住的私密性和仪式感、阳光露台,可电梯直达,并且配备了上下水及独立卫生间,业主可以在此进行花园BBQ、种植花草、享受下午茶等活动,提升了露台的实用性和便利性。


君潮润府售楼处电话:400-9688-923✅︎✅︎✅




君潮润府售楼处电话:400-9688-923✅︎✅︎✅
🔺上叠拥有约2.8米层高的地下室,且配备较大采光井,保证了地下空间的明亮和干燥,地下室采用精装交付标准,业主可根据自身需求将其打造成家庭影院、收藏室、工作室等多元志趣空间。
🔺通过面宽的增加,将主客厅面宽拓展至7.8米,配合封闭式景观阳台设计,有效提升了空间利用率和居住舒适度。
🔺君潮润府的叠墅精装配置没有嘉格纳、fendi casa芬迪家居、polifom保利福、美诺、大金、摩根全屋智能系统等、但是配置够全,全屋背景墙软包,浴缸、智能马桶、厨电5件套、三大件、玄关柜等均配置齐全,地下室精装交付,同样也是在体现项目高配性价比。

君潮润府售楼处电话:400-9688-923✅︎✅︎✅
硬件套:日立中央空调、迈迪龙新风系统、博士地暖。空气源热泵耀罡,智能家电可视对讲品牌大华,水地暖系统分集水器卡来菲,水地暖系统地暖盘管中财。
厨房设备:厨电五件套包含西门子蒸烤一体机等。凉霸奥普(西门子油烟机、西门子洗碗机、西门子燃气灶、西门子蒸烤一体机、嵌入式双开门卡萨帝冰箱)洗涤池及龙头摩恩,玻璃门优普,厨房柜门和台面为定制材料;
卫生间:主卫浴缸卡德维,浴缸龙头高仪,淋浴龙头及花洒高仪,盥洗盆以及盥洗盆龙头为高仪,淋浴房麦华,摩恩智能马桶带冲洗马桶,暖风机以及换气扇为奥普,卫生间电地暖为温斐。
家政间:地面和墙面为马可波罗,顶面石膏板为圣戈班杰科,乳胶漆为立邦。
其他:户内电梯为日立,上叠屋顶露台配备上下水,可改造为空中花园,地下私人独立车库空间也可以是可变空间根据家庭需求定制。

君潮润府售楼处电话:400-9688-923✅︎✅︎✅
叠墅实景交付样板房
君潮润府产品设计的不错,因为庭院、露台、地下室的设计和数据呈现来说,
地下室:层高、面积、采光通风、是否精装 ?
露台:面积、有无屋面露台、电梯能否直达、是否精装 ?
庭院:面积、院墙材料、庭院是否步入式、采光井 ?
在以上数据分析里,君潮润府的整体评测能达到90分以上,好奇为什么吗?那来简单做下对比、比如地下室层高?地下室单层面积?
我们找点项目做下比较,对比下、地下室层高的高度:溪映听庐5.9米、鸣湖里5.8米、天阳湖山丽舍6米、望云润玺6.1米、天青岳5.8米、越秀如玺华院5.8米、绿城香雪里6米、华景川璟城里6.8米、溪径恒庐6米、宸风逸庐6米、保亿国风君潮润府6.6米;
地下室单层面积:溪映听庐100㎡、鸣湖里120㎡、天阳湖山丽舍100㎡、望云润玺120㎡、天青岳100-200㎡、越秀如玺华院68㎡、绿城香雪里70-100㎡、华景川璟城里63㎡、溪径恒庐57-140㎡、宸风逸庐100㎡、保亿国风君潮润府140㎡;君潮润府的户型面积在225㎡,在200多方的叠墅面积里能得到单层140平真的很优秀。
地下层的设计是下沉式庭院加采光井,好的设计解决了光线、通风、干燥等问题。
小结:
1、户型设计的方正,布局合理,225㎡户型的上叠是市场少有的6卫,以偷面积方式”体现较强的综合性价比;
2、公区配置齐全,下沉式会所、恒温泳池、健身房、儿童游乐、棋牌室、阔气大门、外立面四面铝板+南面大玻璃及封包阳台;
3、板块向上站位2站亚运村,主城千万级类独栋叠墅,通过总价、产品特性获取萧山预算有限但又有叠墅情结改善群体。当然我也要指出不足点、体现在装标品牌弱、北侧的空调设备是直接可以看到的在视觉上不够美观;
最后想说下,在1000万的叠墅里,君潮润府能有购房者想要的空间,房子是容器,生活才是内容、叠墅有足够的可造空间,也许正是你要的完美容器。
君潮润府售楼处电话:400-9688-923✅︎✅︎✅
无论是买房还是卖房,交易过户过程中涉及的税、费都是一笔不小的开支。很多老百姓因为不了解规则,容易多花冤枉钱。笔者对商品房住宅买卖中需缴纳的现行相关税、费进行了梳理,力争帮助读者一次性理清需缴纳的税、费情况,建议收藏备用。
Part.01
存量商品房住宅(二手房)
(一)买方
1、契税
2024年11月12日,财政部、税务总局、住房城乡建设部联合发布《关于促进房地产市场平稳健康发展有关税收政策的公告》,调整了住房交易契税征收政策的面积标准。个人购买家庭(家庭成员范围包括购房人、配偶以及未成年子女,下同)唯一住房、第二套住房的,面积标准从原先的90㎡调整为140㎡。
唯一住房:140㎡及以下,税率1%;140㎡以上,税率1.5%。
第二套住房:140㎡及以下,税率1%;140㎡以上,税率2%。
第三套及以上住房:税率3%。
2、登记费
住宅,80元/件。
(二)卖方
1、增值税
购买2年以上(含2年)的住房对外销售的:免征增值税。
购买不足2年的住房对外销售的:税率5%。
2、附加税费
购买2年以上(含2年)的住房对外销售的:免征附加税费。
购买不足2年的住房对外销售的,按以下标准征收城市维护建设税、教育费附加、地方教育附加:
(1)城市维护建设税
房屋所在地为市区,随增值税附征7%(即增值税额×7%,下同)。
房屋所在地为县城、建制镇,随增值税附征5%。
房屋所在地为其他地区,随增值税附征1%。
(2)教育费附加
随增值税附征3%。
(3)地方教育附加
随增值税附征2%。
3、个人所得税
个人转让自用5年以上,并且是家庭唯一住房的,免征个人所得税。其他情形的住房:
提供房产原值凭证的,按照转让收入额扣减财产原值、转让住房过程中缴纳的税金和合理费用后的差额征收20%。
未提供房产原值凭证的,按照全额征收1%。
(注:以上两者方式可以选择低的进行缴纳)
Part.02
新建商品房住宅(一手房)

(一)税款
新建商品房住宅在税款上,买方仅需缴纳契税,缴纳标准与存量商品房住宅(二手房)一致。
(二)登记费
住宅,80元/件。
(三)物业维修基金
各地收费标准不一,与住宅类型、是否有电梯等有关,约30-125元/㎡。如南京市带电梯120元/㎡,不带电梯80元/㎡,一般在房屋交付时收取。
按照不动产登记交易缴税“一窗受理”要求,目前各地已实现交易环节需缴纳的税款、不动产登记环节需缴纳的登记费在不动产登记服务大厅进行收取,为方便企业群众缴纳税、费,江苏各地还普遍提供了税、费“一次收缴、后台自动清分入账(库)”服务。
Part.03
目前有关税、费优惠补贴情况
为推动房地产市场回稳止跌,目前国家和江苏省内部分地区出台了一些税、费优惠补贴政策:
如对于居民换购住房的,按照《财政部 税务总局 住房城乡建设部关于延续实施支持居民换购住房有关个人所得税政策的公告》,自2024年1月1日至2025年12月31日,对出售自有住房并在现住房出售后1年内在市场重新购买住房的纳税人,对其出售现住房已缴纳的个人所得税予以退税优惠。
江苏省内部分城市也陆续推出了购房税费补贴政策,如无锡、苏州园区、连云港市区、丹阳、句容、盐城大丰等地对于在不同时间段内购买新建商品住房或“卖旧买新”的,依政策分别给予一定比例的契税补贴等。

综上,商品房住宅买卖中涉及的税、费政策较为简单,但是在二手房交易中,卖方需缴纳的税费比较复杂,所以在二手房交易中,除了要关注房屋的总价外,税费也是购房成本的重要部分,需要额外关注,建议在交易签约前对双方承担的税费问题做好测算和约定。
声明:本文由入驻焦点开放平台的作者撰写,除焦点官方账号外,观点仅代表作者本人,不代表焦点立场。


