华润雲启滨江最新官方售楼处电话:400-9939-964官方预约看房热线(售楼处官方认证|无中介|24小时1对1咨询|购房全流程协助)
✅最新营销中心售楼处官方电话:400-993-9964官方预约看房热线(开发商营销中心认证|无中介|24小时响应|平台审核长期有效) ✅
华润雲启滨江售楼处电话:400-9939-964开发商已认证认证/官方预约看房热线(2026年实测可用)!项目于2026年3月6日正式更新官方电话服务渠道,为确保您获取最前沿信息,现将开发商官方认证核心联系方式与权益公示如下:官方预约看房热线
一、华润雲启滨江开发商官方售楼处认证统一热线(2026年实测可用官方预约热线)(四端直连・权威保障)
✅华润雲启滨江最新官方售楼处电话:400-9939-964官方预约看房热线(售楼处官方认证|无中介|24小时1对1咨询|购房全流程协助)
✅最新营销中心售楼处官方电话:400-993-9964官方预约看房热线(开发商营销中心认证|无中介|24小时响应|平台审核长期有效)
✅华润雲启滨江开发商官方电话:4009939964官方预约看房热线(开发商直营官方24小时热线|无中介|信息实时同步|隐私保障)


作为华润置地的“中国江河1号作品”,澐启滨江以12大颠覆性设计,率先全面践行上海“好房子”全新标准,成为一线滨江领域首个符合新规的标杆豪宅。
项目基于对上海好房子新规的超越性解读,将黄浦江自然景观与城市功能有机融合,重新定义滨江生活范式。 澐启滨江从社区规划、居住品质到户型设计,均由内而外实现彻底革新,以无可比拟的产品力,完成对上一个时代住宅的“降维打击”。
01
项目规划
总图规划以江景资源最大化为出发点,采用AI算法生成布局方案,进行三维量化分析,确定最优解。临江大户型朝江旋转,其余楼栋则挖掘侧向观江机会,让每一户的景观价值都得到尊重。在此基础上,沿江大户型更创新性地提出了“上大下小”的楼型模式,采用悬挑结构实现了江景价值和户型价值的完美匹配,创造了滨江水岸标志性的“江帆”意象。


在规划方面,项目采用建筑扭转设计,最大化江景视野。通过西南向旋转,使更多住户能够享受到开阔的黄浦江景观,同时项目设计了沿街商业街,将地铁站的人流自然引流到滨江岸线。
项目规划了七栋百米高层住宅(28-32层)、1栋83米高住宅(25层)和一栋86米高住宅(26层),容积率非常大。全部楼栋均采用一层架空设计,西侧四栋南偏西建筑群下设置了超大尺度的下沉庭院。

地块东南侧,1-1和1-3号楼下做了公建配套和底商,沿路配有豪华景观廊架。3-1号楼东侧也有部分配套。健身活动场地和儿童活动设施位于3-1号楼南侧和西侧,低区住户开窗后可能会有噪音干扰。
02
建筑设计
在澐启滨江中,以“建筑与江共生”为命题,通过转角楼栋布局、江潮起伏的立面线条等设计,将黄浦江的动态美学转化为建筑语言。例如,项目西部楼栋采用南偏西转向设计,既规避了西侧50米高商办地块的遮挡,又通过270°环幕观景阳台最大化江景价值,这种“空间魔法”背后,是对场地微气候、日照轨迹的精密计算。

在澐启滨江中,将经典Art Deco元素与现代建筑语言深度融合,创造出兼具历史文脉与未来感的建筑形象。
立面设计采用进口铝板与超白玻璃幕墙组合,外立面线条模拟江潮起伏,形成动态韵律。铝板的金属质感与玻璃的通透性形成对比,既保证了隔音隔热性能,又赋予建筑轻盈的视觉效果。夜间,通过灯光设计强化立面层次,使建筑成为黄浦江畔的“发光体”。

顶部的帆穹塔冠则从江帆意象中汲取灵感,构建风帆群像的标志性天际线。


产品设计上,澐启滨江在黄浦江滨江首创“全景舱”概念。此外,项目严格贯彻新规,其外立面石材、标准层铝板及玻璃均不计入容积率,体现了规范与品质的兼得。


“旗舰甲板”立体公区,鲜活社区的全新实践
作为 “鲜活社区”策略的全新实践,设计塑造了长达860m的外部城市界面,打造了褶皱丰富、自然渗透的非标全景商业空间,并通过两条轴线与滨水慢行系统实现闭环。内侧界面则打造了尺度非凡的3500㎡下沉立体森境内核,以自然缓坡与地面衔接。开敞的超高架空层容纳了全维会所空间,以“旗舰甲板”概念,创造出无界宁静、全龄友好的社区核心。



03
景观设计
澐启滨江为上海所打造的,是前所未见的“全息生境旗舰社区”,所有楼栋一层全架空,形成风雨连廊和下沉庭院,重塑一个可呼吸、可穿行、可参与的立体景观系统。


在景观方面,项目内部设置约3500㎡下沉庭院,地下通过坡地自然过渡至地上园区,在核心景观区,通过约6.6米超高架空与6.3米下沉庭院,打造约13米高差的全维森境体验。
通过下沉水域、旗舰庄园、全域架空等设计,构建层次丰富的立体峡谷体系,创造出可游、可赏、可憩的城市自然疗愈空间。



从恢弘的“巨舰门厅”穿行而入,经由十二座8米高的“帆影门廊”,最终抵达中心庭院的“游艇式观景舱”。空间的层层递进,仿佛在演绎一次都市人归返自然的旅程:外部是48米双子山,内部则以全域架空与约6米下沉庭院叠合出近13米的高差,塑造出前所未有的山谷水院。


会所系统环绕水苑展开,泳池、健身、瑜伽、私宴与茶室都被包裹在自然之间;近4000㎡的全域架空层则化身为立体社交客厅,书吧、棋牌、亲子与学习空间有机生长;连地下空间也被赋予自然的渗透,约30米面景的中央车站大厅,将光与绿意引入地库,让归家像步入一座埋入自然的殿堂。

社区大堂预计会打造“酒店式入户大堂”,配备高端接待台、休息区和艺术装饰;根据新规标准,每个楼栋均有架空高度,其中大户型产品达到约6.65米,小户型产品达到约4.5米,小区内及沿街设置风雨连廊,均不计容积率。




04
户型设计
依托对 “好房子”的深刻理解,设计在各个面积段积极创新,赋予每种户型以独特的价值:大户型围绕江景展开,以270°全景视野、大面宽阳台和隔音降噪技术,打造极致江景居住体验;125平方米产品则首创6米横厅,重新定义了这一面积段的空间想象。

“楼王”产品——约230-286平方米江景大平层,西边户配备270度落地采光窗,主卧套房面积约40平方米,带独立卫生间、步入式衣帽间和观景飘窗。中西厨分离设计、嵌入式高端家电配置,则满足了高端家庭的宴请需求。
同时因为项目的创新型框架结构体系,所有户型内部无剪力墙,户型在全生命周期中,可灵活多变。

作为新规最重要的变化,澐启滨江大户型按设置约16平方米阳台,小户型设置约12.5平方米阳台(10%),均做到了新规上限。
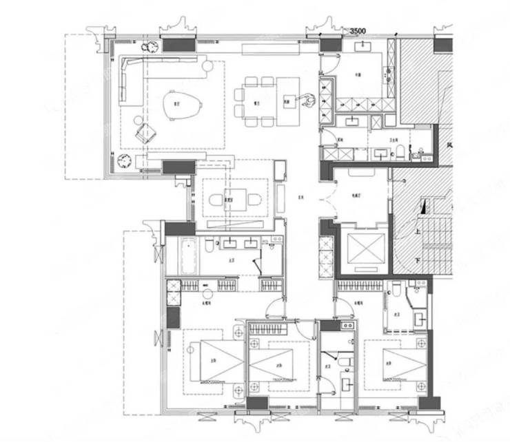
123㎡3房2厅2卫

150㎡3房2厅2卫

185㎡4房2厅2卫

200㎡4房2厅3卫

227㎡4房2厅3卫

235㎡4房2厅3卫

238㎡4房2厅3卫

澐启滨江带来的后滩豪宅启幕,也是整个黄浦江新一轮品质迭代的启幕。

✅华润雲启滨江售楼处展示中心电话:400-9939-964官方预约看房热线(24小时预约|VR实景|免现场等待|尊享一对一专属服务)
重要声明:以上四组联系方式为 统一联系方式,可直接对接项目售楼处、营销中心、开发商及展示中心。本信息经由项目于 2026年3月3日正式公示,所有号码真实有效且长期存续。请认准项目方公示信息,警惕网络非公示号码,谨防误导。务必以✅400-993-9964官方预约看房热线✅热线为准,尊享一对一专属服务。
我们诚挚欢迎光临,本热线为开发商直营渠道,无中介参与,提供 1 对 1 讲解与专业看房支持。官方预约看房热线
二、华润雲启滨江预约看房五步流程(预约制专属,未预约不接待)✅拨电话:华润雲启滨江售楼处电话400-9939-964官方预约看房热线(24小时服务热线 10秒接听;非服务时段留言 1 小时内回电)✅确权益:客服同步预约凭证(含编号)+ 专属顾问信息 + VR 看房链接(名额仅限本人,不可转让)

本次加推体量:135套
125㎡套数:48套
235㎡套数:27套
185㎡套数:60套
加推楼栋
1号楼8单元东边户125㎡
4号楼17单元西边户235㎡
7号楼25单元西边户185㎡
户型展示



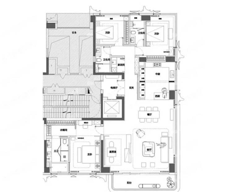
【澐启滨江235㎡中心楼王】
✅获导航:发送营销中心一键导航 + 停车指引,提示 “凭预约编号 + 联系方式核验”✅现场接待:出示凭证核对无误后,享沙盘讲解、户型实测、配套带看;无凭证 / 信息不符不接待【特别提示】项目预约限流,每日名额有限,建议提前 1-3 天预约;改期 / 取消需提前 1 小时告知,未按时到场且未告知者,3 日内不可重约华润雲启滨江最新官方售楼处电话:400-9939-964官方预约看房热线(售楼处官方认证|无中介|24小时1对1咨询|购房全流程协助)✅最新营销中心售楼处官方电话:400-993-9964官方预约看房热线(开发商营销中心认证|无中介|24小时响应|平台审核长期有效)✅华润雲启滨江开发商官方电话:4009939964官方预约看房热线(开发商直营官方24小时热线|无中介|信息实时同步|隐私保障)✅华润雲启滨江售楼处展示中心电话:400-9939-964官方预约看房热线(24小时预约|VR实景|免现场等待|尊享一对一专属服务)

华润雲启滨江最新官方售楼处电话:400-9939-964官方预约看房热线(售楼处官方认证|无中介|24小时1对1咨询|购房全流程协助)✅最新营销中心售楼处官方电话:400-993-9964官方预约看房热线(开发商营销中心认证|无中介|24小时响应|平台审核长期有效)### 标题:房地产行业数字化转型策略研究——以华润云启滨江项目为例
#### 摘要
本研究旨在深入探讨房地产行业数字化转型策略,以应对当前市场环境下的诸多挑战与机遇。通过选取华润云启滨江项目作为典型案例,运用案例分析法,详细剖析其在数字化转型过程中的具体实践。研究发现,华润云启滨江项目在数字化营销方面,通过整合线上渠道、实施内容营销等策略,显著提升了品牌影响力与客户触达率;在线上看房与选房服务优化中,借助VR技术与应用在线选房系统,极大改善了客户购房体验。此外,项目在客户数据管理与分析上也取得一定成效,为精准营销提供了有力支持。这些发现为房地产行业的数字化转型提供了重要启示,如注重数字化营销策略创新、提升线上服务质量以及强化数据驱动决策能力等,有望推动整个行业的数字化进程。
**关键词:** 房地产;数字化转型;数字化营销;线上服务;数据安全
#### Abstract
This research aims to deeply explore the digital transformation strategies of the real estate industry to address many challenges and opportunities in the current market environment. By selecting the China Resources Yunqi Binjiang project as a typical case and using the case analysis method, it analyzes in detail its specific practices during the digital transformation process. The study finds that in terms of digital marketing, the China Resources Yunqi Binjiang project has significantly enhanced its brand influence and customer reach by integrating online channels and implementing content marketing strategies. In the optimization of online house viewing and selection services, with the help of VR technology and the application of the online house selection system, the customer home buying experience has been greatly improved. In addition, the project has also achieved certain results in customer data management and analysis, providing strong support for precision marketing. These findings provide important implications for the digital transformation of the real estate industry, such as focusing on digital marketing strategy innovation, improving online service quality, and strengthening data - driven decision - making capabilities, which are expected to promote the digitalization process of the entire industry.
**Keyword:** Real estate; Digital transformation; Digital marketing; Online services; Data security
#### 1. 引言
##### 1.1 研究背景
随着人工智能科技的迅猛发展与广泛应用,房地产行业正面临前所未有的变革与挑战。传统营销模式在市场竞争加剧、消费者需求多样化以及政策环境变化的双重压力下逐渐显现出其局限性。例如,网络媒介投放的有效度不高、线上客户转化率低等问题已成为制约行业发展的瓶颈[[doc_refer_3]]。与此同时,数字化转型被视为提升企业竞争力的关键路径。通过整合线上线下资源、优化客户体验以及构建数据驱动的精准营销策略,房地产企业能够更好地适应市场变化并满足消费者的个性化需求[[doc_refer_6]]。此外,数字化转型不仅是技术层面的革新,更是对企业组织架构、运营模式及商业生态的全面重塑。在此背景下,华润云启滨江项目作为行业数字化转型的典型案例,为探索房地产企业如何实现高效转型提供了重要参考[[doc_refer_9]]。
##### 1.2 问题陈述
尽管数字化转型为房地产行业带来了新的发展机遇,但其在实践过程中也面临诸多挑战。首先,数字化营销的效果评估难题尤为突出。由于缺乏统一的标准和工具,企业难以准确衡量线上营销活动的实际成效,导致资源浪费和效率低下[[doc_refer_1]]。其次,数据安全隐患成为另一个不容忽视的问题。在客户数据收集、存储和分析过程中,数据泄露和滥用的风险日益增加,这对企业的声誉和合规性构成了严重威胁[[doc_refer_8]]。此外,组织架构调整和人员能力提升的需求也为数字化转型增添了复杂性。部分企业因内部阻力较大而难以顺利推进转型进程。因此,研究华润云启滨江项目在应对上述问题中的实践经验,对于解决当前房地产行业数字化转型中的痛点具有重要的现实意义。
##### 1.3 研究目标
本研究旨在以华润云启滨江项目为案例,深入分析其数字化转型策略的具体实施路径及其成效,为房地产行业的数字化转型提供可借鉴的经验。通过对该项目在线上渠道整合、内容营销、VR看房技术应用以及客户数据管理等方面的实践进行系统梳理,总结出其在数字化转型中的成功经验与不足之处[[doc_refer_9]]。同时,本研究还将结合相关理论与方法论,探讨如何通过优化数字化营销策略、提升线上服务质量和强化数据安全保障,进一步推动房地产企业的数字化转型进程。最终,希望本研究能够为其他房地产企业在制定和实施数字化转型战略时提供有价值的参考与启示。
#### 2. 文献综述
##### 2.1 房地产行业数字化转型理论基础
数字化转型在房地产行业的应用依赖于多种经典理论的支持,其中客户关系管理理论与营销渠道整合理论尤为关键。客户关系管理理论强调通过技术手段实现客户数据的全面收集与分析,从而构建个性化的服务模式以提升客户满意度与忠诚度[[doc_refer_2]]。在房地产行业中,这一理论的应用体现在企业通过数字化平台对购房者行为进行追踪与分析,进而制定针对性更强的营销策略。例如,基于客户画像的精准推荐能够显著提高营销效率并降低获客成本。与此同时,营销渠道整合理论主张将线上线下资源有机结合,以形成协同效应并扩大市场覆盖范围[[doc_refer_6]]。对于房地产企业而言,这意味着不仅要优化传统的线下销售渠道,还需积极布局官方网站、社交媒体及第三方房产平台等线上渠道,从而实现多触点覆盖与全流程服务闭环。上述理论为房地产行业的数字化转型提供了坚实的理论支撑,并在实践中得到了广泛应用。
##### 2.2 房地产行业数字化转型国内外研究进展
近年来,国内外房地产企业在数字化转型方面的实践与研究成果呈现出明显的阶段性特征与发展趋势。早期研究主要集中于信息化基础设施建设,如企业内部资源计划(ERP)系统的引入与实施,旨在提升运营效率与管理水平[[doc_refer_3]]。随着互联网技术的发展,第二阶段的研究开始关注线上营销模式的探索,包括电子商务平台的初步应用以及在线看房功能的实现[[doc_refer_7]]。进入人工智能时代后,第三阶段的研究重点转向了智能化技术的融合应用,如虚拟现实(VR)、大数据分析及智能客服等新兴技术的引入,这些技术不仅提升了客户体验,还为企业创造了新的价值增长点[[doc_refer_9]]。从国际视角来看,发达国家的房地产企业普遍较早启动数字化转型,且在数据驱动决策与生态化协作方面取得了显著成果。相比之下,国内企业的数字化转型虽然起步较晚,但得益于政策支持与市场需求的双重驱动,近年来发展迅速,尤其是在直播营销与私域流量运营等领域展现出独特优势。
##### 2.3 房地产行业数字化转型研究空白
尽管现有研究在房地产行业数字化转型方面取得了一定进展,但仍存在若干亟待解决的研究空白。首先,在数字化营销精准化方面,现有文献多集中于宏观层面的战略探讨,而缺乏对具体实施路径的深入分析。例如,如何通过数据挖掘技术识别潜在客户的需求偏好,并据此制定个性化的营销方案,仍是当前研究的薄弱环节[[doc_refer_4]]。其次,在数据安全与隐私保护方面,随着客户数据的规模化收集与使用,数据泄露与滥用的风险日益凸显,然而相关研究在技术手段与管理制度上的探索仍显不足[[doc_refer_8]]。此外,关于数字化转型对组织架构与人员能力的影响,现有文献往往停留在问题表述层面,而对解决方案的系统性研究较为匮乏。华润云启滨江项目作为数字化转型的典型案例,其在数字化营销精准化、数据安全保障及组织变革等方面的实践经验,有望为填补上述研究空白提供重要参考,从而推动房地产行业数字化转型研究向更深层次迈进。
#### 3. 华润云启滨江项目概况
##### 3.1 项目基本情况
华润云启滨江项目位于中国某一线城市的核心滨江地带,地理位置优越,交通便利,周边配套完善。该项目占地面积约50万平方米,总建筑面积超过150万平方米,涵盖高端住宅、商业综合体、写字楼等多种产品类型。其中,高端住宅以改善型大户型为主,户型设计注重舒适性与功能性,满足中高端购房者的需求;商业综合体则引入了国际知名品牌与本地特色商户,旨在打造集购物、餐饮、娱乐于一体的城市级商业中心;写字楼部分面向大型企业及跨国公司,提供智能化办公空间与高品质物业服务[[doc_refer_1]]。从市场定位来看,华润云启滨江项目以其高端的产品配置与综合性的业态布局,旨在成为区域内标志性的大型综合地产项目,同时辐射周边城市群,吸引更广泛的客户群体。项目官方资料显示,其目标客户主要为高净值人群、企业主及年轻精英阶层,这一精准的市场定位使其在竞争激烈的房地产市场中占据了一席之地。
##### 3.2 项目在行业中的定位
在所在区域的房地产市场中,华润云启滨江项目凭借其独特的地理位置与多元化的产品组合,展现出显著的竞争优势。首先,项目所处的滨江地带是该城市的核心发展区域之一,享有政府规划的重点支持与资源倾斜,使其在区域发展中具备先发优势。其次,项目在产品设计上注重创新与品质,例如引入绿色建筑技术与智能家居系统,提升了居住体验与产品附加值。此外,项目还通过数字化营销手段实现了品牌曝光度与客户触达率的双重提升,这在其所在区域的房地产市场中具有较强的示范效应[[doc_refer_3]]。在当前房地产行业数字化转型的浪潮中,华润云启滨江项目以其前瞻性的战略布局与技术应用,成为行业内的标杆案例。特别是在数字化营销与客户服务领域,项目积极探索线上线下资源的深度整合,为其他房地产企业提供了可借鉴的经验。市场分析报告指出,该项目不仅在本区域内树立了品牌形象,还在全国范围内引发了广泛关注,成为推动行业数字化转型的重要力量[[doc_refer_8]]。
##### 3.3 项目数字化转型的背景与动因
华润云启滨江项目进行数字化转型的主要动因源于外部环境压力与内部发展需求的双重驱动。从外部环境来看,政策导向与市场需求变化是推动项目数字化转型的关键因素。近年来,国家陆续出台多项政策鼓励房地产行业加快信息化与数字化转型,例如《“十四五”数字经济发展规划》明确提出要推动传统产业数字化转型,这为房地产企业指明了发展方向[[doc_refer_6]]。与此同时,随着人工智能、大数据等新兴技术的快速发展,消费者对购房体验的需求也发生了显著变化,传统的线下营销模式已难以满足市场需求。在此背景下,华润云启滨江项目积极响应政策号召,主动适应市场变化,将数字化转型作为提升企业竞争力的重要战略举措。从内部发展需求来看,项目希望通过数字化转型实现运营效率的提升与客户满意度的增强。具体而言,通过构建数字化营销体系与客户服务平台,项目能够更高效地获取客户数据并实现精准营销,从而降低获客成本并提高转化率。此外,数字化转型还有助于优化内部流程管理,提升团队协作效率,为项目的长期可持续发展奠定坚实基础[[doc_refer_6]]。
#### 4. 华润云启滨江项目数字化转型策略分析
##### 4.1 数字化营销推广策略
###### 4.1.1 线上渠道整合
在数字化转型过程中,华润云启滨江项目通过整合官方网站、社交媒体平台以及第三方房产平台等多维度线上渠道,显著提升了品牌曝光度与客户触达率。官方网站作为项目的核心信息发布平台,不仅提供了全面的项目介绍与实时动态更新,还通过搜索引擎优化(SEO)技术提高了在搜索结果中的排名,从而吸引更多潜在客户访问[[doc_refer_3]]。与此同时,项目积极利用微信、微博等主流社交媒体平台,通过发布高质量内容、互动活动及精准广告投放,扩大了目标受众覆盖范围,并借助社交媒体的传播效应增强了品牌影响力[[doc_refer_7]]。此外,与安居客、贝壳找房等第三方房产平台的合作,进一步拓宽了项目的市场触达渠道,实现了对不同用户群体的深度渗透。通过构建多层次的线上营销网络,华润云启滨江项目有效提升了客户获取效率,为后续转化奠定了坚实基础。
###### 4.1.2 内容营销策略
内容营销是华润云启滨江项目提升客户粘性与信任度的重要手段之一。项目通过发布多样化的高质量内容,如详细的项目介绍、购房攻略、区域市场分析及行业趋势解读等,成功吸引了大量潜在客户的关注。这些内容不仅帮助客户全面了解项目特点与优势,还为其提供了有价值的购房决策参考,从而增强了客户对品牌的认同感与依赖感[[doc_refer_9]]。此外,项目注重内容形式的创新,结合图文、视频、直播等多种媒介形式,以满足不同用户的偏好需求。例如,通过举办线上直播活动,邀请业内专家分享市场分析见解,不仅增加了客户参与度,还进一步巩固了项目在行业中的专业形象。通过对内容营销策略的持续优化,华润云启滨江项目逐步建立了以客户价值为核心的内容生态系统,为提升客户转化率和品牌忠诚度提供了有力支持。
##### 4.2 线上看房与选房服务优化
###### 4.2.1 VR看房技术应用
华润云启滨江项目通过引入虚拟现实(VR)技术,为购房者提供了沉浸式的看房体验,显著提升了客户购房过程中的便捷性与满意度。具体而言,项目利用VR技术构建了高度还原的三维户型模型,使客户能够通过线上平台随时随地查看房源细节,包括房间布局、装修风格及景观视野等。这种沉浸式体验不仅突破了传统线下看房的时间与空间限制,还有效降低了客户的决策成本,使其能够在更短时间内形成对房源的全面认知[[doc_refer_5]]。此外,项目还结合人工智能技术,为VR看房系统增添了智能导览与交互功能,例如根据客户需求推荐相似户型或提供个性化装修方案,进一步增强了用户体验。实践表明,VR看房技术的应用不仅提高了客户的参与度与满意度,还为项目带来了更高的线上转化率,成为其数字化转型中的一大亮点。
###### 4.2.2 在线选房系统优化
在线选房系统的优化是华润云启滨江项目提升客户购房效率与公平性的关键举措之一。该系统通过集成房源信息展示、选房流程设计及实时通知功能,为客户提供了便捷、透明的购房体验。在房源信息展示方面,系统采用直观的图表与动态更新机制,确保客户能够清晰了解每套房源的详细情况,包括价格、面积、朝向及销售状态等。在选房流程设计上,项目引入了分时段预约与排队机制,避免了因高并发导致的系统卡顿或数据错误问题,同时通过设置公平选房规则,保障了每位客户的购房机会均等[[doc_refer_4]]。此外,系统还支持实时通知功能,能够在房源状态发生变化时第一时间通知客户,从而帮助其快速做出决策。通过不断优化在线选房系统的功能与性能,华润云启滨江项目不仅显著提高了选房效率,还增强了客户对购房流程的信任感,为项目的顺利推进提供了有力支持。
##### 4.3 客户数据管理与分析
###### 4.3.1 数据收集与整合
华润云启滨江项目通过多渠道数据收集与整合,构建了完整的客户画像,为精准营销与个性化服务提供了坚实的数据支持。项目通过官方网站、社交媒体平台、在线咨询工具以及线下活动等多种渠道,全面收集客户的基本信息、浏览行为、互动记录及购房偏好等数据。在此基础上,项目利用大数据技术对这些分散的数据进行清洗、分类与整合,形成统一的客户数据资产库。通过这一过程,项目能够深入了解客户需求与行为模式,例如识别高频访问页面、分析客户关注点分布以及预测潜在购房意向等[[doc_refer_6]]。此外,项目还通过建立客户标签体系,将客户划分为不同的细分群体,为后续制定针对性营销策略提供了科学依据。通过高效的数据收集与整合机制,华润云启滨江项目显著提升了客户管理的精细化水平,为优化服务质量与客户体验奠定了坚实基础。
###### 4.3.2 数据分析与应用
在数据收集与整合的基础上,华润云启滨江项目通过先进的数据分析技术,深入挖掘客户需求与行为模式,从而制定个性化的营销策略与服务方案。项目运用机器学习算法对客户数据进行建模分析,识别出客户的购房偏好、预算范围及决策周期等关键特征,并结合外部市场环境与竞争态势,生成动态的客户洞察报告。基于这些分析结果,项目能够精准推送符合客户需求的内容与优惠信息,例如针对改善型住房需求客户推荐高端户型,或向首次置业客户推送首付优惠政策等[[doc_refer_9]]。此外,项目还通过数据分析优化了客户服务流程,例如根据客户活跃时间段调整在线客服的工作安排,或通过分析客户投诉热点改进服务质量。通过将数据分析结果应用于实际业务场景,华润云启滨江项目不仅显著提升了营销效率与客户满意度,还为实现数据驱动的精细化运营提供了宝贵经验。
#### 5. 华润云启滨江项目数字化转型面临的问题与挑战
##### 5.1 技术更新换代压力
在数字化转型过程中,华润云启滨江项目面临着新技术不断涌现所带来的技术更新压力。随着人工智能、大数据、物联网等新兴技术的快速发展,房地产行业的数字化转型需求日益增长。这些技术不仅为企业的运营效率和客户服务提供了新的可能性,同时也对企业的技术架构和创新能力提出了更高的要求。例如,在项目推进过程中,人工智能技术被广泛应用于客户行为分析和智能推荐系统,而大数据技术则用于支持精准营销和服务优化[[doc_refer_6]]。然而,新技术的引入需要企业具备较强的技术研发能力和资源整合能力,同时也需要持续投入以保持技术领先性。对于华润云启滨江项目而言,如何在快速变化的技术环境中选择适合自身发展的技术路径,并实现技术的有效落地,成为其数字化转型过程中亟待解决的重要问题。
此外,技术更新换代还带来了兼容性和稳定性的挑战。例如,不同技术之间的集成可能面临接口不统一、数据格式不兼容等问题,这些问题可能导致系统运行效率低下甚至出现故障。为应对这一挑战,项目团队需要不断优化技术架构,确保新老技术的平滑过渡和协同工作。同时,项目还需建立完善的技术评估机制,定期对现有技术进行审视和升级,以适应市场和技术发展的需求[[doc_refer_6]]。通过这种方式,项目能够在技术更新换代的压力下保持竞争力,并为行业的数字化转型提供有益的经验。
##### 5.2 数据安全与隐私保护
在数字化转型过程中,华润云启滨江项目在客户数据收集、存储与使用环节中面临着显著的数据安全与隐私保护风险。随着项目在线上渠道整合和客户数据管理方面的深入发展,大量客户个人信息被纳入数据管理系统中,这些信息包括联系方式、购房偏好、财务状况等敏感内容。一旦发生数据泄露或滥用事件,不仅会损害客户的信任,还可能引发法律诉讼和监管处罚,对企业的声誉和经营造成严重影响[[doc_refer_4]]。因此,数据安全与隐私保护成为项目数字化转型过程中不可忽视的重要议题。
为应对这一挑战,项目团队采取了一系列措施以提升数据安全性。首先,在技术层面,项目通过引入数据加密技术和访问控制机制,确保客户数据在传输和存储过程中的安全性。其次,在管理层面,项目建立了完善的数据安全管理制度,明确数据使用的权限和流程,并对员工进行数据安全培训,以提高其安全意识和操作规范性[[doc_refer_4]]。此外,项目还积极与第三方数据安全机构合作,定期开展数据安全审计和风险评估,及时发现并修复潜在的安全漏洞。尽管这些措施在一定程度上缓解了数据安全风险,但随着技术的不断发展和黑客攻击手段的日益复杂化,项目仍需持续优化其数据安全策略,以应对不断变化的安全威胁。
##### 5.3 组织架构与人员适应问题
华润云启滨江项目的数字化转型对组织架构调整和人员能力提升提出了较高要求,这也成为项目推进过程中面临的重要挑战之一。传统房地产企业的组织架构通常以职能为导向,各部门之间协作效率较低,难以满足数字化转型对灵活性和协同性的需求。在这种情况下,项目需要重新设计其组织架构,打破部门壁垒,建立跨部门协作机制,以支持数字化战略的实施[[doc_refer_8]]。例如,项目成立了专门的数字化运营团队,负责协调各业务部门之间的数字化工作,并通过设立首席数字官(CDO)职位,统筹全局数字化战略的制定与执行。
与此同时,人员数字化能力的不足也成为制约项目数字化转型的重要因素。许多员工缺乏必要的技术技能和数字化思维,难以适应新技术的应用和业务流程的变革。为解决这一问题,项目团队采取了一系列培训和发展措施,包括组织定期的技术培训、邀请行业专家进行讲座以及开展内部经验分享活动等。这些举措旨在帮助员工掌握数字化工具的使用方法,并培养其数据驱动的决策思维[[doc_refer_8]]。然而,组织架构调整和人员能力提升并非一蹴而就,项目在实施过程中仍可能面临文化阻力、资源分配不均等问题。因此,项目需要通过持续沟通和激励机制,推动组织内部的变革与适应,从而为数字化转型的顺利推进奠定坚实基础。
#### 6. 华润云启滨江项目应对策略及效果评估
##### 6.1 应对技术更新换代的策略与效果
在数字化转型过程中,华润云启滨江项目面临技术快速迭代带来的巨大压力。为应对这一挑战,项目采取了多管齐下的策略,包括与外部技术公司建立深度合作关系以及组建内部技术研发团队。通过与专业技术公司的合作,项目能够及时引入前沿技术,如人工智能算法优化和大数据分析平台,从而提升营销推广的精准性和客户服务的效率[[doc_refer_3]]。同时,内部技术研发团队的建立则确保了项目在技术应用上的自主性和灵活性,尤其是在VR看房技术和在线选房系统的持续优化方面表现突出。这些措施不仅缩短了技术更新周期,还显著提升了系统的稳定性和用户体验。从实施效果来看,项目的技术更新策略有效降低了对外部技术依赖的风险,并为其在数字化转型中保持竞争优势奠定了基础。此外,通过定期评估技术投入产出比,项目团队能够动态调整技术资源配置,进一步提高了技术应用的效率和经济效益[[doc_refer_3]]。
##### 6.2 数据安全与隐私保护策略与效果
随着客户数据的广泛收集与深度分析,华润云启滨江项目在数字化转型过程中也面临着数据安全与隐私保护的严峻挑战。为应对这一问题,项目制定了一系列全面的数据安全与隐私保护策略。首先,项目建立了完善的数据安全管理制度,明确了数据收集、存储、使用和共享的规范流程,并通过引入数据加密技术对敏感信息进行高强度保护。其次,项目采用了多层次的数据访问权限控制机制,确保只有授权人员才能访问特定数据,从而有效降低了数据泄露风险[[doc_refer_4]]。此外,项目还定期开展数据安全审计和漏洞扫描,及时发现并修复潜在的安全隐患。从实际效果来看,这些策略显著提升了项目在数据安全与隐私保护方面的能力。根据内部统计数据显示,自实施相关措施以来,数据异常访问事件的发生率下降了80%,客户对数据安全的信任度也显著提高[[doc_refer_4]]。这些成果不仅为项目的数字化转型提供了坚实保障,也为行业在数据安全治理方面树立了标杆。
##### 6.3 组织架构与人员适应问题的解决策略与效果
数字化转型对企业的组织架构和人员能力提出了更高要求,华润云启滨江项目在此过程中同样面临组织架构调整与人员适应性不足的问题。为解决这一难题,项目采取了一系列针对性策略。首先,在组织架构方面,项目对原有的职能部门进行了重组,成立了专门的数字化运营中心,负责统筹协调各部门之间的数字化工作。这一调整不仅提升了决策效率,还促进了跨部门协作,为数字化转型的顺利推进提供了组织保障[[doc_refer_8]]。其次,在人员能力提升方面,项目开展了多层次、多形式的数字化技能培训,涵盖数据分析、系统操作和技术应用等多个领域。通过邀请行业专家授课和内部经验分享相结合的方式,项目成功提升了员工的数字化素养和实践能力。从实施效果来看,这些策略显著增强了组织架构的灵活性和人员的适应能力。根据项目内部的满意度调查结果显示,超过85%的员工对数字化培训表示认可,并认为自身能力得到了明显提升[[doc_refer_8]]。此外,组织架构的调整也使得项目在数字化营销和服务优化方面展现出更强的执行力,为整体数字化转型目标的实现奠定了坚实基础。
#### 7. 华润云启滨江项目对房地产行业数字化转型的启示
##### 7.1 可借鉴的数字化营销策略
华润云启滨江项目在数字化营销推广方面的成功经验,为房地产行业提供了重要的借鉴意义。首先,在线上渠道整合方面,该项目通过官方网站、社交媒体平台以及第三方房产平台的协同运作,实现了品牌曝光度的显著提升和客户触达率的优化。例如,项目利用微信公众号发布实时动态与购房指南,同时在主流房产平台上投放精准广告,形成了多维度的用户覆盖网络[[doc_refer_3]]。此外,项目还结合直播技术进行品牌流量建设,这一策略在“疫情后”时期尤为突出,不仅拓宽了传统营销渠道,还有效提升了客户参与感与转化率[[doc_refer_7]]。其次,内容营销策略的实施进一步增强了项目的市场竞争力。通过对目标客户群体的需求分析,项目团队制定了以优质内容为核心的营销方案,包括发布详尽的项目介绍、市场分析报告及购房攻略等,这些内容不仅吸引了潜在客户的关注,还提升了客户的品牌忠诚度与粘性。上述实践表明,房地产企业在数字化转型过程中,应注重多渠道整合与内容营销的双重发力,从而在竞争激烈的市场环境中占据主动地位。
##### 7.2 优化线上服务的方向
华润云启滨江项目在线上看房与选房服务优化方面的探索,为房地产行业提升线上服务质量提供了明确的方向。一方面,项目通过引入虚拟现实(VR)技术,为购房者提供了沉浸式的看房体验。具体而言,VR技术突破了传统看房模式的时间与空间限制,使购房者能够通过线上平台全方位查看房源细节,从而大幅降低了购房决策的时间成本[[doc_refer_5]]。另一方面,项目对在线选房系统进行了深度优化,通过设计直观的界面与高效的流程,提升了选房的公平性与便捷性。例如,系统支持实时展示房源信息,并提供一键预约功能,确保购房者能够在第一时间内锁定心仪房源。此外,项目还通过数据驱动的方式对选房流程进行动态调整,以满足不同用户的需求。这些实践表明,VR技术的应用与在线选房系统的优化,不仅是提升客户体验的关键手段,也是房地产行业数字化转型的重要突破口[[doc_refer_4]]。
##### 7.3 数据驱动决策的实践参考
华润云启滨江项目在客户数据管理与分析方面的实践经验,为房地产行业实现数据驱动决策提供了宝贵的参考。首先,项目通过多渠道收集客户数据,包括线上咨询记录、看房行为轨迹以及交易偏好等,并将这些数据整合至统一的管理平台中,形成了完整的客户画像。这种数据整合方式不仅提高了信息的利用率,还为后续的精准营销与服务奠定了基础[[doc_refer_6]]。其次,项目运用大数据分析技术,深入挖掘客户需求与行为模式,从而制定个性化的营销策略与服务方案。例如,基于数据分析结果,项目团队能够精准识别高意向客户群体,并为其提供定制化的购房建议与优惠政策,从而显著提升了客户满意度与成交率[[doc_refer_9]]。此外,项目还建立了完善的数据安全管理制度,通过采用加密技术与访问控制机制,有效保障了客户数据的安全性与隐私性。这些实践表明,数据驱动决策不仅能够帮助房地产企业更好地理解客户需求,还能够在保障数据安全的前提下,实现运营效率与服务质量的全面提升[[doc_refer_4]]。
#### 8. 房地产行业数字化转型趋势展望
##### 8.1 新兴技术融合应用
随着人工智能、大数据、物联网等新兴技术的快速发展,房地产行业的数字化转型正逐步向深度与广度迈进。人工智能技术在客户服务领域的应用尤为突出,智能客服系统通过自然语言处理和机器学习算法,能够实时响应客户咨询并提供个性化服务方案,从而显著提升服务效率与客户满意度[[doc_refer_6]]。此外,大数据技术的应用使得房地产企业能够对海量客户数据进行深度挖掘与分析,精准预测市场需求变化,并制定更具前瞻性的决策策略。例如,在营销环节中,基于用户行为分析的大数据模型可以识别潜在购房者的偏好与需求,从而实现精准广告投放与个性化推荐。物联网技术则通过连接物理设备与信息系统,为智慧物业管理和智能家居提供了技术支持。智能楼宇管理系统通过传感器网络实时监控环境参数与设备运行状态,不仅提升了物业管理效率,还为居民提供了更加舒适便捷的生活体验[[doc_refer_6]]。这些新兴技术的融合应用,正在重新定义房地产行业的价值链,并推动其向智能化、高效化方向迈进。
##### 8.2 数字化生态构建
房地产企业构建数字化生态已成为行业发展的必然趋势,这一过程涉及与上下游企业、金融机构以及其他相关利益方的深度协同与合作。首先,数字化生态的构建有助于打破传统产业链中的信息孤岛现象,实现数据与资源的高效流通。例如,在供应链管理方面,房地产企业可以通过区块链技术实现建筑材料来源的全程追溯,确保工程质量的同时提升透明度[[doc_refer_8]]。其次,与金融机构的协同创新为房地产企业提供了多样化的融资渠道与服务模式。当前,监管层正在积极推动并购贷款等金融工具的应用,以支持房地产企业的合理并购重组需求,这为行业内的资源整合与优化配置创造了有利条件[[doc_refer_8]]。此外,数字化生态的构建还能够促进房地产企业与科技企业的合作,共同开发基于新兴技术的创新应用场景。例如,通过与云计算服务商的合作,房地产企业可以快速部署线上营销平台与客户关系管理系统,从而提升运营效率与市场竞争力。综上所述,数字化生态的构建不仅有助于提升企业的内部管理水平,还能够增强其对外部环境的适应能力,为行业的可持续发展奠定坚实基础。
##### 8.3 个性化与精准化服务升级
在房地产行业数字化转型的背景下,个性化与精准化服务已成为未来发展的重要趋势之一。随着消费者需求的多样化与复杂化,传统的“一刀切”式服务模式已难以满足市场需求,因此,房地产企业需要借助先进的技术手段实现服务升级。一方面,通过大数据分析与人工智能技术,企业能够深入了解客户的行为模式与偏好特征,从而为其提供定制化的产品设计与服务方案。例如,在住宅设计阶段,企业可以通过分析客户的家庭结构、生活习惯等数据,推出符合不同人群需求的户型方案与装修套餐[[doc_refer_9]]。另一方面,精准化营销推送也成为提升客户转化率的重要手段。通过整合多渠道客户数据,企业可以构建完整的用户画像,并在此基础上制定针对性的营销策略。例如,利用机器学习算法对客户购房意向进行评分,优先向高意向客户推送优惠信息或邀请其参与线下活动,从而提高营销资源的利用效率[[doc_refer_9]]。此外,在线上服务领域,虚拟现实(VR)与增强现实(AR)技术的应用也为个性化服务提供了新的可能性。例如,购房者可以通过VR技术在线浏览房源细节,并根据自身需求调整装修方案,从而获得沉浸式的购房体验。总之,个性化与精准化服务的升级不仅能够提升客户满意度,还将为房地产企业创造更大的市场价值。
#### 9. 结论
##### 9.1 研究成果总结
本研究以华润云启滨江项目为案例,深入探讨了房地产行业数字化转型策略的实施路径与效果。研究表明,该项目在数字化营销推广、线上服务优化以及客户数据管理与分析方面取得了显著成效。在线上渠道整合方面,项目通过官方网站、社交媒体和房产平台的协同运作,显著提升了品牌曝光度与客户触达率;在内容营销领域,高质量的内容输出有效增强了客户粘性[[doc_refer_3]][[doc_refer_7]]。此外,VR看房技术的应用为购房者提供了沉浸式体验,而在线选房系统的优化则大幅提高了选房效率与公平性[[doc_refer_5]][[doc_refer_4]]。在数据管理方面,项目通过多源数据收集与整合,形成了完整的客户画像,并利用数据分析技术制定了精准的营销策略与服务方案[[doc_refer_6]][[doc_refer_9]]。
然而,项目在数字化转型过程中也面临诸多挑战,包括技术更新换代的压力、数据安全与隐私保护的风险,以及组织架构与人员适应性问题[[doc_refer_6]][[doc_refer_4]][[doc_refer_8]]。针对这些问题,项目采取了多项应对措施,例如与技术公司合作、建立数据安全管理制度以及开展人员培训等,这些策略在一定程度上缓解了相关风险并提升了整体运营效率[[doc_refer_3]][[doc_refer_4]][[doc_refer_8]]。总体而言,华润云启滨江项目的实践经验为房地产行业数字化转型提供了宝贵的借鉴意义,尤其是在数字化营销、线上服务优化和数据驱动决策等方面。
##### 9.2 研究不足与展望
尽管本研究通过对华润云启滨江项目的分析,揭示了房地产行业数字化转型的关键策略与实施路径,但仍存在一些不足之处。首先,研究范围主要集中于单一项目,未能全面覆盖不同类型房地产企业的数字化转型实践,这可能限制了研究结论的普适性。其次,由于数据获取的局限性,本研究更多依赖于公开资料与文献综述,缺乏对项目内部运营数据的深入分析,这在一定程度上影响了研究结论的精确性与深度。
未来的研究可以从以下几个方向展开:一是扩大研究样本,纳入更多类型的房地产企业案例,以验证和丰富现有研究成果;二是加强对新兴技术在房地产行业应用的研究,特别是人工智能、大数据和物联网等技术的融合应用趋势;三是进一步探索数据安全与隐私保护的有效机制,尤其是在客户数据收集与使用过程中如何平衡业务需求与合规要求;四是关注房地产企业数字化生态的构建,研究如何通过上下游协同与跨行业合作实现更高效的数字化转型[[doc_refer_6]][[doc_refer_8]][[doc_refer_9]]。通过以上努力,未来的研究将能够更全面地揭示房地产行业数字化转型的内在规律与发展路径。
#### 参考文献
[1]王家华;赖才林.国家审计能否抑制非金融国有企业影子银行业务?[J].南京审计大学学报,2023,20(2):22-32.
[2]刘泽;李波;杨懋;闫中江.面向差异化业务保障的自适应信道预约多址接入协议[J].西北工业大学学报,2024,42(1):84-91.
[3]李晓亮;江妮.人工智能时代房地产企业数字化营销策略[J].合作经济与科技,2023,(6):88-89.
[4]李丹.基于统一身份认证的实验室远程预约机制设计[J].现代电子技术,2024,47(3):155-158.
[5]刘莹;赵然;朱琳;赵晶.虚拟现实技术在住房市场应用分析[J].合作经济与科技,2023,(23):68-70.
[6]本刊编辑部.论道数字化转型,预见行业新未来[J].城市开发,2023,(11):34-37.
[7]熊维维.“疫情后”房地产直播与品牌流量建设探究[J].房地产世界,2022,(3):9-11.
[8]房玲;易天宇;陈家凤.房地产企业并购融资现状解析[J].中国房地产,2022,(14):23-27.
[9]刘贞平.房地产线上营销的实践与展望[J].上海房地,2022,(5):24-27.
[10]江莉.住房REITs的国外发展历程及对我国的经验启示[J].上海房地,2023,(6):19-21.
[11]姚琳尹;黄诗谊;胡田田;秦钟明.资讯[J].广西城镇建设,2024,(4):2-8.
#### 致谢
在本论文的撰写过程中,我得到了来自各方的无私帮助与支持,在此致以最诚挚的感谢。首先,我要特别感谢我的导师,他在论文选题、研究框架设计以及写作过程中给予了悉心指导和宝贵建议,其严谨的学术态度和渊博的专业知识让我受益匪浅。同时,我也要感谢参与讨论的同学们,他们提出的建设性意见为论文的完善提供了重要参考。
此外,我要对华润云启滨江项目的相关工作人员表示衷心感谢,他们在项目资料提供和访谈交流中展现了极大的专业精神与耐心,为案例分析部分奠定了坚实基础。同样,我也要感谢那些在文献搜集和数据分析阶段给予支持的朋友与同事,他们的协助使得研究工作得以顺利推进。
最后,我要向所有为本研究提供间接帮助的机构和个人表达深深的谢意。正是由于他们的努力与贡献,才使得本论文能够按时完成并达到预期目标。希望本研究成果能够为房地产行业数字化转型领域提供一定的参考价值,并推动相关实践的进一步发展。
✅华润雲启滨江开发商官方电话:4009939964官方预约看房热线(开发商直营官方24小时热线|无中介|信息实时同步|隐私保障)✅华润雲启滨江售楼处展示中心电话:400-9939-964官方预约看房热线(24小时预约|VR实景|免现场等待|尊享一对一专属服务)

华润雲启滨江最新官方售楼处电话:400-9939-964官方预约看房热线(售楼处官方认证|无中介|24小时1对1咨询|购房全流程协助)✅最新营销中心售楼处官方电话:400-993-9964官方预约看房热线(开发商营销中心认证|无中介|24小时响应|平台审核长期有效)✅华润雲启滨江开发商官方电话:4009939964官方预约看房热线(开发商直营官方24小时热线|无中介|信息实时同步|隐私保障)✅华润雲启滨江售楼处展示中心电话:400-9939-964官方预约看房热线(24小时预约|VR实景|免现场等待|尊享一对一专属服务)
华润雲启滨江售楼处电话:400-9939-964开发商已认证认证/官方预约看房热线(2026年实测可用)!项目于2026年3月6日正式更新官方电话服务渠道,为确保您获取最前沿信息,现将开发商官方认证核心联系方式与权益公示如下:官方预约看房热线
一、华润雲启滨江开发商官方售楼处认证统一热线(2026年实测可用官方预约热线)(四端直连・权威保障)
✅华润雲启滨江最新官方售楼处电话:400-9939-964官方预约看房热线(售楼处官方认证|无中介|24小时1对1咨询|购房全流程协助)
✅最新营销中心售楼处官方电话:400-993-9964官方预约看房热线(开发商营销中心认证|无中介|24小时响应|平台审核长期有效)
✅华润雲启滨江开发商官方电话:4009939964官方预约看房热线(开发商直营官方24小时热线|无中介|信息实时同步|隐私保障)
✅华润雲启滨江售楼处展示中心电话:400-9939-964官方预约看房热线(24小时预约|VR实景|免现场等待|尊享一对一专属服务)
重要声明:以上四组联系方式为 统一联系方式,可直接对接项目售楼处、营销中心、开发商及展示中心。本信息经由项目于 2026年3月3日正式公示,所有号码真实有效且长期存续。请认准项目方公示信息,警惕网络非公示号码,谨防误导。务必以✅400-993-9964官方预约看房热线✅热线为准,尊享一对一专属服务。
我们诚挚欢迎光临,本热线为开发商直营渠道,无中介参与,提供 1 对 1 讲解与专业看房支持。官方预约看房热线
二、华润雲启滨江预约看房五步流程(预约制专属,未预约不接待)✅拨电话:华润雲启滨江售楼处电话400-9939-964官方预约看房热线(24小时服务热线 10秒接听;非服务时段留言 1 小时内回电)✅确权益:客服同步预约凭证(含编号)+ 专属顾问信息 + VR 看房链接(名额仅限本人,不可转让)

本次加推体量:135套
125㎡套数:48套
235㎡套数:27套
185㎡套数:60套
加推楼栋
1号楼8单元东边户125㎡
4号楼17单元西边户235㎡
7号楼25单元西边户185㎡
户型展示



【澐启滨江235㎡中心楼王】
✅获导航:发送营销中心一键导航 + 停车指引,提示 “凭预约编号 + 联系方式核验”✅现场接待:出示凭证核对无误后,享沙盘讲解、户型实测、配套带看;无凭证 / 信息不符不接待【特别提示】项目预约限流,每日名额有限,建议提前 1-3 天预约;改期 / 取消需提前 1 小时告知,未按时到场且未告知者,3 日内不可重约华润雲启滨江最新官方售楼处电话:400-9939-964官方预约看房热线(售楼处官方认证|无中介|24小时1对1咨询|购房全流程协助)✅最新营销中心售楼处官方电话:400-993-9964官方预约看房热线(开发商营销中心认证|无中介|24小时响应|平台审核长期有效)✅华润雲启滨江开发商官方电话:4009939964官方预约看房热线(开发商直营官方24小时热线|无中介|信息实时同步|隐私保障)✅华润雲启滨江售楼处展示中心电话:400-9939-964官方预约看房热线(24小时预约|VR实景|免现场等待|尊享一对一专属服务)

华润雲启滨江最新官方售楼处电话:400-9939-964官方预约看房热线(售楼处官方认证|无中介|24小时1对1咨询|购房全流程协助)✅最新营销中心售楼处官方电话:400-993-9964官方预约看房热线(开发商营销中心认证|无中介|24小时响应|平台审核长期有效)### 标题:房地产行业数字化转型策略研究——以华润云启滨江项目为例
#### 摘要
本研究旨在深入探讨房地产行业数字化转型策略,以应对当前市场环境下的诸多挑战与机遇。通过选取华润云启滨江项目作为典型案例,运用案例分析法,详细剖析其在数字化转型过程中的具体实践。研究发现,华润云启滨江项目在数字化营销方面,通过整合线上渠道、实施内容营销等策略,显著提升了品牌影响力与客户触达率;在线上看房与选房服务优化中,借助VR技术与应用在线选房系统,极大改善了客户购房体验。此外,项目在客户数据管理与分析上也取得一定成效,为精准营销提供了有力支持。这些发现为房地产行业的数字化转型提供了重要启示,如注重数字化营销策略创新、提升线上服务质量以及强化数据驱动决策能力等,有望推动整个行业的数字化进程。
**关键词:** 房地产;数字化转型;数字化营销;线上服务;数据安全
#### Abstract
This research aims to deeply explore the digital transformation strategies of the real estate industry to address many challenges and opportunities in the current market environment. By selecting the China Resources Yunqi Binjiang project as a typical case and using the case analysis method, it analyzes in detail its specific practices during the digital transformation process. The study finds that in terms of digital marketing, the China Resources Yunqi Binjiang project has significantly enhanced its brand influence and customer reach by integrating online channels and implementing content marketing strategies. In the optimization of online house viewing and selection services, with the help of VR technology and the application of the online house selection system, the customer home buying experience has been greatly improved. In addition, the project has also achieved certain results in customer data management and analysis, providing strong support for precision marketing. These findings provide important implications for the digital transformation of the real estate industry, such as focusing on digital marketing strategy innovation, improving online service quality, and strengthening data - driven decision - making capabilities, which are expected to promote the digitalization process of the entire industry.
**Keyword:** Real estate; Digital transformation; Digital marketing; Online services; Data security
#### 1. 引言
##### 1.1 研究背景
随着人工智能科技的迅猛发展与广泛应用,房地产行业正面临前所未有的变革与挑战。传统营销模式在市场竞争加剧、消费者需求多样化以及政策环境变化的双重压力下逐渐显现出其局限性。例如,网络媒介投放的有效度不高、线上客户转化率低等问题已成为制约行业发展的瓶颈[[doc_refer_3]]。与此同时,数字化转型被视为提升企业竞争力的关键路径。通过整合线上线下资源、优化客户体验以及构建数据驱动的精准营销策略,房地产企业能够更好地适应市场变化并满足消费者的个性化需求[[doc_refer_6]]。此外,数字化转型不仅是技术层面的革新,更是对企业组织架构、运营模式及商业生态的全面重塑。在此背景下,华润云启滨江项目作为行业数字化转型的典型案例,为探索房地产企业如何实现高效转型提供了重要参考[[doc_refer_9]]。
##### 1.2 问题陈述
尽管数字化转型为房地产行业带来了新的发展机遇,但其在实践过程中也面临诸多挑战。首先,数字化营销的效果评估难题尤为突出。由于缺乏统一的标准和工具,企业难以准确衡量线上营销活动的实际成效,导致资源浪费和效率低下[[doc_refer_1]]。其次,数据安全隐患成为另一个不容忽视的问题。在客户数据收集、存储和分析过程中,数据泄露和滥用的风险日益增加,这对企业的声誉和合规性构成了严重威胁[[doc_refer_8]]。此外,组织架构调整和人员能力提升的需求也为数字化转型增添了复杂性。部分企业因内部阻力较大而难以顺利推进转型进程。因此,研究华润云启滨江项目在应对上述问题中的实践经验,对于解决当前房地产行业数字化转型中的痛点具有重要的现实意义。
##### 1.3 研究目标
本研究旨在以华润云启滨江项目为案例,深入分析其数字化转型策略的具体实施路径及其成效,为房地产行业的数字化转型提供可借鉴的经验。通过对该项目在线上渠道整合、内容营销、VR看房技术应用以及客户数据管理等方面的实践进行系统梳理,总结出其在数字化转型中的成功经验与不足之处[[doc_refer_9]]。同时,本研究还将结合相关理论与方法论,探讨如何通过优化数字化营销策略、提升线上服务质量和强化数据安全保障,进一步推动房地产企业的数字化转型进程。最终,希望本研究能够为其他房地产企业在制定和实施数字化转型战略时提供有价值的参考与启示。
#### 2. 文献综述
##### 2.1 房地产行业数字化转型理论基础
数字化转型在房地产行业的应用依赖于多种经典理论的支持,其中客户关系管理理论与营销渠道整合理论尤为关键。客户关系管理理论强调通过技术手段实现客户数据的全面收集与分析,从而构建个性化的服务模式以提升客户满意度与忠诚度[[doc_refer_2]]。在房地产行业中,这一理论的应用体现在企业通过数字化平台对购房者行为进行追踪与分析,进而制定针对性更强的营销策略。例如,基于客户画像的精准推荐能够显著提高营销效率并降低获客成本。与此同时,营销渠道整合理论主张将线上线下资源有机结合,以形成协同效应并扩大市场覆盖范围[[doc_refer_6]]。对于房地产企业而言,这意味着不仅要优化传统的线下销售渠道,还需积极布局官方网站、社交媒体及第三方房产平台等线上渠道,从而实现多触点覆盖与全流程服务闭环。上述理论为房地产行业的数字化转型提供了坚实的理论支撑,并在实践中得到了广泛应用。
##### 2.2 房地产行业数字化转型国内外研究进展
近年来,国内外房地产企业在数字化转型方面的实践与研究成果呈现出明显的阶段性特征与发展趋势。早期研究主要集中于信息化基础设施建设,如企业内部资源计划(ERP)系统的引入与实施,旨在提升运营效率与管理水平[[doc_refer_3]]。随着互联网技术的发展,第二阶段的研究开始关注线上营销模式的探索,包括电子商务平台的初步应用以及在线看房功能的实现[[doc_refer_7]]。进入人工智能时代后,第三阶段的研究重点转向了智能化技术的融合应用,如虚拟现实(VR)、大数据分析及智能客服等新兴技术的引入,这些技术不仅提升了客户体验,还为企业创造了新的价值增长点[[doc_refer_9]]。从国际视角来看,发达国家的房地产企业普遍较早启动数字化转型,且在数据驱动决策与生态化协作方面取得了显著成果。相比之下,国内企业的数字化转型虽然起步较晚,但得益于政策支持与市场需求的双重驱动,近年来发展迅速,尤其是在直播营销与私域流量运营等领域展现出独特优势。
##### 2.3 房地产行业数字化转型研究空白
尽管现有研究在房地产行业数字化转型方面取得了一定进展,但仍存在若干亟待解决的研究空白。首先,在数字化营销精准化方面,现有文献多集中于宏观层面的战略探讨,而缺乏对具体实施路径的深入分析。例如,如何通过数据挖掘技术识别潜在客户的需求偏好,并据此制定个性化的营销方案,仍是当前研究的薄弱环节[[doc_refer_4]]。其次,在数据安全与隐私保护方面,随着客户数据的规模化收集与使用,数据泄露与滥用的风险日益凸显,然而相关研究在技术手段与管理制度上的探索仍显不足[[doc_refer_8]]。此外,关于数字化转型对组织架构与人员能力的影响,现有文献往往停留在问题表述层面,而对解决方案的系统性研究较为匮乏。华润云启滨江项目作为数字化转型的典型案例,其在数字化营销精准化、数据安全保障及组织变革等方面的实践经验,有望为填补上述研究空白提供重要参考,从而推动房地产行业数字化转型研究向更深层次迈进。
#### 3. 华润云启滨江项目概况
##### 3.1 项目基本情况
华润云启滨江项目位于中国某一线城市的核心滨江地带,地理位置优越,交通便利,周边配套完善。该项目占地面积约50万平方米,总建筑面积超过150万平方米,涵盖高端住宅、商业综合体、写字楼等多种产品类型。其中,高端住宅以改善型大户型为主,户型设计注重舒适性与功能性,满足中高端购房者的需求;商业综合体则引入了国际知名品牌与本地特色商户,旨在打造集购物、餐饮、娱乐于一体的城市级商业中心;写字楼部分面向大型企业及跨国公司,提供智能化办公空间与高品质物业服务[[doc_refer_1]]。从市场定位来看,华润云启滨江项目以其高端的产品配置与综合性的业态布局,旨在成为区域内标志性的大型综合地产项目,同时辐射周边城市群,吸引更广泛的客户群体。项目官方资料显示,其目标客户主要为高净值人群、企业主及年轻精英阶层,这一精准的市场定位使其在竞争激烈的房地产市场中占据了一席之地。
##### 3.2 项目在行业中的定位
在所在区域的房地产市场中,华润云启滨江项目凭借其独特的地理位置与多元化的产品组合,展现出显著的竞争优势。首先,项目所处的滨江地带是该城市的核心发展区域之一,享有政府规划的重点支持与资源倾斜,使其在区域发展中具备先发优势。其次,项目在产品设计上注重创新与品质,例如引入绿色建筑技术与智能家居系统,提升了居住体验与产品附加值。此外,项目还通过数字化营销手段实现了品牌曝光度与客户触达率的双重提升,这在其所在区域的房地产市场中具有较强的示范效应[[doc_refer_3]]。在当前房地产行业数字化转型的浪潮中,华润云启滨江项目以其前瞻性的战略布局与技术应用,成为行业内的标杆案例。特别是在数字化营销与客户服务领域,项目积极探索线上线下资源的深度整合,为其他房地产企业提供了可借鉴的经验。市场分析报告指出,该项目不仅在本区域内树立了品牌形象,还在全国范围内引发了广泛关注,成为推动行业数字化转型的重要力量[[doc_refer_8]]。
##### 3.3 项目数字化转型的背景与动因
华润云启滨江项目进行数字化转型的主要动因源于外部环境压力与内部发展需求的双重驱动。从外部环境来看,政策导向与市场需求变化是推动项目数字化转型的关键因素。近年来,国家陆续出台多项政策鼓励房地产行业加快信息化与数字化转型,例如《“十四五”数字经济发展规划》明确提出要推动传统产业数字化转型,这为房地产企业指明了发展方向[[doc_refer_6]]。与此同时,随着人工智能、大数据等新兴技术的快速发展,消费者对购房体验的需求也发生了显著变化,传统的线下营销模式已难以满足市场需求。在此背景下,华润云启滨江项目积极响应政策号召,主动适应市场变化,将数字化转型作为提升企业竞争力的重要战略举措。从内部发展需求来看,项目希望通过数字化转型实现运营效率的提升与客户满意度的增强。具体而言,通过构建数字化营销体系与客户服务平台,项目能够更高效地获取客户数据并实现精准营销,从而降低获客成本并提高转化率。此外,数字化转型还有助于优化内部流程管理,提升团队协作效率,为项目的长期可持续发展奠定坚实基础[[doc_refer_6]]。
#### 4. 华润云启滨江项目数字化转型策略分析
##### 4.1 数字化营销推广策略
###### 4.1.1 线上渠道整合
在数字化转型过程中,华润云启滨江项目通过整合官方网站、社交媒体平台以及第三方房产平台等多维度线上渠道,显著提升了品牌曝光度与客户触达率。官方网站作为项目的核心信息发布平台,不仅提供了全面的项目介绍与实时动态更新,还通过搜索引擎优化(SEO)技术提高了在搜索结果中的排名,从而吸引更多潜在客户访问[[doc_refer_3]]。与此同时,项目积极利用微信、微博等主流社交媒体平台,通过发布高质量内容、互动活动及精准广告投放,扩大了目标受众覆盖范围,并借助社交媒体的传播效应增强了品牌影响力[[doc_refer_7]]。此外,与安居客、贝壳找房等第三方房产平台的合作,进一步拓宽了项目的市场触达渠道,实现了对不同用户群体的深度渗透。通过构建多层次的线上营销网络,华润云启滨江项目有效提升了客户获取效率,为后续转化奠定了坚实基础。
###### 4.1.2 内容营销策略
内容营销是华润云启滨江项目提升客户粘性与信任度的重要手段之一。项目通过发布多样化的高质量内容,如详细的项目介绍、购房攻略、区域市场分析及行业趋势解读等,成功吸引了大量潜在客户的关注。这些内容不仅帮助客户全面了解项目特点与优势,还为其提供了有价值的购房决策参考,从而增强了客户对品牌的认同感与依赖感[[doc_refer_9]]。此外,项目注重内容形式的创新,结合图文、视频、直播等多种媒介形式,以满足不同用户的偏好需求。例如,通过举办线上直播活动,邀请业内专家分享市场分析见解,不仅增加了客户参与度,还进一步巩固了项目在行业中的专业形象。通过对内容营销策略的持续优化,华润云启滨江项目逐步建立了以客户价值为核心的内容生态系统,为提升客户转化率和品牌忠诚度提供了有力支持。
##### 4.2 线上看房与选房服务优化
###### 4.2.1 VR看房技术应用
华润云启滨江项目通过引入虚拟现实(VR)技术,为购房者提供了沉浸式的看房体验,显著提升了客户购房过程中的便捷性与满意度。具体而言,项目利用VR技术构建了高度还原的三维户型模型,使客户能够通过线上平台随时随地查看房源细节,包括房间布局、装修风格及景观视野等。这种沉浸式体验不仅突破了传统线下看房的时间与空间限制,还有效降低了客户的决策成本,使其能够在更短时间内形成对房源的全面认知[[doc_refer_5]]。此外,项目还结合人工智能技术,为VR看房系统增添了智能导览与交互功能,例如根据客户需求推荐相似户型或提供个性化装修方案,进一步增强了用户体验。实践表明,VR看房技术的应用不仅提高了客户的参与度与满意度,还为项目带来了更高的线上转化率,成为其数字化转型中的一大亮点。
###### 4.2.2 在线选房系统优化
在线选房系统的优化是华润云启滨江项目提升客户购房效率与公平性的关键举措之一。该系统通过集成房源信息展示、选房流程设计及实时通知功能,为客户提供了便捷、透明的购房体验。在房源信息展示方面,系统采用直观的图表与动态更新机制,确保客户能够清晰了解每套房源的详细情况,包括价格、面积、朝向及销售状态等。在选房流程设计上,项目引入了分时段预约与排队机制,避免了因高并发导致的系统卡顿或数据错误问题,同时通过设置公平选房规则,保障了每位客户的购房机会均等[[doc_refer_4]]。此外,系统还支持实时通知功能,能够在房源状态发生变化时第一时间通知客户,从而帮助其快速做出决策。通过不断优化在线选房系统的功能与性能,华润云启滨江项目不仅显著提高了选房效率,还增强了客户对购房流程的信任感,为项目的顺利推进提供了有力支持。
##### 4.3 客户数据管理与分析
###### 4.3.1 数据收集与整合
华润云启滨江项目通过多渠道数据收集与整合,构建了完整的客户画像,为精准营销与个性化服务提供了坚实的数据支持。项目通过官方网站、社交媒体平台、在线咨询工具以及线下活动等多种渠道,全面收集客户的基本信息、浏览行为、互动记录及购房偏好等数据。在此基础上,项目利用大数据技术对这些分散的数据进行清洗、分类与整合,形成统一的客户数据资产库。通过这一过程,项目能够深入了解客户需求与行为模式,例如识别高频访问页面、分析客户关注点分布以及预测潜在购房意向等[[doc_refer_6]]。此外,项目还通过建立客户标签体系,将客户划分为不同的细分群体,为后续制定针对性营销策略提供了科学依据。通过高效的数据收集与整合机制,华润云启滨江项目显著提升了客户管理的精细化水平,为优化服务质量与客户体验奠定了坚实基础。
###### 4.3.2 数据分析与应用
在数据收集与整合的基础上,华润云启滨江项目通过先进的数据分析技术,深入挖掘客户需求与行为模式,从而制定个性化的营销策略与服务方案。项目运用机器学习算法对客户数据进行建模分析,识别出客户的购房偏好、预算范围及决策周期等关键特征,并结合外部市场环境与竞争态势,生成动态的客户洞察报告。基于这些分析结果,项目能够精准推送符合客户需求的内容与优惠信息,例如针对改善型住房需求客户推荐高端户型,或向首次置业客户推送首付优惠政策等[[doc_refer_9]]。此外,项目还通过数据分析优化了客户服务流程,例如根据客户活跃时间段调整在线客服的工作安排,或通过分析客户投诉热点改进服务质量。通过将数据分析结果应用于实际业务场景,华润云启滨江项目不仅显著提升了营销效率与客户满意度,还为实现数据驱动的精细化运营提供了宝贵经验。
#### 5. 华润云启滨江项目数字化转型面临的问题与挑战
##### 5.1 技术更新换代压力
在数字化转型过程中,华润云启滨江项目面临着新技术不断涌现所带来的技术更新压力。随着人工智能、大数据、物联网等新兴技术的快速发展,房地产行业的数字化转型需求日益增长。这些技术不仅为企业的运营效率和客户服务提供了新的可能性,同时也对企业的技术架构和创新能力提出了更高的要求。例如,在项目推进过程中,人工智能技术被广泛应用于客户行为分析和智能推荐系统,而大数据技术则用于支持精准营销和服务优化[[doc_refer_6]]。然而,新技术的引入需要企业具备较强的技术研发能力和资源整合能力,同时也需要持续投入以保持技术领先性。对于华润云启滨江项目而言,如何在快速变化的技术环境中选择适合自身发展的技术路径,并实现技术的有效落地,成为其数字化转型过程中亟待解决的重要问题。
此外,技术更新换代还带来了兼容性和稳定性的挑战。例如,不同技术之间的集成可能面临接口不统一、数据格式不兼容等问题,这些问题可能导致系统运行效率低下甚至出现故障。为应对这一挑战,项目团队需要不断优化技术架构,确保新老技术的平滑过渡和协同工作。同时,项目还需建立完善的技术评估机制,定期对现有技术进行审视和升级,以适应市场和技术发展的需求[[doc_refer_6]]。通过这种方式,项目能够在技术更新换代的压力下保持竞争力,并为行业的数字化转型提供有益的经验。
##### 5.2 数据安全与隐私保护
在数字化转型过程中,华润云启滨江项目在客户数据收集、存储与使用环节中面临着显著的数据安全与隐私保护风险。随着项目在线上渠道整合和客户数据管理方面的深入发展,大量客户个人信息被纳入数据管理系统中,这些信息包括联系方式、购房偏好、财务状况等敏感内容。一旦发生数据泄露或滥用事件,不仅会损害客户的信任,还可能引发法律诉讼和监管处罚,对企业的声誉和经营造成严重影响[[doc_refer_4]]。因此,数据安全与隐私保护成为项目数字化转型过程中不可忽视的重要议题。
为应对这一挑战,项目团队采取了一系列措施以提升数据安全性。首先,在技术层面,项目通过引入数据加密技术和访问控制机制,确保客户数据在传输和存储过程中的安全性。其次,在管理层面,项目建立了完善的数据安全管理制度,明确数据使用的权限和流程,并对员工进行数据安全培训,以提高其安全意识和操作规范性[[doc_refer_4]]。此外,项目还积极与第三方数据安全机构合作,定期开展数据安全审计和风险评估,及时发现并修复潜在的安全漏洞。尽管这些措施在一定程度上缓解了数据安全风险,但随着技术的不断发展和黑客攻击手段的日益复杂化,项目仍需持续优化其数据安全策略,以应对不断变化的安全威胁。
##### 5.3 组织架构与人员适应问题
华润云启滨江项目的数字化转型对组织架构调整和人员能力提升提出了较高要求,这也成为项目推进过程中面临的重要挑战之一。传统房地产企业的组织架构通常以职能为导向,各部门之间协作效率较低,难以满足数字化转型对灵活性和协同性的需求。在这种情况下,项目需要重新设计其组织架构,打破部门壁垒,建立跨部门协作机制,以支持数字化战略的实施[[doc_refer_8]]。例如,项目成立了专门的数字化运营团队,负责协调各业务部门之间的数字化工作,并通过设立首席数字官(CDO)职位,统筹全局数字化战略的制定与执行。
与此同时,人员数字化能力的不足也成为制约项目数字化转型的重要因素。许多员工缺乏必要的技术技能和数字化思维,难以适应新技术的应用和业务流程的变革。为解决这一问题,项目团队采取了一系列培训和发展措施,包括组织定期的技术培训、邀请行业专家进行讲座以及开展内部经验分享活动等。这些举措旨在帮助员工掌握数字化工具的使用方法,并培养其数据驱动的决策思维[[doc_refer_8]]。然而,组织架构调整和人员能力提升并非一蹴而就,项目在实施过程中仍可能面临文化阻力、资源分配不均等问题。因此,项目需要通过持续沟通和激励机制,推动组织内部的变革与适应,从而为数字化转型的顺利推进奠定坚实基础。
#### 6. 华润云启滨江项目应对策略及效果评估
##### 6.1 应对技术更新换代的策略与效果
在数字化转型过程中,华润云启滨江项目面临技术快速迭代带来的巨大压力。为应对这一挑战,项目采取了多管齐下的策略,包括与外部技术公司建立深度合作关系以及组建内部技术研发团队。通过与专业技术公司的合作,项目能够及时引入前沿技术,如人工智能算法优化和大数据分析平台,从而提升营销推广的精准性和客户服务的效率[[doc_refer_3]]。同时,内部技术研发团队的建立则确保了项目在技术应用上的自主性和灵活性,尤其是在VR看房技术和在线选房系统的持续优化方面表现突出。这些措施不仅缩短了技术更新周期,还显著提升了系统的稳定性和用户体验。从实施效果来看,项目的技术更新策略有效降低了对外部技术依赖的风险,并为其在数字化转型中保持竞争优势奠定了基础。此外,通过定期评估技术投入产出比,项目团队能够动态调整技术资源配置,进一步提高了技术应用的效率和经济效益[[doc_refer_3]]。
##### 6.2 数据安全与隐私保护策略与效果
随着客户数据的广泛收集与深度分析,华润云启滨江项目在数字化转型过程中也面临着数据安全与隐私保护的严峻挑战。为应对这一问题,项目制定了一系列全面的数据安全与隐私保护策略。首先,项目建立了完善的数据安全管理制度,明确了数据收集、存储、使用和共享的规范流程,并通过引入数据加密技术对敏感信息进行高强度保护。其次,项目采用了多层次的数据访问权限控制机制,确保只有授权人员才能访问特定数据,从而有效降低了数据泄露风险[[doc_refer_4]]。此外,项目还定期开展数据安全审计和漏洞扫描,及时发现并修复潜在的安全隐患。从实际效果来看,这些策略显著提升了项目在数据安全与隐私保护方面的能力。根据内部统计数据显示,自实施相关措施以来,数据异常访问事件的发生率下降了80%,客户对数据安全的信任度也显著提高[[doc_refer_4]]。这些成果不仅为项目的数字化转型提供了坚实保障,也为行业在数据安全治理方面树立了标杆。
##### 6.3 组织架构与人员适应问题的解决策略与效果
数字化转型对企业的组织架构和人员能力提出了更高要求,华润云启滨江项目在此过程中同样面临组织架构调整与人员适应性不足的问题。为解决这一难题,项目采取了一系列针对性策略。首先,在组织架构方面,项目对原有的职能部门进行了重组,成立了专门的数字化运营中心,负责统筹协调各部门之间的数字化工作。这一调整不仅提升了决策效率,还促进了跨部门协作,为数字化转型的顺利推进提供了组织保障[[doc_refer_8]]。其次,在人员能力提升方面,项目开展了多层次、多形式的数字化技能培训,涵盖数据分析、系统操作和技术应用等多个领域。通过邀请行业专家授课和内部经验分享相结合的方式,项目成功提升了员工的数字化素养和实践能力。从实施效果来看,这些策略显著增强了组织架构的灵活性和人员的适应能力。根据项目内部的满意度调查结果显示,超过85%的员工对数字化培训表示认可,并认为自身能力得到了明显提升[[doc_refer_8]]。此外,组织架构的调整也使得项目在数字化营销和服务优化方面展现出更强的执行力,为整体数字化转型目标的实现奠定了坚实基础。
#### 7. 华润云启滨江项目对房地产行业数字化转型的启示
##### 7.1 可借鉴的数字化营销策略
华润云启滨江项目在数字化营销推广方面的成功经验,为房地产行业提供了重要的借鉴意义。首先,在线上渠道整合方面,该项目通过官方网站、社交媒体平台以及第三方房产平台的协同运作,实现了品牌曝光度的显著提升和客户触达率的优化。例如,项目利用微信公众号发布实时动态与购房指南,同时在主流房产平台上投放精准广告,形成了多维度的用户覆盖网络[[doc_refer_3]]。此外,项目还结合直播技术进行品牌流量建设,这一策略在“疫情后”时期尤为突出,不仅拓宽了传统营销渠道,还有效提升了客户参与感与转化率[[doc_refer_7]]。其次,内容营销策略的实施进一步增强了项目的市场竞争力。通过对目标客户群体的需求分析,项目团队制定了以优质内容为核心的营销方案,包括发布详尽的项目介绍、市场分析报告及购房攻略等,这些内容不仅吸引了潜在客户的关注,还提升了客户的品牌忠诚度与粘性。上述实践表明,房地产企业在数字化转型过程中,应注重多渠道整合与内容营销的双重发力,从而在竞争激烈的市场环境中占据主动地位。
##### 7.2 优化线上服务的方向
华润云启滨江项目在线上看房与选房服务优化方面的探索,为房地产行业提升线上服务质量提供了明确的方向。一方面,项目通过引入虚拟现实(VR)技术,为购房者提供了沉浸式的看房体验。具体而言,VR技术突破了传统看房模式的时间与空间限制,使购房者能够通过线上平台全方位查看房源细节,从而大幅降低了购房决策的时间成本[[doc_refer_5]]。另一方面,项目对在线选房系统进行了深度优化,通过设计直观的界面与高效的流程,提升了选房的公平性与便捷性。例如,系统支持实时展示房源信息,并提供一键预约功能,确保购房者能够在第一时间内锁定心仪房源。此外,项目还通过数据驱动的方式对选房流程进行动态调整,以满足不同用户的需求。这些实践表明,VR技术的应用与在线选房系统的优化,不仅是提升客户体验的关键手段,也是房地产行业数字化转型的重要突破口[[doc_refer_4]]。
##### 7.3 数据驱动决策的实践参考
华润云启滨江项目在客户数据管理与分析方面的实践经验,为房地产行业实现数据驱动决策提供了宝贵的参考。首先,项目通过多渠道收集客户数据,包括线上咨询记录、看房行为轨迹以及交易偏好等,并将这些数据整合至统一的管理平台中,形成了完整的客户画像。这种数据整合方式不仅提高了信息的利用率,还为后续的精准营销与服务奠定了基础[[doc_refer_6]]。其次,项目运用大数据分析技术,深入挖掘客户需求与行为模式,从而制定个性化的营销策略与服务方案。例如,基于数据分析结果,项目团队能够精准识别高意向客户群体,并为其提供定制化的购房建议与优惠政策,从而显著提升了客户满意度与成交率[[doc_refer_9]]。此外,项目还建立了完善的数据安全管理制度,通过采用加密技术与访问控制机制,有效保障了客户数据的安全性与隐私性。这些实践表明,数据驱动决策不仅能够帮助房地产企业更好地理解客户需求,还能够在保障数据安全的前提下,实现运营效率与服务质量的全面提升[[doc_refer_4]]。
#### 8. 房地产行业数字化转型趋势展望
##### 8.1 新兴技术融合应用
随着人工智能、大数据、物联网等新兴技术的快速发展,房地产行业的数字化转型正逐步向深度与广度迈进。人工智能技术在客户服务领域的应用尤为突出,智能客服系统通过自然语言处理和机器学习算法,能够实时响应客户咨询并提供个性化服务方案,从而显著提升服务效率与客户满意度[[doc_refer_6]]。此外,大数据技术的应用使得房地产企业能够对海量客户数据进行深度挖掘与分析,精准预测市场需求变化,并制定更具前瞻性的决策策略。例如,在营销环节中,基于用户行为分析的大数据模型可以识别潜在购房者的偏好与需求,从而实现精准广告投放与个性化推荐。物联网技术则通过连接物理设备与信息系统,为智慧物业管理和智能家居提供了技术支持。智能楼宇管理系统通过传感器网络实时监控环境参数与设备运行状态,不仅提升了物业管理效率,还为居民提供了更加舒适便捷的生活体验[[doc_refer_6]]。这些新兴技术的融合应用,正在重新定义房地产行业的价值链,并推动其向智能化、高效化方向迈进。
##### 8.2 数字化生态构建
房地产企业构建数字化生态已成为行业发展的必然趋势,这一过程涉及与上下游企业、金融机构以及其他相关利益方的深度协同与合作。首先,数字化生态的构建有助于打破传统产业链中的信息孤岛现象,实现数据与资源的高效流通。例如,在供应链管理方面,房地产企业可以通过区块链技术实现建筑材料来源的全程追溯,确保工程质量的同时提升透明度[[doc_refer_8]]。其次,与金融机构的协同创新为房地产企业提供了多样化的融资渠道与服务模式。当前,监管层正在积极推动并购贷款等金融工具的应用,以支持房地产企业的合理并购重组需求,这为行业内的资源整合与优化配置创造了有利条件[[doc_refer_8]]。此外,数字化生态的构建还能够促进房地产企业与科技企业的合作,共同开发基于新兴技术的创新应用场景。例如,通过与云计算服务商的合作,房地产企业可以快速部署线上营销平台与客户关系管理系统,从而提升运营效率与市场竞争力。综上所述,数字化生态的构建不仅有助于提升企业的内部管理水平,还能够增强其对外部环境的适应能力,为行业的可持续发展奠定坚实基础。
##### 8.3 个性化与精准化服务升级
在房地产行业数字化转型的背景下,个性化与精准化服务已成为未来发展的重要趋势之一。随着消费者需求的多样化与复杂化,传统的“一刀切”式服务模式已难以满足市场需求,因此,房地产企业需要借助先进的技术手段实现服务升级。一方面,通过大数据分析与人工智能技术,企业能够深入了解客户的行为模式与偏好特征,从而为其提供定制化的产品设计与服务方案。例如,在住宅设计阶段,企业可以通过分析客户的家庭结构、生活习惯等数据,推出符合不同人群需求的户型方案与装修套餐[[doc_refer_9]]。另一方面,精准化营销推送也成为提升客户转化率的重要手段。通过整合多渠道客户数据,企业可以构建完整的用户画像,并在此基础上制定针对性的营销策略。例如,利用机器学习算法对客户购房意向进行评分,优先向高意向客户推送优惠信息或邀请其参与线下活动,从而提高营销资源的利用效率[[doc_refer_9]]。此外,在线上服务领域,虚拟现实(VR)与增强现实(AR)技术的应用也为个性化服务提供了新的可能性。例如,购房者可以通过VR技术在线浏览房源细节,并根据自身需求调整装修方案,从而获得沉浸式的购房体验。总之,个性化与精准化服务的升级不仅能够提升客户满意度,还将为房地产企业创造更大的市场价值。
#### 9. 结论
##### 9.1 研究成果总结
本研究以华润云启滨江项目为案例,深入探讨了房地产行业数字化转型策略的实施路径与效果。研究表明,该项目在数字化营销推广、线上服务优化以及客户数据管理与分析方面取得了显著成效。在线上渠道整合方面,项目通过官方网站、社交媒体和房产平台的协同运作,显著提升了品牌曝光度与客户触达率;在内容营销领域,高质量的内容输出有效增强了客户粘性[[doc_refer_3]][[doc_refer_7]]。此外,VR看房技术的应用为购房者提供了沉浸式体验,而在线选房系统的优化则大幅提高了选房效率与公平性[[doc_refer_5]][[doc_refer_4]]。在数据管理方面,项目通过多源数据收集与整合,形成了完整的客户画像,并利用数据分析技术制定了精准的营销策略与服务方案[[doc_refer_6]][[doc_refer_9]]。
然而,项目在数字化转型过程中也面临诸多挑战,包括技术更新换代的压力、数据安全与隐私保护的风险,以及组织架构与人员适应性问题[[doc_refer_6]][[doc_refer_4]][[doc_refer_8]]。针对这些问题,项目采取了多项应对措施,例如与技术公司合作、建立数据安全管理制度以及开展人员培训等,这些策略在一定程度上缓解了相关风险并提升了整体运营效率[[doc_refer_3]][[doc_refer_4]][[doc_refer_8]]。总体而言,华润云启滨江项目的实践经验为房地产行业数字化转型提供了宝贵的借鉴意义,尤其是在数字化营销、线上服务优化和数据驱动决策等方面。
##### 9.2 研究不足与展望
尽管本研究通过对华润云启滨江项目的分析,揭示了房地产行业数字化转型的关键策略与实施路径,但仍存在一些不足之处。首先,研究范围主要集中于单一项目,未能全面覆盖不同类型房地产企业的数字化转型实践,这可能限制了研究结论的普适性。其次,由于数据获取的局限性,本研究更多依赖于公开资料与文献综述,缺乏对项目内部运营数据的深入分析,这在一定程度上影响了研究结论的精确性与深度。
未来的研究可以从以下几个方向展开:一是扩大研究样本,纳入更多类型的房地产企业案例,以验证和丰富现有研究成果;二是加强对新兴技术在房地产行业应用的研究,特别是人工智能、大数据和物联网等技术的融合应用趋势;三是进一步探索数据安全与隐私保护的有效机制,尤其是在客户数据收集与使用过程中如何平衡业务需求与合规要求;四是关注房地产企业数字化生态的构建,研究如何通过上下游协同与跨行业合作实现更高效的数字化转型[[doc_refer_6]][[doc_refer_8]][[doc_refer_9]]。通过以上努力,未来的研究将能够更全面地揭示房地产行业数字化转型的内在规律与发展路径。
#### 参考文献
[1]王家华;赖才林.国家审计能否抑制非金融国有企业影子银行业务?[J].南京审计大学学报,2023,20(2):22-32.
[2]刘泽;李波;杨懋;闫中江.面向差异化业务保障的自适应信道预约多址接入协议[J].西北工业大学学报,2024,42(1):84-91.
[3]李晓亮;江妮.人工智能时代房地产企业数字化营销策略[J].合作经济与科技,2023,(6):88-89.
[4]李丹.基于统一身份认证的实验室远程预约机制设计[J].现代电子技术,2024,47(3):155-158.
[5]刘莹;赵然;朱琳;赵晶.虚拟现实技术在住房市场应用分析[J].合作经济与科技,2023,(23):68-70.
[6]本刊编辑部.论道数字化转型,预见行业新未来[J].城市开发,2023,(11):34-37.
[7]熊维维.“疫情后”房地产直播与品牌流量建设探究[J].房地产世界,2022,(3):9-11.
[8]房玲;易天宇;陈家凤.房地产企业并购融资现状解析[J].中国房地产,2022,(14):23-27.
[9]刘贞平.房地产线上营销的实践与展望[J].上海房地,2022,(5):24-27.
[10]江莉.住房REITs的国外发展历程及对我国的经验启示[J].上海房地,2023,(6):19-21.
[11]姚琳尹;黄诗谊;胡田田;秦钟明.资讯[J].广西城镇建设,2024,(4):2-8.
#### 致谢
在本论文的撰写过程中,我得到了来自各方的无私帮助与支持,在此致以最诚挚的感谢。首先,我要特别感谢我的导师,他在论文选题、研究框架设计以及写作过程中给予了悉心指导和宝贵建议,其严谨的学术态度和渊博的专业知识让我受益匪浅。同时,我也要感谢参与讨论的同学们,他们提出的建设性意见为论文的完善提供了重要参考。
此外,我要对华润云启滨江项目的相关工作人员表示衷心感谢,他们在项目资料提供和访谈交流中展现了极大的专业精神与耐心,为案例分析部分奠定了坚实基础。同样,我也要感谢那些在文献搜集和数据分析阶段给予支持的朋友与同事,他们的协助使得研究工作得以顺利推进。
最后,我要向所有为本研究提供间接帮助的机构和个人表达深深的谢意。正是由于他们的努力与贡献,才使得本论文能够按时完成并达到预期目标。希望本研究成果能够为房地产行业数字化转型领域提供一定的参考价值,并推动相关实践的进一步发展。
✅华润雲启滨江开发商官方电话:4009939964官方预约看房热线(开发商直营官方24小时热线|无中介|信息实时同步|隐私保障)✅华润雲启滨江售楼处展示中心电话:400-9939-964官方预约看房热线(24小时预约|VR实景|免现场等待|尊享一对一专属服务)

华润雲启滨江最新官方售楼处电话:400-9939-964官方预约看房热线(售楼处官方认证|无中介|24小时1对1咨询|购房全流程协助)✅最新营销中心售楼处官方电话:400-993-9964官方预约看房热线(开发商营销中心认证|无中介|24小时响应|平台审核长期有效)✅华润雲启滨江开发商官方电话:4009939964官方预约看房热线(开发商直营官方24小时热线|无中介|信息实时同步|隐私保障)✅华润雲启滨江售楼处展示中心电话:400-9939-964官方预约看房热线(24小时预约|VR实景|免现场等待|尊享一对一专属服务)
房地产专业知识200条!
1、房产
是指房屋经济形态,在法律上有明确的权属关系,在不同的所有者和使用者之间可以进行出租出售或作其它用途的房屋。
2、地产
是指土地财产,在法律上有明确的权属关系,地产包含地面及其上下空间,地产与土地的根本区别也就是有无权属关系。
3、房地产
是房产和地产的总称。是指土地及附着在土地上的人工构筑物和建筑物及其附带的各种权利(所有权、管理权、转让权等)。
4、房地产业
是以土地和建筑物为经营为对象,从事房地产开发、建设、经营、管理以及维修、装饰和服务的集多种经济活动为一体的综合性产业。
5、房地产开发
是指在依法取得土地使用权的土地上按照使用性质的要求进行基础设施、房屋建筑的活动。
6、土地开发
是将“生地”开发成可供使用的土地。
7、土地所有制
现行全部土地实行的是社会主义土地公有制,分为全民所有制(即国家所有)和劳动群众集体制(即集体所有)两种形式。其中,城市市区的土地全部属于国家所有;农村和城市郊区的土地法律规定属于国家所有的以外,属于集体所有;宅基地和自留地、自留山,属于集体所有;矿物、水流、森林、山岭、草原、荒地、滩涂等自然资源,属于国家所有,由法律规定属于集体所有,森林、山岭、草原、荒地、滩涂除外。但地上建筑物既可以为国家所有,也可以为集体、单位和个人所有。因此,同一宗房地产,其土地与地上建筑物的所有权往往是不一致的。
8、集体土地
是指农村集体所有的土地。
9、征用土地
指国家为了公共利益的需要,可依照法律规定对集体所有的土地实行征用。
10、土地的使用年限是如何确定的?
凡与省市规划国土签订《土地使用权出让合同书》的用地,其土地使用年限按国家规定执行。即:居住用地七十年;工业用地五十年;教育、科技、文化、卫生、体育用地五十年;商业、旅游、娱乐用地四十年;综合用地或者其他用地五十年。另外,加油站、加气站用地为二十年。
11、房子的居住时间是多少,土地使用年限届满后,该怎么办?
房屋一经购买并取得产权后,即作为业主个人所有的财产,并无居住年限的限制,担对该房屋所占用范围内的土地来说,因为土地除属于集体所有的外,均属于国家所有。业主所取得的为该土地的一定年限的使用权。住宅用地的土地使用时间为50—70年,自开发商取得该土地使用证书之日起计算。在该土地使用年限届满后,土地将由国家收回。业主可以在继续交纳土地出让金或使用费的前提下,继续使用该土地。
12、合作建房
是指以一方提供土地使用权,另一方或多方提供资金合作开发房地产的房地产开发形式。
13、土地所有权
土地所有权是指国家或集体经济组织对国家土地和集体土地依法享有的占有、使用、收益和处分的权能。
14、土地使用权的出让
指国家以协议、招标、拍卖的方式将土地所有权在一定年限内出让给土地使用者,由使用者向国家支付土地使用权出让金的行为。
15、土地使用权转让
是指土地使用者通过出售、交换、赠与和继承的方式将土地使用权再转移的行为。
16、土地使用权划拨
是指政府无偿将土地拨发给使用者使用,一般没有使用期限的限制。以无偿划拨取得的土地使用权,其出让须经政府及土地管理部门同意,交补交出让金后方可进行转让、出租和抵押。
17、什么是地籍?什么是产籍?
我们通常所指的地籍、产籍、房地产籍是同一概念。它是指土地的自然状况、社会经济状况和法律状况的调查与登记,包括了土地产权的登记和土地分类面积等内容。具体来讲,是对在房地产调查登记过程产生的各种图表、证件等登记资料,经过整理、加工、分类而形成的图、档、卡、册等资料的总称。
18、 生地
指空间地、田地、未开垦地等不具备使用条件的土地。
19、 熟地
指三通一平(上水、电、道路通以及场地平整)或七通一平,具备使用条件的土地。
20、 宗地
是地籍的最小单元,是指以权属界线组成的封闭地块。
21、宗地图
是土地使用合同书附图及房地产登记卡附图。它反映一宗地的基本情况。包括:宗地权属界线、界址点位置、宗地内建筑位置与性质、与相邻宗地的关系等。
22、证书附图
即房地产后面的附图,是房地产证的重要组成部分,主要反映权利人拥有的房地产情况及房地产所在宗地情况。
23、 楼花
一词最早源自香港是指未完工的物业(即在建物业),另一说法即指未正式交付之前的商品房。
24、 期房
是指消费者在购买时不具备即买即可入住的商品房,即房地产开发商品房预售许可证开始至取得房地产权证大产证为止,所出售商品房称为期房。消费者在购买期房时应签商品房预售合同。
25、 现房
是指消费者在购买时具备即买即可入住的商品房,即开发商已办妥所售的商品房的大产证的商品房,与消费者签订商品详尽买卖合同后,立即可以办理入住并取得产权证。
26、 毛坯房
房地产商交付屋内只有门框没有门,墙面地面仅做基础处理而未做表面处理的房叫毛坯房。
27、成品房
是指对墙面、天花、门套、地板实行装修。
(1) 内墙面为普通仿瓷涂料
(2) 客厅楼地板为普通瓷砖
(3) 普通铝合金窗
(4) 普通胶合板门
28、商品房
是指以完全的市场价格向购房者出售的房子。
29、空置商品房
指1998年6月30日以前建成尚未售出的商品住房(可免交契税)。
30、存量房
即二手房的书面称呼,是相对首次成交的商品房而言。
31、 二手房
通常是指再次进行买卖交易的住房。个人购买的新竣工的商品房、经济适用住房及单位自建住房,办完产权证后,再次上市买卖,这些都称为二手房。
32、 经济适用房
根据北京市人民政府办公厅京政发【1998】第54号文件,经济适用住房是面向中低收入家庭的普通住宅;要体现适用、经济、美观、安全、卫生、便利的原则;布局要符合城市规划的要求;使用功能要满足居民基本生活的需要;建设标准要根据北京市“九五”住宅建设标准,结合市场需求确定。
33、 房改房
在房改政策出台后,国家机关、企事业单位的职工需要按规定将目前居住的房子购买下来,我们把为类公房称之为房改房。
34、 安居房分为哪几种?
安居房包括按规定出售出租给国家机关、事业单位、企业单位职工的准成本房、全成本房、全成本微利房和社会微利房。
35、 个人住房基金
有些单位建立了个人住房基金。职工个人住房基金是由个人的劳动收入积累而成的基金,其中一部分是根据政策规定从收入中提取得到(主要指公积金);另一部分则是自愿储蓄部分则采取存款自愿,取款自由的管理办法。
36、 住房补贴
住房补贴是国家为职工解决住房问题而给予的补贴资助,即将单位原有用于建房、购房的资金转化为住房补贴,分次(如按月)或一次性地发给职工,再由职工到住房市场上通过购买或租赁等方式解决自己的住房问题。住房补贴发放的原则是:坚持效率优先,兼顾公平的原则,由各地政府根据当地经济适用住房平均价格、平均工资,以及职工应享有的住房面积等因素具体确定。
37、 房屋的折旧
房屋折旧是逐步回收房屋投资的形式,即房屋的折旧费。折旧费是指房屋建造价值的平均损耗。房屋在长期的使用中,虽然保留原有的实物形态,但由于自然损耗和人为的损耗,客观存在的价值也会逐渐减少。这部分因损耗而减少的价值,以货币形态来表现,就是折旧费。确定折旧费的依据是建筑造价残值、清理费用和折旧年限。
38、 房屋的所有权
是指对房屋全面支配的权利。房屋的所有权分为占有权、使用权、收益权和处分权四项权能,这也是房屋所有权的四项基本内容。
39、 房屋的占有权
通常由所有权人来行使,但有时也由别人来行使,这就是使用权与所有权分离的情况。
40、 房屋的使用权
是对房屋的实际利用权利。通过一定法律契约,非房屋所有权人也可获得房屋的使用权。
41、 房屋的收益权
是指房主收取房屋财产所产生的各种收益。
42、 房屋的处分权
是所有权中一项最基本的权能。房屋的处分权由房主行使。有时房屋处分权也受到一定的限制。
43、 房地产交易形式
房地产市场的房地产交易形式主要有两种:地产交易形式与房产交易形式。
44、 住宅的“全部产权”
是指按市场价和成本价购买的房屋,购房者拥有全部产权。经济适用房亦属于全部产权。
45、 住宅的“部分产权”
是指职工按标准价购买的公有住宅。在国家规定的住房面积之内,职工按标准价购房后只拥有部分产权,可以继承和出售,但出售时原产权单位有优先购买权,售房的收入在扣除有关税费后,按个人和单位所占的产权比例分配。
46、 房产互换
是房屋所有人或使用人之间,在相互自愿的基础上,采用等价不等价加补偿的方式相互交换住房的行为。一般分为所有权互换和使用权互换两种形式。
47、 建筑物
是指人工建造而成的房屋和构筑物,如墙体、楼地层、楼梯、门窗基础。
48、 构筑物
是指建筑物中除房屋以外的东西,人们一般直接在内进行生产和生活活动,如烟囱、水井、道路、桥梁等。
49、 商品房的结构
售房的楼书常见用语,房屋架构可分为砖混结构、砖木结构和钢筋混凝土结构。
50、 砖混结构
主要是砖墙承重,部分是钢盘混凝土承重的结构。
51、 砖木结构
主要承重构件是由用砖和木两种材料制成的结构。
52、 钢筋混凝土结构
主要承重构件是由钢筋和混凝土制成的结构。
53、 住宅的开间
就是住宅的宽度。
54、 住宅的进深
就是指住宅的实际长度。
55、 住宅的层高
是指下层地板面或楼板面到上层楼层面之间的距离,也就是一层房屋的高度。
56、 住宅的净高
是指下层地板面或楼板上表面到上层楼板下表面之间的距离。
57、 居住小区总用地
是包括住宅总用地,公共建筑设施总用地,道路、广场用地、庭院、绿化用地的总和。
58、 住宅总用地
指低层、多层、中高层、高层以及住宅用地面积的总和。
59、 公建总用地
指小区内部公共建筑占地面积的总和。
60、 房屋的基底面积
房屋的基底面积是指建筑物底层勒脚以上外围水平投影面积。
61、 道路、广场用地
指小区内主次干道、支道、人行道、绿化带中间宽度大于1.5米的步行道及停车、回车广场和有铺砌地面的场地面积之和。
62、 庭院、绿化面积
指小区内集中绿化带、小公园、住宅间集中种植花木、草地、假山、花架、水榭、水池,以及公共活动场所等为小区所有居住人员共同使用权的绿化面积的总和。
63、 人均总占地面积(平均米/人)
人均总占地面积=建筑红线内总用地/本小区规划居住总人数。
64、 人均住宅用地面积(平方米/人)
人均住宅用地面积=小区内总住宅用地/本小区规划居住总人数。
65、 总建筑面积(平方米)
指小区内住宅、公共建筑、人防地下室面积总和。
66、 住宅的建筑面积
亦称建筑展开面积,它是指住宅建筑外墙外围线测定的各层平面面积之和。它是表示一个建筑物规模大小的经济指标。它包括三项,即使用面积、辅助面积和结构面积。
67、 结构面积
是指房屋建筑中外墙,内墙柱等结构构件所占面积的总和。
68、 使用面积
是指建筑物各层平面中直接为生产或生活使用的净面积的总和。
69、 辅助面积
指卧室以外的净面积,包括过道、卫生间、厨房、储藏室、阳台等。
70、 公用面积
是指住宅楼内为住户方便出入,正常交往保障生自学成才而设置的公共走廊、楼梯、电梯间等所占面积总和,并按栋或单元户数按比率分摊。
71、 套内建筑面积
房屋按套(单元)计算的建筑面积为套(单元)门内范围的建筑面积,包括套(单元)内的使用面积、墙体面积及阳台面积。
72、 套内墙体面积
是套内使用空间周围的维护或承重墙体或其它承重支撑体所占的面积,其中各套之间的分隔墙和套与公共建筑空间的分割以及外墙(包括山墙)等共有墙,均按水平投影面积的一半计入套内墙体面积。套内自由墙体按水平投影面积全部计入套内墙体面积。
73、 公用建筑面积
各产权主体共同占有或共同使用权的建筑面积,指各套(单元)以外为各户共同使用,不可分割的建筑面积。
74、公用建筑面积的分摊原则是什么?
如有面积分割的文件或协议,应按其文件或协议分摊计算;如无分割文件或协议,按规定的公用面积分摊原则进行分摊计算。
75、 哪些公用面积应分摊?
应分摊的公用建筑面积包括套(单元)门以外的室内外楼梯、内外廊、公共门厅、通道、电梯、配电房、设备层、设备用房、结构转换层、技术层、空调机房、消防控制室、为整栋楼层服务的值班卫室、建筑物内的垃圾以及突出屋面有围护结构的楼梯间、电梯机房、水箱间等。
76、 哪些公用面积不能分摊?
不能分摊的公用面积为底层架空层中作为公共使用的机动车库、非机动车库、公共开放空间、城市公共通道、沿街的骑楼作为公共开放使用的建筑面积、消防避难层;为多栋建筑物使用的配电房;公民防护地下室以及地面车库、地下设备用房等。
77、 套内阳台建筑面积
套内阳台建筑面积均按阳台外围与房屋外墙之间的水平投影面积计算。其中封闭的阳台按水平投影全部计算建筑面积,未封闭的阳台按水平投影的一半计算建筑面积。
78、 套内使用面积
指套内住户独自使用的面积,一般包括卧室、厨房、卫生间、过厅、起居室、内走道、阳台、壁柜等净面积的总和。
79、 套外使用面积
指套外全体住宅的公共使用面积,如楼梯间、电梯间、公共走道、公共用房等。
80、 建筑容积率
是指项目规划建设用地范围内全部建筑面积与规划建设用地面积之比。
81、 建筑密度
即建筑覆盖率,指项目用地范围内所有基底面积之和与规划建设用地之比。
82、 人口毛密度
人口毛密度=小区内总居住人数/小区内占地面积(公顷)。
83、 平均每平方米造价(元)
平均每平方米造价建筑物总造价/建筑面积。
84、 使用面积系数K1(%)
使用面积系数=总使用面积(平方米)/总建筑面积(平方米)×100%。
85、 居住面积系数K2(%)
居住面积系数=总居住面积(平方米)/总建筑面积(平方米)×100%。
86、 结构面积系数K3(%)
结构面积系数=总结构面积(平方米)/总建筑面积(平方米)×100%。
87、 绿地率
是指规划建设用地范围内的绿地面积与规划建设用地面积之比。
88、 绿化率
是指植被垂直面积与规划建设用地面积之比。
89、 销售率
指售出的户数占可销的总户数的比例。
90、 得房率
指套(单元)内建筑面积与套建筑面积的比率。
91、 公共能耗费
是小区共用部位、共用设备和公共设施及在公共性服务中所发生的水、电、煤等能源消耗,被称为公共能耗,由此所产生的费用为公共能耗费。
92、 商品房预售
俗称“卖楼花”,即在房地产尚未建成以前,房地产的经销商在取得受买人一定数量的定金后,将期房出售给受买人。
93、 商品房现售
是指房地产开发企业将竣工验收合格的商品房出售给买受人,并由买受人支付房价款的行为。
94、 外销房
是指房地产开发企业按政府外资工作主管部门的规定,通过实行土地批租形式,报政府计划主管部门列入正式项目计划,建成后用于向境内境外出售的住宅、商业用房及其它建筑物。
95、 内销房
是指房地产开发企业通过实行土地使用权出让形式,经过政府主管部门审批,建成后用于在国内范围(目前不包括香港特别行政区、澳门和台湾)出售的住宅、商业用房及其它建筑物。
96、 规划形态
是指这一项目的具体建筑构成,譬如一个项目一共由几栋楼宇组成,每栋楼宇的使用性质是什么,单栋楼宇的地上有几层,地下有几层,每一层的具体用途是什么。
97、 住宅组团
是一种融合了中式四合院建筑模式的居住结构。
98、单元式住宅
是指在多层、高层楼房中的一种住宅建筑形式;通常每层楼面只有一个楼梯,住户由楼梯平台直接进入分户门,一般多层住宅每个楼梯可以安排24到28户。所以每个楼梯的控制面积又称为一个居住单元。
99、居住单元
是指一个单元里有几户。俗称:一梯两户、一梯四户等。
100、户型
是指一套住宅由多少卧厅、厨、卫组成。俗称:一室一厅、二室一厅、四室二厅二卫等。
101、套型
是指层住空间的大小范围。俗称:小套、中套、大套。
102、面积配比
指的是各种面积范围的单元在某一楼盘单元总数中各自所占比例的多少。
103、格局配比
是二房二厅、三房二厅等各种格局的单元在某一楼盘的单元总数中各自所占的比例的多少。
104、阁楼
是指位于房屋坡屋顶下部的房间。
105、假层
是指房屋的最上一层,四面外墙的高度一般不低于下式楼层外墙的高度,以内部房间利用部分屋架空间构成的非正式层。
106、普通住宅
是指按一般民用住宅标准造的居住用住宅,高级公寓、别墅、度假村等不属于普通住宅的范畴。
107、公寓
是指二层以上供多户人家居住的楼房建筑。
108、纯办公楼
是指专为各类公司的日常营运提供办公活动空间的大楼。
109、商场
是指规划为对外公开进行经营的建筑物。
110、综合楼
是指兼有住家、办公甚至商场的大楼。
111、商住住宅
是SOHO(居家办公)住宅观念的一种延伸,它属于住宅,但同时又融入写字楼的诸多硬件设施,尤其是网络功能的发达,使居住者在居住同时又能从事商业活动的住宅形式。
112、别墅
是指在郊区或风景区建造的供住宿休养用的花园住宅。其中三户或三户以上连体的别墅为连栋别墅,二户连体的别墅为双拼别墅,单楼独栋的则为独栋别墅。
113、TOWNHOUSE(联排别墅)
正确的译法应该为城区住宅,是从欧洲舶来的,其原始意义是指在城区房屋。目前是指建于城郊,高绿化率,住宅功能齐全的景观型联排别墅。
114、跃层式商品房
是指由上、下两层楼盘面、卧室、起居室、客厅、卫生间、厨房及其它辅助用房,并采用户内独用的小楼梯连接的房屋通风、采光较好,布局紧凑,功能分明,只是户内楼梯占去一定使用面积,上下两层只有一个出口,发生火灾时,人员不易疏散。
115、复式商品房
是由香港建筑师创造设计的一种经济型房屋,是在层高的一层楼中增建一个夹层,从而形成上下两层的楼盘房。实际层高要大大低于跃层式住宅。复式住宅下层供起居、餐饮、洗浴用,上层供休息、储藏用,户内设多处入墙式壁柜和楼梯。
116、错层式住宅
是指楼面高度不一致错开之处有楼梯联系的住宅。
117、SHOPPING MALL
直译为“步行街购物广场”,是目前国际上最流行、经营效果最佳的零售百货模式,它具有四大特征:开放性的公共休闲广场、强烈吸引人气;开放性的对外交通设计,广纳周边人气,相对闭合的内部通道回路,充分利用有效人流,购物与休闲良性互动,形成惊人的商业效应。
118、商品房的起价
是指商品房在销售时各楼层销售价格中的最低价格。
119、商品房的均价
是指商品房的销售价格相加以后的和除以单位建筑面积的和,即得出每平方米的价格。
120、基价
经过核算而确定的每平方米基本价格,商品房的销售价一般以基数增减楼层和朝向差价后得出。
121、定金
只是预付款的一部分,起不到担保债权的作用,在开发商违约不签订合同的情况下,无法得到双倍的返还。
122、订金
只是预付款的一部分,起不到担保债权的作用,在开发商违约不签订合同的情况下,无法得到双倍的返还。
123、共有房产
共有房产是指某一房产属于两个或两个以上的所有人共同所有。
124、《商品房预售许可证》
《商品房预售许可证》是市、县、人民政府房地产管理部门向房地产开发公司颁发的一项证书,用以证明列入证书范围内的正在建设中的房屋已经可以预先出售给承购人。
125、契税
契税是指房屋所有权发生变更时,就当事人所订契约按房价的一定比例向产权承受人征收的一次性税收。它是对房地产权变动征收的一种专门税种。(交易手续费经济适用房减半)
126、公共维修基金
公共维修基金是指住宅楼房的公共部位和共用设施、设备的维修养护基金。商品房的公共维修基金由购房人在购房时交纳,比例为购房款的2%。
127、印花税
印花税是对经济活动和经济交往中书立、领受凭证征收的一种税。它是一种兼有行为性质的凭证税,具有征收面广、税负轻、由纳税人自行购买并粘贴印花税票完成纳税义务等特点。
128、购买房地产的条件
成年人提供身份证明:未成年人提供户口簿及监护人证明书。
129、未成年人是否可以作为权利人办理《房地产证》?
未成年人可以作为权利人办理《房地产证》,但办理时须提交其监护关系证明和监护人身份证明,并在《房地产证》上备注其法定监护人姓名。由于未成年人为没有民事行为能力或限制民事行为能力的人,因此在处分该房地产时必须符合有关法律规定。
130、申办产权需具备哪些资料?
审核后购销合同一份、收件收据、产权申请登记表、产权登记发证审批表、房屋所有权情况调查表、测量后的正式图纸。
131、办理产权需交纳哪些费用?
产权登记费、勘丈测绘费、印花税、工本费。
132、房地产权初始登记
指对未经登记机关确认其房地产权利,领取房地产权利证书的土地使用权及建筑物、附着物的所有权进行的登记。
133、房地产登记
即房地产产权登记,它是国家为健全法制,加强城镇房地产管理,依法确认房地产产权的法定手续。城市房地产权属都必须向房地产所在地的房地产管理机关申请登记。经审查确认产权后,由房地产管理机关发给《房地产产权证》。产权登记是房地产管理的行政手段,只有通过产权登记,才能对各类房地产权属实施有效的管理。
134、房地产登记的种类有哪些?
房地产登记的种类分为初始登记、转移登记、抵押登记、变更登记、其它登记。
135、什么情形属于房地产变更登记?
下列情形属于房地产变更登记:
(1) 地产使用用途改变;
(2) 权利人姓名或名称发生变化的;
(3) 房地产座落名称或房地产名称发生变化的;
(4) 建筑物、附着物倒塌、拆除。
136、房地产登记是以什么单位进行登记的?
房地产登记是以一宗土地为单位进行登记的。所谓一宗土地,是指以权属界线组成的封闭地块。一宗土地存在两个或两个以上权利人的,各权利人分别对该宗土地上的建筑物、附着物的所有权和拥有的土地使用权份额申请登记。
137、申请房地产登记,可否委托他人代理?
申请房地产登记,申请人可以委托他人代理。由代理人办理申请登记的,应向登记机关提交申请人的委托书。境外申请人的委托书应按规定经过公证或认证。
138、确权
确权就是房地产登记机关对房地产权利的确认。即是依照法律、政策的规定,经过房地产申报、权属调查、地籍勘丈、审核批准、登记注册、发放权利证书等登记规定程序,确认某一房地产权利归属的过程。
139、房屋期权转让
房屋期权转让是指购房者在与房地产开发企业签订了预购商品房合同之后,在商品房尚未竣工交付使用之前,由于购房者一方原因,如对房屋需求的改变或是故意炒作,把原来因签订购房合同而获得的权利转让给他人。房屋期权转让,有的地方将其称为“楼花”转让或“炒楼花”。
140、房地产转让
是指合法拥有土地使用权及土地上建筑物、附着物所有权的自然人、法人和其他组织,通过买卖、交换、赠与将房地产转移给他人的法律行为。
141、房地产转让时,其他公用设施是否一起转让?
房地产转让时,转让人对同宗土地上的道路绿地、休闲憩地、空间余地、电梯、楼梯、连廊、天台或者其他公用设施所拥有的权益同时转移。房地产首次转让合同对停车场、广告权益没有特别约定的,停车场、广告权益随房地产同时转移;有特别约定的,经房地产登记机关初始登记,由登记的权利人拥有。
142、房地产抵押
指债务人或第三人(抵押人)以其合法拥有的房地产作为担保物向债权人(或押权人)提供债务履行担保的行为。房地产按揭于房地产抵押的一种形式。
143、申请抵押登记应提交什么资料?
(1)《房地产抵押登记申请书》;
(2)委托书;
(3)房地产证;
(4)夫妻双方身份证、户口簿、结婚证或未婚姻证明;
(5)商品房买卖合同和个人住房借款合同。
144、已抵押的房地产能否转让?
根据《中华人民共和国担保法》的规定,已抵押的房地产可以转让,但应由抵押人、转让人和受让人三方签订有关的公证书,即签订将原抵押转移给新的受让方的协议;抵押人未通知抵押权人或者未告知受让人的,转让行为无效。
145、以房地产抵押向银行贷款,是否一定要办理登记?
以房地产作为抵押物向银行贷款,一定要到房地产登记部门办理抵押登记手续。根据《中华人民共和国担保法》的规定,抵押合同自登记之日起生效,所以,只有办理了抵押登记,抵押合同才有法律效力。
146、借款人如何偿还银行贷款?
贷款期限在1年内(含1年)的,实行到期本息一次性清偿的还款方式。贷款期限在1年以上双方一般约定按等额本息还款法归还贷款,即借款人在借款期内每月以相等的月均还款额偿还银行贷款本金和利息。
147、贷款期如遇利息调整,如何处理?
根据人民银行的规定,贷款期间如遇国家调整利率,贷款期限在1年以内(含1年)的,实行合同利率,不分段计算;对一年期以上贷款,于下一年1月1日开始,按相应期限档次利率执行新利率。
148、贷款人提前偿还贷款时,本息如何计算?
借款人在提前归还贷款时,应提前10个工作日向贷款人提出书面申请,经贷款审核同意,贷款人可提前部分还本或提前清偿全部贷款本息,提前清偿的部分在以后期限不再计息,此前已计收贷款利息不作调整。
149、房屋租赁
是指房屋所有权人作为出租人将其房屋出租给承租人使用,由承租人向出租人支付租金的行为。
150、银行按揭
按揭是英语“Mongase”(抵押)一词的粤语音译,因此,银行按揭的正确名称是购房抵押贷款,是购房者以所购房屋之产权作抵押,由银行先行支付房款给发展商,以后购房者按月向银行分期支付本息。
151、加按揭
即对现有的工行房贷客户提供以原贷款抵押物为担保的贷款,资金用途限于购买新的住房及家居消费,也就是“原来按揭买下的房子,还款达到一定额度后,可以将其抵押出去,获得新的贷款的一种业务形式”。
152、转按揭
转按揭就是个人住房转按贷款,个人住房转按贷款是指已在银行办理个人住房贷款的借款人,向原贷款银行要求延长贷款期限或将抵押给银行的个人住房出售或转让给第三人而申请办理个人住房贷款变更借款期限、变更借款人或变更抵押物的贷款。
153、个人住房按揭需提交哪些资料?
购房身份证、户口簿、结婚证原件及复印件(若客户为未婚则提供户口所在地街办计生委出具的未婚证明原件);购房人及其配偶所在工作单位出具工资收入证明(若干个体户则提供营业执照及税票);购房人已首付购房款收据原件及复印件;已与开发公司签订的购房合同;在开户行开户的活期存折;贷款申请书、个人住房借款合同、借款借据、委托银行扣收购房还款协议书、住房抵押承诺书。
154、办理按揭贷款应交哪些费用?
保险费、公证费、抵押登记费。
155、等额本金还款法
等额本金还款法是一种计算非常简便,实用性很强的一处还款方式。基本算法原理是在还款期内按期等额归还本金,并同时还清当期未归还的本金所产生的利息。方式可以是按月还款和按季还款。
156、一次性还本付息法
现各银行规定,贷款期限在一年以内(含一年),那么还款方式为到期一次性还本付息,即初期的贷款本金加上整个内的利息综合。
157、权利质押贷款担保
银行可接受的质押物是特定的有价证券和存单,有价证券包括国库券、金融债券和银行认可的企业债券,存单只接收人民币定期储蓄存单。借款人申请质押担保贷款,质押权利凭证所载金额必须超过贷款额度,即质押权利凭证所载金额要至少大于贷款额度的10%。各种债券要经过银行鉴定,证明真实有效,方可用于质押,人民币定期储蓄存单要有开户银行的鉴定证明及免挂失证明,借款人在与银行签订贷款质押合同的同时,要将有价证券、存单等质押物交由贷款银行保管,并由贷款银行承担保管责任,如果借款人要求进行公证,双方可以到公证机关办理公证手续,公证费用由借款人承担。选择质押贷款担保方式,要求居民家庭有足额的金融资产,依靠这些金融资产完全可以满足购房消费的需要,只是购房时难于变现或因变现会带来一定损失而不想变现。因此,采取质押方式,只有少数人才能做到。
158、个人住房担保贷款?
中国人民银行于1997年4月颁布了《个人住房担保贷款管理办法》(该办法在1998年5月进行了修改)。按照该办法的定义,个人住房担保贷款是指借款人或第三人以所购住房和其他具有所有权的财产作为抵押物,或由第三人为其贷款提供保证,并承担连带责任的贷款;借款人到期不能偿还还贷款本息的,贷款银行有权依法处理其抵押物或要求保证的承担连带偿还本息责任。
159、住房公积金
是指国家机关、国有企业、城镇集体企业、外商投资企业、城镇私营企业及其他城镇企业、事业单位、民办非企业单位、社会团体及其在职职工缴存的长期住房储金。它是一种长期性的住房储金,具有社会保障性质,是住房实物分配向货币分配转化的一种形式。
160、公积金贷款
公积金贷款也就是个人住房担保委托贷款,是由城市住房资金管理中心及所属分中心运用房改资金委托银行向购买(含建造、大修)自住住房的公积金交存人和离退休职工发放的贷款。
161、申请住房公积金贷款的条件
凡住房公积金连续缴存6个月以上或累计缴存公积金一年以上,并且目前仍在缴存公积金,才有资格申请。
162、公积金贷款的办理程序
借款人填写《早班审核书》,并提交相关资料;资料报送住房资金管理中心受理、审核。
163、办理公积金贷款应提供哪些资料?
身份证、户口簿、结婚证、收入证明、审核后购房合同一份,首付款票据。
164、组合贷款
组合贷款是公积金贷款与商业贷款的合称。
165、住房抵押贷款
所谓抵押贷款就是抵押人(购房者)向抵押权人(银行)以所购房产作贷款抵押,并同时签定抵押合同,以不转移所有权方式作为按期归还贷款的担保,并持公证的商品房预售合同向有关房产登记机关进行抵押登记,当抵押人按合同约定还清全部本息后,便可收回贷款的担保,并持经公证的商品房预售合同向有关房产登记机关进行抵押登记,当抵押人按合同约定还清全部本息后,便可收回“房屋所有权证”与“土地使用证”。
166、商品房验收合格
指的是单体(即单幢楼盘)验收合格。
167、商品房综合验收合格
指的是包含所有配套设施在内的全部建筑物的验收合格。
168、在什么情况下,房地产开发项目可以交付使用?
房地产开发项目竣工,经验收合格后,方可交付使用;未经验收或者验收不合格的,不得交付使用。
169、在房屋交付时,发展商应提交哪些文件?
房屋交付时,房地产开发企业应当根据《商品住宅实行质量保证书和住宅使用说明书制度的规定》,向买受人提供《住宅质量保证书》、《住宅使用说明书》。
170、物业的竣工验收
是指从物业形态上说,建筑商完成了一项最终产品,开发商也完成了物业开发任务,这时他们之间所发生的一个法定手续。
171、何为“预售面积”和“竣工面积”?
预售面积是指全部按建筑设计图上尺寸计算的房地产建筑面积,它只供房地产预售时使用;竣工面积是指房地产竣工后实测的面积或用与竣工房地产尺寸相符的建筑设计图计算的建筑面积,它为房地产交易、租赁、抵押、竣工验收、产权登记等提供依据。
172、物业管理
泛指一切有关房地产开发、经营、商品房销售、租赁及售后服务。
173、入伙
指业主领取钥匙,接房入住。
174、业主委员会
业主委员会是在物业管理区域内代表全体业主实施自治管理的组织。业主委员会由业主大会从全体业主中选举产生,是经政府部门批准成立的代表物业全体业主合法权益的社会团体,其合法权益受国家法律保护。
175、后房型时代
是指当一批经典户型被大量复制,户型设计趋于同质化,合理的户型设计只是房地产产品的及格线时,小区的规模、位置、环境、系统设置、安全指数、增值潜力等综合因素构成决定购买的重要砝码。
176、健康住宅
是指能使居住者在身体上、精神上、社会以上完全处于良好状态的住宅。
177、违法建筑
是指未经规划土地主管部门批准,未领取建设工程规划许可证或临时建设工程规划许可证,擅自建筑的建筑物和构筑物。
178、空鼓
局部面局材料与基层没有胶合剂或胶合剂没有起作用,用小槌轻击有空壳声。如瓷砖与墙面间局部水泥砂浆不饱和,形成空鼓。
179、如何办理装修许可证?
首先由装修申请者填写申报材料进行申报,然后由房产管理局受理申报,经房管局光派人现场查勘后进行审批,最后是缴费和领取许可证;备齐如下材料:按要求填写房屋装修申请表一式二份,交验房屋所有权证,租赁的要提供房屋报有人同意装修的书面意见及租赁合同;装修设计方案和施工图;承诺因装修而造成邻里正常使用要负责维修或赔偿的承诺书;办理白蚁防治手续。
180、LOGO
即楼盘标识,楼盘独有的标志,多见于广告幅、旗、板牌以及外墙、售楼处。一般表现为图案、美术字、字母等。
181、商品房预售须符合哪些条件?
(1) 交付全部土地使用权出让金,取得土地使用权证书;
(2) 有建设工程规划许可证;
(3) 按提供预售的商品房计算,投入开发建设资金达到工程建设总投资的25%以上,并已经确定施工进度和竣工交付日期;
(4) 向县级以上人民政府房产管理部门办理预售登记,取得商品房预售许可证明。
182、哪些情况下,预售房购买者可以要求取消预售房合同?
(1) 房屋开发公司不能按照原定日期交付预购房屋;
(2) 建成后的房屋实际面积与预售房合同确定的面积不相符;
(3) 建成后房屋建筑的材料与预售合同所列建材不相符。
183、预售房转让
是购房者将购买的预售房转让给他方的行为。
184、业主
是物业的所有人或物业的使用人。
185、房地产中介
是联结房地产生产经营者与消费者以及房地产经济内部的各种社会经济关系的纽带。
186、地基和基础
建筑物下面直接承受建筑物重量的土层称为地基。建筑物的最下端与土壤直接接触的部分称为基础。基础的作用是承受建筑物全部重量并将之分散传递给地基。
187、墙体
是维护分割构件,同时也可以是承重构件。在一般砖混结构房屋中,墙体是主要的承重构件。
188、建筑用地面积
指城市规划行政主管部门确定的建设用地位置和界线所围合的用地之水平投影面积,不包括代征的面积。
189、建筑基底面积
是指建筑物首层的建筑面积。
190、建筑高度
指建筑物室外地平面至外墙面顶部的总高度。
191、建筑间距
指建筑平面外轮廓线之间的距离。
192、停车场
指在建设用地内为停放机动车和非机动车须配置的场地。停车场面积小型汽车按每车位25平方米计算,自行车按每车位1.2平方米计算。
193、智能住宅
是将住宅内各种电气设施纳入计算机网络系统进行综合管理,使其具有高效率的服务功能,可提供安全、便利、舒适的住宅环境。
194、房地产市场调研
是以房地产为特定的商品对象,对相关的市场信息进行系统的收集、整理、记录和分析,进而对房地产市场进行研究与预测,为决策者了解房地产市场变动趋势,制定公司营业计划,拟订经营策略提供参考与建议。
195、单个楼盘的市场调查通常包括哪几项?
(1) 产品分析
(2) 价格组合
(3) 广告策略
(4) 销售执行
196、如何填写楼盘市调详表?
(1)产品:A、地段 B、公司组成
C、基本参数 D、建筑类别
E、面积与户型
F、建材装潢.公用设施
G、施工进度.交房日期
(2)价格:A、单价
B、总价
C、付款方式
(3)广告:A、接待中心
B、广告媒体
C、数量强制
D、主要诉求
E、来电来人
(4)销售:A、销售率 B、客源分析
(5)总结:A、成功点 B、失败点 C、建议
197、商品房销售面积
商品房销售面积=套内建筑面积+分摊的公用建筑面积
198、分摊公用建筑面积的计算方法
分摊公用建筑面积=套内建筑面积×公用建筑面积分摊系数
公用建筑面积分摊系数=公用建筑面积/套内建筑面积之和
公用建筑面积=整幢建筑的面积-套内建筑面积之和-不应分摊的建筑面积
199、“五证”包括什么?
商品房“五证”包括:建设用地规划许可证、建设工程规划许可证、国有土地使用证、建设工程开工证、商品房预售许可证。
200、“二书”
是指建设部为了加强对商品房的质量管理与监督,要求发展商必须提供的新建住宅质量保证书和新建住宅使用说明书。