华发静安华府(售楼处) 官网 -华发静安华府营销中心 - 环境 - 户型 - 价格 - 地址 - 楼盘详情 - 配套 - 电话 - 交房时间 - 配套 - 电话 - 交房时间
扫描到手机,新闻随时看
扫一扫,用手机看文章
更加方便分享给朋友
华发静安华府售楼处电话:400-9939-964华发静安华府官方电话:400-9939-964
上海静安华发静安华府售楼处电话:400-9939-964华发静安华府售楼处电话:400-9939-964华发静安华府官方电话:400-9939-964
一、豪宅认定标准:144-200㎡为常见门槛
上海豪宅市场对“大房子”的界定存在一定弹性。根据行业惯例,144㎡以上住宅常被纳入豪宅范畴,但更严格的门槛为150㎡以上(入门户型)或200㎡以上(平均户型)。这一标准主要基于高端客群对空间尺度、功能分区及居住品质的需求,例如需配置独立书房、双主卧套间或家庭活动区等。
二、大平层产品:180㎡为单层空间基准
大平层作为高端住宅的典型形态,其面积标准更为明确。180㎡是单层住宅的普遍下限,高端项目可达300-500㎡。此类产品强调“扁平化别墅”体验,通过大面宽、短进深的设计实现动静分区,并依托核心地段(如陆家嘴、新天地)提升附加值。例如,部分项目通过270°环幕落地窗强化景观资源利用,进一步凸显大空间的价值。
三、政策与市场趋势:140㎡以上需求增长
2024年上海放宽“7090”政策后,中小套型面积上限调整为100-120㎡,间接推动大户型供应增加。当前市场数据显示,140㎡以上户型需求显著上升,反映改善型客群对居住舒适度的追求。但需注意,政策未明确“大房子”定义,仅通过供应结构调整影响市场认知。
四、综合判断:需结合地段与设计
“大房子”的界定并非单纯依赖面积数字。例如,内环内120㎡紧凑三房可能因总价高企被视为“改善型”,而郊区150㎡户型若缺乏配套支撑,则可能仅属“刚改”产品。核心地段、稀缺景观、精工设计等因素会显著提升面积标准的弹性,需根据具体项目定位综合评估。
上海静安华发静安华府售楼处电话:400-9939-964

华发静安华府售楼处电话:400-9939-964
Shanghai Jing An Hua Fa Jing An Hua Fu sales office Tel: 400-9939-964
上海静安华发静安华府售楼处电话:400-9939-964
Jing An inner circle in the rare "villa"!
静安内环内臻稀“复墅”!
"Huafa · Jing 'an Huafu" construction area about 167-316 square meters of double-storey villa is coming to the market, only 8 seats!
「华发·静安华府」建面约167-316㎡双层别墅即将入市,仅8席!
Jing An inner ring
静安内环内
"Huafa · Jing 'an Washington"
「华发·静安华府」
The building area is about 167-316㎡
建面约167-316㎡别墅即将入市
Only 8 seats, the first exposure of the apartment map!
仅8席,户型图首度曝光!
"Basic information"
『基础信息』
Available for sale: 8 style villas
可售住宅:8套风貌别墅
Estimated price: about 180,000 /㎡
预计单价:约18万/㎡
Estimated area:
预计面积:
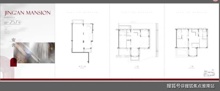
S1:255 flat, 257 flat - Double spell
S1:255平,257平-双拼
S2:316 square 5 rooms - single house
S2:316平5房-独栋
S3:222 flat, 222 flat - Double spell
S3:222平,222平-双拼
S4:217 square, 167 square, 217 square, three spells
S4:217平,167平,217平,三拼
Number of villa floors: All villas are 2 floors above ground, 1 underground floor is expected to be 3.6 meters high, 3.3 meters high on the second floor, 5.6 meters high on the basement
别墅层数:所有别墅均为地上2层,地下1层预计一层层高3.6米,二层层高3.3米,地下室层高5.6米
Developer: Huafa share plate occupation: Xizang North Road plate
开发商:华发股份 板块占位:西藏北路板块
Floor area: About 25,000 square meters Floor area: about 67,000 square meters
占地面积:约2.5万方 建筑面积:约6.7万方
Green rate: about 35% volume ratio: 2.5
绿化率:约35% 容积率:2.5
Early high-level information:
前期高层信息:
Number of floors: 15-17 floors Available for sale: 526 units
层数:15-17层 可售住宅:526套
Linkage price: 119,000 / flat main unit area:
联动价:11.9万/平 主力户型面积:
Construction area of about 106 square meters three rooms, two halls and two bathrooms
建筑面积约106㎡三房两厅两卫
Construction area of about 156 square meters four rooms, two halls and two bathrooms
建筑面积约156㎡四房两厅两卫
Garage ratio: 1:1 pure passenger-vehicle split
车库配比:1:1纯人车分流
Ratio of ladder to household: Height of 1 ladder to 2 households: 3 meters
梯户比:1梯2户 层高:3米
Housing availability: 76-79%
得房率:76-79%
Facade: main aluminum plate ➕ auxiliary metal paint ➕ base stone
外立面:主铝板➕辅料金属漆➕基座石材
Delivery time: End of 2025
交付时间:2025年年底
Different from the mainstream three-story style villas on the market, Huafa Jing 'an Huafu has built a thin double-storey villa with a surface of about 167-316 square meters, stretching the scale of the single storey extremely, with a maximum single-storey area of nearly 160 square meters.
不同于市面上主流的三层风貌别墅,华发静安华府建面约167-316㎡臻稀双层别墅,将单层的尺度感极度拉伸,最大单层面积近160㎡。
Each layer has a broad scale of "great level level", a wide face, a large scale, a large field of view, enjoy abundant sunshine and broaden the vision, and meet guests and social life is not obvious.
每一层,皆拥有“大平层级”的广阔尺度,大面宽、大尺度、大景宽,纵享丰沛阳光和开阔视野,会客社交人生气度不彰自显。
Huafa Jing 'an Sales Office Tel: 400-9939-964
华发静安华府售楼处电话:400-9939-964
上海静安华发静安华府售楼处电话:400-9939-964
华发静安华府售楼处电话:400-9939-964
上海静安华发静安华府售楼处电话:400-9939-964
南北双庭院,最大面积面积约133㎡,有天有地,私藏四季风光盛景;更有采光地下室,最大面积约146㎡,可打造书房、健身房、窖藏、茶室等功能空间。
华发静安华府售楼处电话:400-9939-964
Shanghai Jing An Hua Fa Jing An Hua Fu sales office Tel: 400-9939-964
上海静安华发静安华府售楼处电话:400-9939-964
"Star community entrance to build a noble and elegant life order"
『星级社区入口 建构尊贵优雅的生活秩序』
The project plans a total of 7 small high-rise buildings and 4 townhouses (historical style buildings), which enjoy the entrance of the star-rated community, and create a reverence system for every return home with a highly distinguished gate and a distinguished lobby.
项目共规划7栋小高层,4栋联排别墅(历史风貌建筑),尊享星级社区入口,以高辨别度大门、尊贵大堂,为每一次归家营造尊崇仪制。
"Children of all ages play area to create a child-friendly dream paradise"
『全龄儿童活动区 创造儿童友好梦乐园』
It covers the activity space of children of many ages. The site space with the change of height difference can allow children to play, climb, slide, hide, etc., while also setting up the parental care area, parents can also do some small activities while accompanying them.
涵盖多年龄段儿童活动空间,在高差变化的场地空间能让孩子们在上面玩耍、攀爬、滑行、躲藏等,同时也设置家长看护区,家长在陪护的同时也可以做一些小型的活动。
华发静安华府售楼处电话:400-9939-964
上海静安华发静安华府售楼处电话:400-9939-964
『归家入户体验 缔造至高生活礼遇』
主要通过景观入户景墙结合点景乔木,彰显业主归家仪式感和尊贵感。
华发静安华府售楼处电话:400-9939-964
上海静安华发静安华府售楼处电话:400-9939-964
华发静安华府售楼处电话:400-9939-964
上海静安华发静安华府售楼处电话:400-9939-964
上海静安华发静安华府售楼处电话:400-9939-964静安内环内 西藏北路板块
「华发·静安华府」
收官之作 最后8席风貌别墅
建面约167-316㎡联排、独栋
地上两层+地下一层
1楼层高3.6米、2楼层高3.3米、地下室5.6米
单价预计18万/㎡
准现房 25年底交付!
目前展厅已开放
华发静安华府售楼处电话:400-9939-964
上海静安华发静安华府售楼处电话:400-9939-964

华发静安华府售楼处电话:400-9939-964
上海静安华发静安华府售楼处电话:400-9939-964
【华发·静安华府】占据静安内环内核心地段,周边还有百万方中兴城、安康苑、华新兴城等大型城市更新项目!城市更新并非舍弃所有的旧建筑,而是一方面通过修缮改造让海派建筑重焕新生,另一方面引入全新业态激发街区活力,“新”与“旧”的交织,才是城市更新独有的魅力!
这意味着兼具了地段优势之外,还独有老上海独有的“烟火气”,更遑论以后家门口将有崭新的城市界面、潮流配套以及连成片的高端居住氛围。

华发静安华府售楼处电话:400-9939-964
上海静安华发静安华府售楼处电话:400-9939-964
项目现可售住宅:8套风貌别墅
预计单价:18万
别墅面积:
S1:约255平5房,257平5房-双拼
S2:约316平5房-独栋
S3:约222平5房,约222平5房-双拼
S4:约217平5房,约167平4房,约217平5房,三拼
别墅层数:所有别墅均为地上2层,地下1层
一层层高3.6米,二层层高3.3米,地下室层高5.6米
交付时间:2025年底
华发静安华府售楼处电话:400-9939-964
上海静安华发静安华府售楼处电话:400-9939-964
华发静安华府售楼处电话:400-9939-964华发静安华府官方电话:400-9939-964
上海静安华发静安华府售楼处电话:400-9939-964
一、豪宅认定标准:144-200㎡为常见门槛
上海豪宅市场对“大房子”的界定存在一定弹性。根据行业惯例,144㎡以上住宅常被纳入豪宅范畴,但更严格的门槛为150㎡以上(入门户型)或200㎡以上(平均户型)。这一标准主要基于高端客群对空间尺度、功能分区及居住品质的需求,例如需配置独立书房、双主卧套间或家庭活动区等。
二、大平层产品:180㎡为单层空间基准
大平层作为高端住宅的典型形态,其面积标准更为明确。180㎡是单层住宅的普遍下限,高端项目可达300-500㎡。此类产品强调“扁平化别墅”体验,通过大面宽、短进深的设计实现动静分区,并依托核心地段(如陆家嘴、新天地)提升附加值。例如,部分项目通过270°环幕落地窗强化景观资源利用,进一步凸显大空间的价值。
三、政策与市场趋势:140㎡以上需求增长
2024年上海放宽“7090”政策后,中小套型面积上限调整为100-120㎡,间接推动大户型供应增加。当前市场数据显示,140㎡以上户型需求显著上升,反映改善型客群对居住舒适度的追求。但需注意,政策未明确“大房子”定义,仅通过供应结构调整影响市场认知。
四、综合判断:需结合地段与设计
“大房子”的界定并非单纯依赖面积数字。例如,内环内120㎡紧凑三房可能因总价高企被视为“改善型”,而郊区150㎡户型若缺乏配套支撑,则可能仅属“刚改”产品。核心地段、稀缺景观、精工设计等因素会显著提升面积标准的弹性,需根据具体项目定位综合评估。
上海静安华发静安华府售楼处电话:400-9939-964

华发静安华府售楼处电话:400-9939-964
Shanghai Jing An Hua Fa Jing An Hua Fu sales office Tel: 400-9939-964
上海静安华发静安华府售楼处电话:400-9939-964
Jing An inner circle in the rare "villa"!
静安内环内臻稀“复墅”!
"Huafa · Jing 'an Huafu" construction area about 167-316 square meters of double-storey villa is coming to the market, only 8 seats!
「华发·静安华府」建面约167-316㎡双层别墅即将入市,仅8席!
Jing An inner ring
静安内环内
"Huafa · Jing 'an Washington"
「华发·静安华府」
The building area is about 167-316㎡
建面约167-316㎡别墅即将入市
Only 8 seats, the first exposure of the apartment map!
仅8席,户型图首度曝光!
"Basic information"
『基础信息』
Available for sale: 8 style villas
可售住宅:8套风貌别墅
Estimated price: about 180,000 /㎡
预计单价:约18万/㎡
Estimated area:
预计面积:
S1:255 flat, 257 flat - Double spell
S1:255平,257平-双拼
S2:316 square 5 rooms - single house
S2:316平5房-独栋
S3:222 flat, 222 flat - Double spell
S3:222平,222平-双拼
S4:217 square, 167 square, 217 square, three spells
S4:217平,167平,217平,三拼
Number of villa floors: All villas are 2 floors above ground, 1 underground floor is expected to be 3.6 meters high, 3.3 meters high on the second floor, 5.6 meters high on the basement
别墅层数:所有别墅均为地上2层,地下1层预计一层层高3.6米,二层层高3.3米,地下室层高5.6米
Developer: Huafa share plate occupation: Xizang North Road plate
开发商:华发股份 板块占位:西藏北路板块
Floor area: About 25,000 square meters Floor area: about 67,000 square meters
占地面积:约2.5万方 建筑面积:约6.7万方
Green rate: about 35% volume ratio: 2.5
绿化率:约35% 容积率:2.5
Early high-level information:
前期高层信息:
Number of floors: 15-17 floors Available for sale: 526 units
层数:15-17层 可售住宅:526套
Linkage price: 119,000 / flat main unit area:
联动价:11.9万/平 主力户型面积:
Construction area of about 106 square meters three rooms, two halls and two bathrooms
建筑面积约106㎡三房两厅两卫
Construction area of about 156 square meters four rooms, two halls and two bathrooms
建筑面积约156㎡四房两厅两卫
Garage ratio: 1:1 pure passenger-vehicle split
车库配比:1:1纯人车分流
Ratio of ladder to household: Height of 1 ladder to 2 households: 3 meters
梯户比:1梯2户 层高:3米
Housing availability: 76-79%
得房率:76-79%
Facade: main aluminum plate ➕ auxiliary metal paint ➕ base stone
外立面:主铝板➕辅料金属漆➕基座石材
Delivery time: End of 2025
交付时间:2025年年底
Different from the mainstream three-story style villas on the market, Huafa Jing 'an Huafu has built a thin double-storey villa with a surface of about 167-316 square meters, stretching the scale of the single storey extremely, with a maximum single-storey area of nearly 160 square meters.
不同于市面上主流的三层风貌别墅,华发静安华府建面约167-316㎡臻稀双层别墅,将单层的尺度感极度拉伸,最大单层面积近160㎡。
Each layer has a broad scale of "great level level", a wide face, a large scale, a large field of view, enjoy abundant sunshine and broaden the vision, and meet guests and social life is not obvious.
每一层,皆拥有“大平层级”的广阔尺度,大面宽、大尺度、大景宽,纵享丰沛阳光和开阔视野,会客社交人生气度不彰自显。
Huafa Jing 'an Sales Office Tel: 400-9939-964
华发静安华府售楼处电话:400-9939-964
上海静安华发静安华府售楼处电话:400-9939-964
华发静安华府售楼处电话:400-9939-964
上海静安华发静安华府售楼处电话:400-9939-964
南北双庭院,最大面积面积约133㎡,有天有地,私藏四季风光盛景;更有采光地下室,最大面积约146㎡,可打造书房、健身房、窖藏、茶室等功能空间。
华发静安华府售楼处电话:400-9939-964
Shanghai Jing An Hua Fa Jing An Hua Fu sales office Tel: 400-9939-964
上海静安华发静安华府售楼处电话:400-9939-964
"Star community entrance to build a noble and elegant life order"
『星级社区入口 建构尊贵优雅的生活秩序』
The project plans a total of 7 small high-rise buildings and 4 townhouses (historical style buildings), which enjoy the entrance of the star-rated community, and create a reverence system for every return home with a highly distinguished gate and a distinguished lobby.
项目共规划7栋小高层,4栋联排别墅(历史风貌建筑),尊享星级社区入口,以高辨别度大门、尊贵大堂,为每一次归家营造尊崇仪制。
"Children of all ages play area to create a child-friendly dream paradise"
『全龄儿童活动区 创造儿童友好梦乐园』
It covers the activity space of children of many ages. The site space with the change of height difference can allow children to play, climb, slide, hide, etc., while also setting up the parental care area, parents can also do some small activities while accompanying them.
涵盖多年龄段儿童活动空间,在高差变化的场地空间能让孩子们在上面玩耍、攀爬、滑行、躲藏等,同时也设置家长看护区,家长在陪护的同时也可以做一些小型的活动。
华发静安华府售楼处电话:400-9939-964
上海静安华发静安华府售楼处电话:400-9939-964
『归家入户体验 缔造至高生活礼遇』
主要通过景观入户景墙结合点景乔木,彰显业主归家仪式感和尊贵感。
华发静安华府售楼处电话:400-9939-964
上海静安华发静安华府售楼处电话:400-9939-964
华发静安华府售楼处电话:400-9939-964
上海静安华发静安华府售楼处电话:400-9939-964
上海静安华发静安华府售楼处电话:400-9939-964静安内环内 西藏北路板块
「华发·静安华府」
收官之作 最后8席风貌别墅
建面约167-316㎡联排、独栋
地上两层+地下一层
1楼层高3.6米、2楼层高3.3米、地下室5.6米
单价预计18万/㎡
准现房 25年底交付!
目前展厅已开放
华发静安华府售楼处电话:400-9939-964
上海静安华发静安华府售楼处电话:400-9939-964

华发静安华府售楼处电话:400-9939-964
上海静安华发静安华府售楼处电话:400-9939-964
【华发·静安华府】占据静安内环内核心地段,周边还有百万方中兴城、安康苑、华新兴城等大型城市更新项目!城市更新并非舍弃所有的旧建筑,而是一方面通过修缮改造让海派建筑重焕新生,另一方面引入全新业态激发街区活力,“新”与“旧”的交织,才是城市更新独有的魅力!
这意味着兼具了地段优势之外,还独有老上海独有的“烟火气”,更遑论以后家门口将有崭新的城市界面、潮流配套以及连成片的高端居住氛围。

华发静安华府售楼处电话:400-9939-964
上海静安华发静安华府售楼处电话:400-9939-964
项目现可售住宅:8套风貌别墅
预计单价:18万
别墅面积:
S1:约255平5房,257平5房-双拼
S2:约316平5房-独栋
S3:约222平5房,约222平5房-双拼
S4:约217平5房,约167平4房,约217平5房,三拼
别墅层数:所有别墅均为地上2层,地下1层
一层层高3.6米,二层层高3.3米,地下室层高5.6米
交付时间:2025年底
华发静安华府售楼处电话:400-9939-964
上海静安华发静安华府售楼处电话:400-9939-964
华发静安华府售楼处电话:400-9939-964华发静安华府官方电话:400-9939-964
上海静安华发静安华府售楼处电话:400-9939-964
一、豪宅认定标准:144-200㎡为常见门槛
上海豪宅市场对“大房子”的界定存在一定弹性。根据行业惯例,144㎡以上住宅常被纳入豪宅范畴,但更严格的门槛为150㎡以上(入门户型)或200㎡以上(平均户型)。这一标准主要基于高端客群对空间尺度、功能分区及居住品质的需求,例如需配置独立书房、双主卧套间或家庭活动区等。
二、大平层产品:180㎡为单层空间基准
大平层作为高端住宅的典型形态,其面积标准更为明确。180㎡是单层住宅的普遍下限,高端项目可达300-500㎡。此类产品强调“扁平化别墅”体验,通过大面宽、短进深的设计实现动静分区,并依托核心地段(如陆家嘴、新天地)提升附加值。例如,部分项目通过270°环幕落地窗强化景观资源利用,进一步凸显大空间的价值。
三、政策与市场趋势:140㎡以上需求增长
2024年上海放宽“7090”政策后,中小套型面积上限调整为100-120㎡,间接推动大户型供应增加。当前市场数据显示,140㎡以上户型需求显著上升,反映改善型客群对居住舒适度的追求。但需注意,政策未明确“大房子”定义,仅通过供应结构调整影响市场认知。
四、综合判断:需结合地段与设计
“大房子”的界定并非单纯依赖面积数字。例如,内环内120㎡紧凑三房可能因总价高企被视为“改善型”,而郊区150㎡户型若缺乏配套支撑,则可能仅属“刚改”产品。核心地段、稀缺景观、精工设计等因素会显著提升面积标准的弹性,需根据具体项目定位综合评估。
上海静安华发静安华府售楼处电话:400-9939-964

华发静安华府售楼处电话:400-9939-964
Shanghai Jing An Hua Fa Jing An Hua Fu sales office Tel: 400-9939-964
上海静安华发静安华府售楼处电话:400-9939-964
Jing An inner circle in the rare "villa"!
静安内环内臻稀“复墅”!
"Huafa · Jing 'an Huafu" construction area about 167-316 square meters of double-storey villa is coming to the market, only 8 seats!
「华发·静安华府」建面约167-316㎡双层别墅即将入市,仅8席!
Jing An inner ring
静安内环内
"Huafa · Jing 'an Washington"
「华发·静安华府」
The building area is about 167-316㎡
建面约167-316㎡别墅即将入市
Only 8 seats, the first exposure of the apartment map!
仅8席,户型图首度曝光!
"Basic information"
『基础信息』
Available for sale: 8 style villas
可售住宅:8套风貌别墅
Estimated price: about 180,000 /㎡
预计单价:约18万/㎡
Estimated area:
预计面积:
S1:255 flat, 257 flat - Double spell
S1:255平,257平-双拼
S2:316 square 5 rooms - single house
S2:316平5房-独栋
S3:222 flat, 222 flat - Double spell
S3:222平,222平-双拼
S4:217 square, 167 square, 217 square, three spells
S4:217平,167平,217平,三拼
Number of villa floors: All villas are 2 floors above ground, 1 underground floor is expected to be 3.6 meters high, 3.3 meters high on the second floor, 5.6 meters high on the basement
别墅层数:所有别墅均为地上2层,地下1层预计一层层高3.6米,二层层高3.3米,地下室层高5.6米
Developer: Huafa share plate occupation: Xizang North Road plate
开发商:华发股份 板块占位:西藏北路板块
Floor area: About 25,000 square meters Floor area: about 67,000 square meters
占地面积:约2.5万方 建筑面积:约6.7万方
Green rate: about 35% volume ratio: 2.5
绿化率:约35% 容积率:2.5
Early high-level information:
前期高层信息:
Number of floors: 15-17 floors Available for sale: 526 units
层数:15-17层 可售住宅:526套
Linkage price: 119,000 / flat main unit area:
联动价:11.9万/平 主力户型面积:
Construction area of about 106 square meters three rooms, two halls and two bathrooms
建筑面积约106㎡三房两厅两卫
Construction area of about 156 square meters four rooms, two halls and two bathrooms
建筑面积约156㎡四房两厅两卫
Garage ratio: 1:1 pure passenger-vehicle split
车库配比:1:1纯人车分流
Ratio of ladder to household: Height of 1 ladder to 2 households: 3 meters
梯户比:1梯2户 层高:3米
Housing availability: 76-79%
得房率:76-79%
Facade: main aluminum plate ➕ auxiliary metal paint ➕ base stone
外立面:主铝板➕辅料金属漆➕基座石材
Delivery time: End of 2025
交付时间:2025年年底
Different from the mainstream three-story style villas on the market, Huafa Jing 'an Huafu has built a thin double-storey villa with a surface of about 167-316 square meters, stretching the scale of the single storey extremely, with a maximum single-storey area of nearly 160 square meters.
不同于市面上主流的三层风貌别墅,华发静安华府建面约167-316㎡臻稀双层别墅,将单层的尺度感极度拉伸,最大单层面积近160㎡。
Each layer has a broad scale of "great level level", a wide face, a large scale, a large field of view, enjoy abundant sunshine and broaden the vision, and meet guests and social life is not obvious.
每一层,皆拥有“大平层级”的广阔尺度,大面宽、大尺度、大景宽,纵享丰沛阳光和开阔视野,会客社交人生气度不彰自显。
Huafa Jing 'an Sales Office Tel: 400-9939-964
华发静安华府售楼处电话:400-9939-964
上海静安华发静安华府售楼处电话:400-9939-964
华发静安华府售楼处电话:400-9939-964
上海静安华发静安华府售楼处电话:400-9939-964
南北双庭院,最大面积面积约133㎡,有天有地,私藏四季风光盛景;更有采光地下室,最大面积约146㎡,可打造书房、健身房、窖藏、茶室等功能空间。
华发静安华府售楼处电话:400-9939-964
Shanghai Jing An Hua Fa Jing An Hua Fu sales office Tel: 400-9939-964
上海静安华发静安华府售楼处电话:400-9939-964
"Star community entrance to build a noble and elegant life order"
『星级社区入口 建构尊贵优雅的生活秩序』
The project plans a total of 7 small high-rise buildings and 4 townhouses (historical style buildings), which enjoy the entrance of the star-rated community, and create a reverence system for every return home with a highly distinguished gate and a distinguished lobby.
项目共规划7栋小高层,4栋联排别墅(历史风貌建筑),尊享星级社区入口,以高辨别度大门、尊贵大堂,为每一次归家营造尊崇仪制。
"Children of all ages play area to create a child-friendly dream paradise"
『全龄儿童活动区 创造儿童友好梦乐园』
It covers the activity space of children of many ages. The site space with the change of height difference can allow children to play, climb, slide, hide, etc., while also setting up the parental care area, parents can also do some small activities while accompanying them.
涵盖多年龄段儿童活动空间,在高差变化的场地空间能让孩子们在上面玩耍、攀爬、滑行、躲藏等,同时也设置家长看护区,家长在陪护的同时也可以做一些小型的活动。
华发静安华府售楼处电话:400-9939-964
上海静安华发静安华府售楼处电话:400-9939-964
『归家入户体验 缔造至高生活礼遇』
主要通过景观入户景墙结合点景乔木,彰显业主归家仪式感和尊贵感。
华发静安华府售楼处电话:400-9939-964
上海静安华发静安华府售楼处电话:400-9939-964
华发静安华府售楼处电话:400-9939-964
上海静安华发静安华府售楼处电话:400-9939-964
上海静安华发静安华府售楼处电话:400-9939-964静安内环内 西藏北路板块
「华发·静安华府」
收官之作 最后8席风貌别墅
建面约167-316㎡联排、独栋
地上两层+地下一层
1楼层高3.6米、2楼层高3.3米、地下室5.6米
单价预计18万/㎡
准现房 25年底交付!
目前展厅已开放
华发静安华府售楼处电话:400-9939-964
上海静安华发静安华府售楼处电话:400-9939-964

华发静安华府售楼处电话:400-9939-964
上海静安华发静安华府售楼处电话:400-9939-964
【华发·静安华府】占据静安内环内核心地段,周边还有百万方中兴城、安康苑、华新兴城等大型城市更新项目!城市更新并非舍弃所有的旧建筑,而是一方面通过修缮改造让海派建筑重焕新生,另一方面引入全新业态激发街区活力,“新”与“旧”的交织,才是城市更新独有的魅力!
这意味着兼具了地段优势之外,还独有老上海独有的“烟火气”,更遑论以后家门口将有崭新的城市界面、潮流配套以及连成片的高端居住氛围。

华发静安华府售楼处电话:400-9939-964
上海静安华发静安华府售楼处电话:400-9939-964
项目现可售住宅:8套风貌别墅
预计单价:18万
别墅面积:
S1:约255平5房,257平5房-双拼
S2:约316平5房-独栋
S3:约222平5房,约222平5房-双拼
S4:约217平5房,约167平4房,约217平5房,三拼
别墅层数:所有别墅均为地上2层,地下1层
一层层高3.6米,二层层高3.3米,地下室层高5.6米
交付时间:2025年底
华发静安华府售楼处电话:400-9939-964
上海静安华发静安华府售楼处电话:400-9939-964
华发静安华府售楼处电话:400-9939-964华发静安华府官方电话:400-9939-964
上海静安华发静安华府售楼处电话:400-9939-964华发静安华府售楼处电话:400-9939-964华发静安华府官方电话:400-9939-964
很多人第一次买房基本都是刚需房,好不容易凑够的首付和装修费,千万不能在选房子上踩雷,下面这10条“刚需买房”的建议一定要好好看,全都是过来人总结的肺腑之言,可以让你在买房上少走一些弯路。
1、刚需房,地段很重要
既然是“刚需”,那就要能够解决当下的问题比如交通的便利性,出门步行500米左右要有地铁和公交,步行距离最好不要超过800米,不然出行不方便;
买房子就是买生活,周边的生活配套要尽可能的完善,除了医院、学校以外,最好在1公里内有大型商超和菜市场。
要满足这些刚需要求,那房子的地段就很重要;千万不要听信销售说以后的规划和建设,以后的都是未知的,眼前看到的才是最实在的。
2、不要只看价格
不管买什么,都不能完全只对比价格,尤其是买房这种大事,低价没错,但是更应该关注的是“性价比”,房子的优点和缺点全都要了解清楚,然后再做横向对比,利大于弊才是你选择它的时候。
另外,买房子除了房子本身的价格,还要考虑契税、物业费、维修基金、装修改造费、月供和利息。
3、长远看,房子保值比增值更重要
房子作为一个家庭的大支出,它除了居住属性外,本身还是一项资产;每一个买房的人,不管是自住还是投资,都希望以“低价”买入,将来能以“高价”卖出,但是未来几十年的事谁能说得准呢。
就比如当下的房地产行情,去年买的房子,今年就降价了,但是可能明年又涨回来了;而房子也会“衰老”,等到十年、二十年甚至五十年以后,你现在的房子能够实现保值,那就已经赢了。
4、房子的流通性
对于第一次买房的人来说,后期过个十来年或者五六年后大概率是要拿它再置换一套大面积的改善住房的,那就要考虑当下这套房子在几年后是否能更顺利、更快的卖出,所以房子的流通性很重要。
比如老城区内很破、很便宜的住宅,远郊的房子,户型特别差的房子,最好不要碰,自己住着不舒服,以后也不好转手。
5、户型、朝向和楼层
刚需房就要考虑三代人同住或者一家四口居住对房间数量的要求,这样考虑的话,房子最少应该是三居室,那89㎡的紧凑型小三房就更合适。
另外,房子的主朝向也就是客厅和主卧一定要是南向,北向的话采光不好,住起来不舒服;选房子的时候,楼层也很重要,最好避开槽钢层、腰线层和设备层。
6、尽可能的选现房
第一套房建议大家选现房,在新房和二手房之间不要执着于前者,如果新房不是现房的话,它的交付是有风险的,毕竟现在烂尾楼太多了,拿到钥匙之前一切都没有定数;
而二手房,不管是房子的实际情况、小区的现状、物业的管理、周边的配套都已经很成熟了,考量的时候也能更方便。
7、买房就是买配套
刚需房的配套很重要,但是要分清楚哪些是有价值的配套,哪些是无价值的假配套;比如学校、商超、菜场、地铁、医院这些是有价值的好配套;而高铁站、飞机场、游乐园之类的都属于没有价值的假配套,对房子的保值升值影响不大,只不过聊胜于无罢了。
8、别碰小产权房
小产权房是指公寓和商铺,好不容易凑够首付买的第一套房子千万不要选这两类房子;虽然这两类房子对买房的限制很小,但是它不适合用来居住,只有40年的产权,水电都是商业性质,还不通燃气,不能落户等,缺点实在是太多了,最重要的以后难出手。
9、不要执着于“学区”
很多人的第一套房子基本都是婚房,买婚房就会考虑以后孩子的上学问题,“学区”就成了房子的加分项,但却不是必选项。
如果你暂时三五年甚至十来年内都没有要入学的孩子,那学区于你而言就没那么重要了,没必要因为一个“学区”在房子上花更多的钱。
现在的出生率不高,再加上很多城市规定教师要轮岗还有学区的改革、学校的合并,谁也说不准未来会变成什么样,也许七八年后,学校都可以任选了呢。
10、不要盲目追求大户型
如果你的买房预算有限,千万不要为了大户型选择远郊的新房,这种房子不管是销售说以后配套会多完善都不要选,未来的规划都是在变动的,今天承诺的可能明天就变了,别把自己好不容易攒够的房子钱“套牢”在一个不确定的未来里。
写在最后:
买房千万不能着急,越着急越容易出错,尤其是婚前买房,一定要擦亮眼、管住手,多看多选总归是没错的,房子就是以后的家,买到好房子才能住的更舒心。
I. Concepts Related to Real Estate
一、房地产相关概念
(1) Definition of Real Estate: Real estate is also known as immovable property. It refers to land, buildings, and the parts that are firmly attached to the land and buildings and cannot be separated.
(一) 房地产概念:房地产又称不动产,是指土地、建筑物及固着在土地、建筑物上不可分离的部分.
Among these, the parts that cannot be separated, such as trees and plumbing equipment, are included.
其中不可分离的部分,如树木、水暖设备等.
Real estate has three forms of existence:
房地产有三种存在形式:
1. Pure land;
1、 单纯的土地;
2. Simple buildings;
2、 单纯的建筑物;
3. Properties combining land and buildings;
3、 土地与建筑物结合的房产;
(2) Classification of the real estate market: Based on the characteristics of the development, sales and consumption process of real estate, the real estate market can be divided into:
(二) 房地产市场的分类:根据房地产开发,销售与消费过程特点,可以将房地产市场分为:
1. Primary market (land market)
1、 一级市场(土地市场);
2. Secondary market (market for newly built real estate)
2、 二级市场(房地产增量房市场);
3. The secondary market (the real estate resale market)
3、 三级市场(房地产存量房市场);
(III) Land and Land Ownership:
(三) 土地及土地所有权:
1. The concept of land: Generally refers to the ground, the space below the ground and within a certain range above the ground.
1、 土地的概念:一般是指地面、地面以下和地面以上一定范围的空间.
In real life, land is artificially divided and represents a specific area with a defined size.
现实生活中的土地是人为划分的,具有特定面积范围的地域.
2. Public ownership of land: According to the constitution, land ownership is divided into ownership by the entire people (state-owned land) and collective land ownership. Collective land can only be transferred after it is converted into state-owned land, and individuals and units only have the right to use the land.
2、 土地公有制:根据宪法规定,土地所有权分全民所有(国有土地)与集体土地所有权,集体转为国有才能转让,个人和单位只拥有土地的使用权;
3. During the validity period, the land use right can be leased, transferred or mortgaged.
3、 土地使用权在期限内可以出租、转让、抵押.
(4) Methods for obtaining land use rights:
(四) 土地使用权获取方式:
1. Transfer of Land Use Rights:
1、 土地使用权出让:
It refers to the act where the state grants the right to use state-owned land to the land user for a certain period of time, and the land user pays the land use right transfer fee to the state.
指国家将国有土地使用权在一定年限内出让给土地使用者,由土地使用者向国家支付土地使用权出让金的行为;
The transfer of land use rights can be carried out through three methods: bidding, auction, and negotiation between the parties.
土地使用权出让采用招标、拍卖、双方协议三种方式;
For six types of land use (commercial, entertainment, tourism, finance, service industry, and commercial housing), the methods of bidding and auction are adopted;
六类用地(商业、娱乐、旅游、金融、服务业、商品房)采用招标、拍卖的方式;
for old urban renovation, the method of negotiation between the parties is used.
旧城改造采用双方协议的方式;
The term of land use rights for state-owned land: 40 years for commercial, tourism and entertainment land;
国有土地使用权出让年限:商业、旅游、娱乐用地40年;
50 years for industrial land, science and education land, culture and sports land, health and sports land, comprehensive or other land;
工业用地、科教、文体、卫生、体育用地、综合或其他用地50年;
70 years for housing land;
住房用地70年;
The term of land use rights for real estate has a direct impact on its value.
房地产的使用权年限对价值有直接影响.
2. Allocation of Land Use Rights:
2、 土地使用权划拨:
It refers to the act where the people's government at or above the county level, in accordance with the law, approves the transfer of the land to the land user after the land user has paid the compensation and resettlement fees, or grants the land use right to the land user free of charge for use.
指县级以上人民政府依法批准,在土地使用者缴纳补偿、安置等费用后将该幅土地交付其使用,或者将土地使用权无偿交付给土地使用者使用的行为;
If the land use right is obtained through allocation, except as otherwise stipulated by laws and administrative regulations, there is no limit on the duration of use.
以划拨方式取得土地使用权的,除法律、行政法规另有规定外,没有使用期限的限制;
The following land use rights for construction sites are, in fact, indispensable and can be legally approved for allocation by the governments at or above the county level: land for national institutions and military purposes;
下列建设用地的土地使用权,确属必须的,可由县级以上人民政府依法批准划拨: 国家机关用地和军事用地;
Urban infrastructure land and public welfare land;
城市基础设施用地和公益事业用地;
Land for key projects supported by the state, such as energy, transportation, and water conservancy;
国家重点扶持的能源、交通、水利等项目用地;
Other land as stipulated by laws and administrative regulations;
法律、行政法规规定的其他用地;
(5) Architectural Concept
(五) 建筑概念
1. Architecture: The general term for buildings and structures;
1、 建筑:建筑物和构筑物的总称;
2. Narrowly-defined buildings: Refers to various types of houses, structures such as trees, elevators, plumbing equipment, etc.
2、 狭义建筑物:指各类房屋,构筑物如树木、电梯、水暖设备等;
3. Standards for qualified buildings: Practical, economical, and aesthetically pleasing;
3、 合格建筑物的标准:适用、经济、美观;
Applicable features: Safe, waterproof, soundproof, heat insulation and cold insulation, light transmission, complete functions, reasonable space layout.
适用:安全、防水、隔声、保温隔热、采光、功能齐全、空间格局合理;
Economy: Reasonable purchase price, low maintenance costs, low energy consumption for heating and air conditioning.
经济:购置价格合理、维修保养、采暖、空调能耗不高;
Aesthetics: Architectural design, color appeal, harmony with the environment;
美观:建筑造型、色彩美感、与环境协调;
(6) Property Concept
(六) 物业概念
1. Property: In a broad sense, property refers to real estate. In a narrow sense, property includes various types of buildings and their attached equipment, facilities, and related sites.
1、 物业:广义的物业就是房地产,狭义的物业,包括各类房屋及其附属的设备、设施和相关场地;
Various types of buildings: They can be building complexes, such as residential communities, or a single residence;
各类房屋:可以是建筑群,如住宅小区,也可以是一幢住宅;
Associated equipment, facilities and related sites: Refers to various indoor and outdoor facilities, municipal public facilities, road traffic, etc., that are compatible with the aforementioned buildings.
附属的设备、设施和相关场地:是指与上述建筑物相配套的室内外各类设施、市政公用设施、道路交通等;
II. House Construction Basics
二、房屋建筑常识
1. Floor Area Ratio:
1、 容积率:
The ratio of the total building area to the total land area is a technical and economic indicator that reflects the degree of land utilization, the intensity of use, and the economic efficiency.
总建筑面积与总用地面积的比值, 反映土地利用程度、使用强度及其经济性的技术经济指标;
Floor area ratio = Total building area ÷ Land area;
容积率=建筑总面积÷用地面积;
Generally speaking: Ordinary residences ≥ 1.0;
一般来讲:普通住宅≥1.0;
Non-ordinary residences < 1.0;
非普通住宅<1.0;
2. Building Density:
2、 建筑密度:
The proportion of the total area of all building plots within the project site to the total site area.
项目用地范围内各种建筑用地面积总和占总用地面积的比例.
It can also be calculated as the total area of building footprints ÷ total site area, reflecting the vacant land ratio within the building area and the density of buildings.
也可以建筑物基底总面积÷总用地面积,反映建筑用地范围内的空地率和建筑物的密集程度;
3. Greening Rate:
3、 绿化率:
It refers to the ratio of the total area of green space within the project planning land to the total planned construction land area.
指项目规划用地范围内绿化用地总面积占规划建设用地面积的比例;
4. Green Space Ratio:
4、 绿地率:
It describes the ratio of the total area of all green spaces within the residential area to the area of the residential area itself.
描述的是居住区用地范围内各类绿地的总和与居住区用地的比率;
5. Floor Height:
5、 层高:
The height of a residence is measured in "floors", which refers to the distance between the floor surface or floor slab of the lower level and the upper floor level.
住宅高度以“层”为单位计算,是指下层地板面或楼板面到上层楼层面之间的距离.
6. Net height:
6、 净高:
It refers to the distance between the lower floor surface or the upper surface of the floor slab and the lower surface of the upper floor slab.
指下层地板面或楼板上表面到上层楼板下表面之间的距离.
Net height = Floor height - Floor thickness;
净高=层高-楼板厚度;
7. Depth:
7、 进深:
Refers to the length of a residence, which is the actual length from the front wall to the back wall of an independent house or a residential building. To ensure that residences have good natural lighting and ventilation conditions, currently in many urban residences in China, the depth of the rooms is generally limited to around 5 meters and cannot be arbitrarily expanded.
指住宅的长度,指一间独立的房屋或一幢居住建筑从前墙皮到后墙皮之间的实际长度,为了保证住宅具有良好的自然采光和通风条件,目前我国大量城镇住宅房间的进深一般都限定在5米左右,不能任意扩大.
If the depth of a residence is too large, the interior space far from the doors and windows will have insufficient natural light.
住宅进深过大,就是住宅成为狭长型,距离门窗较远的室内空间自然光线不足,但进深大的住宅可以有效的节约用地;
However, residences with a large depth can effectively save land.
8. Width:
8、 开间:
Refers to the width of a residence, which is the actual distance between one wall surface and another within a single room of a house. The opening width in residential design has strict regulations;
指住宅的宽度,指一间房屋内一面墙皮之间到另一面墙皮之间的实际距离,住宅的开间在住宅设计上有严格的规定;
a smaller opening width can shorten the inter-floor span of the floor slab, enhancing the overall integrity, stability and seismic resistance of the residential structure.
较小的开间范围,可缩短楼板的层间跨度,增强住宅结构的整体性、稳定性和抗震性;
9. Building Area:
9、 建筑面积:
It refers to the horizontal area enclosed by the outer walls of a building.
指建筑物外墙外围所围成空间的水平面积.
It includes the usable living area of the house, the area occupied by walls and columns, the area of stairways and corridors, and other shared areas.
包含了房屋居住可用的实用面积、墙体柱体占地面积、楼梯走道面积、其它公摊面积等;
10. Common Area:
10、公摊面积:
It refers to the total area of the building's stairs, elevator shafts, exterior walls, public lobbies, corridors, equipment rooms, the first-floor lobby, and some other supporting facilities within the community.
指建筑物的楼梯、电梯井、外墙、公共门厅、走道、设备间、首层大堂及小区内其它一些配套设施的面积总和;
11. Usage Area:
11、使用面积:
It is the net usable area for residents' daily life after deducting the shared area and the area occupied by walls and columns from the total building area. It is commonly known as the floor area.
它是建筑面积扣除公摊面积、及墙体柱体所占用的面积后的直接供住户生活的净使用面积,俗称地砖面积;
12. Floor Area:
12、占地面积:
The area occupied by the building foundation and its functions is also known as the red line area.
建筑物基底及其功能需要占用的面积,也叫红线面积;
13. The net building area = Net usable area + Net wall area + Balcony area (Terrace area is calculated as half the area).
13、套内建筑面积=套内使用面积+套内墙体面积+阳台建筑面积(露台面积按半面积计算);
14. Building area = Net building area + Shared area;
14、建筑面积=套内建筑面积+公摊面积;
15. Sales area = Net building area + Shared public building area;
15、销售面积=套内建筑面积+公摊的公用建筑面积;
Commercial housing is sold by "unit" or "block".
商品房按“套”或“单元”出售;
16. Common area floor area = Total building area - Internal area of each unit - Unallocated area that should not be shared;
16、公用建筑面积=整幢建筑面积-套内建筑面积和-不应分摊的建筑面积;
17. The shared public building area = the net building area of the unit × the shared building area allocation coefficient;
17、公摊的公用建筑面积=套内建筑面积×公用建筑面积分摊系数;
18. Common area allocation coefficient: Common area area ÷ Sum of interior area of each unit;
18、公用建筑面积分摊系数:公用建筑面积÷套内建筑面积之和;
19. The shared common area floor space includes: lobby, public hall, corridors, passageways, communal toilets, elevator lobby, stairwells, elevator shafts, elevator machine rooms, garbage chutes, pipe shafts, fire control rooms, fire escape routes, pump rooms, water tank rooms, refrigeration machine rooms, power distribution rooms, gas pressure regulating rooms, air conditioning rooms, elevator maintenance rooms, duty guard rooms, satellite receiving rooms, etc.
19、分摊的公用建筑面积包括:大堂、公共大厅、走廊、过道、共厕、电梯前厅、楼梯间、电梯井、电梯机房、垃圾道、管道井、消防控制室、消防通道、水泵房、水箱间、冷冻机房、配电室、煤气调压室、空调房、电梯工休息室、值班警卫室、卫星接收机房等;
20. Unrecorded shared area: warehouses, garages, driveways, heating boiler rooms, civil defense basements, property management offices, units for sale by the developer, self-used houses of the developer, guard rooms serving multiple buildings.
20、不记入的公摊面积:仓库、车库、车道、供暖锅炉房、人防地下室、物管用房、售房单位自营、自用房屋、多幢房屋服务的警卫室;
21. Utilization rate = Gross floor area of the unit ÷ Total floor area of the residence;
21、实用率=套内建筑面积÷住宅建筑面积;
22. Utilization rate = usable area / residential area. Generally, for high-rise buildings, it ranges from 72% to 75%, while for block-style buildings, it is between 78% and 80%;
22、使用率=使用面积÷住宅面积,一般高层塔楼在72%至75%之间,板楼在78%至80%之间;
it is less than the utilization rate.
小于实用率;
23. Basement:
23、地下室:
It means that the height of the room floor below the outdoor ground level exceeds half of the room's net height.
指房间地面低于室外地平面的高度超过该房间净高的1/2;
24. Partial Basement:
24、半地下室:
It means that the height of the room floor below the outdoor ground level exceeds one third of the net height of the room, but does not exceed one half.
指房间地面低于室外地平面的高度超过该房间净高的1/3,且不超过1/2;
25. Balcony:
25、阳台:
A space for residents to engage in outdoor activities / dry clothes, etc.
供居住者进行室外活动/晾晒衣物等的空间;
26. Platform:
26、平台:
The upper roof surface or the part extending outdoors from the ground floor of the residence, which is used for outdoor activities by the occupants;
供居住者进行室外活动的上屋面或由住宅底层地面伸出室外的部分;
27. Standard Floor:
27、标准层:
Refers to the residential floors with the same floor plan;
指平面布置相同的住宅楼层;
28. Middle Layer:
28、中间层:
The floor between the ground floor and the top residential entrance floor.
底层和最高住户入口层之间的中间楼层.
III. Real Estate Industry Terminology:
三、房地产行业术语:
(1) Indoor Facilities:
(一)室内设施:
Four types of energy: heating, gas, water heater, air conditioner;
1、 四气:暖气、煤气、热水器、空调;
2. Complete set: Household appliances (TV, refrigerator, washing machine) and furniture (bed, wardrobe, sofa, TV stand, integrated cabinet);
2、 全齐:家电(电视、冰箱、洗衣机)和家具(床、衣柜、沙发、电视柜、整体橱柜);
(2) Classification of Renovation:
(二)装修分类:
1. Mao Pi: Cement floor, cement wall;
1、 毛 坯:水泥地、水泥墙;
2. Interior decoration: Ceramic tiles, white walls;
2、 简 装 修:地砖、白墙;
3. Decoration: Ceramic tiles, wooden floors;
3、 中 装 修:大地砖、木地板;
4. Decoration: Wooden flooring, door and window casings;
4、 精 装 修:木地板、包门、包窗;
5. Luxurious decoration: The interior design is modern and the materials used are of high quality.
5、 豪华装修:装修前卫、用料讲究;
(3) Floor Plan and Area:
(三)户型及面积:
1. One-bedroom apartment: Public housing area: 30 - 50 square meters;
1、 一居室:公房面积:30-50平米;
Commercial housing area: 40 - 60 square meters;
商品房面积:40-60平米;
2. Two-bedroom apartment: Public housing area: 50 - 70 square meters;
2、 二居室:公房面积:50-70平米;
Commercial housing area: 70 - 100 square meters;
商品房面积:70-100平米;
3. Three-bedroom apartment: Public housing area: 60 - 90 square meters;
3、 三居室:公房面积:60-90平米;
Commercial housing area: 110 - 150 square meters;
商品房面积:110-150平米;
4. Multi-level: A house design where the floor levels jump from one to another, such as 1st floor to 2nd floor, 3rd floor to 4th floor, etc.
4、 越层:房屋使用层跳跃的房型,如一越二,三越四等;
5. Staircase-style layout: A floor-plan in which the floors of a house are unevenly distributed.
5、 错层:房屋内地面错落的房型;
(4) Floor and Orientation:
(四) 楼层及朝向:
1. Floor description: The multi-story building has 6 floors, and the floor where the house is located is the 3rd floor. It is abbreviated as 3/6.
1、 楼层描述,多层楼房为6层,房屋所在层3层,简写3/6;
Pros and Cons:
优劣:
In buildings, there is a saying about the optimal floor numbers: "Gold for the third floor, silver for the fourth floor", meaning that the third floor is the best and the fourth floor is the second best.
楼房中多层楼有“金三银四”的说法,即六层楼三层最佳,四层次之;
The prices of the higher floors in high-rise buildings are also higher, except for the top floors in second-hand houses.
高层楼中楼层较高的价位也较高,但二手房中顶楼除外;
2. Orientation (based on the direction corresponding to the main bedroom window): The orientation of multi-story buildings is mostly north-south or east-west.
2、 朝向(以主卧室窗户所对应的方向为准)多层楼朝向多为南北正向或东西侧向;
The orientation of high-rise buildings is similar to that of multi-story buildings.
高层板楼与多层楼的朝向相似;
The high-rise towers are mostly quadrangular in shape, and their orientations are mostly southeast, southwest, northeast, northwest, and various oblique directions.
高层塔楼多为四角,其朝向多为东南、西南、东北、西北及各种斜向;
IV. Characteristics of Real Estate:
四、房地产特性:
(1) Immobility;
(一) 不可移动性;
(2) Uniqueness;
(二) 独一无二性;
(3) Longevity and durability;
(三) 寿命长久性;
(4) Limited Quantity;
(四) 数量有限性;
(5) Diversity of Uses;
(五) 用途多样性;
(6) Mutual Influence;
(六) 相互影响性;
(7) Highly influenced by policies and the market;
(七) 受政策\市场影响大;
(8) High value;
(八) 标的高;
(9) Slow cash flow;
(九) 变现慢;
(10) Preservation and Appreciation of Value;
(十)保值增值性;
V. House Classification and Detailed Explanation:
五、房屋分类及详解:
(1) Classified by the number of floors in the residence:
(一) 按住宅层数划分:
1. Lower floors: The number of floors is 1 to 3.
1、 低层:层数为1-3层;
2. Multi-layer: The number of layers is 4 to 6.
2、 多层:层数为4-6层;
3. Mid-to-high-rise: The building has 7 to 9 floors.
3、 中高层:层数为7-9层;
4. High-rise: Above 10 floors;
4、 高层:10层以上;
(2) Classified by usage nature:
(二) 按使用性质划分:
1. Productive buildings;
1、 生产性建筑;
factories, workshops, etc.
厂房、车间等;
2. Non-productive buildings
2、 非生产性建筑;
Residential buildings: such as houses, etc.
居住建筑:如住宅等;
Public buildings: such as offices, cultural and sports facilities, transportation facilities, etc.
公共建筑:如办公、文体、交通等;
(III) Classification by Structural Type:
(三) 按结构类型划分:
1. Brick-concrete structure: In this type of building, the vertical load-bearing components are made of brick walls or brick columns, while the horizontal load-bearing components are composed of reinforced concrete floor slabs and roof slabs.
1、 砖混结构:这类建筑物的竖向承重构件采用砖墙或砖柱,水平承重构件采用钢筋混凝土楼板、屋顶板。
This structure has small rooms and a low number of floors, and is generally used in multi-story buildings.
这种结构房间小、层数低,一般用于多层建筑中;
2. Frame Structure: This type of structure's load-bearing components are formed by beams, slabs and columns made of reinforced concrete or steel, and can be used for high-rise buildings.
2、 框架结构:这种结构的承重部分是由钢筋混凝土或钢材制作的梁、板、柱形成的骨架,可用于小高层建筑;
3. Reinforced concrete shear wall structure;
3、 钢筋混凝土剪力墙结构;
The vertical load-bearing components and horizontal load-bearing components of this type of building are all made of reinforced concrete, and it is commonly used in high-rise buildings.
这类建筑物的竖向承重构件和水平承重构件均采用钢筋混凝土制作,多用于高层建筑
4. Spatial structure: Includes: grid structure, truss structure, shell structure, etc.
4、 空间结构:包括:县索结构、网架结构、壳体结构等。
Examples include stadiums and grand theaters.
如体育馆、大剧院等;
(4) Classified by building materials:
(四) 按建筑材料划分:
1. Brick-concrete: Red bricks and cement;
1、 砖混:红砖与水泥;
The main load-bearing components are constructed using bricks and concrete.
承重的主要构件是用砖和混凝土建造的;
2. Steel and concrete: Cast, the most sturdy;
2、 钢混:浇注、最为结实;
The main load-bearing components are constructed with steel and reinforced concrete.
承重的主要构件是用钢、钢筋混凝土建造的;
3. Prefabricated slabs: Prefabricated concrete slabs and reinforcing bars;
3、 预制板:预制的混凝土板与钢筋;
The main load-bearing components are constructed with reinforced concrete.
承重的主要构件是用钢筋混凝土建造的.
This includes buildings with thin-shell structures, large formwork cast-in-place structures, and reinforced concrete structures constructed using sliding forms or lift-up slabs.
包括薄壳结构、大模板现浇结构及使用滑模、升板等建造的钢筋混凝土结构的建筑物;
(5) Classified by the appearance of the building type:
(五) 按楼型外观划分:
1. Office building:
1、 板楼:
It refers to a type of residential building composed of multiple residential units, each of which has a staircase or both a staircase and an elevator;
是指由多个住宅单元组合而成,每单元均设有楼梯或楼梯、电梯皆有的住宅;
each unit has its own separate staircase and elevator.
每个单元用自己单独的楼梯、电梯;
The basic forms of high-rise buildings: Multi-storey: below 6 floors;
板楼基本形式:多 层:6层以下;
Mid-rise: within 7-12 floors;
小高层:7-12层以内;
High-rise: 13-18 floors;
高层:13-18层;
Super high-rise: above 18 floors and even higher.
超高层:18层以上甚至更高;
2. Tower:
2、 塔楼:
It mainly refers to high-rise residential buildings where multiple housing units are arranged around a common staircase or elevator.
主要是指以共用楼梯、电梯为核心布置多套住房的高层住宅.
In simple terms, the tower is centered around the elevator and staircase, and after reaching the floor, one can directly enter the apartment by walking in any direction.
通俗地说,塔楼以电梯、楼梯为布局核心,上到楼层之后,向四面走可以直接进入户内;
The basic forms of the towers: butterfly type, pyramid type, Z-shaped type, tower plate combination, cross type, square tower.
塔楼基本形式:蝶型、品字型、Z字型、塔板结合、十字型、方形塔楼;
Addendum: Apartment buildings: The bathrooms and kitchens are shared collectively.
补充:筒子楼:卫生间、厨房都集体公用;
Office building: for office use;
写字楼:办公使用;
(6) Classified by house layout:
(六) 按房屋户型划分:
1. One-bedroom apartment;
1、 一居室;
One-bedroom room
一卧室;
2. Two-bedroom apartment;
2、 二居室;
Two bedrooms
二卧室;
3. Three-bedroom apartment;
3、 三居室;
Three bedrooms
三卧室;
4. Multiple bedrooms;
4、 多居室;
Multiple dwellings
多卧室;
5. Misalignment: This refers to a situation where a house is not on the same level, meaning that the living room, bedroom, bathroom, kitchen, and balcony within the house are located on several different levels of elevation.
5、 错 层:主要指的是一套房子不处于同一平面,即房内的厅、卧、卫、厨、阳台处于几个高度不同的平面上。
6. Split-level: A split-level house consists of two floors, with an internal staircase connecting the upper and lower levels.
6、 跃 层:跃层住宅是一套住宅占两个楼层,有内部楼梯联系上下层;
Usually, the living room, kitchen, dining room, and bathroom are located on the first floor, and at least one bedroom is also provided.
一般在首层安排起居室、厨房、餐厅、卫生间,最好有一间卧室,二层安排卧室、书房和卫生间等。
On the second floor, there are bedrooms, study rooms, and bathrooms, etc.
7. Duplex: In terms of concept, a duplex residence is considered as one floor, but it has a higher floor height than a regular house. Partially, a mezzanine can be excavated to accommodate bedrooms or study areas, and these areas are connected by stairs.
7、 复 式:复式住宅在概念上是一层,但层高较普通的住宅高,可在局部掏出夹层,安排卧室或书房等内容,用楼梯联系上下。
The purpose is to increase the utilization rate of the residential space.
其目的是提高住宅空间利用率。
(7) Classified by property rights nature:
(七) 按产权性质划分:
1. Commercial housing: Refers to the houses constructed by various real estate development companies for profit purposes and operated in accordance with market rules.
1、 商品房:指各房地产开发公司投资兴建的,以赢利为目的,按市场规律经营的房子;
Category:
分类:
(1) Ordinary residence:
(1) 普通住宅:
Floor area ratio of 1.0 (inclusive) or above;
容积率1.0(含1.0)以上;
The building area is less than 140 square meters.
建筑面积在140平方米以下;
The transaction price is less than 1.2 times the average transaction price of similar-grade land-based housing.
成交价低于同级别土地住房平均交易价格1.2倍以下;
(2) Non-residential properties:
(2) 非普通住宅:
Building A;
甲宅;
24-hour elevators, security services, and the property management fee is relatively high.
24小时电梯、保安,物业费较高;
Apartment;
公寓;
Commercial housing, 24-hour elevators, security guards, 24-hour hot water supply from pipelines;
商品房、24小时电梯、保安、24小时管道热水;
Villa: (Single-family, row house, duplex, terraced house) Generally located in more remote areas.
别墅:(独栋、联排、双拼、叠拼)一般较为偏远;
(3) Sales qualifications for commercial housing: The sale of commercial housing requires the possession of the following five certificates: The "State-owned Land Use Certificate", "Construction Land Planning Permit", "Construction Engineering Planning Permit", "Construction Engineering Construction Permit", and "Commercial Housing Pre-sale Permit".
(3) 商品房销售资质:商品房销售须具备以下五证:《国有土地使用证》、《建设用地规划可证》、《建设工程规划许可证》、《建筑工程施工许可证》、《商品房预销售许可证》;
2. Purchased Public Housing:
2、 已购公房:
Ordinary Public Housing: Refers to the public housing originally owned by the unit but purchased by the unit's employees at cost price, standard price or discounted price in accordance with the relevant housing sale policies of the state.
普通公房: 指按照国家房改有关售房政策,单位职工按成本价、标准价或优惠价购买的原产权属于单位的公有住房.
These are the housing projects built by the unit and the housing constructed through collective fundraising and cooperative construction that were purchased by the employees at cost price or standard price in accordance with national policies.
职工根据国家政策,按成本价或标准价购买的由单位建设的安居工程和集资合作建设的住房;
State-owned housing: Refers to the public housing that was purchased by employees of units in accordance with the relevant housing reform policies of the state. These were originally owned by central government units in Beijing, large and medium-sized state-owned enterprises, and the administrative organs of various ministries and commissions of the State Council.
央产房: 指按照国家房改有关售房政策,单位职工按成本价、标准价或优惠价购买的原产权属于中央在京单位,国有大中型企业及国务院各部委机关的公有住房.
Employees follow the national policies.
职工根据国家政策
声明:本文由入驻焦点开放平台的作者撰写,除焦点官方账号外,观点仅代表作者本人,不代表焦点立场。


