上海徐汇金巢铂瑞阁售楼处—徐汇金巢铂瑞阁首页—徐汇金巢铂瑞
扫描到手机,新闻随时看
扫一扫,用手机看文章
更加方便分享给朋友
上海徐汇【金巢铂瑞阁】
售楼处电话:400-886-1718【营销中心】
疫情防控 看房必须提前来电预约登记
项目简介
【金巢铂瑞阁】整个项目由酒店、公寓、商铺三大核心产品组成,整个小区的居住环境不仅便捷,周围工作人群相对也比较简单。
作为内环内极度稀缺的小面积段商住产品,在地块的先天优势基础上重塑上海现代生活文化聚集空间,打造独具特色的诺阁雅酒店、酒店式公寓以及沿街商业,成为泛CBD核心区域不可或缺的定制配套。
本项目拥有超高的绿化环境以及极低的容积率,特别的稀缺产品,给您小区的居住环境、酒店式的服务,周边无论居住还是工作人群更都精英云集,居住于一定此为您的生活层次带来更加优质的体验。

想要住在“真正的上海”,在这两年的楼市中已经变成一件越来越难的事,一部分原因是因为五大新城的发展,势必会有大量的外郊环新盘供应出现
其次,市中心的核心板块在多年存量宅地消耗下,几乎已经没有多少开发的新房项目出现,比如徐汇就是一个很好的例子
徐汇传统的几个商圈板块已经多年没有新房供应了,比如二手豪宅成交量一直不错的打浦桥。

小区规划
开发公司:上海新融置业发展有限公司
物业公司:上海同进物业服务有限公司
项目位置:徐汇区合宝18号路近斜土路
绿 化 率:30%
容 积 率:为3.89
在售楼层:主要在15-17层
梯 户 比:5梯26户
在售面积:50-105㎡
总价:443—863万
户型层高:3米

周边设施
交通:项目距离9、12号线地铁嘉善路站4号口直线距离600米左右,4号线大木桥路站1号口800米,3条轨交线路与贯穿上海的南北高架及内环高架组成了三维立体的交通模式
医疗:中山医院,瑞金医院,上海市徐汇区中心医院,肿瘤医院(南部),华山医院,龙华医院等
教育:上海图书馆,上海市教育科学研究院,复旦大学(枫林校区),南洋中学,外国语小学,上海音乐学院,上海交通大学医学院,西南位育中学,中国科学院(上海分院),复旦大学上海医学院
商业及生活:购物及生活配套有日月光中心、金玉兰广场、田子坊距离本项目仅800米距离,距上海法租界也仅1.5公里距离。绿地缤纷城,尚街Loft(嘉善路),徐汇区茶陵菜市场,正大乐城等都在项目周边基本都是步行10分钟左右及可到达。
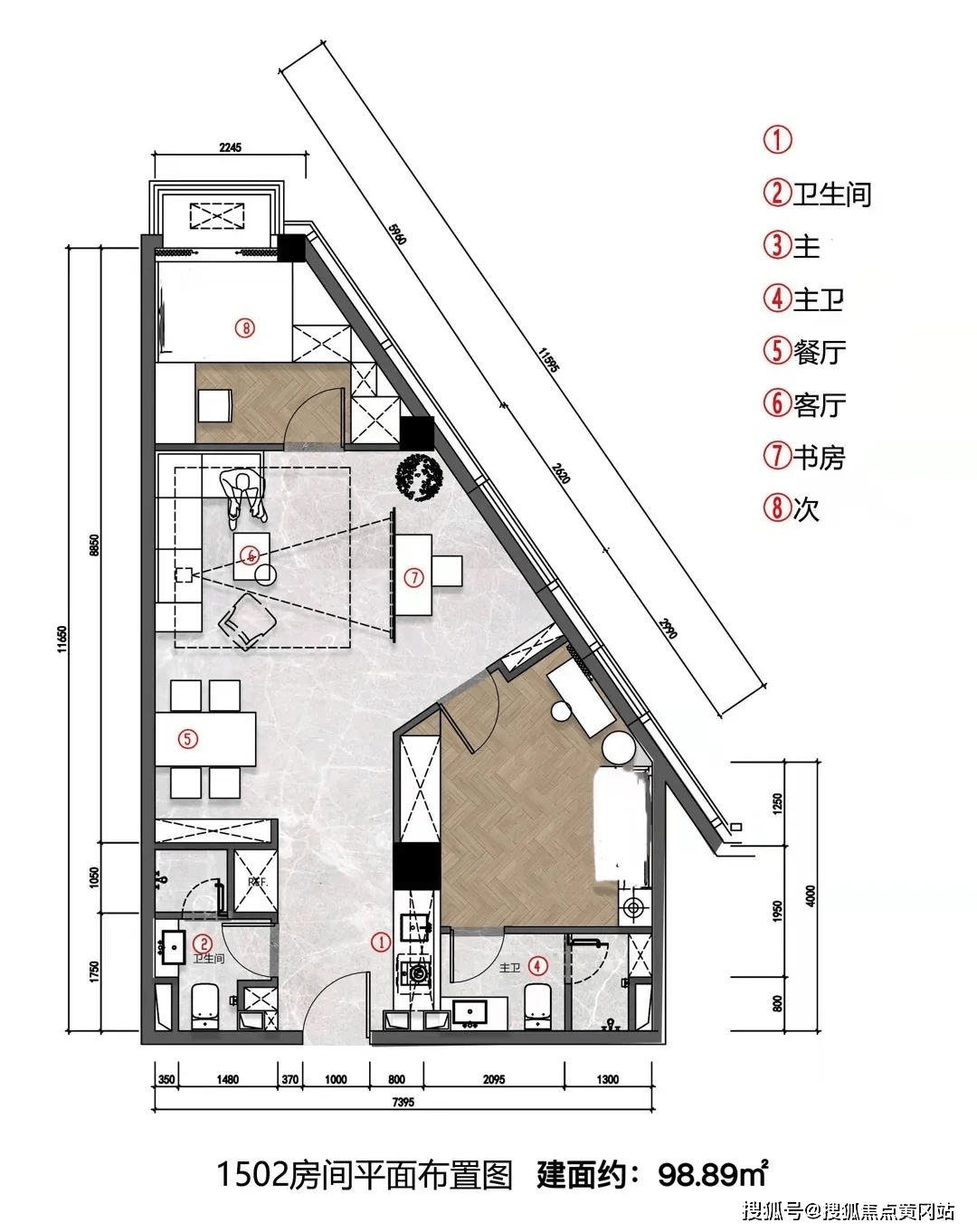
【户型】





【样板间】





上海徐汇【金巢铂瑞阁】
售楼处电话:400-886-1718【营销中心】
疫情防控 看房必须提前来电预约登记
声明:本文由入驻焦点开放平台的作者撰写,除焦点官方账号外,观点仅代表作者本人,不代表焦点立场。


