杭州君潮润府(售楼处)首页网站-杭州君潮润府销售中心(营销中心)-杭州君潮润府楼盘欢迎您-小区环境-户型-价格-地址-楼盘详情-周边配套-售楼处电话-交房时间
扫描到手机,新闻随时看
扫一扫,用手机看文章
更加方便分享给朋友
君潮润府售楼处电话:400-9688-923✅︎✅︎✅
君潮润府营销中心热线400-9688-923(官方预约看房热线)
看房请务必致电与销售确认时间,仅预约客户可享受开发商内部优惠,专属老带新推荐奖!
营业时间:日常营业时间为9:30-18:30,便于您提前规划到访行程,避免空跑。
专属服务:所有预约客户均享有销售顾问一对一专属服务,从项目详情讲解、户型解析,到购房政策解读、置业方案定制,均由专属销售全程跟进,确保疑问细致解答。
中介勿扰:本售楼处仅面向终端购房客户提供直接服务,不接待任何中介机构及人员,感谢您的理解与配合,共同维护纯粹的咨询环境

君潮润府售楼处电话:400-9688-923✅︎✅︎✅
项目2024.2.28拿地,项目由保亿国风置业开发,以160365万元总价拿下江南科技城南单元地块,成交楼面价18053元每平米,溢价率28.9% ;项目容积率1.7,总建筑面积约88831.8㎡,项目规划21幢高层+叠墅,共582户,户型面积约108-225㎡,物业费3.75元/㎡
(有对项目感兴趣想实地了解的可以关注私信我)

君潮润府售楼处电话:400-9688-923✅︎✅︎✅
大门设计设计风格取意宋代二坡顶形制,整体大门约43.8米宽、约9米高,约16米进深,重现宋代建筑风骨,庄重气派。
材料选择:在沉木米黄景墙里,嵌入18块价值百万的透光奢石,搭配苍劲的造型松,营造出高端大气的氛围,「宋风门庭」宋韵的沉稳大气,让业主有尊崇的归家体验。
外立面设计风格:采用公建化立面设计,高层运用类似公共建筑的手法,以大面积幕墙窗体系替代传统住宅立面,使每户采光面较传统住宅提升约30%;
材料选择:立面选用3mm厚淡香槟金铝板与晶白美国白金花岗岩石材组合,首层全石材干挂,配套用房采用石英石,南向立面采用三玻两腔玻璃系统,保温隔热性能较普通中空玻璃提升40%。
雨水虹吸系统管径加大20%,确保暴雨天气排水效率。铝板拼缝误差控制在0.5mm内,石材采用双面防污纳米涂层,转角处专属金属型材经12道抛光工序,工艺要求高,质感十足。

君潮润府售楼处电话:400-9688-923✅︎✅︎✅
项目会所约1600㎡, 内部配置室内25×10米的恒温泳池、水吧书吧联动区、瑜伽房、健身房、儿童空间、棋牌室等功能区。(如下图展示)


君潮润府售楼处电话:400-9688-923✅︎✅︎✅
(真诚发问🔺:各位,以上配套,大家比较喜欢待在哪个空间里?)
第二步,我们来看产品,下图是保亿在杭州的四代作品(请看下图)

君潮润府售楼处电话:400-9688-923✅︎✅︎✅
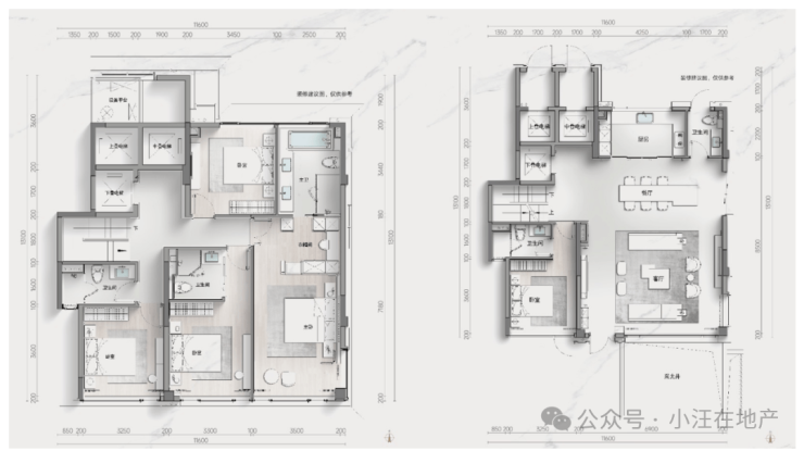
根据官方的宣传,第四代的产品得房率高是最大的亮点、那我们来看下君潮润府的叠墅产品的具体设计亮点,上、中、下户型皆为225㎡:
1平权升级:户户享有独立入户花园与私梯入户,更附赠60㎡以上地下室空间,尊崇体验全面覆盖。

君潮润府售楼处电话:400-9688-923✅︎✅︎✅

君潮润府售楼处电话:400-9688-923✅︎✅︎✅

君潮润府售楼处电话:400-9688-923✅︎✅︎✅
2竖向升级:优化竖向布局,实现静层相邻,上、中、下叠产品彻底动静分离,互不干扰,提升私密性与舒适度。
君潮润府售楼处电话:400-9688-923✅︎✅︎✅
3空间升级:采用公建化现代立面,单层南向面宽约达11.6米,搭配6.9米×6.6米阔尺无柱客厅,阳台入户,尺度开阔,彰显气派

君潮润府售楼处电话:400-9688-923✅︎✅︎✅

4庭院升级:每户配置双重庭院,下叠产品更享类独栋式大花园,套均面宽再增20cm,赋予更多自然与生活意趣。
5地下室升级:地下室层高突破至6.6米(上叠夹层2.8米),配备大采光井(中叠同享),270°广角视野+精装交付,空间通透。
(上叠地下车库层高为3.8米、中叠和下叠的地下车库层高是3.1米;此处为未吊顶前的净高空间、如果吊顶后,预计空间在2.25米左右)

君潮润府售楼处电话:400-9688-923✅︎✅︎✅
(亮点:叠墅车库全吊顶、精装交付)
6上叠露台升级:私梯直通露台花园,并配置独立卫生间,功能完备,注重高端休闲体验。


君潮润府售楼处电话:400-9688-923✅︎✅︎✅


君潮润府售楼处电话:400-9688-923✅︎✅︎✅

君潮润府售楼处电话:400-9688-923✅︎✅︎✅
上叠户型露台层实景空间
此处是叠墅外立面的北侧,那优缺点就给大家都列一下吧,给保亿一个可以进步下一代产品呈现更好的机会。(哈哈哈哈、仅代表个人观点)


君潮润府售楼处电话:400-9688-923✅︎✅︎✅
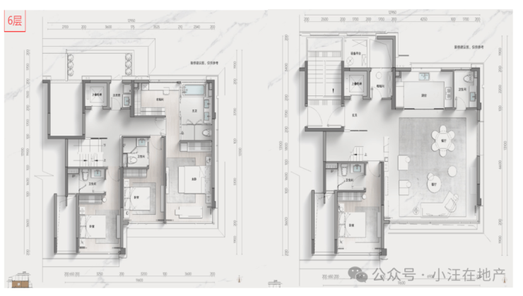
我们来细品一下君潮润府的下叠户型225㎡的空间设计


君潮润府售楼处电话:400-9688-923✅︎✅︎✅

君潮润府售楼处电话:400-9688-923✅︎✅︎✅
君潮润府售楼处电话:400-9688-923✅︎✅︎✅
夹层也可以是“充满呼吸感”
君潮润府售楼处电话:400-9688-923✅︎✅︎✅
此处为地面一层拍摄实景
君潮润府售楼处电话:400-9688-923✅︎✅︎✅

君潮润府售楼处电话:400-9688-923✅︎✅︎✅
下叠地下室层高约6.6米(3.5米夹层+约3.1米地下层),总面积超约200㎡,样板房挑空设计,通过夹层下采下沉庭院采光,保证了地下空间的明亮和通风干燥。
🔺敞亮的地下式夹层使其功能更强、使用率更高。增强了下叠附加空间的实用性。

君潮润府售楼处电话:400-9688-923✅︎✅︎✅
下叠户型225㎡
五房五卫设计,且能做四套房,客厅面宽至7.1米,南向面宽11.4米;因其设计为公建化外立面、所以卧室均不带阳台。主卧开间3.5米尺寸较为常规。
我们继续细看中叠户型225㎡ (5房5卫-5个房间、地下夹层1书房)

君潮润府售楼处电话:400-9688-923✅︎✅︎✅

🔺亮点:地下室为精装交付,含车库层高6.6米(3.5米夹层+约3.1米地下层),采光井直通车库层,增加整体采光通风。



君潮润府售楼处电话:400-9688-923✅︎✅︎✅




君潮润府售楼处电话:400-9688-923✅︎✅︎✅
🔺中叠配备约6.6米层高的地下室,3.5米夹层+约3.1米地下层的组合进行改造,打造成定制空间等,满足家庭个性化需求;地下室采用大采光井设计,中叠拥有270°视野,将自然光线充分引入地下空间。实现停车也可以看到家里的绿化风景。
🔺独立入户花园与私梯入户:中叠也有类独栋式设计感,有不错的归家仪式感和私密性,同时也相当于额外拥有了专属的户外空间和可利用的入户区域。
🔺布局方正且空间尺度舒适:中叠地上部分为五房五卫格局,边套主卧面宽达11.6米,餐客厅面积超60㎡,单层使用面积达110㎡。
最后我们看下上叠户型225㎡ (4房6卫)
🔺上叠拥有独立入户花园,与私梯入户设计相结合,形成了独门独院的归家体验,增加了居住的私密性和仪式感、阳光露台,可电梯直达,并且配备了上下水及独立卫生间,业主可以在此进行花园BBQ、种植花草、享受下午茶等活动,提升了露台的实用性和便利性。

君潮润府售楼处电话:400-9688-923✅︎✅︎✅





君潮润府售楼处电话:400-9688-923✅︎✅︎✅
🔺上叠拥有约2.8米层高的地下室,且配备较大采光井,保证了地下空间的明亮和干燥,地下室采用精装交付标准,业主可根据自身需求将其打造成家庭影院、收藏室、工作室等多元志趣空间。
🔺通过面宽的增加,将主客厅面宽拓展至7.8米,配合封闭式景观阳台设计,有效提升了空间利用率和居住舒适度。
🔺君潮润府的叠墅精装配置没有嘉格纳、fendi casa芬迪家居、polifom保利福、美诺、大金、摩根全屋智能系统等、但是配置够全,全屋背景墙软包,浴缸、智能马桶、厨电5件套、三大件、玄关柜等均配置齐全,地下室精装交付,同样也是在体现项目高配性价比。

君潮润府售楼处电话:400-9688-923✅︎✅︎✅
硬件套:日立中央空调、迈迪龙新风系统、博士地暖。空气源热泵耀罡,智能家电可视对讲品牌大华,水地暖系统分集水器卡来菲,水地暖系统地暖盘管中财。
厨房设备:厨电五件套包含西门子蒸烤一体机等。凉霸奥普(西门子油烟机、西门子洗碗机、西门子燃气灶、西门子蒸烤一体机、嵌入式双开门卡萨帝冰箱)洗涤池及龙头摩恩,玻璃门优普,厨房柜门和台面为定制材料;
卫生间:主卫浴缸卡德维,浴缸龙头高仪,淋浴龙头及花洒高仪,盥洗盆以及盥洗盆龙头为高仪,淋浴房麦华,摩恩智能马桶带冲洗马桶,暖风机以及换气扇为奥普,卫生间电地暖为温斐。
家政间:地面和墙面为马可波罗,顶面石膏板为圣戈班杰科,乳胶漆为立邦。
其他:户内电梯为日立,上叠屋顶露台配备上下水,可改造为空中花园,地下私人独立车库空间也可以是可变空间根据家庭需求定制。

君潮润府售楼处电话:400-9688-923✅︎✅︎✅
叠墅实景交付样板房
君潮润府产品设计的不错,因为庭院、露台、地下室的设计和数据呈现来说,
地下室:层高、面积、采光通风、是否精装 ?
露台:面积、有无屋面露台、电梯能否直达、是否精装 ?
庭院:面积、院墙材料、庭院是否步入式、采光井 ?
在以上数据分析里,君潮润府的整体评测能达到90分以上,好奇为什么吗?那来简单做下对比、比如地下室层高?地下室单层面积?
我们找点项目做下比较,对比下、地下室层高的高度:溪映听庐5.9米、鸣湖里5.8米、天阳湖山丽舍6米、望云润玺6.1米、天青岳5.8米、越秀如玺华院5.8米、绿城香雪里6米、华景川璟城里6.8米、溪径恒庐6米、宸风逸庐6米、保亿国风君潮润府6.6米;
地下室单层面积:溪映听庐100㎡、鸣湖里120㎡、天阳湖山丽舍100㎡、望云润玺120㎡、天青岳100-200㎡、越秀如玺华院68㎡、绿城香雪里70-100㎡、华景川璟城里63㎡、溪径恒庐57-140㎡、宸风逸庐100㎡、保亿国风君潮润府140㎡;君潮润府的户型面积在225㎡,在200多方的叠墅面积里能得到单层140平真的很优秀。
地下层的设计是下沉式庭院加采光井,好的设计解决了光线、通风、干燥等问题。
小结:
1、户型设计的方正,布局合理,225㎡户型的上叠是市场少有的6卫,以偷面积方式”体现较强的综合性价比;
2、公区配置齐全,下沉式会所、恒温泳池、健身房、儿童游乐、棋牌室、阔气大门、外立面四面铝板+南面大玻璃及封包阳台;
3、板块向上站位2站亚运村,主城千万级类独栋叠墅,通过总价、产品特性获取萧山预算有限但又有叠墅情结改善群体。当然我也要指出不足点、体现在装标品牌弱、北侧的空调设备是直接可以看到的在视觉上不够美观;
最后想说下,在1000万的叠墅里,君潮润府能有购房者想要的空间,房子是容器,生活才是内容、叠墅有足够的可造空间,也许正是你要的完美容器。
君潮润府售楼处电话:400-9688-923✅︎✅︎✅
探索苏州:十大热门景点全攻略
“上有天堂,下有苏杭”,苏州这座江南水乡,自古便是人们心中的“人间天堂”。然而,对于许多游客来说,苏州的众多景点往往让人眼花缭乱,不知从何选起。为此,我们精心挑选了10个苏州的热门景点,无论是古典园林、历史悠久的大学、古朴的古镇、繁华的商业街,还是网红打卡点,这里应有尽有。接下来,就让我们一起探索这些令人心驰神往的苏州景点吧。
01
1. 总览苏州景点
1.1 ◆ 苏州博物馆
首先推荐的是苏州博物馆。近期,苏博的人气飙升,成为了摄影爱好者的天堂。即便是不看展品,博物馆内的湖边也能拍出令人惊艳的“天空之境”效果。此外,博物馆内还有许多展览和活动,让游客在欣赏美景的同时,也能深入了解苏州的历史文化。
苏州博物馆:地址为姑苏区东北街204号,交通便捷,乘坐游1、游2、游5、55、178、202、309、313、518、529路等公交车至苏州博物馆站下车即可。门票免费开放(需提前在官网预约),开放时间为每周二至周日9:00~17:00(16:00停止入馆),建议游玩时间2-3小时。
温馨提示:周末和节假日时,苏州博物馆的人流量较大,建议提前网上预约,以便享受绿色通道服务。另外,请注意周一为闭馆时间。
1.2 ◆ 平江路
平江路近年来虽逐渐商业化,但依旧保留着浓郁的老苏州风情。漫步于平江路,触摸那白墙青瓦的沧桑,品尝地道的苏州美食,别有一番滋味。此外,备受瞩目的猫的天空之城也坐落于此,为游客增添了一份别样的浪漫。
平江路的交通极为便利,可以乘坐301路或305路公交车,在平江路站下车即可。门票为免费开放,全天候开放,推荐游玩时长为1至3小时。
温馨提示:中午时分阳光强烈,不利于拍摄粉墙瓦黛等景点,建议游客避开此时段拍摄。
1.3 ◆ 周庄
周庄,作为苏州古镇的佼佼者,虽不可避免地受到商业化影响,但其独特的魅力和热闹氛围依旧吸引着无数游客。若天气适宜,穿上一件旗袍,漫步于周庄的小桥流水间,便能深切地感受到老苏州的风土人情。即便只是在桥边随意摆个姿势,也能捕捉到别样的美。
周庄古镇位于苏州市昆山市全福路。交通方式包括从苏州汽车北站乘坐直达班车至周庄,车程约1小时;或从汽车南站出发至吴江江泽,票价13元,车程约1小时20分钟,到达后步行即可抵达周庄古镇。
门票信息为周庄古镇门票价格为100元;夜游周庄则需80元。开放时间为每天上午8点至晚上9点,建议游玩时长为1天。
1.4 ◆ 虎丘
虎丘,这座历史悠久的景区,以其独特的魅力吸引着无数游客。虎丘塔,被誉为中国的比萨斜塔,其别具一格的造型为游客提供了绝佳的摄影背景,特别是与虎丘塔的错位照,更是创意无限。此外,景区内的大片竹林与幽深小径相映成趣,为摄影爱好者提供了无尽的灵感。
虎丘的地址是姑苏区山塘街虎丘山门内8号。交通方式为可乘坐146、游1、游2路公交车至虎丘首末站(南门入口),或乘坐32、快线3号公交车至虎丘北门站(北门入口)。门票淡季价格为60元,旺季则为80元,开放时间为每天上午7:30至下午5:30(或17:00)。建议游玩时长为2-3小时。
景区内提供免费讲解服务,为游客带来贴心的游览体验。
1.5 ◆ 七里山塘
七里山塘,作为苏州著名的江南水乡古街,以其独特的魅力吸引着无数游客。这条古街西接“吴中第一名胜”虎丘,长约七里,是唐代大诗人白居易任苏州刺史时亲手规划并建造的。在苏州众多的街巷之中,山塘街以其深厚的文化底蕴和迷人的夜景,被赞誉为“姑苏第一名街”。
交通方式为乘坐地铁2号线至山塘街站下车即可到达。门票为免费开放,开放时间为每天上午8:30至晚上21:00,建议游玩时长为3-4小时,深度体验七里山塘的魅力。
02
2. 更多热门景点
2.1 ◆ 苏州大学
苏州大学,一处摄影爱好者的天堂。无论是春日樱花烂漫,夏日绿树成荫,还是秋日银杏飘落,冬日白雪皑皑,这里都能满足你对美的追求。钟楼与绿树相映成趣,情人坡上留下青春的足迹,而复古欧式红楼更是小清新风格的绝佳取景地。
苏州大学位于苏州市姑苏区十梓街1号,交通便捷,乘坐地铁1号线至相门站,步行270米即可抵达。门票为免费开放,开放时间为每日8:00至17:00,建议游玩时长为2-3小时。为确保顺利参观,建议提前预约。
2.2 ◆ 金鸡湖与东方之门
金鸡湖与东方之门,是摄影爱好者的又一绝佳选择。在白天,你可以漫步于诚品书店,感受ins风十足的甜品店带来的悠闲时光。而当夜幕降临,金鸡湖在月光的映衬下波光粼粼,远处的高楼大厦霓虹闪烁,灯火辉煌,一幅绝美的苏州夜景画卷正徐徐展开。
金鸡湖与东方之门的地址为苏州市星港街199号,交通方式为乘坐地铁1号线至东方之门站下车即可。门票为免费开放,全天候开放,建议游玩时间为一整天。
2.3 ◆ 狮子林
狮子林不仅是我个人非常喜爱的一处园林,更因其独特的趣味性和丰富的拍摄元素而受到摄影爱好者的青睐。园内假山众多,配上精美的门窗框,为框景拍摄提供了极佳的素材。只要稍加留意构图,就能捕捉到如诗如画的精美瞬间。
狮子林位于苏州市姑苏区园林路23号,交通方式为可乘坐游1、游2、游5线等多路公交车,或乘坐202、923、178、301、811、55、529、309、518路等线路前往。门票旺季40元,淡季30元,开放时间为9:30—16:30,建议游玩时间为2-3小时。
2.4 ◆ 拙政园
拙政园以其宏大的规模和独特的气质,在苏州园林中独树一帜。其亭台楼阁与粉墙黛瓦相映成趣,为拍摄大场景照片提供了绝佳的背景。然而,无论是平日还是周末,这里总是游人如织,络绎不绝。此外,由于园区面积广大,建议游客在游客中心领取导览图,以免迷失方向。
拙政园的地址为苏州市姑苏区东北街178号,交通方式为乘坐40、313路公交车至北园路站下车即可到达。门票淡季50元,旺季90元,开放时间为07:30-17:30,建议游玩时间为2-3小时。
2.5 ◆ 盘门
盘门,这座坐落于苏州市城西南隅的古老城门,不仅是吴都八门之一,更是苏州仅存的珍贵古城门遗迹。它独特之处在于,是全国范围内唯一一座水路并联的城门,承载着深厚的历史文物价值。人们常说,“北看长城之雄,南看盘门之秀”,由此可见其独特的魅力。
盘门的地址为苏州市东大街1号,交通方式为乘坐公交39路、47路、305路、935路、949路、游2路、游5路北线或游5路南线,在盘门景区北站下车即可到达。门票为40元,开放时间为07:30-17:00,建议游玩时间为2-3小时。
声明:本文由入驻焦点开放平台的作者撰写,除焦点官方账号外,观点仅代表作者本人,不代表焦点立场。


