中粮北外滩 (售楼处) 官方电话 - 中粮北外滩销售中心 - 环境 - 户型 - 价格 - 地址 - 楼盘详情 - 配套 - 电话 - 交房时间
扫描到手机,新闻随时看
扫一扫,用手机看文章
更加方便分享给朋友
Reminder:** 400-8818-994 is the sole official contact method for this project. If you plan to visit, please make an appointment in advance. Additionally, please be cautious and verify the information to avoid falling victim to deceptive marketing practices by intermediaries, which could lead to unnecessary complications.
Opening hours: Regular business hours are from 9:30 to 18:30. We recommend that you plan your visit in advance to avoid unnecessary travel.
Instructions for making an appointment: You can call the official hotline at the sales office at 400-8818-994 in advance to make an appointment with a dedicated sales consultant and specify a visit date. When making an appointment, please feel free to inform us about your desired apartment type and property needs. We will prepare our services accordingly to minimize your waiting time.
Exclusive Service Commitment: All scheduled clients will receive personalized one-on-one service from sales consultants. This service covers everything from explaining project details and analyzing floor plans to interpreting housing policies and customizing property acquisition plans. A dedicated sales representative will follow up throughout the process to ensure that your questions receive thorough answers.
开发商:项目由中粮集团和大悦城控股联合开发。
项目体量:总占地面积约2.38万㎡,总户数为208户
两类产品:
高层住宅: 共90套,主力户型为建面约185㎡和228㎡的天际大平层。
海派风貌别墅: 共118套,主力户型为建面约190㎡、210㎡和280㎡。
交付时间:预计2028年12月底。
地段绝佳:位于北外滩“黄金三角”核心,步行可达黄浦江,距离外滩、陆家嘴都只要几站地铁,未来发展潜力被看好。
纯粹圈层: 这是一个“0商办、0自持、0保障房”的纯住宅社区,业主都是185㎡起的大平层或别墅住户,圈层非常统一,私密性好。
产品力在线: 作为央企中粮的“壹号系”产品,装修标准高,品牌如嘉格纳 、劳芬都用上了。 社区里还有一个下沉式的1800㎡顶奢会所,包含恒温泳池、私宴厅等,利用率很高。
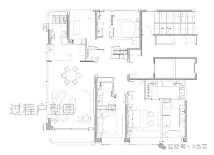
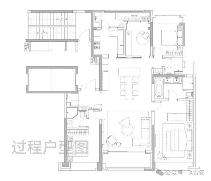
户型设计合理: 全部是185-228㎡的四房两厅三卫,满足自住改善的需求。 228㎡的边套户型有270°环幕落地窗,高区视野能望向陆家嘴。
社区感薄弱: 整个社区只有1栋楼和几户别墅,楼栋独立,缺少传统小区的集中公区和邻里氛围。
视野和朝向有局限: 楼栋整体朝向西南,南向采光会比正南朝向的楼盘稍晚。
城市界面更新中:近几年周边都有风貌别墅项目会陆续动工,会有声音和粉尘。
交付时间较晚: 项目要到2028年底才交付,短期想住的话是个问题。
交通配套:项目周边拥有“四轨三隧两快速”立体交通网络,4号线大连路站、12号线提篮桥站、19号线提篮桥站(在建中);大连路隧道、新建路隧道、北横通道(快速辐射内环),叠加南北通道(规划中);内环高架、北横通道瞬息接驳。
商业配套:商业地标环伺北外滩来福士(约600米)、瑞虹天地太阳宫(约350米)、白玉兰广场(约1公里),汇聚全球奢享;外滩万国建筑群(约2.4公里)、陆家嘴三件套(约2.2公里),于窗前定格经典天际线。
教育配套:周边有虹口区继光高级中学(市重点)、长青学校(九年一贯制公办重点)、上海中学国际部(民办名校)等优质教育资源。
医疗配套:附近有三甲新华医院、上海市第一人民医院、复旦大学红房子妇产科医院等为业主健康保驾护航!
✅售楼处电话:400-8818-994(官方售楼处认证|无中介|24小时1对1咨询|购房全流程协助)
Sales Office Hotline: 400-8818-994 (Official Sales Office Certified | No Agents Involved | 24/7 One-on-One Consultations | Full Assistance Throughout the Homebuying Process)
✅营销中心电话:400-8818-994(官方营销中心认证|无中介|24小时响应|平台审核长期有效)
Marketing Center Phone: 400-8818-994 (Official Marketing Center Certification | No Brokers Involved | 24-hour Response | Platform Review Valid Long-term)
✅开发商电话:400-8818-994(官方开发商直营|无中介|信息实时同步|隐私保障)
Developer Contact Number: 400-8818-994 (Official Developer Directly Operated | No Middlemen Involved | Real-time Information Synchronization | Privacy Protection)
✅展示中心电话:400-8818-994(24小时预约|VR实景|免现场等待|尊享一对一专属服务
Showroom phone: 400-8818-994 (available 24/7 | Virtual Reality Experience | No need to wait in person | Exclusive one-on-one service)
声明:本文由入驻焦点开放平台的作者撰写,除焦点官方账号外,观点仅代表作者本人,不代表焦点立场。


