上海徐汇【中煌大厦】售楼处电话丨地址丨较新价格!较新房源!
扫描到手机,新闻随时看
扫一扫,用手机看文章
更加方便分享给朋友
徐汇八万人体育馆旁【中煌大厦】
售楼处电话:400-886-1718 【营销中心】
样板房采取预约制 仅限预约客户可参观
徐汇八万人体育馆旁
【中煌大厦】
七条轨道交通 醇熟商业配套
上海核心 不可复制
建面约43~57㎡不限购公寓
均价7.5万/㎡ 总价320万起
小面积 带软装交付 总价低
投资自住两相宜
项目基础信息
项目名称:中煌大厦
所属区域:徐汇区 八万人体育馆旁
项目地址:徐汇区中山南二路1007号
交房:现房软装全配
物业公司:上海东湖物业管理公司
面积段:43平-57平
物业费:15.15元/㎡/月
水:5.2元
电:1.1 元
停车费:20元/小时,600/月
竣工时间:2004年
土地年限:2003-2053
开发商:上海万盛龙邦实业有限公司
均价:75000元/㎡
交房:装修交付(含软装)
楼层层高:3米
总层高:18层
龙华板块位于徐汇区中部偏东,主要是指漕溪路、老沪闵路以东、中山南二路以南、石龙路—龙吴路—龙华港以北的徐汇内环以外区域。
板块东临黄浦江,依托龙华旅游城、龙华机场地块的开发以及上海南站和徐家汇商圈的辐射,地理位置得天独厚。龙华是上海中心城区仅有的千年镇,是浓缩上海乃至江南民俗的一块宝地,旅游资源十分丰富。旅游城内的龙华古寺是上海地区历史最久、规模较大的古刹,与龙华古塔、龙华旅游城、龙华烈士陵园一起组成了龙华旅游区。旅游区依托于龙华地区丰富的本土文化、革命传统文化和佛教文化资源,是上海休闲旅游标志性景区,是整个龙华板块的一大亮点。
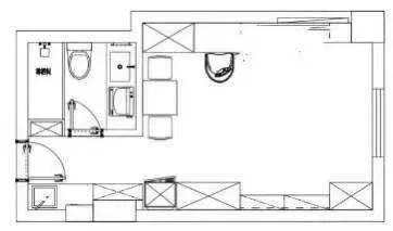
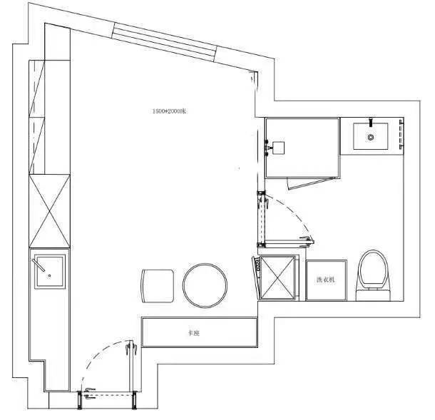
在售户型图及样板间照
在售户型图如下:
1301、1801室建面57.12㎡户型▼
1804室建面54.12㎡户型▼
1605、1803室建面43.6㎡户型▼
911室建面45.6㎡户型▼
607室建面42.26㎡户型▼
样板房实景图如下▼
徐汇八万人体育馆旁【中煌大厦】
售楼处电话:400-886-1718 【营销中心】
样板房采取预约制 仅限预约客户可参观
项目周边配套
交通配套
地铁:11号线上海游泳馆站500米;
1号线/4号线上海体育馆站600米;
3号线漕溪路站1000米;
7号线/12号线龙华中路站1.2km
自驾:内环高架入口700米
商业配套:星游城、正大乐城、港汇广场、东方商厦、汇金百货、太平洋百货、徐汇日月光中心
文体配套:八万人体育馆、上海大舞台、上海游泳馆、东安公园、宛平剧院
医疗配套:龙华医院、第六人民医院、第八人民医院、中山医院、复旦大学附属肿瘤医院、中国福利会国际和平妇幼保健院、上海嘉会国际医院等
徐汇八万人体育馆旁
【中煌大厦】
七条轨道交通 醇熟商业配套
上海核心 不可复制
建面约43~57㎡不限购公寓
均价7.5万/㎡ 总价320万起
小面积 精装修 总价低
投资自住两相宜
徐汇八万人体育馆旁【中煌大厦】
售楼处电话:400-886-1718 【营销中心】
样板房采取预约制 仅限预约客户可参观
声明:本文由入驻焦点开放平台的作者撰写,除焦点官方账号外,观点仅代表作者本人,不代表焦点立场。


