上海浦东滨江海博大厦较新楼盘详情 滨江海博大厦【售楼中心】
扫描到手机,新闻随时看
扫一扫,用手机看文章
更加方便分享给朋友
上海浦东内环- 海博大厦
售楼处电话:400-886-1718 【营销中心】
样板房采取预约制 仅限预约客户可参观
上海浦东内环--南码头有不限购LOFT公寓了
紧邻塘桥、世博、黄浦江,精装准现房
6号线临沂新村站、4号线塘桥
海博大厦
建面约80-132㎡(4.5米挑高)
均价5万/平,总价400-650万,首付75%

浦东内环
直面一线江景 区位优势明显
过去,提到浦东南码头板块,或许对于一些新上海人来说并不是很熟知。
但随着保利世博滨江的曝光,南码头板块开始逐渐进入购房者的视野中。
橘子海,日落线,在浦东浦西只能依靠轮渡往来的年代里,南码头作为一个重要的港口,见证了百年上海的无限发展。
板块位于内环边,直面一线黄浦江景,自驾20分钟就能深入到陆家嘴、张江、前滩等浦东腹地。
难得的是,南码头到浦西也十分方便。
通过南浦大桥,自驾25分钟即可到达人民广场和徐家汇,这样一个到浦东、浦西的核心区都十分方便的地段在上海还是比较少有的。
此外,南码头汇集了包括东方电视台、上海市知识产权局、上海市商务委员会等900余家企事业单位。加上上海地产集团、数字产业园等企业的存在,板块实力还是十分强劲的。

由于南码头常年的新房诉求得不到满足,且品质较好的次新房二手挂牌房源非常有限,使得板块内还积累了相当大一批的购房者,加上目前购房贷款额度缩紧,因此不少购房者选择了不需要购房资格,外地人也能买的公寓过渡。
爆料!目前浦东南码头有商业复式公寓房源出售!总价约400-650万左右!
总价400万起入住精装LOFT公寓
大开间 宽景阳台 错过不在
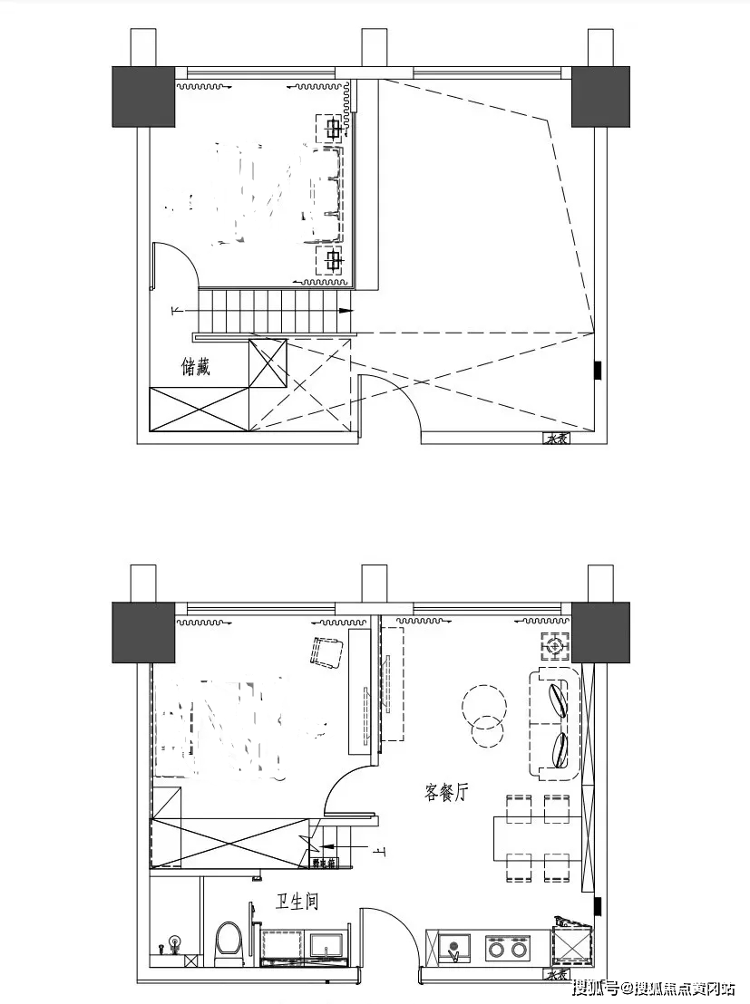
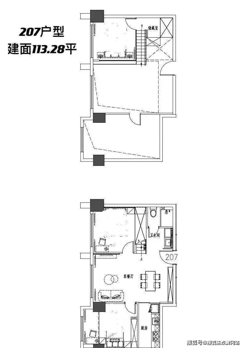
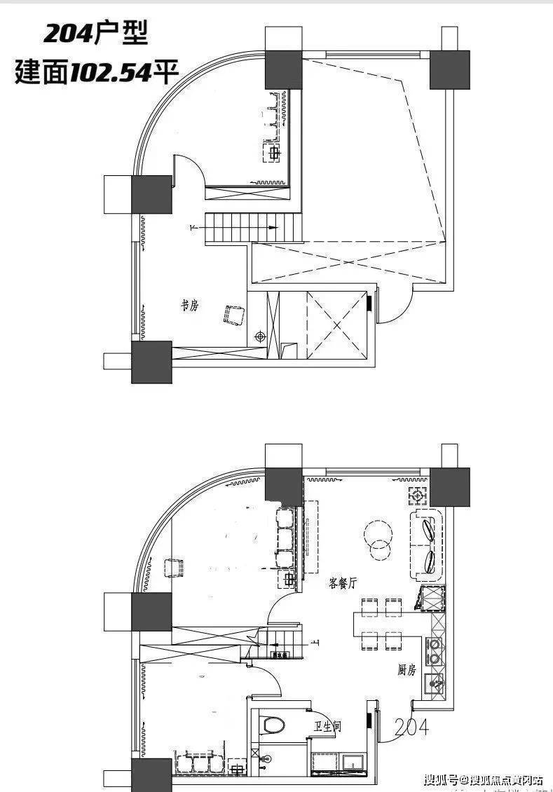
项目为50年产权商办项目,总高18层,3梯8户,目前在售户型为80-132㎡,现房装修交付。总价400-650万,首付7.5成。
项目4.5米的挑高大开间,营造敞亮大格局,创造魔法空间,赠送大面积阳台,高附加值,放大生活。
主卧套房设计,走式入衣帽间,彰显身份的飘窗设计,延伸设计空间。
以下是项目部分户型图👇


上海浦东内环- 海博大厦
售楼处电话:400-886-1718 【营销中心】
样板房采取预约制 仅限预约客户可参观
样板间部分实景图▼
配套完善 生活便利
投资、自住皆相宜
目前板块内市场租金:两房约8000元,三房约10000-12000元 ,周边房价在6-8万不等,而「海博大厦」总价仅400万起,就能买80-132㎡2-3房,精装准现房,还是很具有吸引力的。
这个价格,对需要兼顾浦东、浦西两侧工作地点的购房者还是比较友好的,以及认为工作不稳定、可能会随时调整的人也会选择在此置业,所以项目租赁需求还是很旺盛的。
项目周边配套成熟
交通:地铁6号线临沂新村站直线约1.5KM,4号线塘桥2KM。周边还有南码头渡口(数据来源高德地图,供参考)
商业:塘桥商城、百联临沂、云天地、江天商城、巴黎春天、世博等
休闲:金桥公园、碧云体育公园、金桥高尔夫俱乐部等
教育:上海浦东南码头小学、冰厂田世纪幼儿园、上海市新南中学等
医疗:浦南医院、上海交通大学医学院附属第九人民医院黄浦分院、市二医院等
休闲娱乐:南浦广场公园、邹市明体育文化中心、中华艺术宫、世博源等
上海浦东内环- 海博大厦
售楼处电话:400-886-1718 【营销中心】
样板房采取预约制 仅限预约客户可参观
声明:本文由入驻焦点开放平台的作者撰写,除焦点官方账号外,观点仅代表作者本人,不代表焦点立场。


