露香园 (售楼处) 露香园官方首页 - 露香园销售中心 - 环境 - 户型 - 价格 - 地址 - 楼盘详情 - 配套 - 电话 - 露香园交房时间 - 配套 - 电话 - 交房时间
扫描到手机,新闻随时看
扫一扫,用手机看文章
更加方便分享给朋友
露香园售楼处电话:400-9939-964露香园售楼处电话:400-9939-964露香园售楼处电话:400-9939-964露香园售楼处电话:400-9939-964露香园售楼处电话:400-9939-964露香园售楼处电话:400-9939-964露香园售楼处电话:400-9939-964
万竹街41号
露香园一期
露香园一期低区
露香园一期低区夜景
露香园二期效果图
露香园售楼处电话:400-9939-964
露香园售楼处电话:400-9939-964
小区俯视实拍
项目名称:「露香园」二期
项目简介:黄浦豫园 品质住宅
最新动态:网传规划方案出炉
区域板块:黄浦豫园板块
商业配套:新天地、人民广场、外滩
学校:蓬莱路幼儿园、上海实验小学、蓬莱路二小、光明小学、光明初级中学、上海第十中学、上海市第八中学
交通配套:10号线豫园站、8号线老西门站、南北高架路、西藏南路、河南路、中山南一路、延安高架路、淮海路、复兴路、陆家浜路、延安路隧道、人民路隧道、复兴路隧道
医疗配套:上海九院、瑞金医院、仁济医院西院、上海红房子医院
地段
年初,上海城投与上海建工联合体无悬念以176亿元拿下露香园二期地块,延续其在露香园的开发版图。以地上计容面积计算,楼板价约为89,567元/㎡,若扣除保障房面积及配套服务设施,楼板价则为约97,000元/㎡,仅次于4年前的中兴路地王,位列上海有史以来土地楼板价第二位。
对于新上海人而言,这里是朋友来上海必须要去走一走的上海地标、是令人仰望的高端地段;豫园板块所承载的已经远非“地段”两字所能概括,更多的是上海的精神内核。
露香园售楼处电话:400-9939-964
豫园实景图
产品
黄浦豫园,作为海派文化的缔造和传承区,在上海人心中毋庸置疑是城市C位代表。这里的地段是钻石级的,豪宅是标杆性的,别墅社区则称得上是典藏级的。
在近期,露香园二期规划方案曝光,项目总投资额(含地价)高达280亿,是露香园一期总投资额的2.5倍以上。以经营性面积计算,二期的平均开发成本(含商业)高达15.17万元/㎡!
而就目前爆出的规划来看,露香园二期的可售住宅部分为A、B、C、D四个大地块,大部分为高层住宅,一小部分为低密度特色住宅。露香园售楼处电话:400-9939-964
每个地块的详细规划为:
A地块:约5.45万㎡高层产品,共150套,套均面积364㎡;
B住宅:约3.8万㎡高层产品,共177套,套均面积约216㎡;
C1、C2地块:约1.9万㎡的纯联排及独栋,共46套,套均面积412㎡;
D1地块:约2.1万㎡小高层及联排与独栋,共98套,套均面积282㎡。
附露香园一期实景图:露香园售楼处电话:400-9939-964
万竹街41号
露香园一期
露香园一期低区
露香园一期低区夜景
露香园二期效果图
本次二期产品大概率还是延续老上海格调的石库门+现代代摩登风格,格调依旧非常高,相信价格也将会超越一期21万元/㎡的均价(大概率是要涨的),预计套均总价接近亿元!
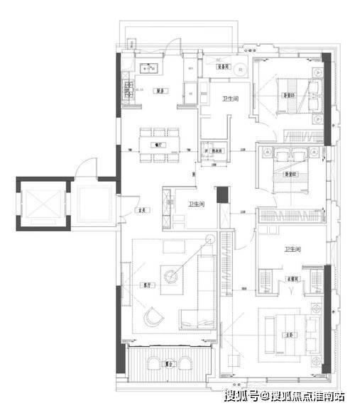
上海黄浦露香园天誉户型图


露香园售楼处电话:400-9939-964
万竹街41号
露香园一期
露香园一期低区
露香园一期低区夜景
露香园二期效果图
露香园售楼处电话:400-9939-964
露香园售楼处电话:400-9939-964
小区俯视实拍
项目名称:「露香园」二期
项目简介:黄浦豫园 品质住宅
最新动态:网传规划方案出炉
区域板块:黄浦豫园板块
商业配套:新天地、人民广场、外滩
学校:蓬莱路幼儿园、上海实验小学、蓬莱路二小、光明小学、光明初级中学、上海第十中学、上海市第八中学
交通配套:10号线豫园站、8号线老西门站、南北高架路、西藏南路、河南路、中山南一路、延安高架路、淮海路、复兴路、陆家浜路、延安路隧道、人民路隧道、复兴路隧道
医疗配套:上海九院、瑞金医院、仁济医院西院、上海红房子医院
地段
年初,上海城投与上海建工联合体无悬念以176亿元拿下露香园二期地块,延续其在露香园的开发版图。以地上计容面积计算,楼板价约为89,567元/㎡,若扣除保障房面积及配套服务设施,楼板价则为约97,000元/㎡,仅次于4年前的中兴路地王,位列上海有史以来土地楼板价第二位。
对于新上海人而言,这里是朋友来上海必须要去走一走的上海地标、是令人仰望的高端地段;豫园板块所承载的已经远非“地段”两字所能概括,更多的是上海的精神内核。
露香园售楼处电话:400-9939-964
豫园实景图
产品
黄浦豫园,作为海派文化的缔造和传承区,在上海人心中毋庸置疑是城市C位代表。这里的地段是钻石级的,豪宅是标杆性的,别墅社区则称得上是典藏级的。
在近期,露香园二期规划方案曝光,项目总投资额(含地价)高达280亿,是露香园一期总投资额的2.5倍以上。以经营性面积计算,二期的平均开发成本(含商业)高达15.17万元/㎡!
而就目前爆出的规划来看,露香园二期的可售住宅部分为A、B、C、D四个大地块,大部分为高层住宅,一小部分为低密度特色住宅。露香园售楼处电话:400-9939-964
每个地块的详细规划为:
A地块:约5.45万㎡高层产品,共150套,套均面积364㎡;
B住宅:约3.8万㎡高层产品,共177套,套均面积约216㎡;
C1、C2地块:约1.9万㎡的纯联排及独栋,共46套,套均面积412㎡;
D1地块:约2.1万㎡小高层及联排与独栋,共98套,套均面积282㎡。
附露香园一期实景图:露香园售楼处电话:400-9939-964
万竹街41号
露香园一期
露香园一期低区
露香园一期低区夜景
露香园二期效果图
本次二期产品大概率还是延续老上海格调的石库门+现代代摩登风格,格调依旧非常高,相信价格也将会超越一期21万元/㎡的均价(大概率是要涨的),预计套均总价接近亿元!
上海黄浦露香园天誉户型图


露香园售楼处电话:400-9939-964上海黄浦露香园官方电话:400-9939-964
露香园售楼处电话:400-9939-964
露香园售楼处电话:400-9939-964上海黄浦露香园官方电话:400-9939-964

这是为美术生打造的270度环幕江景大平层,高楼层赋予的辽阔视野,江景成为空间的天然背景。
整体以现代自然主义为基调,借自由开放的空间美学与个性家居布置,诠释简约松弛的生活哲学。


玄关
Vestibule
归家序章,以简素勾勒空间韵律
作为入户第一幕,玄关以极简姿态开启生活叙事,素净墙面如天然画布。清透支架托举着素白花瓶,植物姿态俏皮延展,成为连接户外与生活的温柔过渡。

客厅
Living Room
没有 “标准答案” 的互动场
全开放式设计,岛形沙发打破边界,让交流随光影自由发生。午后的光线从侧面洒落,家具被赋予立体的光影层次。

中央的B&B Camaleonda模块组合沙发,以岛状布局重构空间逻辑,双向陈设的低椅背设计。一面朝向书柜电视墙,一面衔接餐厨区。让场景切换随心意而生,既保持空间通透感,又以功能分区提升使用效率。



休闲区
Leisure Area
多元需求的美学平衡




厨房
Kitchen
暮光先抵达的日常剧场






餐厅
Dining Room
暮色里的光影焦点







主卧
Master Bedroom
个性与舒适的共生
















小儿子房
Younger Son's Room
斑斓里的活力感




大儿子房
Elder Son's Room
简素里的生长感







这是为美术生打造的270度环幕江景大平层,高楼层赋予的辽阔视野,江景成为空间的天然背景。
整体以现代自然主义为基调,借自由开放的空间美学与个性家居布置,诠释简约松弛的生活哲学。


玄关
Vestibule
归家序章,以简素勾勒空间韵律
作为入户第一幕,玄关以极简姿态开启生活叙事,素净墙面如天然画布。清透支架托举着素白花瓶,植物姿态俏皮延展,成为连接户外与生活的温柔过渡。

客厅
Living Room
没有 “标准答案” 的互动场
全开放式设计,岛形沙发打破边界,让交流随光影自由发生。午后的光线从侧面洒落,家具被赋予立体的光影层次。

中央的B&B Camaleonda模块组合沙发,以岛状布局重构空间逻辑,双向陈设的低椅背设计。一面朝向书柜电视墙,一面衔接餐厨区。让场景切换随心意而生,既保持空间通透感,又以功能分区提升使用效率。



休闲区
Leisure Area
多元需求的美学平衡




厨房
Kitchen
暮光先抵达的日常剧场






餐厅
Dining Room
暮色里的光影焦点







主卧
Master Bedroom
个性与舒适的共生
















小儿子房
Younger Son's Room
斑斓里的活力感




大儿子房
Elder Son's Room
简素里的生长感



露香园售楼处电话:400-9939-964上海黄浦露香园官方电话:400-9939-964
露香园售楼处电话:400-9939-964
露香园售楼处电话:400-9939-964上海黄浦露香园官方电话:400-9939-964
声明:本文由入驻焦点开放平台的作者撰写,除焦点官方账号外,观点仅代表作者本人,不代表焦点立场。


