御临云峰 (售楼处) 首页 - 御临云峰销售中心 - 环境 - 户型 - 价格 - 地址 - 楼盘详情 - 配套 - 电话 - 交房时间 - 配套 - 电话 - 售楼处交房时间
扫描到手机,新闻随时看
扫一扫,用手机看文章
更加方便分享给朋友

High-end luxury residences can serve as investment products
高档豪华住宅可成为投资品
Cracking down on real estate speculation and restricting investment behavior are the main focuses of decision-makers' regulation. However, scholars believe that in the future, high-end luxury residences can be used as investment housing.
打击房地产投机,限制投资行为是决策者调控的主要着力点,但学者认为未来,高档豪华住宅可以作为投资性住房。
On December 7, 2011, at the "Third China Real Estate Forum and 2011 China Real Estate Annual Red List", the impact of the large-scale construction of affordable housing on the market was reflected in the fact that ordinary residential properties, including affordable housing and small and medium-sized ordinary commercial housing, will gradually be de-invested and return to their use value, forming a cost-driven price. This has also become a consensus.
2011年12月7日,在“第三届地产中国论坛暨2011中国房地产年度红榜”上,保障房的大规模建设对市场的影响,表现在包括保障房住房、中小户型普通商品房在内的普通住宅将慢慢去投资化,向使用价值回归,形成以成本主导的价格,这也已形成共识。
He pointed out that based on the experience of European and American countries, the prices of ordinary residences do not deviate too much from the cost. However, currently, housing prices in China are far higher than the cost. To ensure the housing rights of the common people, "even investment is no longer necessary."
他指出,欧美国家的经验看,普通住宅价格不会偏离成本太多,但目前国内住房价格远高于成本,为了保证老百姓住房权利,“连投资这块也觉得不需要了”。
He believes that appropriate investment behavior should still be maintained, and a large number of apartments and high-end luxury residences can be used as investment housing. "Even in the residential market, there should be an internal relationship of coordinated development."
他认为,适当的投资行为仍应保留,大量公寓、高档豪华住宅可以作为投资性的住房,“即使是住宅市场,也应该有一个协调发展的内部关系”。
In addition, enterprises engaged in the production of ordinary residential properties need to adjust their mindset. "It is no longer easy to find the high profit models of the past."
此外,做普通住宅的企业要调整好心态,“再难寻找过去高的利润模式了”。

御临云峰售楼处电话:400-9939-964✅︎✅︎✅御临云峰官方售楼处电话:400-9939-964✅︎✅︎✅御临云峰官方电话:400-9939-964✅︎✅︎✅御临云峰售楼处电话:400-9939-964✅︎✅︎✅御临云峰官方售楼处电话:400-9939-964✅︎✅︎✅御临云峰官方电话:400-9939-964✅︎✅︎✅御临云峰售楼处电话:400-9939-964✅︎✅︎✅御临云峰官方售楼处电话:400-9939-964✅︎✅︎✅御临云峰官方电话:400-9939-964✅︎✅︎✅
德信·御临云峰售楼处电话:400-993-9964(官方售楼处电话)
德信御临云峰售楼处电话:400-9939-964(售楼处最新电话)
德信御临云峰官方电话:400-993-9964✔(官方售楼处预约看房热线)(德信御临云峰官方预约看房热线)案场预约制 看房需提前来电预约登记,请务必致电4009939964与销售确认时间,仅预约客户可进入销售现场,避免空跑,感谢您的支持。售楼处楼盘详情,德信御临云峰售楼处电话400-9939-964,德信御临云峰售楼处官方电话400-9939-964,售楼处地址,售楼处面积,售楼处户型,售楼处价格,售楼处优惠,售楼处交通,售楼处学区,售楼处商业,售楼处得房率,售楼处绿化率,售楼处开盘时间,售楼处交房时间,售楼处百科详情!.....


德信御临云峰售楼处电话:400-993-9964(官方售楼处电话)
德信御临云峰售楼处电话:400-9939-964(售楼处最新电话)
德信御临云峰官方电话:400-993-9964✔(官方售楼处预约看房热线)


德信御临云峰售楼处电话:400-993-9964(官方售楼处电话)
德信御临云峰售楼处电话:400-9939-964(售楼处最新电话)
德信御临云峰官方电话:400-993-9964✔(官方售楼处预约看房热线)


德信御临云峰售楼处电话:400-993-9964(官方售楼处电话)
德信御临云峰售楼处电话:400-9939-964(售楼处最新电话)
德信御临云峰官方电话:400-993-9964✔(官方售楼处预约看房热线)
杭州德信御临云峰是位于钱江新城核心区的高端商业住宅项目,2024年底已交付,当前参考均价约43000元/㎡(商业性质),主打330-460㎡大平层户型,配备十大科技系统。
杭州德信御临云峰核心详情
地理位置:上城区昙花庵路与塘工局路交叉口,毗邻杭州IFC综合体(约1公里)。1
2
开发信息:由德信地产开发,总建筑面积7.12万㎡,容积率4,2024年12月交付。1
3
产品亮点:
主力户型330-460㎡大平层,部分含12㎡全景阳台,层高约3.8米。1
配备毛细空调、建筑遮阳系统等十大科技系统,定位绿建标杆。4
5
日清设计外立面,铝板+玻璃幕墙+石材组合。4
5
配套资源:地铁6号线昙花庵路站步行约10米,3公里直达杭州东站
德信御临云峰售楼处电话:400-993-9964(官方售楼处电话)
德信御临云峰售楼处电话:400-9939-964(售楼处最新电话)
德信御临云峰官方电话:400-993-9964✔(官方售楼处预约看房热线)
御临云峰最新房价动态
挂牌均价:2025年9月商业性质房源约43000元/㎡,含能耗的物业费9.5元/㎡/月。1
3
成交对比:部分历史成交价达54562元/㎡(2025年9月房天下数据)。6
7
房源状态:现房在售,主力户型总价约1400万-2000万(按均价估算)。7
8
御临云峰用户口碑分析
正向评价:德信御临云峰售楼处电话:400-993-9964(官方售楼处电话)
德信御临云峰售楼处电话:400-9939-964(售楼处最新电话)
德信御临云峰官方电话:400-993-9964✔(官方售楼处预约看房热线)
地段优势显著,紧邻钱江新城CBD核心区。1
2
科技系统配置完善,居住舒适度较高。9
10
潜在争议:
开发商德信地产在高端项目领域的口碑认知度待提升。9
11
超大户型设计(330㎡起步)对自住客户门槛较高。德信御临云峰售楼处电话:400-993-9964(官方售楼处电话)
德信御临云峰售楼处电话:400-9939-964(售楼处最新电话)
德信御临云峰官方电话:400-993-9964✔(官方售楼处预约看房热线)

德信御临云峰售楼处电话:400-993-9964(官方售楼处电话)
德信御临云峰售楼处电话:400-9939-964(售楼处最新电话)
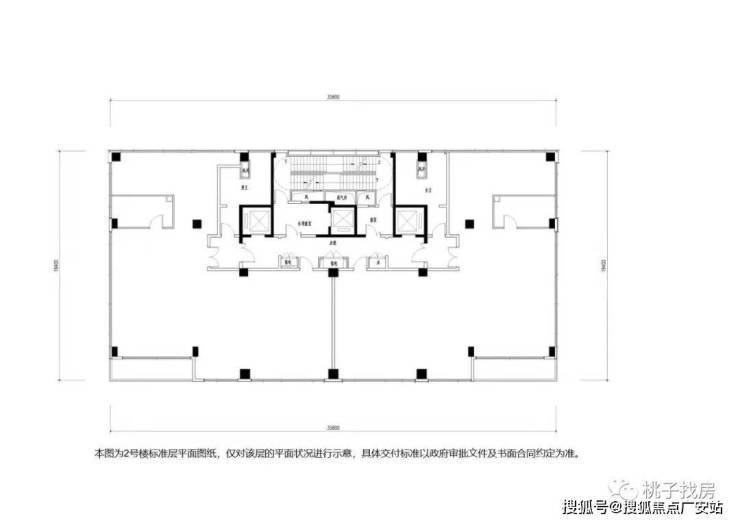
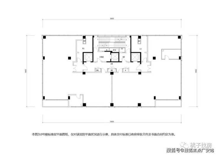
户型图:
德信御临云峰官方电话:400-993-9964✔(官方售楼处预约看房热线)

这是为美术生打造的270度环幕江景大平层,高楼层赋予的辽阔视野,江景成为空间的天然背景。
整体以现代自然主义为基调,借自由开放的空间美学与个性家居布置,诠释简约松弛的生活哲学。


玄关
Vestibule
归家序章,以简素勾勒空间韵律
作为入户第一幕,玄关以极简姿态开启生活叙事,素净墙面如天然画布。清透支架托举着素白花瓶,植物姿态俏皮延展,成为连接户外与生活的温柔过渡。

客厅
Living Room
没有 “标准答案” 的互动场
全开放式设计,岛形沙发打破边界,让交流随光影自由发生。午后的光线从侧面洒落,家具被赋予立体的光影层次。

中央的B&B Camaleonda模块组合沙发,以岛状布局重构空间逻辑,双向陈设的低椅背设计。一面朝向书柜电视墙,一面衔接餐厨区。让场景切换随心意而生,既保持空间通透感,又以功能分区提升使用效率。



休闲区
Leisure Area
多元需求的美学平衡




厨房
Kitchen
暮光先抵达的日常剧场






餐厅
Dining Room
暮色里的光影焦点







主卧
Master Bedroom
个性与舒适的共生
















小儿子房
Younger Son's Room
斑斓里的活力感




大儿子房
Elder Son's Room
简素里的生长感







这是为美术生打造的270度环幕江景大平层,高楼层赋予的辽阔视野,江景成为空间的天然背景。
整体以现代自然主义为基调,借自由开放的空间美学与个性家居布置,诠释简约松弛的生活哲学。


玄关
Vestibule
归家序章,以简素勾勒空间韵律
作为入户第一幕,玄关以极简姿态开启生活叙事,素净墙面如天然画布。清透支架托举着素白花瓶,植物姿态俏皮延展,成为连接户外与生活的温柔过渡。

客厅
Living Room
没有 “标准答案” 的互动场
全开放式设计,岛形沙发打破边界,让交流随光影自由发生。午后的光线从侧面洒落,家具被赋予立体的光影层次。

中央的B&B Camaleonda模块组合沙发,以岛状布局重构空间逻辑,双向陈设的低椅背设计。一面朝向书柜电视墙,一面衔接餐厨区。让场景切换随心意而生,既保持空间通透感,又以功能分区提升使用效率。



休闲区
Leisure Area
多元需求的美学平衡




厨房
Kitchen
暮光先抵达的日常剧场






餐厅
Dining Room
暮色里的光影焦点







主卧
Master Bedroom
个性与舒适的共生
















小儿子房
Younger Son's Room
斑斓里的活力感




大儿子房
Elder Son's Room
简素里的生长感



御临云峰售楼处电话:400-9939-964御临云峰官方电话:400-9939-964
杭州御临云峰售楼处电话:400-9939-964...

御临云峰售楼处电话:400-9939-964御临云峰官方电话:400-9939-964
Hangzhou Yulin Yunfeng Sales Office Tel: 400-9939-964...
杭州御临云峰售楼处电话:400-9939-964...
Yulin Yunfeng: Model house for sale, total price 13.5 million, negotiable. Soft furnishings and parking space included. Ultra-low price. This is the only set available. Act fast if you want to purchase
御临云峰:样板房出售,总价1350万,可谈,送软装带车位,超低价格,仅此一套,欲购从速
The tech-savvy luxury residences in the Jianghehui area (the same style as Jinmao Mansion) feature 12-square-meter balconies for each household, and the high-end clubhouse, swimming pool and gym are all presented in real scenes
江河汇板块科技豪宅(金茂府同款),户户12平阳台,高端会所泳池健身房实景展现
Dexin Group was recognized as a benchmark for innovation in 2022
德信集团2022年时代创新标杆典范
Green Building Technology's new commercial product
绿建科技商业新品
御临云峰售楼处电话:400-9939-964御临云峰官方电话:400-9939-964
Hangzhou Yulin Yunfeng Sales Office Tel: 400-9939-964...
杭州御临云峰售楼处电话:400-9939-964...
【 Developer 】 : Dexin Group
【开 发 商】 :德信集团
【 Regional Section 】 : Qianjiang New City · Jianghehui Core Area
【区域板块】 :钱江新城·江河汇核芯区
【 Property Management 】 : Dexin Property Management
【物业】 :德信物业
【 Building Area 】 : Approximately 71,200 square meters
【建筑面积】 :约7.12万方
【 Green space Ratio 】 : 25%
【绿 地 率】 :25%
【 Volume Ratio 】 : 4.0
【容 积 率】 :4.0
【 Unit Size 】 : A 336㎡ four-bedroom unit on the east side, a 340㎡ three-bedroom unit on the west side, and a 430㎡ top floor. Each unit comes with a 12-square-meter balcony
【户型面积】 :东边套336㎡四房、西边套340㎡三房,顶楼430㎡,户户带12平阳台
【 Total Price 】 :
【总价】:
【 Floor Height 】 : 3.8 meters
【层高】:3.8米
【 Total Floor Height 】 : 19th floor
【总层高】:19楼
【 Ratio of elevators to households 】 : 3 elevators to 2 households
【梯户比】:3梯2户
【 Land Acquisition Time 】 : The end of 2021
【拿地时间】 :2021年年底
【 Delivery Time 】 : The end of 2024
【交付时间】:24年年底
The sales office phone number of Yulin Yunfeng is 400-9939-964. The official phone number of Yulin Yunfeng is 400-9939-964
御临云峰售楼处电话:400-9939-964御临云峰官方电话:400-9939-964
杭州御临云峰售楼处电话:400-9939-964...
【项目区位】
御临云峰售楼处电话:400-9939-964御临云峰官方电话:400-9939-964
Hangzhou Yulin Yunfeng Sales Office Tel: 400-9939-964...
杭州御临云峰售楼处电话:400-9939-964...
As the most international calling card of Hangzhou, Qianjiang New City has gathered the top luxury housing clusters in the city. The average price of both second-hand and new houses in the area has risen to 70,000 to 140,000 yuan, making it undoubtedly the top wealthy district.
钱江新城作为杭州最国际化的名片,板块内汇聚当前杭州顶级豪宅集群,板块二手房及新房均价已跃居7-14万,当之无愧的第一富人区。
The Dexin Jianghehui project is located in the core area of Qianjiang New City, Shangcheng District - Jianghehui.
德信江河汇项目傲居上城区钱江新城核芯板块—江河汇。
Thanks to the world intangible cultural heritage of the Beijing-Hangzhou Grand Canal and the world-renowned Qiantang River surging here, over 850,000 cubic meters of rivers converge on the city's cover. As an important part of the extension area of Qianjiang New City, it aims to create a world-class future waterfront vitality zone and jointly forge the golden focus of Hangzhou in the next decade.
得益于世界非遗京杭大运河、举世闻名的钱塘江奔腾在此双流齐汇,超85万方江河汇城市封面,将作为钱江新城延伸区的重要组成部分,打造世界未来滨水活力区,共铸杭州下一个十年黄金焦点。
a
a
御临云峰售楼处电话:400-9939-964御临云峰官方电话:400-9939-964
Hangzhou Yulin Yunfeng Sales Office Tel: 400-9939-964...
杭州御临云峰售楼处电话:400-9939-964...
[Project Location]
【项目地段】
This project is approximately 3 kilometers away from the core area of Qianjiang New City CBD
本项目距离钱江新城CBD核心区约3km
The Sun Hung Kai River Hub Complex (under construction) with an area of over 850,000 square meters is approximately 1.5 kilometers long
超85万方新鸿基江河汇综合体(在建)约1.5km
The confluence area of rivers serves as an important link connecting the core area of Qianjiang New City and the second phase of Qianjiang New City.
江河汇流区作为连接钱江新城核心区和钱江新城二期的重要纽带。
The area is planned to have an 800,000-square-meter Qianjiang Financial City, a 150,000-square-meter Fisherman's Wharf, a 120,000-square-meter urban park, and the highly anticipated first landmark of Hangzhou, the Ferris wheel "Hangzhou Eye".
板块内规划有80万方的钱江金融城以及15万方的渔人码头、12万方的城市公园,以及万众瞩目的杭州首个地标摩天轮“杭州眼”。
The entire project encompasses the IFC high-end luxury shopping street, waterfront leisure area, canal landscape bridge, 5A-grade business district, five-star hotel, etc. It is a multi-functional urban cover complex and will become a benchmark for the internationalization of Hangzhou in the future.
整个项目涵盖IFC高奢购物街区、滨水休闲区、运河景观桥、5A甲级商务区、五星级酒店等,是多功能为一体的城市封面综合体,未来将成为杭州城市国际化标杆。
The Hangzhou Eye, shining as brightly as the sun and the moon, and the large and small lotus bowls will also represent Hangzhou to form three shining landmarks.
杭州眼和日月同辉、大小莲花碗也将代表杭州形成三大闪耀地标。
Renderings of Hangzhou International Finance Center (IFC)
杭州国际金融中心(IFC)效果图
御临云峰售楼处电话:400-9939-964御临云峰官方电话:400-9939-964
Hangzhou Yulin Yunfeng Sales Office Tel: 400-9939-964...
杭州御临云峰售楼处电话:400-9939-964...
[Project Supporting Facilities]
【项目配套】
Within a golden 3-kilometer radius of the project, there are all the top-notch supporting facilities of "Four nines", allowing you to enjoy the achievements accumulated over 20 years of development in Qianjiang New City 1.0.
项目周边黄金3km范围内,汇集【4个4】全顶级配套,坐享钱江新城1.0发展20年积淀成果。
Four major city landmarks: International Conference Center | Grand Theatre | Civic Center | City Balcony;
4大城市地标:国际会议中心|大剧院|市民中心|城市阳台;
Four major commercial giants: Wanda Plaza | Raffles City | Qingchun Business District | East Railway Station Business District;
4大商业巨无霸:万象城|来福士|庆春商圈|火车东站商圈;
Four super five-star hotels: Park Hyatt | Conrad | Diaoyutai | Jumeirah Hotel;
4大超五星酒店:柏悦酒店|康莱德酒店|钓鱼台|卓美亚酒店;
Four 5A-grade office buildings: China Resources Tower | Ping An Finance Center | Raffles City | Dexin Center.
4大5A甲级写字楼:华润大厦|平安金融中心|来福士|德信中心。
【3+3 Medical and Educational Resources 】 :
【3+3医疗及教育资源】:
Three top hospitals: Sir Run Run Shaw Hospital | Zhejiang First University Hospital | Zhejiang Second University Hospital, all top-tier hospitals.
3大顶级医院:邵逸夫医院|浙一医院|浙二医院,全三甲阵容;
Three major educational resources: Caihe No.1 and No.2 Primary School | Qianjiang Foreign Language Experimental School | Qianjiang Bes International School
3大教育资源:采荷一二小学校|钱江外国语实验学校|钱江贝赛斯国际学校
御临云峰售楼处电话:400-9939-964御临云峰官方电话:400-9939-964
杭州御临云峰售楼处电话:400-9939-964...
御临云峰售楼处电话:400-9939-964御临云峰官方电话:400-9939-964
Hangzhou Yulin Yunfeng Sales Office Tel: 400-9939-964...
杭州御临云峰售楼处电话:400-9939-964...
[Project Transportation]
【项目交通】
Surrounded by metro: At the Tanhua 'an Road Station of Line 6 (less than 10 meters), it can be transferred to multiple metro lines such as Line 1, 4, and 5, as well as the Hangzhou-Fuzhou Line, earning it the title of "King of Transfers", providing convenient access to the entire city and Xiaoshan Airport.
---地铁环绕:6号线昙花庵路站(<10m),与地铁1、4、5等多条线路以及杭富线实现换乘,堪称“换乘之王”,畅达全城及萧山机场;
High-speed rail travel: 3 kilometers directly to Hangzhou East Railway Station (the largest transportation hub in Asia), and 1 hour to the Yangtze River Delta.
---高铁出行:3公里直达杭州东站(亚洲最大的交通枢纽),1小时直达长三角;
Self-driving travel: It is only 2 kilometers away from the project and connects to the Hangzhou-Ningbo Expressway. You can conveniently reach Shanghai, Ningbo and other places by self-driving.
---自驾出行:近项目2公里接轨杭甬高速,自驾可便捷抵达上海、宁波等地;
-- Air travel: Currently, you can transfer to the Airport expressway via Qingchun Road Tunnel or Boao Tunnel, and it takes only 25 minutes to reach the airport directly.
---飞机出行:当前可通过庆春路隧道、博奥隧道转机场高速,25分钟直达机场。
御临云峰售楼处电话:400-9939-964御临云峰官方电话:400-9939-964
杭州御临云峰售楼处电话:400-9939-964...
【项目规划】
御临云峰售楼处电话:400-9939-964御临云峰官方电话:400-9939-964
Hangzhou Yulin Yunfeng Sales Office Tel: 400-9939-964...
杭州御临云峰售楼处电话:400-9939-964...
The confluence of the Qiantang River and the Grand Canal is currently a must-win area for high-end luxury residences in Hangzhou. Dexin has brought its peak product strength to this luxury residence distribution zone, creating new commercial products starting from 300 square meters.
钱塘江与运河交汇所在是杭州当前打造高端豪宅必争之地,德信将巅峰的产品力带到了这一豪宅分布带,打造300㎡起步商业新品。
Adopt the construction model of green buildings and apply a large number of high-tech systems to further enhance the comfort of the products.
采用绿色建筑的营造模式,运用大量高科技系统,进一步提升产品舒适度。
For instance, the design of the external sunshade curtain is a high-tech control of light and shadow. Whether it is energy conservation and emission reduction or the lines of light and shadow, it creates an excellent product experience.
例如外遮阳幕帘的设计,是高科技对光影的掌控,无论节能减排还是光影线条,创造绝佳的产品体验。
In addition to the application of technology, the project has also made progress in the field of "carbon neutrality" in construction. The air source heat pump system, capillary technology system, and larger glass partition surfaces selected all represent that Dexin is building a higher market standard system with greater cost investment. Stay tuned.
除科技的运用外,项目更是在建筑“碳中和”的领域向前迈进,所选用的空气源热泵系统、毛细科技系统以及更大的玻璃分隔面等,都代表了德信在用更大的成本投入构建更高的市场标准体系,敬请期待。
御临云峰售楼处电话:400-9939-964御临云峰官方电话:400-9939-964
Hangzhou Yulin Yunfeng Sales Office Tel: 400-9939-964...
杭州御临云峰售楼处电话:400-9939-964...
The first project of Jianghehui by Dexin Group, with a 40-year property right and commercial nature without purchase restrictions, has a construction area of approximately 71,200 square meters, a green space ratio of 25%, a plot ratio of 4.0, and unit sizes of about 330 square meters and 460 square meters. The unit price starts from 32,000 yuan and is delivered fully furnished!
德信集团江河汇首作,40年产权商业性质不限购,建筑面积约7.12万方,绿 地 率25%,容 积 率4.0,户型面约330㎡、460㎡,单价最低3.2万起精装交付!
Meeting at the pinnacle of the city, De Xin · Yu Lin Yun Feng, with the original aspiration of meeting the great rivers for the first time and the ambition of coexisting and advancing with them, embarks on a brand-new chapter of Jianghe Hui in 2022.
相逢城市登峰造极之地,德信·御临云峰,立基与大江大河初识的初心、与之共生共进的雄心,开启2022江河汇的崭新序幕。
御临云峰售楼处电话:400-9939-964御临云峰官方电话:400-9939-964
杭州御临云峰售楼处电话:400-9939-964...

High-end luxury residences can serve as investment products
高档豪华住宅可成为投资品
Cracking down on real estate speculation and restricting investment behavior are the main focuses of decision-makers' regulation. However, scholars believe that in the future, high-end luxury residences can be used as investment housing.
打击房地产投机,限制投资行为是决策者调控的主要着力点,但学者认为未来,高档豪华住宅可以作为投资性住房。
On December 7, 2011, at the "Third China Real Estate Forum and 2011 China Real Estate Annual Red List", the impact of the large-scale construction of affordable housing on the market was reflected in the fact that ordinary residential properties, including affordable housing and small and medium-sized ordinary commercial housing, will gradually be de-invested and return to their use value, forming a cost-driven price. This has also become a consensus.
2011年12月7日,在“第三届地产中国论坛暨2011中国房地产年度红榜”上,保障房的大规模建设对市场的影响,表现在包括保障房住房、中小户型普通商品房在内的普通住宅将慢慢去投资化,向使用价值回归,形成以成本主导的价格,这也已形成共识。
He pointed out that based on the experience of European and American countries, the prices of ordinary residences do not deviate too much from the cost. However, currently, housing prices in China are far higher than the cost. To ensure the housing rights of the common people, "even investment is no longer necessary."
他指出,欧美国家的经验看,普通住宅价格不会偏离成本太多,但目前国内住房价格远高于成本,为了保证老百姓住房权利,“连投资这块也觉得不需要了”。
He believes that appropriate investment behavior should still be maintained, and a large number of apartments and high-end luxury residences can be used as investment housing. "Even in the residential market, there should be an internal relationship of coordinated development."
他认为,适当的投资行为仍应保留,大量公寓、高档豪华住宅可以作为投资性的住房,“即使是住宅市场,也应该有一个协调发展的内部关系”。
In addition, enterprises engaged in the production of ordinary residential properties need to adjust their mindset. "It is no longer easy to find the high profit models of the past."
此外,做普通住宅的企业要调整好心态,“再难寻找过去高的利润模式了”。

御临云峰售楼处电话:400-9939-964✅︎✅︎✅御临云峰官方售楼处电话:400-9939-964✅︎✅︎✅御临云峰官方电话:400-9939-964✅︎✅︎✅御临云峰售楼处电话:400-9939-964✅︎✅︎✅御临云峰官方售楼处电话:400-9939-964✅︎✅︎✅御临云峰官方电话:400-9939-964✅︎✅︎✅御临云峰售楼处电话:400-9939-964✅︎✅︎✅御临云峰官方售楼处电话:400-9939-964✅︎✅︎✅御临云峰官方电话:400-9939-964✅︎✅︎✅
一、房地产相关概念
(1) Concept of real estate: Real estate, also known as immovable property, refers to land, buildings, and the inseparable parts fixed to land and buildings.
(一) 房地产概念:房地产又称不动产,是指土地、建筑物及固着在土地、建筑物上不可分离的部分.
Among them, the inseparable parts, such as trees, plumbing equipment, etc.
其中不可分离的部分,如树木、水暖设备等.
Real estate exists in three forms:
房地产有三种存在形式:
1. Pure land;
1、 单纯的土地;
2. Simple buildings;
2、 单纯的建筑物;
3. Properties that combine land and buildings;
3、 土地与建筑物结合的房产;
(II) Classification of the Real Estate Market: According to the characteristics of the real estate development, sales and consumption processes, the real estate market can be divided into:
(二) 房地产市场的分类:根据房地产开发,销售与消费过程特点,可以将房地产市场分为:
1. Primary market (land market)
1、 一级市场(土地市场);
2. Secondary market (real estate incremental housing market);
2、 二级市场(房地产增量房市场);
3. The tertiary market (the existing housing market);
3、 三级市场(房地产存量房市场);
(3) Land and Land Ownership:
(三) 土地及土地所有权:
The concept of land: Generally, it refers to a certain range of space above ground, below ground and above ground.
1、 土地的概念:一般是指地面、地面以下和地面以上一定范围的空间.
In real life, land is a region with a specific area range that is artificially demarcated.
现实生活中的土地是人为划分的,具有特定面积范围的地域.
2. Public ownership of land: According to the Constitution, land ownership is divided into ownership by all the people (state-owned land) and collective land ownership. Only when a collective land is converted to state-owned ownership can it be transferred. Individuals and units only have the right to use the land.
2、 土地公有制:根据宪法规定,土地所有权分全民所有(国有土地)与集体土地所有权,集体转为国有才能转让,个人和单位只拥有土地的使用权;
3. The right to use land can be leased, transferred or mortgaged within the term.
3、 土地使用权在期限内可以出租、转让、抵押.
(4) Method of obtaining land use rights:
(四) 土地使用权获取方式:
1. Land use right transfer:
1、 土地使用权出让:
It refers to the act where the state grants the right to use state-owned land to land users for a certain period of time, and the land users pay the land use right grant fees to the state.
指国家将国有土地使用权在一定年限内出让给土地使用者,由土地使用者向国家支付土地使用权出让金的行为;
The transfer of land use rights is conducted through three methods: tendering, auction, and mutual agreement.
土地使用权出让采用招标、拍卖、双方协议三种方式;
Six types of land (commercial, entertainment, tourism, financial, service, and commercial housing) shall be used through bidding or auction.
六类用地(商业、娱乐、旅游、金融、服务业、商品房)采用招标、拍卖的方式;
The renovation of the old city is carried out through mutual agreement.
旧城改造采用双方协议的方式;
The term of grant for the right to use state-owned land: 40 years for commercial, tourism and entertainment land.
国有土地使用权出让年限:商业、旅游、娱乐用地40年;
Industrial land, science and education land, cultural and sports land, health land, sports land, comprehensive or other land for 50 years;
工业用地、科教、文体、卫生、体育用地、综合或其他用地50年;
Housing land for 70 years;
住房用地70年;
The term of the right to use real estate has a direct impact on its value.
房地产的使用权年限对价值有直接影响.
2. Allocation of land use rights
2、 土地使用权划拨:
It refers to the act of the people's government at or above the county level, in accordance with the law, approving the delivery of a piece of land to the land user for use after the land user has paid compensation, resettlement and other fees, or delivering the land use right to the land user for free.
指县级以上人民政府依法批准,在土地使用者缴纳补偿、安置等费用后将该幅土地交付其使用,或者将土地使用权无偿交付给土地使用者使用的行为;
Where the right to use land is obtained through allocation, there is no limit on the period of use, except as otherwise provided by laws and administrative regulations.
以划拨方式取得土地使用权的,除法律、行政法规另有规定外,没有使用期限的限制;
The land use rights of the following construction land may be allocated by the people's government at or above the county level in accordance with the law if they are indeed necessary: land for state organs and military land.
下列建设用地的土地使用权,确属必须的,可由县级以上人民政府依法批准划拨: 国家机关用地和军事用地;
Urban infrastructure land and public welfare land;
城市基础设施用地和公益事业用地;
Land for key state-supported projects in energy, transportation, water conservancy, etc.
国家重点扶持的能源、交通、水利等项目用地;
Other land uses as prescribed by laws and administrative regulations;
法律、行政法规规定的其他用地;
(V) Architectural Concepts
(五) 建筑概念
1. Architecture: The general term for buildings and structures;
1、 建筑:建筑物和构筑物的总称;
2. Narrow sense of buildings: Refers to all kinds of houses and structures such as trees, elevators, water and heating equipment, etc.
2、 狭义建筑物:指各类房屋,构筑物如树木、电梯、水暖设备等;
3. Standards for qualified buildings: applicable, economical and aesthetically pleasing;
3、 合格建筑物的标准:适用、经济、美观;
Application: Safety, waterproofing, sound insulation, heat preservation and insulation, lighting, complete functions, reasonable spatial layout;
适用:安全、防水、隔声、保温隔热、采光、功能齐全、空间格局合理;
Economy: Reasonable purchase price, low energy consumption for maintenance, heating and air conditioning.
经济:购置价格合理、维修保养、采暖、空调能耗不高;
Aesthetics: Architectural form, color beauty, and harmony with the environment;
美观:建筑造型、色彩美感、与环境协调;
(6) Property concept
(六) 物业概念
1. Property: In a broad sense, property refers to real estate; in a narrow sense, it encompasses all types of buildings and their affiliated equipment, facilities, and related sites.
1、 物业:广义的物业就是房地产,狭义的物业,包括各类房屋及其附属的设备、设施和相关场地;
All kinds of houses: They can be building complexes, such as residential communities, or a single residence.
各类房屋:可以是建筑群,如住宅小区,也可以是一幢住宅;
Ancillary equipment, facilities and related sites: These refer to all kinds of indoor and outdoor facilities, municipal public facilities, road traffic, etc. that are matched with the above-mentioned buildings.
附属的设备、设施和相关场地:是指与上述建筑物相配套的室内外各类设施、市政公用设施、道路交通等;
Ii. Common Knowledge of House Construction
二、房屋建筑常识
1. Floor area ratio
1、 容积率:
The ratio of the total building area to the total land area, a technical and economic indicator reflecting the degree of land utilization, usage intensity and economic efficiency.
总建筑面积与总用地面积的比值, 反映土地利用程度、使用强度及其经济性的技术经济指标;
Floor area ratio = Total building area ÷ Land area;
容积率=建筑总面积÷用地面积;
Generally speaking: Ordinary residential buildings ≥1.0;
一般来讲:普通住宅≥1.0;
Non-ordinary residential properties < 1.0;
非普通住宅<1.0;
2. Building density
2、 建筑密度:
The proportion of the total area of all types of building land within the project land use scope to the total land area.
项目用地范围内各种建筑用地面积总和占总用地面积的比例.
The total area of the building base can also be divided by the total land area to reflect the vacant land ratio and the density of buildings within the construction land area.
也可以建筑物基底总面积÷总用地面积,反映建筑用地范围内的空地率和建筑物的密集程度;
3. Green coverage rate
3、 绿化率:
It refers to the proportion of the total area of green space within the planned land use scope of the project to the planned construction land area.
指项目规划用地范围内绿化用地总面积占规划建设用地面积的比例;
4. Green space ratio
4、 绿地率:
It describes the ratio of the total sum of all types of green Spaces within the residential area to the residential area land.
描述的是居住区用地范围内各类绿地的总和与居住区用地的比率;
2. Allocation of land use rights
2、 土地使用权划拨:
It refers to the act of the people's government at or above the county level, in accordance with the law, approving the delivery of a piece of land to the land user for use after the land user has paid compensation, resettlement and other fees, or delivering the land use right to the land user for free.
指县级以上人民政府依法批准,在土地使用者缴纳补偿、安置等费用后将该幅土地交付其使用,或者将土地使用权无偿交付给土地使用者使用的行为;
Where the right to use land is obtained through allocation, there is no limit on the period of use, except as otherwise provided by laws and administrative regulations.
以划拨方式取得土地使用权的,除法律、行政法规另有规定外,没有使用期限的限制;
The land use rights of the following construction land may be allocated by the people's government at or above the county level in accordance with the law if they are indeed necessary: land for state organs and military land.
下列建设用地的土地使用权,确属必须的,可由县级以上人民政府依法批准划拨: 国家机关用地和军事用地;
Urban infrastructure land and public welfare land;
城市基础设施用地和公益事业用地;
Land for key state-supported projects in energy, transportation, water conservancy, etc.
国家重点扶持的能源、交通、水利等项目用地;
Other land uses as prescribed by laws and administrative regulations;
法律、行政法规规定的其他用地;
(V) Architectural Concepts
(五) 建筑概念
1. Architecture: The general term for buildings and structures;
1、 建筑:建筑物和构筑物的总称;
2. Narrow sense of buildings: Refers to all kinds of houses and structures such as trees, elevators, water and heating equipment, etc.
2、 狭义建筑物:指各类房屋,构筑物如树木、电梯、水暖设备等;
3. Standards for qualified buildings: applicable, economical and aesthetically pleasing;
3、 合格建筑物的标准:适用、经济、美观;
Application: Safety, waterproofing, sound insulation, heat preservation and insulation, lighting, complete functions, reasonable spatial layout;
适用:安全、防水、隔声、保温隔热、采光、功能齐全、空间格局合理;
Economy: Reasonable purchase price, low energy consumption for maintenance, heating and air conditioning.
经济:购置价格合理、维修保养、采暖、空调能耗不高;
Aesthetics: Architectural form, color beauty, and harmony with the environment;
美观:建筑造型、色彩美感、与环境协调;
(6) Property concept
(六) 物业概念
1. Property: In a broad sense, property refers to real estate; in a narrow sense, it encompasses all types of buildings and their affiliated equipment, facilities, and related sites.
1、 物业:广义的物业就是房地产,狭义的物业,包括各类房屋及其附属的设备、设施和相关场地;
All kinds of houses: They can be building complexes, such as residential communities, or a single residence.
各类房屋:可以是建筑群,如住宅小区,也可以是一幢住宅;
Ancillary equipment, facilities and related sites: These refer to all kinds of indoor and outdoor facilities, municipal public facilities, road traffic, etc. that are matched with the above-mentioned buildings.
附属的设备、设施和相关场地:是指与上述建筑物相配套的室内外各类设施、市政公用设施、道路交通等;
5. Floor height
5、 层高:
The height of a residence is calculated in units of "floors", referring to the distance between the lower floor or slab surface and the upper floor surface.
住宅高度以“层”为单位计算,是指下层地板面或楼板面到上层楼层面之间的距离.
6. Clear height
6、 净高:
It refers to the distance between the lower floor surface or the upper surface of the floor slab and the lower surface of the upper floor slab.
指下层地板面或楼板上表面到上层楼板下表面之间的距离.
Clear height = Floor height - floor slab thickness;
净高=层高-楼板厚度;
7. Depth:
7、 进深:
It refers to the length of a residence, which is the actual length from the front wall to the back wall of an independent house or a residential building. To ensure that residences have good natural lighting and ventilation conditions, the depth of rooms in a large number of urban residential buildings in China is generally limited to about 5 meters and cannot be arbitrarily expanded.
指住宅的长度,指一间独立的房屋或一幢居住建筑从前墙皮到后墙皮之间的实际长度,为了保证住宅具有良好的自然采光和通风条件,目前我国大量城镇住宅房间的进深一般都限定在5米左右,不能任意扩大.
If the depth of a residence is too large, it will become long and narrow. The indoor space far from the doors and Windows will have insufficient natural light. However, a residence with a large depth can effectively save land.
住宅进深过大,就是住宅成为狭长型,距离门窗较远的室内空间自然光线不足,但进深大的住宅可以有效的节约用地;
8. Room:
8、 开间:
The width of a residence refers to the actual distance between one side of the wall and the other side of the wall within a room. There are strict regulations on the bays of a residence in residential design.
指住宅的宽度,指一间房屋内一面墙皮之间到另一面墙皮之间的实际距离,住宅的开间在住宅设计上有严格的规定;
A smaller bay area can shorten the inter-floor span of the floor slab, enhancing the integrity, stability and seismic resistance of the residential structure.
较小的开间范围,可缩短楼板的层间跨度,增强住宅结构的整体性、稳定性和抗震性;
9. Building area:
9、 建筑面积:
It refers to the horizontal area of the space enclosed by the outer walls of a building.
指建筑物外墙外围所围成空间的水平面积.
It includes the usable area for living in the house, the area occupied by walls and columns, the area of stairs and corridors, and other common areas, etc.
包含了房屋居住可用的实用面积、墙体柱体占地面积、楼梯走道面积、其它公摊面积等;
10. Common area:
10、公摊面积:
It refers to the total area of the stairs, elevator shafts, exterior walls, public lobbies, corridors, equipment rooms, first-floor lobbies of buildings and some other supporting facilities within the community.
指建筑物的楼梯、电梯井、外墙、公共门厅、走道、设备间、首层大堂及小区内其它一些配套设施的面积总和;
11. Usable area:
11、使用面积:
It is the net usable area directly available for residents' living after deducting the shared area and the area occupied by walls and columns from the building area, commonly known as the floor tile area.
它是建筑面积扣除公摊面积、及墙体柱体所占用的面积后的直接供住户生活的净使用面积,俗称地砖面积;
12. Land area:
12、占地面积:
The area occupied by the foundation of a building and its functions is also called the red line area.
建筑物基底及其功能需要占用的面积,也叫红线面积;
13. The usable floor area within the unit = the usable floor area within the unit + the floor area of the walls within the unit + the floor area of the balcony (the area of the terrace is calculated as half the area).
13、套内建筑面积=套内使用面积+套内墙体面积+阳台建筑面积(露台面积按半面积计算);
14. Building area = usable floor area + shared area;
14、建筑面积=套内建筑面积+公摊面积;
15. Sales area = usable floor area + shared common floor area.
15、销售面积=套内建筑面积+公摊的公用建筑面积;
Commercial housing is sold by "sets" or "units".
商品房按“套”或“单元”出售;
16. Common floor area = Total floor area of the entire building - floor area within the unit - floor area that should not be allocated.
16、公用建筑面积=整幢建筑面积-套内建筑面积和-不应分摊的建筑面积;
17. The shared common building area = the floor area within the unit × the coefficient of shared building area allocation.
17、公摊的公用建筑面积=套内建筑面积×公用建筑面积分摊系数;
18. Coefficient of shared building area allocation: Shared building area ÷ sum of usable building areas;
18、公用建筑面积分摊系数:公用建筑面积÷套内建筑面积之和;
19. The allocated common building area includes: lobbies, public halls, corridors, passageways, shared toilets, elevator lobbies, stairwells, elevator shafts, elevator machine rooms, garbage chutes, pipe shafts, fire control rooms, fire escape routes, pump rooms, water tank rooms, refrigeration machine rooms, distribution rooms, gas pressure regulating rooms, air conditioning rooms, elevator workers' rest rooms, duty guard rooms, satellite receiving machine rooms, etc.
19、分摊的公用建筑面积包括:大堂、公共大厅、走廊、过道、共厕、电梯前厅、楼梯间、电梯井、电梯机房、垃圾道、管道井、消防控制室、消防通道、水泵房、水箱间、冷冻机房、配电室、煤气调压室、空调房、电梯工休息室、值班警卫室、卫星接收机房等;
20. Unrecorded common areas: warehouses, garages, driveways, heating boiler rooms, civil air defense basements, property management rooms, self-operated and self-used houses of the housing sales unit, and guard rooms serving multiple buildings.
20、不记入的公摊面积:仓库、车库、车道、供暖锅炉房、人防地下室、物管用房、售房单位自营、自用房屋、多幢房屋服务的警卫室;
21. Practicality rate = Usable floor area within the unit ÷ Residential floor area;
21、实用率=套内建筑面积÷住宅建筑面积;
22. Utilization rate = usable area ÷ residential area. Generally, for high-rise towers, it is between 72% and 75%, and for slab buildings, it is between 78% and 80%.
22、使用率=使用面积÷住宅面积,一般高层塔楼在72%至75%之间,板楼在78%至80%之间;
Less than the practical rate;
小于实用率;
23. Basement
23、地下室:
It refers to the height at which the floor of a room is lower than the outdoor ground level, exceeding half of the room's clear height.
指房间地面低于室外地平面的高度超过该房间净高的1/2;
24. Semi-basement
24、半地下室:
It refers to the height at which the floor of a room is lower than the outdoor ground level, exceeding one third of the clear height of the room and not exceeding one half.
指房间地面低于室外地平面的高度超过该房间净高的1/3,且不超过1/2;
25. Balcony
25、阳台:
A space for residents to engage in outdoor activities, dry clothes, etc.
供居住者进行室外活动/晾晒衣物等的空间;
26. Platform
26、平台:
The upper roof or the part extending from the ground floor of a residence to the outside for residents to engage in outdoor activities;
供居住者进行室外活动的上屋面或由住宅底层地面伸出室外的部分;
27. Standard Floor
27、标准层:
Refers to residential floors with the same floor plan layout;
指平面布置相同的住宅楼层;
28. Middle layer:
28、中间层:
The middle floor between the ground floor and the highest entrance floor for residents.
底层和最高住户入口层之间的中间楼层.
Iii. Terminology in the Real Estate Industry
三、房地产行业术语:
(1) Indoor facilities:
(一)室内设施:
Four gases: heating, gas, water heater, air conditioner;
1、 四气:暖气、煤气、热水器、空调;
2. Complete: Household appliances (TV, refrigerator, washing machine) and furniture (bed, wardrobe, sofa, TV cabinet, integrated kitchen cabinet);
2、 全齐:家电(电视、冰箱、洗衣机)和家具(床、衣柜、沙发、电视柜、整体橱柜);
(II) Decoration Classification:
(二)装修分类:
1. Roughcast: cement floors, cement walls;
1、 毛 坯:水泥地、水泥墙;
2. Simple decoration: Floor tiles, white walls;
2、 简 装 修:地砖、白墙;
3. Medium installation and repair: Large floor tiles, wooden floors;
3、 中 装 修:大地砖、木地板;
4. Fine decoration and renovation: wooden flooring, door and window cladding;
4、 精 装 修:木地板、包门、包窗;
5. Luxurious decoration: Avant-garde decoration and high-quality materials.
5、 豪华装修:装修前卫、用料讲究;
(3) Layout and Area:
(三)户型及面积:
One-bedroom: Public housing area :30-50 square meters;
1、 一居室:公房面积:30-50平米;
Commercial housing area :40-60 square meters;
商品房面积:40-60平米;
2. Two-bedroom: Public housing area :50-70 square meters;
2、 二居室:公房面积:50-70平米;
Commercial housing area :70-100 square meters;
商品房面积:70-100平米;
3. Three-bedroom: Public housing area :60-90 square meters;
3、 三居室:公房面积:60-90平米;
Commercial housing area :110-150 square meters;
商品房面积:110-150平米;
4. Floor jumping: The house uses a floor jumping layout, such as crossing two floors, three floors crossing four floors, etc.
4、 越层:房屋使用层跳跃的房型,如一越二,三越四等;
5. Staggered floors: A house type with uneven ground within the building.
5、 错层:房屋内地面错落的房型;
(4) Floor and Orientation:
(四) 楼层及朝向:
1. Floor description: A multi-storey building has 6 floors. The floor where the house is located is on the 3rd floor, abbreviated as 3/6.
1、 楼层描述,多层楼房为6层,房屋所在层3层,简写3/6;
Advantages and disadvantages
优劣:
There is a saying among multi-storey buildings that "March is golden and April is silver", meaning that the third floor of a six-storey building is the best, and the fourth floor is the best.
楼房中多层楼有“金三银四”的说法,即六层楼三层最佳,四层次之;
The higher floors in high-rise buildings tend to have higher prices, except for the top floors in second-hand houses.
高层楼中楼层较高的价位也较高,但二手房中顶楼除外;
2. Orientation (based on the direction corresponding to the master bedroom window) The orientation of multi-story buildings is mostly north-south or east-west.
2、 朝向(以主卧室窗户所对应的方向为准)多层楼朝向多为南北正向或东西侧向;
The orientation of high-rise slab buildings and multi-storey buildings is similar.
高层板楼与多层楼的朝向相似;
High-rise towers are mostly four-cornered, and their orientations are mostly southeast, southwest, northeast, northwest and various inclined directions.
高层塔楼多为四角,其朝向多为东南、西南、东北、西北及各种斜向;
Iv. Characteristics of Real Estate
四、房地产特性:
(1) Immobility;
(一) 不可移动性;
(2) Uniqueness;
(二) 独一无二性;
(3) Long service life;
(三) 寿命长久性;
(4) Limited quantity;
(四) 数量有限性;
(V) Diversity of uses;
(五) 用途多样性;
(6) Mutual influence;
(六) 相互影响性;
(7) Greatly influenced by policies and the market;
(七) 受政策\市场影响大;
(8) High bid;
(八) 标的高;
(9) Slow monetization;
(九) 变现慢;
(10) Preservation and appreciation of value;
(十)保值增值性;
V. House Classification and Detailed Explanation:
五、房屋分类及详解:
(1) Classified by the number of residential floors:
(一) 按住宅层数划分:
1. Low level: The number of floors is 1 to 3.
1、 低层:层数为1-3层;
2. Multi-layer: The number of layers is 4 to 6.
2、 多层:层数为4-6层;
3. Middle and high-rise buildings: The number of floors is 7 to 9.
3、 中高层:层数为7-9层;
4. High-rise buildings: Over 10 floors;
4、 高层:10层以上;
(2) Classified by nature of use:
(二) 按使用性质划分:
Productive buildings;
1、 生产性建筑;
Factory buildings, workshops, etc.
厂房、车间等;
2. Non-productive buildings;
2、 非生产性建筑;
Residential buildings: such as residences, etc.
居住建筑:如住宅等;
Public buildings: such as offices, cultural and sports facilities, transportation facilities, etc.
公共建筑:如办公、文体、交通等;
(3) Classification by structural type:
(三) 按结构类型划分:
1. Brick-concrete structure: The vertical load-bearing components of this type of building are brick walls or brick columns, and the horizontal load-bearing components are reinforced concrete floor slabs and roof slabs.
1、 砖混结构:这类建筑物的竖向承重构件采用砖墙或砖柱,水平承重构件采用钢筋混凝土楼板、屋顶板。
This structure has small rooms and a low number of floors, and is generally used in multi-story buildings.
这种结构房间小、层数低,一般用于多层建筑中;
2. Frame structure: The load-bearing part of this structure is a framework formed by beams, slabs and columns made of reinforced concrete or steel, which can be used in small high-rise buildings.
2、 框架结构:这种结构的承重部分是由钢筋混凝土或钢材制作的梁、板、柱形成的骨架,可用于小高层建筑;
3. Reinforced concrete shear wall structure;
3、 钢筋混凝土剪力墙结构;
The vertical and horizontal load-bearing components of this type of building are all made of reinforced concrete and are mostly used in high-rise buildings
这类建筑物的竖向承重构件和水平承重构件均采用钢筋混凝土制作,多用于高层建筑
4. Spatial structure: including: cable structure, grid structure, shell structure, etc.
4、 空间结构:包括:县索结构、网架结构、壳体结构等。
Such as stadiums, grand theaters, etc.
如体育馆、大剧院等;
(4) Classified by building materials:
(四) 按建筑材料划分:
1. Brick-concrete: Red bricks and cement;
1、 砖混:红砖与水泥;
The main load-bearing components are constructed with bricks and concrete.
承重的主要构件是用砖和混凝土建造的;
2. Steel-concrete: Cast, the most solid.
2、 钢混:浇注、最为结实;
The main load-bearing components are constructed with steel and reinforced concrete.
承重的主要构件是用钢、钢筋混凝土建造的;
3. Precast slabs: Precast concrete slabs and steel bars;
3、 预制板:预制的混凝土板与钢筋;
The main load-bearing components are constructed with reinforced concrete.
承重的主要构件是用钢筋混凝土建造的.
Buildings including thin-shell structures, large formwork cast-in-place structures, and reinforced concrete structures constructed using sliding formwork, lifting slabs, etc.
包括薄壳结构、大模板现浇结构及使用滑模、升板等建造的钢筋混凝土结构的建筑物;
(V) Classification by building type and appearance:
(五) 按楼型外观划分:
1. Slab building
1、 板楼:
It refers to a residence composed of multiple residential units, each of which is equipped with a staircase or both a staircase and an elevator.
是指由多个住宅单元组合而成,每单元均设有楼梯或楼梯、电梯皆有的住宅;
Each unit has its own separate staircase and elevator.
每个单元用自己单独的楼梯、电梯;
The basic form of slab buildings: Multi-story: less than 6 floors;
板楼基本形式:多 层:6层以下;
Small high-rise buildings: Within 7 to 12 floors;
小高层:7-12层以内;
High-rise: 13th to 18th floors;
高层:13-18层;
Super high-rise: Over 18 floors or even higher;
超高层:18层以上甚至更高;
2. Tower
2、 塔楼:
It mainly refers to high-rise residential buildings where multiple units are arranged with shared staircases and elevators as the core.
主要是指以共用楼梯、电梯为核心布置多套住房的高层住宅.
In simple terms, the layout of the tower is centered around elevators and stairs. After reaching the floor, one can directly enter the interior by walking in all directions.
通俗地说,塔楼以电梯、楼梯为布局核心,上到楼层之后,向四面走可以直接进入户内;
Basic forms of towers: butterfly-shaped, triangular, Z-shaped, combined tower and slab, cross-shaped, square towers.
塔楼基本形式:蝶型、品字型、Z字型、塔板结合、十字型、方形塔楼;
Supplementary: Tube Building: Bathrooms and kitchens are shared collectively.
补充:筒子楼:卫生间、厨房都集体公用;
Office building: For office use;
写字楼:办公使用;
(6) Classified by house type:
(六) 按房屋户型划分:
One-bedroom apartment;
1、 一居室;
One bedroom
一卧室;
2. Two-bedroom;
2、 二居室;
Two bedrooms
二卧室;
3. Three-bedroom;
3、 三居室;
Three bedrooms
三卧室;
4. Multi-bedroom;
4、 多居室;
Multi-bedroom;
多卧室;
5. Split-level: This mainly refers to a situation where a house is not on the same plane, that is, the living room, bedroom, bathroom, kitchen and balcony within the house are on several planes of different heights.
5、 错 层:主要指的是一套房子不处于同一平面,即房内的厅、卧、卫、厨、阳台处于几个高度不同的平面上。
6. Duplex: A duplex residence is a unit that occupies two floors and is connected to the upper and lower floors by an internal staircase.
6、 跃 层:跃层住宅是一套住宅占两个楼层,有内部楼梯联系上下层;
Generally, the living room, kitchen, dining room and bathroom are arranged on the first floor, and it is best to have one bedroom. On the second floor, bedrooms, studies and bathrooms are arranged, etc.
一般在首层安排起居室、厨房、餐厅、卫生间,最好有一间卧室,二层安排卧室、书房和卫生间等。
7. Duplex: A duplex residence is conceptually one floor, but its floor height is higher than that of an ordinary residence. A mezzanine can be partially opened up to arrange bedrooms or studies and other contents, and stairs are used to connect the upper and lower floors.
7、 复 式:复式住宅在概念上是一层,但层高较普通的住宅高,可在局部掏出夹层,安排卧室或书房等内容,用楼梯联系上下。
The aim is to enhance the utilization rate of residential space.
其目的是提高住宅空间利用率。
(7) Classification by nature of property rights:
(七) 按产权性质划分:
1. Commercial housing: It refers to the houses invested and constructed by various real estate development companies with the aim of making profits and operated in accordance with market rules.
1、 商品房:指各房地产开发公司投资兴建的,以赢利为目的,按市场规律经营的房子;
Category
分类:
(1) Ordinary residence
(1) 普通住宅:
Floor area ratio 1.0(inclusive) or above;
容积率1.0(含1.0)以上;
The building area is less than 140 square meters.
建筑面积在140平方米以下;
The transaction price is less than 1.2 times the average transaction price of land and housing at the same level.
成交价低于同级别土地住房平均交易价格1.2倍以下;
(2) Non-ordinary residential properties
(2) 非普通住宅:
"Jia Zhai"
甲宅;
24-hour elevator service, security guards and property management fees are relatively high.
24小时电梯、保安,物业费较高;
Apartment
公寓;
Commercial housing, 24-hour elevator, security guards, 24-hour pipeline hot water;
商品房、24小时电梯、保安、24小时管道热水;
Villas (detached houses, townhouses, semi-detached houses, and stacked houses) are generally located in remote areas.
别墅:(独栋、联排、双拼、叠拼)一般较为偏远;
(3) Qualifications for selling commercial housing: The sale of commercial housing must be accompanied by the following five certificates: "State-owned Land Use Certificate", "Construction Land Planning Permit", "Construction Project Planning Permit", "Construction Engineering Construction Permit", and "Pre-sale Permit for Commercial Housing".
(3) 商品房销售资质:商品房销售须具备以下五证:《国有土地使用证》、《建设用地规划可证》、《建设工程规划许可证》、《建筑工程施工许可证》、《商品房预销售许可证》;
2. Purchased public housing:
2、 已购公房:
Ordinary public housing: It refers to the public housing whose original property rights belong to the unit, which is purchased by the employees of the unit at cost price, standard price or preferential price in accordance with the relevant housing sale policies of the national housing reform.
普通公房: 指按照国家房改有关售房政策,单位职工按成本价、标准价或优惠价购买的原产权属于单位的公有住房.
The housing purchased by employees in accordance with national policies at cost price or standard price for the affordable housing projects constructed by the unit and the housing built through collective fundraising and cooperation.
职工根据国家政策,按成本价或标准价购买的由单位建设的安居工程和集资合作建设的住房;
Central government-owned housing: It refers to public housing purchased by employees of units at cost price, standard price or discounted price in accordance with the relevant housing reform policies of the state, whose original property rights belong to central units in Beijing, large and medium-sized state-owned enterprises and various Ministries and commissions of the State Council.
央产房: 指按照国家房改有关售房政策,单位职工按成本价、标准价或优惠价购买的原产权属于中央在京单位,国有大中型企业及国务院各部委机关的公有住房.
The housing purchased by employees in accordance with national policies at cost price or standard price for the affordable housing projects built by central units in Beijing and the housing built through collective fundraising and cooperation.
职工根据国家政策,按成本价或标准价购买的由中央在京单位建设的安居工程住房和集资合作建设的住房;
3. Affordable housing
3、 经济适用房:
Definition: It is an ordinary residence with social security nature, built in accordance with national residential construction standards and targeted at low - and middle-income families with housing difficulties.
定义:以中低收入家庭住房困难户为供应对象,并按国家住宅建设标准建造的,具有社会保障性质的普通住宅.
Land supply should, in principle, be implemented through allocation. Housing design should reflect the principles of economy, practicality and aesthetics, and in terms of usage functions, it should meet the basic living needs of residents.
土地供应原则上实行划拨方式,住房设计要体现经济适用美观的原则,使用功能上要满足居民的基本生活需要.
The supply price of affordable housing shall be determined by the administrative department in charge of the construction of affordable housing in conjunction with the price control department based on the construction cost.
经济适用房的供应价格由经济适用房建设的行政主管部门会同物价部门按建设成本确定.
Only having the ownership of the house: The form of the "House Ownership Certificate" is made of red anti-counterfeiting materials, and the seal of affordable housing is affixed at the top of the first page or it is managed as affordable housing.
只拥有房屋所有权:表现形式为红色防伪制材的“房屋产权证”并在第一页上部加盖经济适用住房印章或按经济适用房管理;
4. Right-of-use housing: Right-of-use housing is a product of the planned economy and the housing allocation system, commonly known as public housing.
4、 使用权房:使用权房是计划经济和住房分配体制下的产物,俗称公房。
The property rights of this house belong to the state or the collective. However, this right of use is an independent property right separated from the ownership, allowing the user (the tenant of public housing) to transfer or exchange the right of use of the house within a certain scope through a certain method. The income obtained, after deducting the taxes and fees due, belongs to the user.
该房屋的产权属于国家或集体,不过,这项使用权是从所有权分离出来的一项独立的财产权,允许使用权人(公房承租人)在一定范围内通过一定方式转让或交换房屋使用权,所获收益扣除应缴税费后归使用权人所有。
5. Private property bungalow: Also known as private residence, it is a residence purchased and built by an individual or a family.
5、 私产平房:也称私有住宅,是个人或家庭购买和建造的住宅;
In rural areas, farmers' residences are basically self-built private houses.
在农村,农民的住宅基本上是自建私有住宅。
Public housing is sold to individuals and families through the residential consumption market and thus becomes private housing.
公有住房通过住宅消费市场出售给个人和家庭,也就转为私有住宅。
6. Small property rights houses: These refer to houses built on rural collective land without paying land transfer fees and other charges. The national housing management department will not issue property certificates for them.
6、 小产权房:是指在农村集体土地上建设的房屋,未缴纳土地出让金等费用,国家房管部门不予颁发房产证。
The term "small property rights house" is not a legal concept but a commonly used name formed by people in social practice.
“小产权房”不是法律概念,是人们在社会实践中形成的一种约定俗成的称谓。
This type of property does not have the land use certificate and pre-sale license issued by the state. The purchase contract will not be filed with the land and Housing Administration Bureau. Therefore, one cannot truly enjoy legitimate rights and interests when buying or selling such properties.
该类房没有国家发放的土地使用证和预售许可证,购房合同在国土房管局不会给予备案,买卖此类房屋不能真正享有合法权益。
According to the relevant requirements of the state, "small property rights houses" are not subject to confirmation of rights and issuance of certificates and are not protected by law.
按照国家的相关要求,“小产权房”不得确权发证,不受法律保护。
声明:本文由入驻焦点开放平台的作者撰写,除焦点官方账号外,观点仅代表作者本人,不代表焦点立场。


