上海【昆仑大厦】售楼处电话——售楼中心位置——较新房源价格
扫描到手机,新闻随时看
扫一扫,用手机看文章
更加方便分享给朋友
昆仑商务中心(昆仑大厦)
售楼处电话:400-886-1718 【营销中心】
样板房采取预约制 仅限预约客户可参观
昆仑大厦
普陀核心区域长寿路
内环内
双轨交汇(7+13号线)
面积:47 - 170㎡
总价:171-646万
昆仑商城地处长寿路、常德路商业区,北临中山高架、明珠双轨线。南靠商业繁荣的南京路、北京路。
中星经贸大厦是现代化高级办公楼,昆仑商城位于市区繁华地段,地理位置优越交通便利,租金合理,设施齐全,装修现代,是企业领袖精明睿智之选择。
昆仑大厦以开放式平面展开SHOPPING MALL格局为规划主轴,融合了中西文化特质。整体建筑由六幢各具机能的楼宇组成, 辅配入口广场、中庭广场、后广场、阳光名店街、超大停车场等,在开业当时成为了大上海地区独具特色与规模的综合型购物中心。
昆仑大厦是普陀、闸北、静安三区交接地,地理位置良好、交通方便,十多条公交线路在此交会,并于亚新生活广场门口设立站点,轨道交通M7线现已开通,并于亚新卖场相连。
亚新将成为普陀区最重要的交通枢纽。上海市普陀区长寿路市中心地区,该区商业地带浓厚,附近有很多知名小区和公寓,例如常澳馨苑,绿洲尧舜公寓,纺鑫苑小区,绿洲城市花园,同德公寓,恒达公寓等,这写公寓和小区为亚新生活广场提供了人口基础。

项目介绍
【昆仑大厦项目基础信息】
在售户型:47-161平
均价:38000元/平(含税价)
交付标准:毛坯
交房时间:款清交房
物业费:18元
得房率:59-62%
体量:9户
层高:3.5米
梯户比:3梯20户(双电梯井)
昆仑商务中心(昆仑大厦)
售楼处电话:400-886-1718 【营销中心】
样板房采取预约制 仅限预约客户可参观
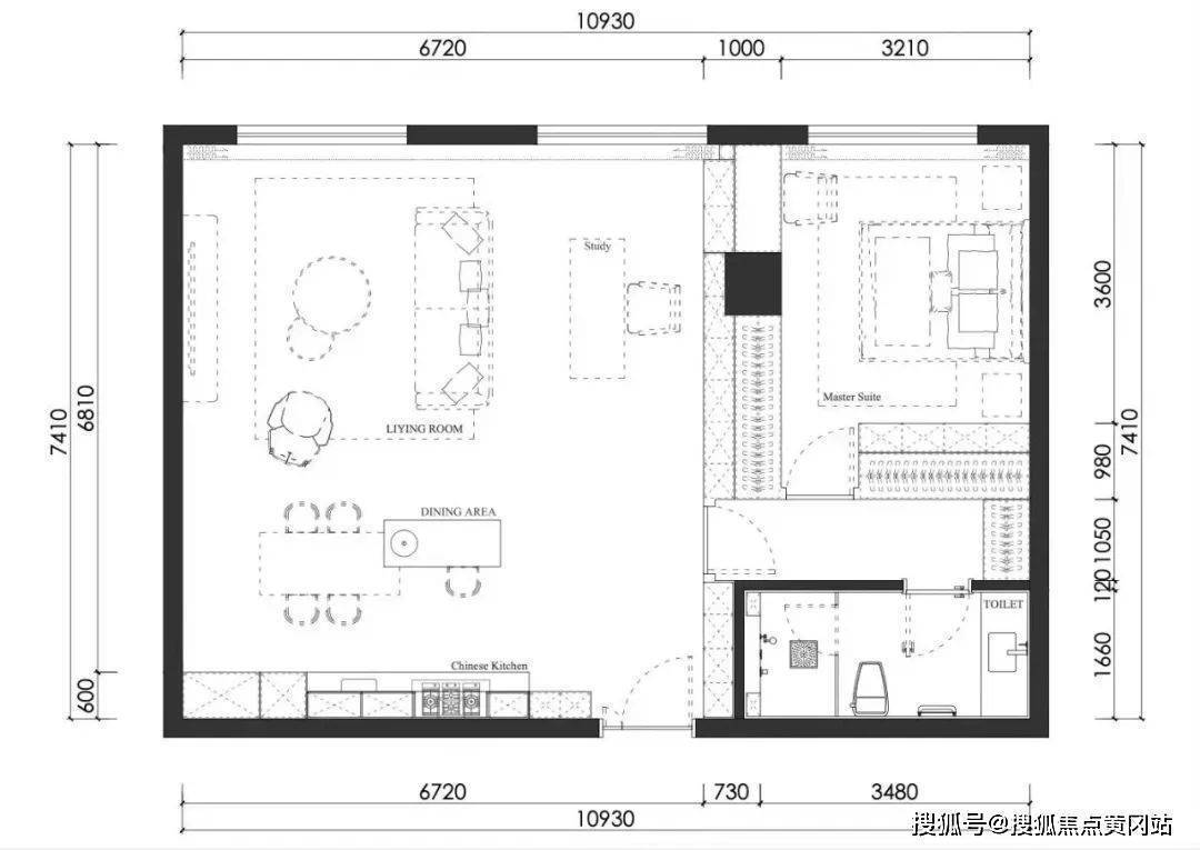
项目平面图
户型图
实拍样板房




交通配套:
【地铁配套】 地铁7号线、13号线长寿路站出站即达 (7号出口)
【公交配套】 公交13、24、36、40、54、63、 105、106、138、223、768、830、 837、922、941、948、950、966, 18条公交线路

生活配套:
医院: 华东医院、华山医院、上海同济医院、普陀区长寿社区卫生服务中心、 上海市普陀区人民医院、复旦大学附属华东医院、 普陀区妇女儿童保健所等
商场:亚新广场、 悦达889购物中心、KING88购物中心、 长寿商业广场等
学校:同济大学第二附属中学、上海市排名前列中学、绿洲幼儿园、上海经济管理学校、 上海静安实验小学、上海市静安区第二中心小学等。长寿公园、梦清园公园等。
价值与回报:
附近小区租金( 数 据 来 自 链 家 网 )

回报率
目前昆仑大厦现有租金5500元/月(以45平方为例),售价为36000元/平,得 出回报率为4%。购买昆仑大厦比购买普通住宅回报率高出2.5%!

昆仑大厦让你200万入住上海市中心,让你每月租金收益不低于8500元!
昆仑商务中心(昆仑大厦)
售楼处电话:400-886-1718 【营销中心】
样板房采取预约制 仅限预约客户可参观
声明:本文由入驻焦点开放平台的作者撰写,除焦点官方账号外,观点仅代表作者本人,不代表焦点立场。


