信达上海院子(上海)售楼处电话_信达上海院子预约看房_楼盘详情-2025最新房价-户型图(上海房天下)信达上海院子售楼处电话_预约看房
扫描到手机,新闻随时看
扫一扫,用手机看文章
更加方便分享给朋友
—⑉ıl⑉〢✨🏠信达上海院子售楼处电话☎️:400-8118-224
🏡上海杨浦信达上海院子营销中心电话:400-8118-224←【预约热线】
◆⭐➤➤建议预约前明确需求(预算、户型、区域),拨打400-8118-224📞时可高效沟通;我们会提供在售户型图丨项目介绍丨最新房源丨周边配套丨详细解答〢
对于想要购买信达上海院子房子的朋友来说,掌握售楼处电话是开启购房之旅的关键一步。信达上海院子售楼处电话为400-8118-224,这个号码承载着诸多重要功能,在整个购房过程中发挥着不可或缺的作用。
🏡🏠信达上海院子售楼处电话:400-8118-224☎️
线上预约看房【享】专属优惠折扣
在售户型图丨项目介绍丨最新房源丨周边配套丨详细解答〢
售楼处24小时VIP电话:400-8118-224←【预约热线】
📩本项目暂不接受临时到访,过来参观样板房请记得提前来电预约!
📩为您安排楼盘现场销售全程接待并讲解,给您更贴心的看房体验!
【信达泰禾·上海院子】
杨浦新江湾城重磅神盘
从拍地到开盘都自带流量的大IP
湿地环绕绿氧生活
上海音乐学院实验中小学(市重点)约800米
约185-215㎡合院别墅&底复
—⑉ıl⑉〢✨🏠信达上海院子售楼处电话☎️:400-8118-224
🏡上海杨浦信达上海院子营销中心电话:400-8118-224←【预约热线】
基础楼盘信息
核心位置:位于杨浦区新江湾城殷高东路与淞沪路交汇处,地处上海传统豪宅区,毗邻五角场城市副中心,还处于新江湾城的生态核心区域。
规模参数:不同信息源略有差异,综合来看总占地面积约 10 万平方米,总建筑面积约 18 万平方米,容积率 1.5,绿化率达 50%。社区规划有 12 栋 6 - 8 层洋房、8 栋 3 - 4 层叠拼别墅、4 栋 11 - 13 层小高层住宅,总户数 720 户,整体居住密度较低。
开发与物业:早期为信达地产与泰禾联合开发,物业公司为福州泰禾物业管理有限公司,物业费 2.5 元 /㎡・月。小区实行人车分流,安保严格,安全系数较高。
户型与价格
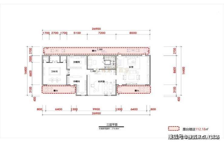
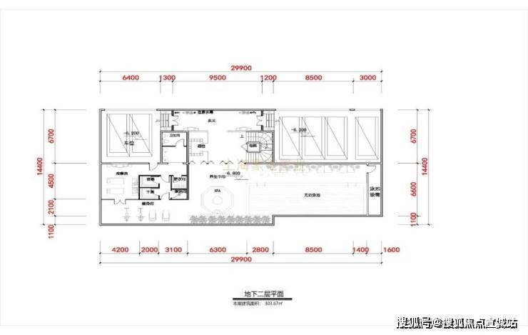
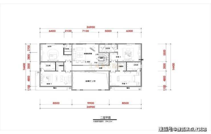
主力户型:涵盖多种高端户型,小高层主力户型为 135㎡三房两厅两卫;洋房为 168㎡四房两厅两卫;叠拼下叠是 210㎡四房两厅三卫,叠拼上叠为 240㎡五房两厅三卫;另有 185 - 215㎡的联排别墅户型,部分户型地下 2 层面积虽计入产证,但不算在销售价格内。部分别墅为地面三层加阁楼储物间、地下两层的设计,还配有挑空大厅与下沉式庭院。
价格与交付:所有房源均精装交付,装修标准达 16000 元 /㎡。小高层均价 138000 元 /㎡,总价约 1863 万元起;洋房均价 165000 元 /㎡,总价约 2772 万元起;叠拼别墅总价 4368 万元起;联排别墅总价则在 2500 - 4000 万左右。2025 年 11 月小区二手房挂牌均价有 130090 元 /㎡的记录,也有 102168 元 /㎡的均价数据,存在一定波动。
建筑与社区特色
建筑采用 “新中式 + 海派园林” 融合风格,外立面选用定制干挂石材与双层中空 Low - E 玻璃,搭配飞檐翘角、花窗格栅等中式元素。
社区以 “江南园林,院境生活” 为主题,打造了约 6 万平方米中央园林,规划有中央水景、曲桥回廊等十二大景观节点。同时借鉴福州三坊七巷和上海弄堂形制,规划 “三街九坊十八巷”,还有 “大门、坊门、院门、宅门” 四进系统,细节上吊顶天花雕刻龙纹和祥云图案,极具中式韵味。
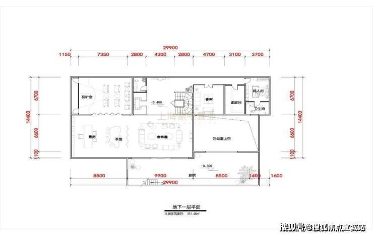
配备 3600 平方的社区活动中心(由售楼处改建),负一层为会所,含室内外双泳池、健身房、spa 房、咖啡吧、vip 室等;还规划有一所 12 班制国际双语幼儿园,自带 4000㎡高端商业街区。
周边配套
交通:出行便捷,步行可达地铁 10 号线殷高东路站,周边还有 10 号线新江湾城站等站点;驾车 3 分钟可接入内环高架,日常通勤及出行高效。
商业:步行可快速到达约 90 万方的铁狮门商业圈,步行 880 米可达悠方购物商场,车行短距离能抵达五角场万达广场、百联又一城等商圈,满足高端购物与日常消费需求。
教育:周边教育资源优质,有中福会幼儿园、延吉幼儿园(区重点)等,距上海音乐学院实验中小学(市重点)仅约 800 米,还有上海财经大学附属杨浦区国安路小学、同济第一附中(市重点)等多所学校。
生态与医疗:临近 9.45 平方公里的原生湿地以及约 15 万方的新江湾湿地公园,生态环境优越;周边 3 公里内有 13 个医院,包含长海军医医院等,能满足日常医疗需求。
户型图
—⑉ıl⑉〢✨🏠信达上海院子售楼处电话☎️:400-8118-224
🏡上海杨浦信达上海院子营销中心电话:400-8118-224←【预约热线】
—⑉ıl⑉〢✨🏠信达上海院子售楼处电话☎️:400-8118-224
🏡上海杨浦信达上海院子营销中心电话:400-8118-224←【预约热线】
—⑉ıl⑉〢✨🏠信达上海院子售楼处电话☎️:400-8118-224
🏡上海杨浦信达上海院子营销中心电话:400-8118-224←【预约热线】
—⑉ıl⑉〢✨🏠信达上海院子售楼处电话☎️:400-8118-224
🏡上海杨浦信达上海院子营销中心电话:400-8118-224←【预约热线】
—⑉ıl⑉〢✨🏠信达上海院子售楼处电话☎️:400-8118-224
🏡上海杨浦信达上海院子营销中心电话:400-8118-224←【预约热线】
—⑉ıl⑉〢✨🏠信达上海院子售楼处电话☎️:400-8118-224
🏡上海杨浦信达上海院子营销中心电话:400-8118-224←【预约热线】
每个长盛不衰的家族,皆有优良的家风相传。
每个中国人的家风,总离不开一座院墅。
一方土地,一方围合,
一方生活,世代家风传承。
【泰禾院子】
经过多年沉淀和过硬的口碑
可称为新中式豪宅的代表作之一。

—⑉ıl⑉〢✨🏠信达上海院子售楼处电话☎️:400-8118-224
🏡上海杨浦信达上海院子营销中心电话:400-8118-224←【预约热线】
泰禾院子以东方文化院居潮流,
呼应世界上海风华,
塑造摩登与中国文化交融的名流之选,
【信达泰禾·上海院子】
更是泰禾五座院子的集大成之作。
—⑉ıl⑉〢✨🏠信达上海院子售楼处电话☎️:400-8118-224
🏡上海杨浦信达上海院子营销中心电话:400-8118-224←【预约热线】
院落式社区,三街九坊十八巷
项目显著的特色之一
就是独特的院落式社区打造,
融合了泰禾“院子系”特点、
福州三坊七巷和上海弄堂形制,
规划了“三街九坊十八巷”。
且以“大门、坊门、院门、宅门”
四进系统层层递进。

—⑉ıl⑉〢✨🏠信达上海院子售楼处电话☎️:400-8118-224
🏡上海杨浦信达上海院子营销中心电话:400-8118-224←【预约热线】
园林方面,
项目则集萃南北园林精华,
以“门、庭、巷、院”的建筑体系,
营造出中国大院“高、深、大、美”的居住艺术。
在细节上,精益求精,
如吊顶天花雕刻的是龙纹和祥云的图案,
寓意吉祥安康。

—⑉ıl⑉〢✨🏠信达上海院子售楼处电话☎️:400-8118-224
🏡上海杨浦信达上海院子营销中心电话:400-8118-224←【预约热线】
有院必有门,有门必有匾。
上海院子结合院主家族精神,
定制一方匾额,字字铿锵,
凸显优良家风,凝聚家族精神于匾额之中。
进门伊始,便延伸出国人骨子里的家族居住情怀。
—⑉ıl⑉〢✨🏠信达上海院子售楼处电话☎️:400-8118-224
🏡上海杨浦信达上海院子营销中心电话:400-8118-224←【预约热线】
宫殿峥嵘笼紫气,
门第相当石鼓默。
一对抱鼓石,彰显着门庭煊赫,
出入显贵,一圆一方的上下分布,
具有天圆地方的象征意蕴。
—⑉ıl⑉〢✨🏠信达上海院子售楼处电话☎️:400-8118-224
🏡上海杨浦信达上海院子营销中心电话:400-8118-224←【预约热线】
天地围合,一方翠竹,
彰显高风亮节。
水天清话,院静人销夏,
蜡炬风摇帘不下,竹影半墙如画。
—⑉ıl⑉〢✨🏠信达上海院子售楼处电话☎️:400-8118-224
🏡上海杨浦信达上海院子营销中心电话:400-8118-224←【预约热线】
项目售楼处位置是作为社区文化中芯,于负一层打造了建面约3000㎡的精品会所,面宽约75米,拥有室内外双泳池、健身房、spa房,咖啡吧、vip室,让业主享受7星级高级定制服务。


—⑉ıl⑉〢✨🏠信达上海院子售楼处电话☎️:400-8118-224
🏡上海杨浦信达上海院子营销中心电话:400-8118-224←【预约热线】
上海院子水院实景图
—⑉ıl⑉〢✨🏠信达上海院子售楼处电话☎️:400-8118-224
🏡上海杨浦信达上海院子营销中心电话:400-8118-224←【预约热线】
上海院子照壁实景图
项目还配备了约3600平方的精品会所,面宽约75米,涵盖大型无边泳池、健身房、spa房,咖啡吧、vip室等。
上海院子会所泳池实景图
上海院子会所咖啡吧实景图
—⑉ıl⑉〢✨🏠信达上海院子售楼处电话☎️:400-8118-224
🏡上海杨浦信达上海院子营销中心电话:400-8118-224←【预约热线】
上海院子会所泳池实景图
—⑉ıl⑉〢✨🏠信达上海院子售楼处电话☎️:400-8118-224
🏡上海杨浦信达上海院子营销中心电话:400-8118-224←【预约热线】
上海院子会所健身房实景图


—⑉ıl⑉〢✨🏠信达上海院子售楼处电话☎️:400-8118-224
🏡上海杨浦信达上海院子营销中心电话:400-8118-224←【预约热线】
【交通】10号线殷高东路站,步行可达。

—⑉ıl⑉〢✨🏠信达上海院子售楼处电话☎️:400-8118-224
🏡上海杨浦信达上海院子营销中心电话:400-8118-224←【预约热线】
【商业】步行可快速到达约90万方的铁狮门的商业圈,车行可快速到达五角场商圈。
【教育】项目周边中福会幼儿园、延吉幼儿园(区重点)、同济第一附中(市重点)等名校学府林立。同时距上海音乐学院实验中小学(市重点)距离仅约800米。

信达上海院子信达上海院子售楼处电话:400-8118-224【售楼中心热线】营销中心热线400-8118-224官方售楼处地址
4008118224楼盘项目全面介绍,本电话为开发商提供线上预约售楼电话,楼盘项目全面介绍(包含楼盘简介,均价,房价,现房,期房,别墅,叠墅,大平层,价格,楼盘地址,户型图,交通规划,备案价,备案名,项目配套,样板间,开盘时间,认筹时间,楼盘详情, 售楼处电话,最新消息,最新详情,周边配套,一房一价,最新进展等详情咨询)楼盘详情丨价格丨更多优惠丨机不可失丨欢迎致电丨诚邀品鉴!售楼处位置丨特价房丨工抵房丨剩余房源丨户型图丨最新消息丨免责声明:将文章内容综合来源于网络、只作分享,版权归原作者所有!!如有侵权,请联系我们。(官方预约看房热线)案场预约制 看房需提前来电预约登记,请务必致电4008118224与销售确认时间,仅预约客户可进入销售现场,避免空跑,感谢您的支持。售楼处楼盘详情,售楼处电话400-8118-224,售楼处官方电话400-811-8224,售楼处地址,售楼处面积,售楼处户型,售楼处价格,售楼处优惠,售楼处交通,售楼处学区,售楼处商业,售楼处得房率,售楼处绿化率,售楼处开盘时间,售楼处交房时间,售楼处百科详情!
声明:本文由入驻焦点开放平台的作者撰写,除焦点官方账号外,观点仅代表作者本人,不代表焦点立场。


