【临港十七区】无缝对接世界500强企业,百万级金融白领外籍
扫描到手机,新闻随时看
扫一扫,用手机看文章
更加方便分享给朋友
上海浦东【临港17区】
售楼处电话:400-886-1718 【营销中心】
样板房采取预约制 仅限预约客户可参观
01
「 区位优势 」
临港,立长江之潮头,面东海之广袤,长江口与杭州湾在这里交汇。“滴水成湖,向海而生”,这是临港的发展起始。投资270亿号称中国史上较大的填海造陆项目启动建设,目前新城已完成部分建设,配备有火车站和港口,引进高端人才,未来将发展成为:
集聚海内外人才开展国际创新协同的重要基地
统筹发展在岸业务和离岸业务的重要枢纽
企业走出去发展壮大的重要跳板
更好利用两个市场两种资源的重要通道
参与国际经济治理的重要试验田
目前,临港新片区的人口总量约30-40万,预计未来15年将导入250万左右的常住人口,也就是说接下来每年将引进15万人口,人口总量将增长8倍!到那时,临港一个板块将拥有现在全浦东近一半的人口数量(浦东目前常驻人口约550万),且人口结构以年轻化、国际化、高学历、流动性为基本特征。
临港新片区国土空间总体规划全域面积共87300万㎡,包括滴水湖核心区、先进制造区、综合产业区及新兴产业区4个主城区片区,以及金汇、奉城等5个周边片区。这个大小,直接秒杀宝山、普陀等所有浦西区域,超过了2/3个浦东新区。
交通建设方面,临港新片区交通提升三年行动计划提出,近三年结合地区经济发展形势和要求,临港新片区将加强与铁路等部门联系,进一步研究明确轨道交通网络和对外干道交通规划,深化轨道制式比选,加快启动建设。到2025年,基本形成 “1+2+2+2”运输体系建设,即:1条轨道(两港快线),2个枢纽(浦东枢纽、临港枢纽),2条铁路(沪通铁路二期、浦东铁路复线及电气化改造),2条高快速路(S3、两港快速路)在临港新片区范围内,实现1小时通达重要对外交通枢纽,大大增强与上海市区以及长三角区域的联系。

依照国家发展改革委、交通运输部印发《长江三角洲地区交通运输更高质量一体化发展规划》的通知,两港快线(南汇支线)作为都市圈通勒交通网重点工程纳入该规划。市域铁路两港快线(暂名,又名南汇支线、自贸区快线),北起浦东综合枢纽(两个分支:浦东机场T3航站楼、上海东站),南至临港枢纽(现代服务业开放区排名前列区域),并远期实施延伸(或以分支形式)至铁路四团站。
02
「 项目介绍 」
项目简介
项目区位:浦东新区港辉路与芦硕路交口,临港先进智造片区核心位置
项目属性/土地用途:商铺/商业
产权年限:40年
开发商/管理运营商:中铁集团/万街
项目亮点:
价格低。平均单价4.8万/平米,较低不到3.5万/平米,按照债权与现金比例,实际出资单价在1.5万-2万/平米左右
现金出资比例低。1:1置换债权,房款100万房产,债权可以抵扣50万,余款只需支付50万现金即可
可办理农业银行商业贷款。期限10年,利率5.88%左右,如果征信没有问题大概两周可放款
托管十年,立即回收两年租金。按商铺总价的年化5%(两年即10%),一次性抵扣在总房款中,由先进运营团队托管运营,无需另花时间管理
商铺无限售期。住宅、公寓均需要2-5年才可以对外转让
现房,不限购,不限贷,不限售,即买即收房,预计12月可办理房产证
临港地区规划面积315.6+28平方公里,由国际未来区(主城区)、智能制造区(重装备产业区、奉贤园区)、统筹发展区(主产业区)、智慧生态区(综合区)及海洋科创城等功能区域组成。各类高级企业云集,是上海重点发展区域之一。临港未来将成为全球级“科技创新中心”,高级“国际智造城”,国际级的“滨海未来城”。
临港17区位于浦东新区港辉路与芦硕路交口,项目总占地2.8万方,建筑面积9.2万方,由三栋塔楼(T1、T2、T3)裙楼及三栋商业(S1-1、S1-2、S2),商业建筑面积35,567平方米,其中商铺300套,主力面积35--60平方为主。项目也是周边少有较大的商业综合体,服务周边30-40万常住人口,集合餐饮、娱乐、购物、教育为一体的大型商业综合体。将为周边居民生活带来极大便利。在临港片区建设用地总量锁定的前提下,结合新片区经济发展目标,规划常住人口规模250万左右,未来发展潜力巨大。
周边配套:
东邻东海大桥
南临洋山深水港
西接临港重装备产业区,特斯拉的超级工厂
北连物流园区和临港主城区
7公里内,政府规划建设了“临港大学城”,包含7所大学,预计在校人数超过8.2万人。周边辐射一公里范围内,有上海市公办幼儿园,中学等配套
周边景点已经引入海昌极地海洋世界、冰雪世界、海湾森林国家公园、滴水湖、极地海洋公园等高级甚至为高级的热门景点。可以为浦东每年带来2000万的旅游人次,超过迪士尼每年1700万人次的规模。
03
「 户型总览 」
T1栋户型图
得房率86%(未计算楼梯部分)
面积:约100-140㎡
商铺全部临街
高端酒店裙楼,租金回报率高一拖二户型构造(层高比平层高,利用率高,户型性价比高
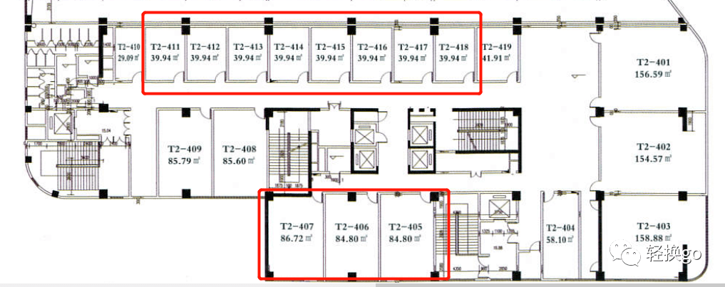
T2栋户型图
户型小,流动性好
面积:约40-85㎡
直通本层电影院、超市
公寓人群密集,消费力强


◇T2楼四层平面图
T3栋户型图
商铺全部临街
面积:约70-140㎡
得房率86%(未计算楼梯部分)
一拖二户型构造(层高比平层高,利用率高,户型性价比高)

04
「 项目运营方 」
万街商业成立于2014年,是中国社区商业领域内服务链最为完善,产品线最为齐全的综合服务性集团企业,以“交易、经营、服务”三大业务平台为基础,提供“前期策划、营销代理、招商运营、物业管理、金融投资、互联网+”六大模块服务。目前项目覆盖城市16座,运营项目70个以上,管理面积超过100万㎡,总资产管理规模超过300亿元。致力于为业主提供优质的资产增值及变现服务,让中国社区生活更美好。
05
「 招租情况 」

大润发-Fa-store已启动进驻的宣传,位置在T2#1F-2F;肯德基10月份启动装修,位置在S1#商铺;
其他主力商家,星巴克、樊登书店、海底捞、新元素、胡桃里、威尔士、好乐迪KTV已意向签约。
上海浦东【临港17区】
售楼处电话:400-886-1718 【营销中心】
样板房采取预约制 仅限预约客户可参观
声明:本文由入驻焦点开放平台的作者撰写,除焦点官方账号外,观点仅代表作者本人,不代表焦点立场。


