静安里(营销中心)官方网站-静安里销售中心(售楼处)-2026静安里楼盘欢迎您-地址-价格-户型-小区环境-楼盘详情-交房时间-售楼处电话
扫描到手机,新闻随时看
扫一扫,用手机看文章
更加方便分享给朋友
静安里售楼处电话为400-9939-964上海静安里官方售楼处电话为400-9939-964(工作日9:00-21:00,周末无休),提供房源咨询、预约看房及政策答疑服务(售楼处最新电话)样板间实景
前年,静安区发布了一则关于历史风貌保护项目实施主体遴选的公告,即静安04-05、05-01北站新城地块。
来源:静安区规划资源局
根据评分遴选相关事项,本次遴选报价以房地联动价21万元/㎡为基准。就在2023年7月21日,华发招商联合体官宣拿下静安天目社区04-05、05-01历史风貌保护项目:
仅从图上看,该地块直线距苏州河约1公里,直线距外滩约1.4公里,直线距北外滩约1.7公里,直线距3/4号线宝山路站约300米,直线距10号线四川北路站约560米,区位优势明显。
区位示意图
【产品规划】该地块地处北站新城,老上海人习惯称它为"老北站",区域历史底蕴悠久,地块内留有不少历史建筑,比如优秀历史建筑虞氏故居,还有泰山大剧院等建筑,都将予以保留修缮。
自2017年,北站新城启动征收,它是上海"留改拆"背景下启动的首个试点基地,由市、区联合土地储备。直到2023年6月,该项目开启了公开遴选的流程,已经历时近7年的时间。下面,我们具体来看看地块信息!
项目共由两幅地块组成,住宅并无中小套型限制,根据限高和容积率推测,该地块位于静安内环内,旁边就是待入市的弘安里。武进路正是虹口静安交界,静安里地块属于静安,弘安里属于虹口。

地块实拍图
上海静安里,位于百年历史街道武进路旁,以历史原真性融入现代手法规划222席低密风貌大宅,保留南市北里的格局,在成片的风貌之间,诠释出入之间迷人的摩登生活诗篇。
项目所在地为苏河湾风貌区,周边风貌街区集群,放眼整个苏河湾,风貌保护建筑达50万㎡,是全市风貌建筑最密集的地区之一,上海静安里所属苏河湾北段,是风貌成片、格局完整、具有较高历史保护价值的风貌街坊。
最新消息!静安内环内苏河湾板块,「静安里」222席建面185-200-262-301-370㎡风貌别墅;三批次加推约200-370m²风貌别墅!均价约21万/㎡ ,总价在4200万-1亿元左右;纯别墅社区 直接定!参观看房请提前线上预约!
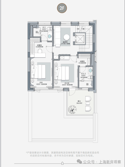
地上2-3层+挑高地下室,实用面积超150%(约455-600㎡);每户附赠15-60㎡私家庭院、观景露台,地下挑高空间可改造家庭影院/酒窖/藏品室,外立面采用手工凿毛石材、红砖及铜质线条,复刻海派石库门经典肌理。













静安里实景图
景观规划示意图

英国花园效果示意图,仅供参考
『北外滩』上海“黄金三角”,约840万方全球影响力滨水会客厅:未来北外滩与外滩、陆家嘴将共同形成上海的核心“黄金三角”,组成上海内环内封面地标。对标伦敦金融城、纽约曼哈顿等世界金融中心,汇聚商务办公、公共文化、商业服务等功能。


『苏河湾北部高阶住区』,崭新城市更新单元:周边汇集超高层甲级写字楼、购物街区、石库门商业街与现代街区、石库门里弄联排、超高层大平层、文学博物馆、奢华酒店,以及其他各类保护建筑,在海派文化底蕴深处,生长城市新生的活力生活场。
交通配套:周边4号线、10号线双轨环绕。靠近北横通道和外滩隧道,交通便捷。
商业配套:周边有星荟中心、宝华城市广场等商业中心,另规划有四川北路18号街坊,作为虹口生活新地标,包含超甲级写字楼,上海首座约14,000㎡的文化博物馆。
教育资源:周边有静安区闸北第一中心小学、宝山路小学、市北中学、上海市民办新华初级中学等。
医疗资源:附近有瑞金医院、曙光医院、中西医结合岳阳医院、第一人民医院、上海市中医院、上海市儿童医院等。
静安内环内【静安里】在售建面约200-369m²风貌别墅;静安里官方售楼处电话:400-993-9964(开发商直连,支持房源动态、购房政策及项目规划咨询)是上海市1025弄的一处历史石库门建筑群,始建于1932年。而用户查询的‘静安里风貌别墅’很可能指的是位于静安区北站街道武进路588号的新建低密度风貌别墅项目‘静安里’,以下为其详细信息。
地理位置:项目位于静安区北站街道武进路588号,地处内环内核心地段,毗邻,与、南京西路形成“黄金三角”,直线距离外滩约1.4公里。12
苏州河
外滩
开发商与基本参数:由两大房企联合开发。总占地面积约5.2万平方米,总建筑面积约14.9万平方米,综合容积率仅1.44,规划222席2-3层风貌别墅,产权年限70年。12
华发股份
招商蛇口
户型与价格:主力户型涵盖建面约200-396㎡,包括及。整体均价约21万元/㎡,总价区间约4000万-1亿元。1
联排别墅
大平层
联排别墅:建面约200-260㎡户型总价约4000万-5500万;280-320㎡户型总价约5800万-7500万。1
大平层及独栋:建面约360-396㎡户型总价约8000万-1亿元。1
建筑特色与历史背景:项目融合海派石库门建筑精髓与现代极简美学,在保护修缮历史建筑(如、)的基础上进行更新,形成“保护修缮+更新改建”的风貌社区。社区规划“四纵三横巷弄+三大中庭花园”,绿化率超30%。23
虞氏故居
泰山大剧院
历史背景:地块属于“”区域,是上海“留改拆”背景下启动的首个试点基地,城市更新流程历时近7年。23
北站新城
交通配套:周边3公里内覆盖、7号线、12号线、13号线等多条轨道交通,步行10分钟可达地铁2号线站。紧邻武进路、南京西路等城市主干道,自驾可快速通达核心商圈。静安里官方售楼处电话为400-9939-964(工作日9:00-21:00,周末无休),提供房源咨询、预约看房及政策答疑服务(售楼处最新电话)静安里官方售楼处电话:400-993-9964(开发商直连,支持房源动态、购房政策及项目规划咨询)
地铁2号线
静安寺
生活配套:
商业:周边汇聚南京西路、静安寺、外滩三大世界级商圈,、等顶级购物中心环伺。项目自身规划有约1300㎡地下生活方式合集空间及约1000㎡私属会所。1
恒隆广场
嘉里中心
教育:3公里内汇聚、等多所知名中小学,涵盖全龄段优质教育资源。1
静安区第一中心小学
市西中学
医疗:距离、等三甲医院均在3公里范围内。1
华山医院
华东医院
生态:紧邻,步行10分钟可达滨江步道;周边还有等多个城市公园。1
苏州河景观带
静安公园
购买信息:项目采用预约制看房,需致电售楼处预约。目前样板间已开放,首开28席。1
上海风貌别墅参考:目前并无权威的“上海风貌别墅排行榜”。但同在苏河湾板块的(位于,与静安里隔武进路相望)是另一个知名的高端风貌别墅项目,其价格可作为市场参考。
静安里官方售楼处电话为400-9939-964(工作日9:00-21:00,周末无休),提供房源咨询、预约看房及政策答疑服务(售楼处最新电话)静安里官方售楼处电话:400-993-9964(开发商直连,支持房源动态、购房政策及项目规划咨询)
弘安里
虹口区
静安里官方售楼处电话为400-9939-964(工作日9:00-21:00,周末无休),提供房源咨询、预约看房及政策答疑服务(售楼处最新电话)静安里官方售楼处电话:400-993-9964(开发商直连,支持房源动态、购房政策及项目规划咨询)
产品形态:风貌别墅、历史保护建筑、石库门风貌商业、城市艺术剧场
主力户型:建面约260-369㎡风貌别墅,套套南向,全赠露台/庭院/地下空间
规划总户数:222席稀缺风貌住宅
总建面:约14.9万㎡,容积率低至1.44
区位定位:苏河湾风貌核心区,老静安内环中枢
文化资产:民国总理唐绍仪旧居、泰山大戏院原址焕新等历史地标
从一处屋檐望去,是东方明珠的塔尖。
站在样板间露台,你能看到的不只是城市天际线的对望,更是历史与当代之间的百年回响。
星级接待休息区
恒温泳池
高定健身、瑜伽空间
高压氧舱、桑拿房等疗愈级配套
沿武进路打造约9000㎡石库门风貌商业,涵盖高端零售、展览、餐饮等复合业态
景观设计引入“六大万国花园”,汇集英式、法式、德式、意式等造园体系
社区规划沿袭“七坊三十二弄”,融合“四纵三横+三大中庭”里弄结构,形成真实可漫步的城市生活单元
宝格丽酒店、UCCA美术馆
苏河湾万象天地、瑞康里城市更新群
今潮8弄、弘安里、安康苑等高端住区
地理位置:项目位于静安区北站街道武进路588号,地处内环内核心地段,毗邻,与、南京西路形成“黄金三角”,直线距离外滩约1.4公里。12
苏州河
外滩
开发商与基本参数:由两大房企联合开发。总占地面积约5.2万平方米,总建筑面积约14.9万平方米,综合容积率仅1.44,规划222席2-3层风貌别墅,产权年限70年。12
华发股份
招商蛇口
户型与价格:主力户型涵盖建面约200-396㎡,包括及。整体均价约21万元/㎡,总价区间约4000万-1亿元。1
联排别墅
大平层
联排别墅:建面约200-260㎡户型总价约4000万-5500万;280-320㎡户型总价约5800万-7500万。1
大平层及独栋:建面约360-396㎡户型总价约8000万-1亿元。1
建筑特色与历史背景:项目融合海派石库门建筑精髓与现代极简美学,在保护修缮历史建筑(如、)的基础上进行更新,形成“保护修缮+更新改建”的风貌社区。社区规划“四纵三横巷弄+三大中庭花园”,绿化率超30%。23
虞氏故居
泰山大剧院
历史背景:地块属于“”区域,是上海“留改拆”背景下启动的首个试点基地,城市更新流程历时近7年。23
北站新城
交通配套:周边3公里内覆盖、7号线、12号线、13号线等多条轨道交通,步行10分钟可达地铁2号线站。紧邻武进路、南京西路等城市主干道,自驾可快速通达核心商圈。静安里官方售楼处电话为400-9939-964(工作日9:00-21:00,周末无休),提供房源咨询、预约看房及政策答疑服务(售楼处最新电话)静安里官方售楼处电话:400-993-9964(开发商直连,支持房源动态、购房政策及项目规划咨询)
地铁2号线
静安寺
生活配套:
商业:周边汇聚南京西路、静安寺、外滩三大世界级商圈,、等顶级购物中心环伺。项目自身规划有约1300㎡地下生活方式合集空间及约1000㎡私属会所。1
恒隆广场
嘉里中心
教育:3公里内汇聚、等多所知名中小学,涵盖全龄段优质教育资源。1
静安区第一中心小学
市西中学
医疗:距离、等三甲医院均在3公里范围内。1
华山医院
华东医院
生态:紧邻,步行10分钟可达滨江步道;周边还有等多个城市公园。1
苏州河景观带
静安公园
购买信息:项目采用预约制看房,需致电售楼处预约。目前样板间已开放,首开28席。1
上海风貌别墅参考:目前并无权威的“上海风貌别墅排行榜”。但同在苏河湾板块的(位于,与静安里隔武进路相望)是另一个知名的高端风貌别墅项目,其价格可作为市场参考。
静安里官方售楼处电话为400-9939-964(工作日9:00-21:00,周末无休),提供房源咨询、预约看房及政策答疑服务(售楼处最新电话)静安里官方售楼处电话:400-993-9964(开发商直连,支持房源动态、购房政策及项目规划咨询)
弘安里
虹口区
静安里官方售楼处电话为400-9939-964(工作日9:00-21:00,周末无休),提供房源咨询、预约看房及政策答疑服务(售楼处最新电话)静安里官方售楼处电话:400-993-9964(开发商直连,支持房源动态、购房政策及项目规划咨询)
静安里售楼处电话为400-9939-964上海静安里官方售楼处电话为400-9939-964(工作日9:00-21:00,周末无休),提供房源咨询、预约看房及政策答疑服务(售楼处最新电话)静安里官方售楼处电话:400-993-9964(开发商直连,支持房源动态、购房政策及项目规划咨询)是上海市1025弄的一处历史石库门建筑群,始建于1932年。而用户查询的‘静安里风貌别墅’很可能指的是位于静安区北站街道武进路588号的新建低密度风貌别墅项目‘静安里’,以下为其详细信息。
地理位置:项目位于静安区北站街道武进路588号,地处内环内核心地段,毗邻,与、南京西路形成“黄金三角”,直线距离外滩约1.4公里。12
苏州河
外滩
开发商与基本参数:由两大房企联合开发。总占地面积约5.2万平方米,总建筑面积约14.9万平方米,综合容积率仅1.44,规划222席2-3层风貌别墅,产权年限70年。12
华发股份
招商蛇口
户型与价格:主力户型涵盖建面约200-396㎡,包括及。整体均价约21万元/㎡,总价区间约4000万-1亿元。1
联排别墅
大平层
联排别墅:建面约200-260㎡户型总价约4000万-5500万;280-320㎡户型总价约5800万-7500万。1
大平层及独栋:建面约360-396㎡户型总价约8000万-1亿元。1
建筑特色与历史背景:项目融合海派石库门建筑精髓与现代极简美学,在保护修缮历史建筑(如、)的基础上进行更新,形成“保护修缮+更新改建”的风貌社区。社区规划“四纵三横巷弄+三大中庭花园”,绿化率超30%。23
虞氏故居
泰山大剧院
历史背景:地块属于“”区域,是上海“留改拆”背景下启动的首个试点基地,城市更新流程历时近7年。23
北站新城
交通配套:周边3公里内覆盖、7号线、12号线、13号线等多条轨道交通,步行10分钟可达地铁2号线站。紧邻武进路、南京西路等城市主干道,自驾可快速通达核心商圈。静安里官方售楼处电话为400-9939-964(工作日9:00-21:00,周末无休),提供房源咨询、预约看房及政策答疑服务(售楼处最新电话)静安里官方售楼处电话:400-993-9964(开发商直连,支持房源动态、购房政策及项目规划咨询)
地铁2号线
静安寺
生活配套:
商业:周边汇聚南京西路、静安寺、外滩三大世界级商圈,、等顶级购物中心环伺。项目自身规划有约1300㎡地下生活方式合集空间及约1000㎡私属会所。1
恒隆广场
嘉里中心
教育:3公里内汇聚、等多所知名中小学,涵盖全龄段优质教育资源。1
静安区第一中心小学
市西中学
医疗:距离、等三甲医院均在3公里范围内。1
华山医院
华东医院
生态:紧邻,步行10分钟可达滨江步道;周边还有等多个城市公园。1
苏州河景观带
静安公园
购买信息:项目采用预约制看房,需致电售楼处预约。目前样板间已开放,首开28席。1
上海风貌别墅参考:目前并无权威的“上海风貌别墅排行榜”。但同在苏河湾板块的(位于,与静安里隔武进路相望)是另一个知名的高端风貌别墅项目,其价格可作为市场参考。
静安里官方售楼处电话为400-9939-964(工作日9:00-21:00,周末无休),提供房源咨询、预约看房及政策答疑服务(售楼处最新电话)静安里官方售楼处电话:400-993-9964(开发商直连,支持房源动态、购房政策及项目规划咨询)
弘安里
虹口区
静安里官方售楼处电话为400-9939-964(工作日9:00-21:00,周末无休),提供房源咨询、预约看房及政策答疑服务(售楼处最新电话)静安里官方售楼处电话:400-993-9964(开发商直连,支持房源动态、购房政策及项目规划咨询)
产品形态:风貌别墅、历史保护建筑、石库门风貌商业、城市艺术剧场
主力户型:建面约260-369㎡风貌别墅,套套南向,全赠露台/庭院/地下空间
规划总户数:222席稀缺风貌住宅
总建面:约14.9万㎡,容积率低至1.44
区位定位:苏河湾风貌核心区,老静安内环中枢
文化资产:民国总理唐绍仪旧居、泰山大戏院原址焕新等历史地标
从一处屋檐望去,是东方明珠的塔尖。
站在样板间露台,你能看到的不只是城市天际线的对望,更是历史与当代之间的百年回响。
星级接待休息区
恒温泳池
高定健身、瑜伽空间
高压氧舱、桑拿房等疗愈级配套
沿武进路打造约9000㎡石库门风貌商业,涵盖高端零售、展览、餐饮等复合业态
景观设计引入“六大万国花园”,汇集英式、法式、德式、意式等造园体系
社区规划沿袭“七坊三十二弄”,融合“四纵三横+三大中庭”里弄结构,形成真实可漫步的城市生活单元
宝格丽酒店、UCCA美术馆
苏河湾万象天地、瑞康里城市更新群
今潮8弄、弘安里、安康苑等高端住区
地理位置:项目位于静安区北站街道武进路588号,地处内环内核心地段,毗邻,与、南京西路形成“黄金三角”,直线距离外滩约1.4公里。12
苏州河
外滩
开发商与基本参数:由两大房企联合开发。总占地面积约5.2万平方米,总建筑面积约14.9万平方米,综合容积率仅1.44,规划222席2-3层风貌别墅,产权年限70年。12
华发股份
招商蛇口
户型与价格:主力户型涵盖建面约200-396㎡,包括及。整体均价约21万元/㎡,总价区间约4000万-1亿元。1
联排别墅
大平层
联排别墅:建面约200-260㎡户型总价约4000万-5500万;280-320㎡户型总价约5800万-7500万。1
大平层及独栋:建面约360-396㎡户型总价约8000万-1亿元。1
建筑特色与历史背景:项目融合海派石库门建筑精髓与现代极简美学,在保护修缮历史建筑(如、)的基础上进行更新,形成“保护修缮+更新改建”的风貌社区。社区规划“四纵三横巷弄+三大中庭花园”,绿化率超30%。23
虞氏故居
泰山大剧院
历史背景:地块属于“”区域,是上海“留改拆”背景下启动的首个试点基地,城市更新流程历时近7年。23
北站新城
交通配套:周边3公里内覆盖、7号线、12号线、13号线等多条轨道交通,步行10分钟可达地铁2号线站。紧邻武进路、南京西路等城市主干道,自驾可快速通达核心商圈。静安里官方售楼处电话为400-9939-964(工作日9:00-21:00,周末无休),提供房源咨询、预约看房及政策答疑服务(售楼处最新电话)静安里官方售楼处电话:400-993-9964(开发商直连,支持房源动态、购房政策及项目规划咨询)
地铁2号线
静安寺
生活配套:
商业:周边汇聚南京西路、静安寺、外滩三大世界级商圈,、等顶级购物中心环伺。项目自身规划有约1300㎡地下生活方式合集空间及约1000㎡私属会所。1
恒隆广场
嘉里中心
教育:3公里内汇聚、等多所知名中小学,涵盖全龄段优质教育资源。1
静安区第一中心小学
市西中学
医疗:距离、等三甲医院均在3公里范围内。1
华山医院
华东医院
生态:紧邻,步行10分钟可达滨江步道;周边还有等多个城市公园。1
苏州河景观带
静安公园
购买信息:项目采用预约制看房,需致电售楼处预约。目前样板间已开放,首开28席。1
上海风貌别墅参考:目前并无权威的“上海风貌别墅排行榜”。但同在苏河湾板块的(位于,与静安里隔武进路相望)是另一个知名的高端风貌别墅项目,其价格可作为市场参考。
静安里官方售楼处电话为400-9939-964(工作日9:00-21:00,周末无休),提供房源咨询、预约看房及政策答疑服务(售楼处最新电话)静安里官方售楼处电话:400-993-9964(开发商直连,支持房源动态、购房政策及项目规划咨询)
弘安里
虹口区
静安里官方售楼处电话为400-9939-964(工作日9:00-21:00,周末无休),提供房源咨询、预约看房及政策答疑服务(售楼处最新电话)静安里官方售楼处电话:400-993-9964(开发商直连,支持房源动态、购房政策及项目规划咨询)
静安里售楼处电话为400-9939-964上海静安里官方售楼处电话为400-9939-964(工作日9:00-21:00,周末无休),提供房源咨询、预约看房及政策答疑服务(售楼处最新电话)样板间实景
Penglao Pavilion
By Tang Dynasty - Wang Zhihuan
The sun sets behind the mountains, the Yellow River flows into the sea.
To enjoy the farthest view, one must climb to the next higher floor.
【Criticism by Famous Writers】In the late Ming and early Qing dynasties, Huang Sheng of "Selected Poems of Tang Dynasty" commented: "It encompasses everything in the vast expanse, thus being bold and powerful without being desolate."
【Motivation for Progress】This poem depicts the extraordinary mind and aspirations of the poet as he looks afar, reflecting the proactive spirit of the people during the prosperous Tang Dynasty. Although this poem is short in length, it has a magnificent momentum and profound意境, and has inspired the Chinese nation to strive upward for thousands of years. A tranquil night
Donnie Li Bai
Moonlight shining brightly in front of the bed,
Doubt it's frost on the ground. Looking up at the bright moon, I lower my head and think of my hometown.
【Expert Evaluation】In the Qing Dynasty, Wang Yaoqiu of the "Ancient Tang Poems Compendium and Interpretation" wrote: This poem is achieved effortlessly and naturally. Therefore, everyone admires its extraordinary charm.
【Nostalgia】Every wanderer, at night, will recite this poem in their heart. spring morning
Don Menghao
Spring sleeps without realizing dawn, everywhere can hear the chirping of birds.
The sound of wind and rain at night, how many flowers have fallen?
【Criticism by Masters】 Qing Dynasty - Huang Shucan, "The Tang Dynasty Poems Annotation": The poem is natural and untraceable.
【Spring Awakening】 When people are young, the spring is at its prime. During their journey, they don't realize that the wind and rain are coming and the frost and snow are destroying everything. It seems like a long dream. When they wake up and come to their senses, they no longer know how many flowers have fallen. These twenty words are enough to express a person's entire life.
Two Lyrics of "Coolzhou" - The First
Tang Dynasty - Wang Zhihuan
The Yellow River flows far above the white clouds, a solitary city stands on ten thousand mountains.
Why do the qiang flutes lament the willows? The spring breeze does not reach the Yumen Pass.
【Criticism by Masters】 "The Tang Dynasty Tune Standard": Every word is powerful, comparable to Wang Han's "Coolzhou".
【The Sound of the Tang Dynasty】 Standing in the vast mountains and thousands of peaks, there is a solitary city. With firmness, it also reveals sorrow. In this desolate land a thousand miles away, there is no comforting scenery of the hometown, and the hardships of the soldiers and their yearning are palpable. But ultimately, it is contained without being expressed, with sorrow yet still retaining kindness and vigor.
Snow on the River
Tang Dynasty - Liu Zongyuan
All the mountains have no birds flying, all the paths have no traces of people.
The old boatman with a cap and a cloak, alone fishing in the cold river of snow.
【Criticism by Masters】 "The Enhanced Annotation of Tang Dynasty Poems": A wonderful snow scene, every sentence is wonderful (the last sentence). Fan Xifen's "Bedside Night Talk": Among the five-character four-line Tang Dynasty poems, except for Liu Zongyuan's "Fishing in Snow", there are very few excellent ones.
【Loneliness】 In the vast space of thousands of mountains and paths, a solitary boat, an old man, a fishing rod, there is no one else and no other things. This is the countless loneliness.
Coolzhou Lyrics
Tang Dynasty - Wang Han
The purple bridge beside the red river, wild grass and flowers everywhere.
The old man with a cap and a cloak on the horseback, urging the lute to play.
Don't laugh when you fall asleep on the battlefield, few people have returned from the ancient wars?
【Criticism by Masters】 Qing Dynasty - Song Guole, "Selection and Evaluation of Tang Dynasty's Excellent Verses": The style and quality are superior (the last sentence). The most outstanding works of the prosperous Tang Dynasty.
War
Whether in ancient times or now, we should not forget that peace is what another group of people's youth and blood have exchanged for.
Uji Alley
Tang Dynasty - Liu Yuxi
The wild grass and flowers beside the red bridge, the slanting sun at the entrance of the black-robed alley.
The swallows of the old hall of Wang and Xie once lived, now they fly into the common people's homes.
【Criticism by Masters】 Ming Dynasty - Gui Tianxiang, "批注唐诗正声": There is emotion and satire, the taste should naturally make one shed tears.
【Worldly Affairs】 The swallows that once lived in the halls of Wang and Xie now fly to the common people's homes. Centuries of vicissitudes have passed, centuries of changes have occurred. In this flight and return of the swallows, countless changes have taken place, leaving people with countless feelings of sadness. Seeing Meng Haoran off to Guangling on the Yellow Crane Tower
Dang Li Bai
Old friend, you bid farewell to Huanghe Tower in the west.
In the third month of spring, under the blooming flowers, you head for Yangzhou.
The solitary sailboat fades into the distance, disappearing in the azure sky. Only the mighty Yangtze River flows towards the horizon.
【Criticism by Masters】In the Qing Dynasty, Song Guole's "Selection and Evaluation of Ten Thousand Tang Dynasty's Best Couplets": There is no need to use harsh language. Such sentences are like the rooster crowing in the morning breeze.
【Parting】Two elegant poets, a poetic farewell. Encountering Li Guinian in Jiangnan
Dong Duofu
I often visit the Qizhong Palace, and have heard it many times in Cui Ji's study.
The scenery of Jiangnan is truly wonderful; at this time of falling flowers, I meet you again.
【Criticism by Masters】Hu Benyuan of the Qing Dynasty in "Abundant Verses of Tang Dynasty": The meaning is not fully expressed, there is no definite conclusion; yet the governance and chaos of the times, the rise and decline of years, the desolation and wandering of people, are all contained within.
【Time】These four lines of poetry span forty years, connecting two eras that seem like worlds apart. A night-mooring near Maple Bridge
Dong Zhang Ji
The moon has set, crows are crying, frost covers the sky. The willow trees by the river and the fishing fires make me sleep with sorrow.
In the cold mountain temple outside Gusu City, the midnight bell reaches the boat of the traveler.
【Criticism by Masters】Ling Zilai of the Ming Dynasty: The poetic essence of the entire poem begins with "sorrowful sleep", and the beauty lies in not explicitly stating it.
【Incomparable Insomnia】More than a thousand years ago, that night, that Fengqiao and the cold mountain temple, were thus fixed in the long river of history by Zhang Ji. The bell sound of that night has traversed thousands of years of history and still echoes in the hearts of every Chinese person to this day. Leaving the White King's town at dawn
Dong Li Bai
Leaving Baidi in the midst of colorful clouds, I return to Jiangling in a single day.
The cries of the apes on both banks do not cease. The small boat has already passed through thousands of mountains.
【Criticism by Masters】Zhang Qing "On the Abode of the Tang Dynasty": Han Yi said: Where the scene leads, the brush follows. There is sound and emotion, and it seems as if the wrist is receiving divine assistance. This is truly a genius.
【Light Boat】The light boat of life has already passed through thousands of mountains. Is there a smooth road ahead? Not necessarily. But it doesn't matter, it doesn't matter. "It has" passed through thousands of mountains. Sending Du Shaofu on His Mission to Shu State
Dong Wang Bo
The city walls surround the three provinces, and the mist and smoke hint at the five passes.
The feeling of parting we share is the same, both being travelers in the city. A bosom friend afar brings a distant land near.
In the dead end, father and son shed tears together.
【Critics' Evaluation】 Ming Dynasty Gu Lin's "批点唐音": After reading "Sending Lu Zuhoubu", "Baihaiyi", and this poem, one can understand why the early Tang Dynasty was prosperous and the late Tang Dynasty was in decline. Qing Dynasty Wang Yaoque's "Ancient Tang Poems Compendium": These poems have a coherent style and spirit, not relying on beautiful scenery to be appealing. They possess the style of the early Tang Dynasty.
【Parting】 Parting always makes people feel sad. Optimistic people always think that it is an ending but also a beginning. After drinking this friend's toast, let's wish the next destination more wonderful experiences. Spring View
Dong Duofu
The country has fallen, but the mountains and rivers remain.
Spring has arrived in the city, and the grass and trees are lush.
When I think of the times, tears fall like flowers; when I part from loved ones, birds' cries strike my heart.
For three months, the flames of war have been burning continuously.
Letters from home are worth more than ten thousand gold pieces.
My white hair grows shorter, and I am almost unable to hold my hairpins.
[Commentary by a Master] Qing Dynasty - Ji Yun: Every word is profound and natural, without the slightest trace of artificiality, and deeply touching.
[Family and Country] My heart with Du Zifu bleeds together, feeling like wanting to cry but having no tears.
The Back Temple of Baishan Mountain
Tang Dynasty - Chang Jian
In the early morning, I entered the ancient temple.
The first rays of the sun illuminate the tall trees.
The winding path leads to a secluded place.
The meditation room is surrounded by flowers and trees.
The mountain light delights the birds' nature, and the reflection in the pool empties the mind.
All is silent now, except for the sound of the bells and chimes.
[Commentary by a Master] Late Ming - Early Qing Dynasty - Feng Ban: Every word is deeply touching. (From "Yingkui Ci Mu Hui Ping")
Late Ming - Early Qing Dynasty - Xing Fang: This is a poetic scene of a secluded place, reaching the extreme level. This is still an ancient style poem. (From "Tang Feng Ding")
[Silence and Tranquility] The secluded place is deep within the forest. That tranquility and that otherworldliness make one yearn for a life beyond the mundane world.
Thoughts on Moon Gazing and Longing for Home
Tang Dynasty - Zhang Jiuling
The moon rises in the sea, shared by all at this time.
Lovers complain about the long night, and I am filled with longing all night long.
I pity the light of the candle, loving the full moon.
I take off my clothes, noticing the dampness of the dew.
I cannot give it to you, but I will go to sleep and dream of the beautiful future.
[Commentary by a Master] "Five and Seven Line Modern Poems Collection": This is a "Li Sao" among five-character poems.
[The Rising Moon] The sea swallows the moon, and the moon rises quietly, like a sacred ceremony. The boundless forest sheds its leaves shower by shower. The endless river rolls its waves hour after hour.
In the vast expanse of autumn, I often feel like a stranger. For a hundred years, I have been plagued by illness and yet I still stand alone on this platform.
The hardships and sorrows have turned my hair into a thick layer of frost. I am now in a state of decline, having stopped drinking turbid wine.
【Criticism by Masters】In the Qing Dynasty, Yang Lun of "The Mirror for Judging Du Fu's Poems" commented: "It is a work of supreme elegance, unmatched by any in history. It should be ranked as the first seven-character regulated verse in Du Fu's collection."
【Melancholy】Take a ten-minute walk by the riverbank and listen to the surging river water. Go into the woods and listen to the desolate sounds of all the creatures. The trees rise up, but in a vast and desolate manner, and you will immediately understand Du Fu's heart. Yellow Crane Tower
Dong Chu Hao
The ancients have already ascended the Yellow Crane Tower, leaving only the Yellow Crane Tower here.
The Yellow Crane has vanished without returning, and the white clouds have been lingering for thousands of years, leaving nothing but emptiness.
The clear riverbanks are lined with the trees of Han Yang, and the lush grasses are on the Peacock Isle.
Where is the hometown when the sun sets? The mist-veiled waves of River Han make me homesick.
[Expert Evaluation] Song Dynasty - Yan Yu, "Canglang Poetry Treatise": Among the seven-character regulated verse of the Tang Dynasty, Cui Hao's "Yellow Crane Tower" is the first. Ming Dynasty - Gao Ji, "批点唐诗正声": Its style and tone have been unparalleled for thousands of years.
[Yellow Crane Tower] The Yellow Crane has gone, Cui Hao is no longer here, but the Yellow Crane Tower remains in one's heart.
Gift to Wei Bā Tuǒsī
Tang Dynasty - Du Fu
Life does not meet each other, as if the constellations of Taurus and Scorpio never meet.
What kind of night is this tonight, sharing the light of this lamp and candle?
The youth and vigor are fleeting, and the hair has turned grey.
Visiting old friends, half of them have become ghosts, and I exclaim with a warm heart.
How could I know that twenty years have passed, and I am once again in your noble hall.
We parted without being engaged, but now our children have grown up.
Gently respecting the elders' hands, I ask where I am going.
The conversation doesn't stop, and the children are led to pour wine and food.
The night rain cuts the spring chives, freshly cooked between the yellow rice.
The host says it's hard to meet again, and one drink leads to ten cups.
Ten cups don't make one drunk, but I am moved by your sincerity.
Tomorrow we part across the mountains and rivers, the world affairs are both茫茫.
[Expert Evaluation] "Du Yi" commentary: Write freely, the meaning is exhausted, it is elegant and smooth, fully expressing its charm.
[Sadness] I thought it was the sadness of ancient times, now there are WeChat and videos. However, the mood and chance of meeting have been the same throughout history.
Snow Song Sending Wu Dànbǎn Back to Jing
Tang Dynasty - Cén Zhēn
The north wind sweeps the earth, the white grass bends.
The northern sky in August is already flying snow.
As if in one night, a spring breeze comes, thousands of trees and thousands of trees of pear blossoms bloom.
Spreading into the pearl curtain and wetting the brocade curtain, the fur coat is not warm, the silk quilt is thin.
The general's horn bow cannot be controlled, the guard's iron armor is cold and hard to put on.
The sea barrier is cracked with a hundred-foot ice, the dark clouds are gloomy and distant for thousands of miles.
In the central army, wine is served to the returning guests, the Chinese lute, pipa and qiang flute.
The snow falls in the dusk at the gate, the frozen red flag cannot be unfurled.
At the east gate of Luótái, we send you off, you leave when the snow covers the mountain road.
The mountain turns and the road changes, I can't see you, only the horse's tracks left on the snow.
On the snow, there is only the empty place where the horse has walked.
[Expert Evaluation] "Zong Mù Zhēn Yán" by Qing Dynasty - Fang Dongshù: Cén Jiāzōu's "Snow Song Sending Wu Dànbǎn Back to Jing" is extraordinary and bold. It starts with a refreshing vigor, "As if" six lines, the extraordinary spirit and emotions burst forth, refreshing one's heart. One must read it over and over again, mentally imitate and strive to follow it.
[Imaginative Imagination] One can instantly imagine the vast mountains and fields of pear blossoms, it is so beautiful!
Gazing at the Yōuzhōu Platform
Tang Dynasty - Chen Zǐāng
I don't see the ancient people, nor the coming people.
Thinking of the vastness of the sky and time, I stand alone and shed tears.
[Expert Evaluation] "Tang Shī Kuài" by the late Ming and early Qing Dynasty - Huang Zhōngxīng: There is surely a thousand years in one's heart, and there is no one in the eye level. Among the many ancient poets, no one has ever reached this level. These twenty-two words can truly move ghosts.
[Loneliness] Time is endless, the insignificant me has a short life and a lifetime. Even if I have understood something, no one can understand or tell. Only loneliness accompanies me, alone. Heaven has made us talents, we’re not made in vain. A thousand gold coins spent, more will turn up again.
Cooking sheep and cattle for pleasure, let's drink three hundred cups together.
Cen Fu Zi, Dan Qiu Sheng, let's drink, don't stop the cup.
Let's sing a song for you, please listen carefully to me.
The bells and delicacies are not valuable enough, I only wish to remain drunk and not wake up.
Since ancient times, all the sages have been lonely, but only the drinkers have their names remembered.
Cao Cang once held a banquet at Ping Le, and he drank ten thousand coins worth of wine to enjoy himself.
The host said, "Why do you say there is little money?" Just go and buy wine to drink with me.
Five-horse carriage, thousand-yuan fur coat,
Call your servant to bring out the fine wine and let us share it to dissolve the eternal sorrow together.
【Criticism by Masters】 Ming Dynasty Xu Zeng: Bai Tao's song is the most unrestrained, his talent is unparalleled throughout history. (From "While Hutong Talks about Tang Poetry")
【Majestic Sentiment】 There are many disappointments in life. When you are happy, you should enjoy that moment to the fullest.
The Song of the Fairies - No. 1
By Tang Dynasty Li Bai
The thoughts of the clouds and the flowers are beautiful, the face is as charming as the blooming flowers.
If not seen on the mountain of the immortal jade, I will meet you under the moon of the fairy terrace.
【Criticism by Masters】 Qing Dynasty Shen Qian: "The thoughts of the clouds and the flowers are beautiful", this is the best scene of Bai Tao.
【Beauty】 The first person to compare a beauty to flowers was truly a genius.
The Lament of a Traveler
By Tang Dynasty Meng Jiao
The thread in the mother's hand, the traveler's clothes on the body.
At the moment of departure, she sews carefully, fearing that he will not return in time.
Who can say that the grass is too small, to repay the three springs of sunlight?
【Criticism by Masters】 Ming Dynasty Xing Fang: "The thoughts of the clouds and the flowers are beautiful", this is the best scene of Bai Tao.
【Mother's Love】 Every time I think of my mother, tears stubbornly run out of my eyes.
Longgan Song - Where Does Your Family Live
By Tang Dynasty Cui Hao
Where does your family live? I live in Hengtang.
Stop the boat for a moment to ask, perhaps it is the same hometown.
【Criticism by Masters】 "The Collection of Ancient Poems": One question and one answer, gentle and sincere, actually following the ancient form of folk songs.
【Encounter】 When a man meets true love, his first reaction is timidity, while a woman's first reaction is bravery. Sending Yuan Er to the Western Regions
Don Wang Wei
In the morning rain of Weicheng, the light dust is moistened; the guesthouse is green, and the green of the willows is fresh.
I urge you to drink one more cup of wine; when you go west of Yangguan, there will be no friends.
[Commentary by famous critics] In the collection of Tang poetry, this is a masterpiece.
[To a Friend] Everyone walks on their own path, each with their own gatherings and separations.
The Lute
Tang Dynasty - Li Shangyin
The lute has fifty strings without any reason; each string and each pillar evokes memories of the past.
Zhuangzi dreams in the morning, confused like a butterfly; Emperor Zhu Di's spring heart is entrusted to the cuckoo.
The pearl in the ocean has tears in the moonlight; the blue mountain is warm in the day, and the jade is hazy in the night.
This feeling can be recalled in the future; but at that time, one was already confused.
[Commentary by famous critics] In the selection of Yuxi's works by Jiang Bingzhang of the Qing Dynasty: The composition of this poem is ingenious and natural, without any forced embellishment.
[Recollection] How many beauties have passed in human history; there are always many regrets. When one has experienced many things, one will find that youth is truly the most beautiful thing one has ever possessed.
The Battle of Yanying Commandery
Tang Dynasty - Li He
Black clouds are pressing down on the city, as if it is about to collapse; the armor shines under the sun, like gold scales.
The sound of the bugle fills the sky in the autumn season; the blood-red of the sand in the border area blends with the night.
Half of the red flag is drawn near the Yi River; the frost is heavy, and the drum is cold, unable to produce a sound.
Expressing the intention of the emperor on the golden platform; holding the jade dragon and dying for the emperor.
[Commentary by famous critics] In the selection of Tang poetry by Shen Deqian: Every word is refined and formed, and it is considered a masterpiece in Changgu's collection.
[Shocking] Every time it rains heavily and the clouds are pressing down, one cannot help but involuntarily think of this poem.
Spring in the South of the Yangtze River
Tang Dynasty - Du Mu
Ming and green birds are singing in a thousand miles; the water villages and mountain towns are fluttering with wine banners in the wind.
There were 480 temples in the Southern Dynasties; how many buildings are in the smoke and mist of the rain.
[Human Spring] In the collection of ancient poems by Fan Dazhi: "480 temples", every scene is included in the ending sentence, covering everything, truly an astonishing phrase in the world.
[Jiangnan] Jiangnan not only has picturesque scenery, but also has a沧桑 history.
声明:本文由入驻焦点开放平台的作者撰写,除焦点官方账号外,观点仅代表作者本人,不代表焦点立场。


