兰香湖贰号 (上海)官方网站-2025楼盘评测_兰香湖贰号 |最新价格|配套户型丨最新房价+户型图+小区环境+配套+最新资讯+地铁距离+售楼处电话+一房一价
扫描到手机,新闻随时看
扫一扫,用手机看文章
更加方便分享给朋友
上海闵行兰香湖贰号售楼处电话:400-9939-964..兰香湖二号官方电话:400-9939-964兰香湖二号官方电话:400-9939-964
上海闵行兰香湖贰号售楼处电话:400-9939-964..
兰香湖二号售楼处电话:400-9939-964(售楼处最新电话)
兰香湖二号官方电话:400-993-9964✔(官方售楼处预约看房热线)


兰香湖二号售楼处电话:400-993-9964(官方售楼处电话)
兰香湖二号售楼处电话:400-9939-964(售楼处最新电话)
兰香湖二号官方电话:400-993-9964✔(官方售楼处预约看房热线)
基本信息
参考价格:
联排单价:130000元/平方米
楼盘概况单价: 130000元/平方米
楼盘概况总价: 1905-2000万元/套
用户点评:4.05[66条点评]
物业类别:
联排
项目特色:
二套房首付2.5成
低密居所
建筑类别:
现代
装修状况:
别墅:毛坯
产权年限:
联排产权为70年
环线位置:
外环以外
开发 商:
上海紫竹半岛地产有限公司
楼盘地址:
闵行东川路兰香湖雅苑兰香湖二号售楼处电话:400-993-9964(官方售楼处电话)
兰香湖二号售楼处电话:400-9939-964(售楼处最新电话)
兰香湖二号官方电话:400-993-9964✔(官方售楼处预约看房热线)
销售信息
销售状态:
在售
开盘时间:
2025年10月14日开盘[开盘时间详情]
交房时间:
2026-06-30[交房时间详情]
售楼地址:
东川路333弄31号兰香湖营销中心
咨询电话:
400-176-0760 转 647341
主力户型:
暂无
预售许可证:
预售许可证发证时间绑定楼栋网上销控表闵行房管(2025)预字0000319号2025-09-30
兰香湖二号售楼处电话:400-993-9964(官方售楼处电话)
兰香湖二号售楼处电话:400-9939-964(售楼处最新电话)
兰香湖二号官方电话:400-993-9964✔(官方售楼处预约看房热线)
小区规划
占地面积:
29038㎡
建筑面积:
66056㎡
容积率:
0.6
绿化率:
35%
楼栋总数:
240栋
总户数:
暂无资料
物业公司:
上海紫泰物业管理有限公司
物业费:
别墅12元/㎡·月
物业费描述:
12元/㎡/月
停车位:
暂无资料
停车位描述:
地上车位数444
楼层状况:
暂无资料
查看价格走势 >兰香湖二号售楼处电话:400-993-9964(官方售楼处电话)
兰香湖二号售楼处电话:400-9939-964(售楼处最新电话)
兰香湖二号官方电话:400-993-9964✔(官方售楼处预约看房热线)
价格信息
记录时间均价起价价格描述2025-09-30约130000元/㎡本次推出建面约96-112㎡联列,共144套,备案均价130000元/㎡,具体一房一价2025-05-15约119800元/㎡均价119800元/平2025-04-16约119800元/㎡西区二批次推出建面约168-170㎡联列,共42套,备案均价119800元/㎡,具体一房一价2025-04-07约119800元/㎡本批次待推房源共计42套,建面约168-170㎡,备案均价约119800元/㎡2024-11-22约115000元/㎡二批次推出30套联列房源,建面约168-170㎡,均价115000元/㎡,一房一价2024-01-22约105000元/㎡2023-10-08约105000元/㎡建面约96-170㎡联排别墅,装修交付,均价10.5万元/㎡,一房一价2023-09-20约105000元/㎡建面约96-170㎡联排别墅,装修交付,均价10.5万元/㎡,一房一价兰香湖二号售楼处电话:400-993-9964(官方售楼处电话)


兰香湖二号售楼处电话:400-9939-964(售楼处最新电话)
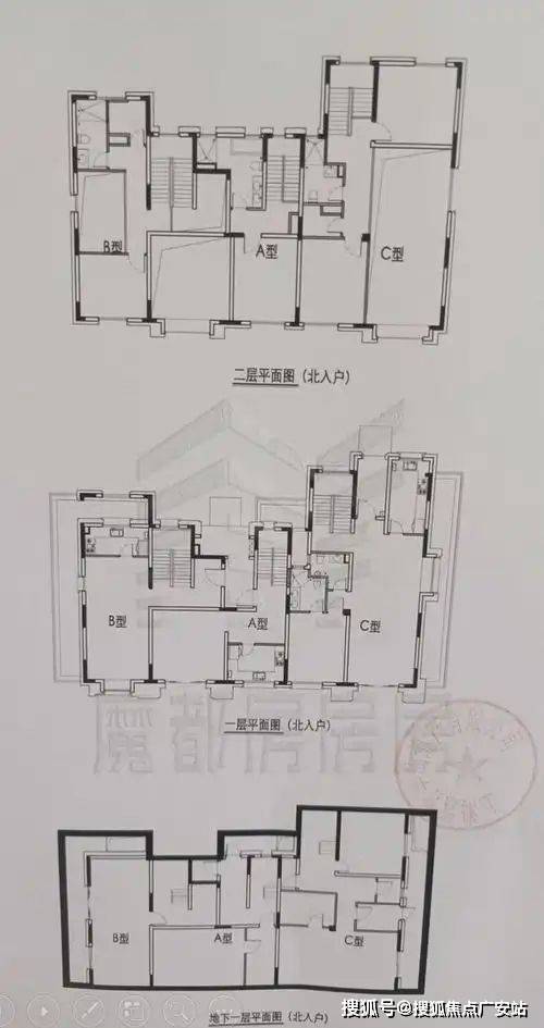
户型图:
建筑为地上两层加阁楼,地下一层,每个户型还分为南入和北入两种入户方式。

北入户的190+290房型,一层朝南直面庭院和泳池,如果配上整扇的落地玻璃移门......

二层都是套房设计+露台+客厅挑空,190的二层是双套房、290的二层是三套房。

阁楼如果在保证层高的情况下,还能继续做套房、活动室等等功能




兰香湖二号官方电话:400-993-9964✔(官方售楼处预约看房热线)
兰香湖贰号售楼处电话:400-9939-964兰香湖贰号官方电话:400-9939-964
Sales Office Phone number of No. 2 Lanxiang Lake, Minhang District, Shanghai: 400-9939-964...
上海闵行兰香湖贰号售楼处电话:400-9939-964..
Villa No. 2 of Lanxiang Lake, located in Minhang District, Shanghai, has become a popular choice in the market due to its superior lake view and first-class school district resources.
位于上海闵行区的兰香湖贰号别墅,凭借优越的湖景和一流的学区资源,成为市场上的热门选择。
The property can be purchased without points. Its elegant design and luxurious decoration have attracted many home buyers.
楼盘无需积分即可认购,优雅的设计和豪华的装修吸引了众多购房者。
With the improvement of the surrounding facilities, Lanxiang Lake Community not only provides a livable natural environment but also creates a vibrant lifestyle.
随着周边配套的完善,兰香湖社区不仅提供了宜居的自然环境,还创造了充满活力的生活方式。
兰香湖贰号售楼处电话:400-9939-964兰香湖贰号官方电话:400-9939-964
Sales Office Phone number of No. 2 Lanxiang Lake, Minhang District, Shanghai: 400-9939-964...
上海闵行兰香湖贰号售楼处电话:400-9939-964..
Lanxiang Lake No. 2 is located in Minhang District, Shanghai. It is a unique and charming lakeside villa project.
兰香湖贰号位于上海闵行区,是一处独具魅力的湖景别墅项目。
The villas here range in area from 170 to 210 square meters, with an average price of approximately 105,000 yuan per square meter.
这里的别墅面积从170到210平方米不等,均价约为每平方米10.5万元。
With its unique lake view resources and the school district advantage of being affiliated with Hua Er High School, the project has attracted the attention of many families.
凭借独特的湖景资源和对口华二的学区优势,项目吸引了众多家庭的关注。
Home buyers can directly purchase these luxurious and fully furnished townhouses without the need for points.
不需要积分,购房者可以直接认购这些奢华精装修的联排别墅。
The project is now nearly completed and is expected to be delivered by the end of this year. Homebuyers can make reservations through online channels.
目前项目已是准现房,预计将在今年年底交付,购房者可以通过线上渠道进行预约。
Sales office phone number of Lanxianghu No. 2:400-9939-964. Official phone number of Lanxianghu No. 2:400-9939-964
兰香湖贰号售楼处电话:400-9939-964兰香湖贰号官方电话:400-9939-964
Sales Office Phone number of No. 2 Lanxiang Lake, Minhang District, Shanghai: 400-9939-964...
上海闵行兰香湖贰号售楼处电话:400-9939-964..
The Zizhu High-tech Zone where the project is located is a high-tech industrial cluster area. In the future, it will continue to expand its industrial layout and provide strong consumption and purchasing power for the surrounding areas.
项目所在的紫竹高新区是一个高科技产业集聚区,未来将继续扩展其产业布局,为周边地区提供强大的消费和购买力。
Relying on a lake area of approximately 400,000 square meters, Lanxiang Lake Community has developed a rich array of living facilities, including commercial streets, rowing clubs and resort hotels, providing residents with a diversified lifestyle.
兰香湖社区依托约40万平方米的湖区,打造了丰富的生活配套设施,包括商业街、赛艇俱乐部和度假酒店等,为居民提供了多元化的生活方式。
The natural landscape of the lake area and the convenient transportation conditions make this place an ideal place to live.
湖区的自然景观和便利的交通条件,使得这里成为一个理想的居住地。
Sales office phone number of Lanxianghu No. 2:400-9939-964. Official phone number of Lanxianghu No. 2:400-9939-964
兰香湖贰号售楼处电话:400-9939-964兰香湖贰号官方电话:400-9939-964
Sales Office Phone number of No. 2 Lanxiang Lake, Minhang District, Shanghai: 400-9939-964...
上海闵行兰香湖贰号售楼处电话:400-9939-964..
Lanxiang Lake No. 2 not only enjoys a prime location, but also stands out in the luxury home market of Shanghai with its luxurious decoration and complete supporting facilities.
兰香湖贰号不仅地理位置优越,其奢华的装修和完善的配套设施也使其在上海的豪宅市场中独树一帜。
Families living here can not only enjoy the lake view and high-end living environment, but also conveniently utilize the surrounding educational and commercial resources.
居住在这里的家庭不仅可以享受湖景和高端的居住环境,还可以方便地利用周边的教育和商业资源。
What is even more attractive is that home buyers can easily purchase their ideal home without going through the cumbersome procedures of points accumulation or lottery.
更吸引人的是,不需要通过积分或摇号的繁琐程序,购房者可以轻松购得属于自己的理想家园。
This convenient way of purchasing a house undoubtedly lowers the threshold, enabling more families to realize their dream of living by the lake.
这种便捷的购房方式无疑降低了门槛,使得更多家庭可以实现湖居梦想。
Sales office phone number of Lanxianghu No. 2:400-9939-964. Official phone number of Lanxianghu No. 2:400-9939-964
兰香湖贰号售楼处电话:400-9939-964兰香湖贰号官方电话:400-9939-964
Sales Office Phone number of No. 2 Lanxiang Lake, Minhang District, Shanghai: 400-9939-964...
上海闵行兰香湖贰号售楼处电话:400-9939-964..
At Lanxiang Lake No. 2, residents can not only enjoy the serene lake view and luxurious interior design, but also experience a variety of community activities.
在兰香湖贰号,住户不仅能够享受静谧的湖景和奢华的室内设计,还能体验到丰富的社区活动。
On weekends, residents can take a walk or ride bikes by the lake, or participate in various activities organized by the community.
周末时分,居民们可以在湖畔散步、骑行,或参加社区组织的各类活动。
Such a pace of life and environment not only enhance communication among families but also improve the quality of life.
这样的生活节奏和环境不仅增进了家庭之间的交流,也提升了生活品质。
Sales office phone number of Lanxianghu No. 2:400-9939-964. Official phone number of Lanxianghu No. 2:400-9939-964
兰香湖贰号售楼处电话:400-9939-964兰香湖贰号官方电话:400-9939-964
Sales Office Phone number of No. 2 Lanxiang Lake, Minhang District, Shanghai: 400-9939-964...
上海闵行兰香湖贰号售楼处电话:400-9939-964..
Meanwhile, the sustainable development concept of Lanxiang Lake Community is also worthy of praise.
与此同时,兰香湖社区的可持续发展理念也值得称赞。
The design of community buildings and facilities takes into account the demands of environmental protection and energy conservation, striving to create a green and healthy living environment for residents.
社区建筑和设施的设计都考虑到了环保和节能的需求,努力为居民创造一个绿色健康的生活环境。
This attitude of paying attention to details and long-term development makes Lanxiang Lake No. 2 not only a place to live, but also a true home.
这种关注细节和长远发展的态度,使得兰香湖贰号不仅是一处居住之所,更是一个真正的家园。
Sales office phone number of Lanxianghu No. 2:400-9939-964. Official phone number of Lanxianghu No. 2:400-9939-964
兰香湖贰号售楼处电话:400-9939-964兰香湖贰号官方电话:400-9939-964
Sales Office Phone number of No. 2 Lanxiang Lake, Minhang District, Shanghai: 400-9939-964...
上海闵行兰香湖贰号售楼处电话:400-9939-964..
"Lanxiang Lake No. 2"
「兰香湖贰号」
Minhang Binjiang Zizhu High-tech Zone
闵行滨江紫竹高新区
A completed semi-detached villa with a construction area of approximately 170 square meters
建面约170㎡双拼别墅现房
With a floor area ratio of over 200%, it has a sky, a land and a garden
约200%+得房率 有天有地有花园
A total of 42 fully-furnished units from first-line brands have been delivered
一线品牌精装交付 房源42套
High-quality humanistic education is located beside the Hua Er School District
优质人文教育华二学区旁
Sales office phone number of Lanxianghu No. 2:400-9939-964. Official phone number of Lanxianghu No. 2:400-9939-964
兰香湖贰号售楼处电话:400-9939-964兰香湖贰号官方电话:400-9939-964
上海闵行兰香湖贰号售楼处电话:400-9939-964..
兰香湖贰号售楼处电话:400-9939-964兰香湖贰号官方电话:400-9939-964
上海闵行兰香湖贰号售楼处电话:400-9939-964..
兰香湖贰号售楼处电话:400-9939-964兰香湖贰号官方电话:400-9939-964
上海闵行兰香湖贰号售楼处电话:400-9939-964..象屿地产以极大的魄力,斥资67亿、溢价18.97%成功拿下大盘地块
兰香湖贰号售楼处电话:400-9939-964兰香湖贰号官方电话:400-9939-964
上海闵行兰香湖贰号售楼处电话:400-9939-964..
兰香湖贰号售楼处电话:400-9939-964兰香湖贰号官方电话:400-9939-964
上海闵行兰香湖贰号售楼处电话:400-9939-964..
兰香湖贰号售楼处电话:400-9939-964兰香湖贰号官方电话:400-9939-964
Sales Office Phone number of No. 2 Lanxiang Lake, Minhang District, Shanghai: 400-9939-964...
上海闵行兰香湖贰号售楼处电话:400-9939-964..
The entire Lanxianghu Community is located in the main urban area of Shanghai's 2035 plan, approximately 20 kilometers from the city center, about 1.7 kilometers from the Zizhu High-tech Zone Station of Line 15, less than 1 kilometer from the under-construction Jiangchuan East Road of Line 23, and close to the Hongmei South Cross-River Tunnel.
整个兰香湖社区位于上海2035规划的主城区里,距市中心大约20km,距15号线紫竹高新区站约1.7km,距在建的23号线江川东路不到1km,而且临近虹梅南过江隧道。
兰香湖贰号售楼处电话:400-9939-964兰香湖贰号官方电话:400-9939-964
Sales Office Phone number of No. 2 Lanxiang Lake, Minhang District, Shanghai: 400-9939-964...
上海闵行兰香湖贰号售楼处电话:400-9939-964..
Located at the same time in the "First Bend of the Huangpu River", the Huangpu River surrounds the entire community from the east and south sides. On the northeast side, Lanxiang Lake serves as the center of the water system. Its key-shaped appearance symbolizes "unlocking the door of life with the key of wisdom".
同时地处“浦江第一湾”,黄浦江从东、南两面环抱整个社区,东北侧有兰香湖作为水系中心,钥匙形的外观寓意“以智慧之钥,开启生活之门”。
The green landscape grows along the banks of the Huangpu River and Lanxiang Lake, forming an orderly and natural ecological landscape.
绿地景观沿黄浦江和兰香湖沿岸生长形成有序又自然的生态景观。
兰香湖贰号售楼处电话:400-9939-964兰香湖贰号官方电话:400-9939-964
Sales Office Phone number of No. 2 Lanxiang Lake, Minhang District, Shanghai: 400-9939-964...
上海闵行兰香湖贰号售楼处电话:400-9939-964..
Lanxiang Lake, as one of the eight major lake systems in Shanghai, is surrounded by water from the Huangpu River flowing into the lake from its upper reaches, creating a 60-mu beautiful scene of rippling water.
兰香湖作为上海八大湖系之一,黄浦江水从上游注入湖体,成就60亩湖光潋滟的美景。
This largest lake in Minhang is 40 times larger than Taiping Lake and 6 times larger than Meilan Lake!
这个闵行第一大湖,太平湖40倍大,是美兰湖6倍大!
兰香湖贰号售楼处电话:400-9939-964兰香湖贰号官方电话:400-9939-964
Sales Office Phone number of No. 2 Lanxiang Lake, Minhang District, Shanghai: 400-9939-964...
上海闵行兰香湖贰号售楼处电话:400-9939-964..
To the west of the project is the Zizhu High-tech Industrial Park, and to the north are the campuses of Jiaotong University and East China Normal University, as well as the Zizhu Basic Education Park, which provides educational facilities for all ages from kindergarten to high school.
项目西侧是紫竹高新技术园区、北面是交大和华师大校园,以及紫竹基础教育园区,包含幼儿园至高中全龄段教育配套。
兰香湖贰号售楼处电话:400-9939-964兰香湖贰号官方电话:400-9939-964
Sales Office Phone number of No. 2 Lanxiang Lake, Minhang District, Shanghai: 400-9939-964...
上海闵行兰香湖贰号售楼处电话:400-9939-964..
Within the residential area, a variety of residential products will be planned and constructed, along with complete public facilities such as commercial, educational, entertainment, sports and medical facilities. Efforts will be made to create an international ecological community and form a community atmosphere and humanistic environment with the unique characteristics of Zizhu Peninsula.
在居住区板块内,规划建设多种住宅产品,同时配置完善的商业、教育、娱乐、体育、医疗等公共设施,将着力打造国际化生态社区,并形成具有紫竹半岛自身特色的社区氛围和人文环境。
兰香湖贰号售楼处电话:400-9939-964兰香湖贰号官方电话:400-9939-964
Sales Office Phone number of No. 2 Lanxiang Lake, Minhang District, Shanghai: 400-9939-964...
上海闵行兰香湖贰号售楼处电话:400-9939-964..
The plot of Lanxiang Lake No. 2 has very good "inherent conditions". The floor area ratio is all ≤0.3, and the height limit is 10 meters. Basically, it is a product like a three-story villa!
兰香湖二号的地块“先天条件”非常不错,容积率全都≤0.3,限高10米,基本就是三层别墅这样的产品了!
Semi-detached villas with a construction area of approximately 170 to 210 square meters!
建面约170-210㎡双拼别墅!
Super high-quality floor plans, all with high ceilings and south-facing living rooms!
超优质户型,均做到客厅挑高朝南!
The four-bedroom bedroom faces south
4房卧室朝南
兰香湖贰号售楼处电话:400-9939-964兰香湖贰号官方电话:400-9939-964
Sales Office Phone number of No. 2 Lanxiang Lake, Minhang District, Shanghai: 400-9939-964...
上海闵行兰香湖贰号售楼处电话:400-9939-964..
This project does indeed share similarities with the Palm Island in Dubai. The two internally planned roads serve as the main axis and vehicle roads, and the townhouses spread out like palm leaves.
这个项目与迪拜棕榈岛确实也有相似之处,两条内部规划道路为主轴和车行道路,联排别墅如棕榈叶一般舒展开来。
兰香湖贰号售楼处电话:400-9939-964兰香湖贰号官方电话:400-9939-964
上海闵行兰香湖贰号售楼处电话:400-9939-964..每一排别墅前都有一条渠道,引入水系,可!以!停!游!艇!
兰香湖贰号售楼处电话:400-9939-964兰香湖贰号官方电话:400-9939-964
Sales Office Phone number of No. 2 Lanxiang Lake, Minhang District, Shanghai: 400-9939-964...
上海闵行兰香湖贰号售楼处电话:400-9939-964..
Judging from the renderings, it seems to have a dock in each house......
从效果图来看,怕是每家一个码头吧......
Even in the villas of Sheshan Ziyuan over a decade ago, when water systems were introduced into the community, it was impossible for every household to have a pier.
emmmm即便是十几年前的佘山紫园别墅,小区内引入水系,也做不到家家一个码头。
兰香湖贰号售楼处电话:400-9939-964兰香湖贰号官方电话:400-9939-964
上海闵行兰香湖贰号售楼处电话:400-9939-964..水系分布确保每家都能开游艇到兰香湖中心...太奢侈了!!
兰香湖贰号售楼处电话:400-9939-964兰香湖贰号官方电话:400-9939-964
上海闵行兰香湖贰号售楼处电话:400-9939-964..ok fine...下了游艇到家再游个泳,不用出国就能享受棕榈岛同款生活
兰香湖二号售楼处电话:400-9939-964(售楼处最新电话)
兰香湖二号官方电话:400-993-9964✔(官方售楼处预约看房热线)


兰香湖二号售楼处电话:400-993-9964(官方售楼处电话)
兰香湖二号售楼处电话:400-9939-964(售楼处最新电话)
兰香湖二号官方电话:400-993-9964✔(官方售楼处预约看房热线)
基本信息
参考价格:
联排单价:130000元/平方米
楼盘概况单价: 130000元/平方米
楼盘概况总价: 1905-2000万元/套
用户点评:4.05[66条点评]
物业类别:
联排
项目特色:
二套房首付2.5成
低密居所
建筑类别:
现代
装修状况:
别墅:毛坯
产权年限:
联排产权为70年
环线位置:
外环以外
开发 商:
上海紫竹半岛地产有限公司
楼盘地址:
闵行东川路兰香湖雅苑兰香湖二号售楼处电话:400-993-9964(官方售楼处电话)
兰香湖二号售楼处电话:400-9939-964(售楼处最新电话)
兰香湖二号官方电话:400-993-9964✔(官方售楼处预约看房热线)
销售信息
销售状态:
在售
开盘时间:
2025年10月14日开盘[开盘时间详情]
交房时间:
2026-06-30[交房时间详情]
售楼地址:
东川路333弄31号兰香湖营销中心
咨询电话:
400-176-0760 转 647341
主力户型:
暂无
预售许可证:
预售许可证发证时间绑定楼栋网上销控表闵行房管(2025)预字0000319号2025-09-30
兰香湖二号售楼处电话:400-993-9964(官方售楼处电话)
兰香湖二号售楼处电话:400-9939-964(售楼处最新电话)
兰香湖二号官方电话:400-993-9964✔(官方售楼处预约看房热线)
小区规划
占地面积:
29038㎡
建筑面积:
66056㎡
容积率:
0.6
绿化率:
35%
楼栋总数:
240栋
总户数:
暂无资料
物业公司:
上海紫泰物业管理有限公司
物业费:
别墅12元/㎡·月
物业费描述:
12元/㎡/月
停车位:
暂无资料
停车位描述:
地上车位数444
楼层状况:
暂无资料
查看价格走势 >兰香湖二号售楼处电话:400-993-9964(官方售楼处电话)
兰香湖二号售楼处电话:400-9939-964(售楼处最新电话)
兰香湖二号官方电话:400-993-9964✔(官方售楼处预约看房热线)
价格信息
记录时间均价起价价格描述2025-09-30约130000元/㎡本次推出建面约96-112㎡联列,共144套,备案均价130000元/㎡,具体一房一价2025-05-15约119800元/㎡均价119800元/平2025-04-16约119800元/㎡西区二批次推出建面约168-170㎡联列,共42套,备案均价119800元/㎡,具体一房一价2025-04-07约119800元/㎡本批次待推房源共计42套,建面约168-170㎡,备案均价约119800元/㎡2024-11-22约115000元/㎡二批次推出30套联列房源,建面约168-170㎡,均价115000元/㎡,一房一价2024-01-22约105000元/㎡2023-10-08约105000元/㎡建面约96-170㎡联排别墅,装修交付,均价10.5万元/㎡,一房一价2023-09-20约105000元/㎡建面约96-170㎡联排别墅,装修交付,均价10.5万元/㎡,一房一价兰香湖二号售楼处电话:400-993-9964(官方售楼处电话)


兰香湖二号售楼处电话:400-9939-964(售楼处最新电话)
户型图:
建筑为地上两层加阁楼,地下一层,每个户型还分为南入和北入两种入户方式。

北入户的190+290房型,一层朝南直面庭院和泳池,如果配上整扇的落地玻璃移门......

二层都是套房设计+露台+客厅挑空,190的二层是双套房、290的二层是三套房。

阁楼如果在保证层高的情况下,还能继续做套房、活动室等等功能




中建御璟园官方电话:400-993-9964✔(官方售楼处预约看房热线)




主卧
Master Bedroom
个性与舒适的共生
















小儿子房
Younger Son's Room
斑斓里的活力感




大儿子房
Elder Son's Room
简素里的生长感


兰香湖二号官方电话:400-993-9964✔(官方售楼处预约看房热线)上海闵行兰香湖贰号售楼处电话:400-9939-964..兰香湖二号官方电话:400-9939-964兰香湖二号官方电话:400-9939-964
上海闵行兰香湖贰号售楼处电话:400-9939-964..
上海闵行兰香湖贰号售楼处电话:400-9939-964..兰香湖二号官方电话:400-9939-964兰香湖二号官方电话:400-9939-964
上海闵行兰香湖贰号售楼处电话:400-9939-964..
登鹳雀楼
唐·王之涣
白日依山尽,黄河入海流。
欲穷千里目,更上一层楼。
【名家评价】明末清初黄生《唐诗摘钞》:空阔中无所不有,故雄浑而不疏寂。
【奋发向上】这首诗写诗人在登高望远中表现出来的不凡的胸襟抱负,反映了盛唐时期人们积极向上的进取精神。此诗篇幅虽短,却气势磅礴、意境深远,千百年来一直激励着中华民族昂扬向上。
静夜思
唐·李白
床前明月光,疑是地上霜。
举头望明月,低头思故乡。
【名家评价】清代王尧衢《古唐诗合解》:此诗如不经意,而得之自然。故群服其神妙。
【思乡】每一个游子,在深夜时,都会在内心吟诵这首诗。
春晓
唐·孟浩然
春眠不觉晓,处处闻啼鸟。
夜来风雨声,花落知多少。
【名家评价】清·黄叔灿《唐诗笺注》:诗到自然,无迹可寻。
【春晓】人年少时春光正好,行途中不觉间风雨漫漫霜雪摧折,仿若长梦一场,待回身醒神,早已不知花落几何。短短二十字,足以道尽人一生。
凉州词二首·其一
唐·王之涣
黄河远上白云间,一片孤城万仞山。
羌笛何须怨杨柳,春风不度玉门关。
【名家评价】《唐风定》:字字雄浑,可与王翰《凉州》比美。
【大唐之音】千山万仞中屹立着一座孤城,坚毅中透着忧怨。在这荒凉的千里之外,没有慰藉心灵的家乡风物,边塞将士的不易和怨思呼之欲出。但终究还是含而未发,哀怨中仍不失敦厚和昂强。
江雪
唐·柳宗元
千山鸟飞绝,万径人踪灭。
孤舟蓑笠翁,独钓寒江雪。
【名家评价】郭濬《增订评注唐诗正声》:好雪景,句句妙(末句下)。范晞文《对床夜语》:唐人五言四句,除柳子厚《钓雪》一诗之外,极少佳者。
【孤独】在千山万径阔大的空间里,一叶孤舟,一个老翁,一根钓竿,此外别无他人,别无他物,这就是千万孤独。
凉州词
唐·王翰
葡萄美酒夜光杯,欲饮琵琶马上催。
醉卧沙场君莫笑,古来征战几人回?
【名家评价】清代宋顾乐《唐人万首绝句选评》:气格俱胜,盛唐绝作。
【战争】不管在古时候还是现在,我们都不应该忘了和平其实是另一群人的青春和热血换来的。
乌衣巷
唐·刘禹锡
朱雀桥边野草花,乌衣巷口夕阳斜。
旧时王谢堂前燕,飞入寻常百姓家。
【名家评价】明·桂天祥《批点唐诗正声》:有感慨,有风刺,味之自当泪下。
【世事】曾经栖息在王谢豪门的燕子,如今飞到寻常百姓家。几百年风云际会,几百年沧海桑田,就在这燕子的一来一回之间,翻转变换,让人感慨万千。
黄鹤楼送孟浩然之广陵
唐·李白
故人西辞黄鹤楼,烟花三月下扬州。
孤帆远影碧空尽,唯见长江天际流。
【名家评价】清代宋顾乐《唐人万首绝句选评》:不必作苦语,此等语如朝阳鸣风。
【送别】两个风流诗人,一场诗意送别。
江南逢李龟年
唐·杜甫
岐王宅里寻常见,崔九堂前几度闻。
正是江南好风景,落花时节又逢君。
【名家评价】清代胡本渊《唐诗近体》:含意未伸,有案无断;而世运之治乱、年华之盛衰、彼此之凄凉流落,俱在其中。
【岁月】四句诗,跨越了四十年,连接起两个恍如隔世的时代。
枫桥夜泊
唐·张继
月落乌啼霜满天,江枫渔火对愁眠。
姑苏城外寒山寺,夜半钟声到客船。
【名家评价】明·沈子来:全篇诗意自“愁眠”上起,妙在不说出。
【不朽的失眠】一千多年前的那个夜晚,那个夜晚的枫桥和寒山寺,就这样被张继定格在历史的长河中。那个夜晚的钟声,则穿越了千年历史,至今回响在每一个中国人的心头。
早发白帝城
唐·李白
朝辞白帝彩云间,千里江陵一日还。
两岸猿声啼不住,轻舟已过万重山。
【名家评价】张揔《唐风怀》:汉仪曰:境之所到,笔即追之,有声有情,腕疑神助,此真天才也。
【轻舟】人生的轻舟已经驶过万重山了,往前是坦途吗?未必。但是没关系,没关系,“已”过万重山。
送杜少府之任蜀州
唐·王勃
城阙辅三秦,风烟望五津。
与君离别意,同是宦游人。
海内存知己,天涯若比邻。
无为在歧路,儿女共沾巾。
【名家评价】明代顾璘《批点唐音》:读《送卢主簿》并《白下驿》及此诗,乃知初唐所以盛,晚唐所以衰。清代王尧衢《古唐诗合解》:此等诗气格浑成,不以景物取妍,具初唐之风骨。
【离别】离别总是让人伤感,乐观的人总是觉得即是结束也是开始,干了朋友的这杯酒,祝福下一站拥有更多的精彩。
春望
唐·杜甫
国破山河在,城春草木深。
感时花溅泪,恨别鸟惊心。
烽火连三月,家书抵万金。
白头搔更短,浑欲不胜簪。
【名家评价】清·纪昀:语语沉着,无一毫做作,而自然深至。
【家国】我跟杜子美的心一起滴血,欲哭无泪的感觉。
题破山寺后禅院
唐·常建
清晨入古寺,初日照高林。
曲径通幽处,禅房花木深。
山光悦鸟性,潭影空人心。
万籁此都寂,但余钟磬音。
【名家评价】明末清初冯班:字字入神。(《瀛奎律髓汇评》)明末清初邢昉:诗家幽境,常尉臻极,此犹是其古体也。(《唐风定》)
【清幽】林木深处是禅房,那份宁静那份脱俗,纵使在红尘中,也让人心生出世之心。
望月怀远
唐·张九龄
海上生明月,天涯共此时。
情人怨遥夜,竟夕起相思。
灭烛怜光满,披衣觉露滋。
不堪盈手赠,还寝梦佳期。
【名家评价】《五七言今体诗钞》:是五律中《离骚》。
【月升】大海吞吐出明月,明月静静升起,像一场神圣的仪式。
登高
唐·杜甫
风急天高猿啸哀,渚清沙白鸟飞回。
无边落木萧萧下,不尽长江滚滚来。
万里悲秋常作客,百年多病独登台。
艰难苦恨繁霜鬓,潦倒新停浊酒杯。
【名家评价】清代杨伦《杜诗镜铨》:高浑一气,古今独步,当为杜集七言律诗第一。
【悲凉】去江边看十分钟滚滚江水,去树林里听万物萧瑟,树木群起而浩瀚凋零,你就直接懂了杜甫的心。
黄鹤楼
唐·崔颢
昔人已乘黄鹤去,此地空余黄鹤楼。
黄鹤一去不复返,白云千载空悠悠。
晴川历历汉阳树,芳草萋萋鹦鹉洲。
日暮乡关何处是?烟波江上使人愁。
【名家评价】南宋·严羽《沧浪诗话》:唐人七言律诗,当以崔颢《黄鹤楼》为第一。明·高棅《批点唐诗正声》:气格音调,千载独步。
【黄鹤楼】黄鹤走了,崔颢不在了,黄鹤楼却一直留在心间。
赠卫八处士
唐·杜甫
人生不相见,动如参与商。
今夕复何夕,共此灯烛光。
少壮能几时,鬓发各已苍。
访旧半为鬼,惊呼热中肠。
焉知二十载,重上君子堂。
昔别君未婚,儿女忽成行。
怡然敬父执,问我来何方。
问答乃未已,驱儿罗酒浆。
夜雨剪春韭,新炊间黄粱。
主称会面难,一举累十觞。
十觞亦不醉,感子故意长。
明日隔山岳,世事两茫茫。
【名家评价】《杜臆》:信手写去,意尽而止,空灵宛畅,曲尽其妙。
【伤感】以为是古时候的伤感,现在有微信和视频。然而,相见的心情和机缘,从古至今都是一样的。
白雪歌送武判官归京
唐·岑参
北风卷地白草折,胡天八月即飞雪。
忽如一夜春风来,千树万树梨花开。
散入珠帘湿罗幕,狐裘不暖锦衾薄。
将军角弓不得控,都护铁衣冷难着。
瀚海阑干百丈冰,愁云惨淡万里凝。
中军置酒饮归客,胡琴琵琶与羌笛。
纷纷暮雪下辕门,风掣红旗冻不翻。
轮台东门送君去,去时雪满天山路。
山回路转不见君,雪上空留马行处。
【名家评价】清·方东树《昭昧詹言》:岑嘉州《白雪歌送武判官归京》奇峭。起飒爽,“忽如”六句,奇气奇情逸发,令人心神一快。须日诵一过,心摹而力追之。
【超逸想象】瞬间就可以脑补漫山遍野的梨花,太美了!
登幽州台歌
唐·陈子昂
前不见古人,后不见来者。
念天地之悠悠,独怆然而涕下!
【名家评价】明末清初黄周星《唐诗快》卷二:胸中自有万古,眼底更无一人。古今诗人多矣,从未有道及此者。此二十二字,真可以泣鬼。
【孤独】时间是无尽的,渺小的我短暂而一生,哪怕是悟出了什么道理,也无人可懂,无人可诉,唯有孤独相伴,孑然一身。
将进酒
唐·李白
君不见黄河之水天上来,
奔流到海不复回。
君不见高堂明镜悲白发,
朝如青丝暮成雪。
人生得意须尽欢,莫使金樽空对月。
天生我材必有用,千金散尽还复来。
烹羊宰牛且为乐,会须一饮三百杯。
岑夫子,丹丘生,将进酒,杯莫停。
与君歌一曲,请君为我倾耳听。
钟鼓馔玉不足贵,但愿长醉不愿醒。
古来圣贤皆寂寞,惟有饮者留其名。
陈王昔时宴平乐,斗酒十千恣欢谑。
主人何为言少钱,径须沽取对君酌。
五花马、千金裘,
呼儿将出换美酒,与尔同销万古愁。
【名家评价】明代徐增:太白此歌,最为豪放,才气干古无双。(《而庵说唐诗》)
【豪情】人生有许多不如意,能够快乐的时候就应该尽情地享受那一刻。
清平调·其一
唐·李白
云想衣裳花想容,春风拂槛露华浓。
若非群玉山头见,会向瑶台月下逢。
【名家评价】清代沈谦《填词杂说》:“云想衣裳花想容”,此太白佳境。
【美人】第一个以美人比花的人,才是真天才。
游子吟
唐·孟郊
慈母手中线,游子身上衣。
临行密密缝,意恐迟迟归。
谁言寸草心,报得三春晖。
【名家评价】明代邢昉《唐风定》:仁孝蔼蔼,万古如新。
【母爱】每一次想起母亲,眼中的泪就固执地跑了出来。
长干行·君家何处住
唐·崔颢
君家何处住,妾住在横塘。
停船暂借问,或恐是同乡。
【名家评价】《历代诗发》:一问一答,婉款真朴,居然乐府古制。
【遇见】男人遇到真爱时第一反应是胆怯,女人遇到真爱的第一反应是勇敢。
送元二使安西
唐·王维
渭城朝雨浥轻尘,客舍青青柳色新。
劝君更尽一杯酒,西出阳关无故人。
【名家评价】明代敖英《唐诗绝句类选》:唐人别诗,此为绝唱。
【送友人】每个人都行走在自己的路上,都有着自己的聚散。
锦瑟
唐·李商隐
锦瑟无端五十弦,一弦一柱思华年。
庄生晓梦迷蝴蝶,望帝春心托杜鹃。
沧海月明珠有泪,蓝田日暖玉生烟。
此情可待成追忆,只是当时已惘然。
【名家评价】清代姜炳璋《选玉溪生补说》:心华结撰,工巧天成,不假一毫凑泊。
【追忆】人间有多少芳华,就有多少遗憾,一个人经历了许多事情就会发现,青春真的是一个人拥有过的最美好的东西。
雁门太守行
唐·李贺
黑云压城城欲摧,甲光向日金鳞开。
角声满天秋色里,塞上燕脂凝夜紫。
半卷红旗临易水,霜重鼓寒声不起。
报君黄金台上意,提携玉龙为君死。
【名家评价】清·沈德潜《唐诗别裁》:字字锤炼而成,昌谷集中定推老成之作。
【震撼】每次一到下大雨乌云压顶就会不由自主的想到这句诗。
江南春
唐·杜牧
千里莺啼绿映红,水村山郭酒旗风。
南朝四百八十寺,多少楼台烟雨中。
【人间春】清代范大士《历代诗发》:“四百八十寺”,无景不收入结句,包罗万象,真天地间惊人语也。
【江南】江南不仅有如画的风景,还有沧桑的历史。
登鹳雀楼
唐·王之涣
白日依山尽,黄河入海流。
欲穷千里目,更上一层楼。
【名家评价】明末清初黄生《唐诗摘钞》:空阔中无所不有,故雄浑而不疏寂。
【奋发向上】这首诗写诗人在登高望远中表现出来的不凡的胸襟抱负,反映了盛唐时期人们积极向上的进取精神。此诗篇幅虽短,却气势磅礴、意境深远,千百年来一直激励着中华民族昂扬向上。
静夜思
唐·李白
床前明月光,疑是地上霜。
举头望明月,低头思故乡。
【名家评价】清代王尧衢《古唐诗合解》:此诗如不经意,而得之自然。故群服其神妙。
【思乡】每一个游子,在深夜时,都会在内心吟诵这首诗。
春晓
唐·孟浩然
春眠不觉晓,处处闻啼鸟。
夜来风雨声,花落知多少。
【名家评价】清·黄叔灿《唐诗笺注》:诗到自然,无迹可寻。
【春晓】人年少时春光正好,行途中不觉间风雨漫漫霜雪摧折,仿若长梦一场,待回身醒神,早已不知花落几何。短短二十字,足以道尽人一生。
凉州词二首·其一
唐·王之涣
黄河远上白云间,一片孤城万仞山。
羌笛何须怨杨柳,春风不度玉门关。
【名家评价】《唐风定》:字字雄浑,可与王翰《凉州》比美。
【大唐之音】千山万仞中屹立着一座孤城,坚毅中透着忧怨。在这荒凉的千里之外,没有慰藉心灵的家乡风物,边塞将士的不易和怨思呼之欲出。但终究还是含而未发,哀怨中仍不失敦厚和昂强。
江雪
唐·柳宗元
千山鸟飞绝,万径人踪灭。
孤舟蓑笠翁,独钓寒江雪。
【名家评价】郭濬《增订评注唐诗正声》:好雪景,句句妙(末句下)。范晞文《对床夜语》:唐人五言四句,除柳子厚《钓雪》一诗之外,极少佳者。
【孤独】在千山万径阔大的空间里,一叶孤舟,一个老翁,一根钓竿,此外别无他人,别无他物,这就是千万孤独。
凉州词
唐·王翰
葡萄美酒夜光杯,欲饮琵琶马上催。
醉卧沙场君莫笑,古来征战几人回?
【名家评价】清代宋顾乐《唐人万首绝句选评》:气格俱胜,盛唐绝作。
【战争】不管在古时候还是现在,我们都不应该忘了和平其实是另一群人的青春和热血换来的。
乌衣巷
唐·刘禹锡
朱雀桥边野草花,乌衣巷口夕阳斜。
旧时王谢堂前燕,飞入寻常百姓家。
【名家评价】明·桂天祥《批点唐诗正声》:有感慨,有风刺,味之自当泪下。
【世事】曾经栖息在王谢豪门的燕子,如今飞到寻常百姓家。几百年风云际会,几百年沧海桑田,就在这燕子的一来一回之间,翻转变换,让人感慨万千。
黄鹤楼送孟浩然之广陵
唐·李白
故人西辞黄鹤楼,烟花三月下扬州。
孤帆远影碧空尽,唯见长江天际流。
【名家评价】清代宋顾乐《唐人万首绝句选评》:不必作苦语,此等语如朝阳鸣风。
【送别】两个风流诗人,一场诗意送别。
江南逢李龟年
唐·杜甫
岐王宅里寻常见,崔九堂前几度闻。
正是江南好风景,落花时节又逢君。
【名家评价】清代胡本渊《唐诗近体》:含意未伸,有案无断;而世运之治乱、年华之盛衰、彼此之凄凉流落,俱在其中。
【岁月】四句诗,跨越了四十年,连接起两个恍如隔世的时代。
枫桥夜泊
唐·张继
月落乌啼霜满天,江枫渔火对愁眠。
姑苏城外寒山寺,夜半钟声到客船。
【名家评价】明·沈子来:全篇诗意自“愁眠”上起,妙在不说出。
【不朽的失眠】一千多年前的那个夜晚,那个夜晚的枫桥和寒山寺,就这样被张继定格在历史的长河中。那个夜晚的钟声,则穿越了千年历史,至今回响在每一个中国人的心头。
早发白帝城
唐·李白
朝辞白帝彩云间,千里江陵一日还。
两岸猿声啼不住,轻舟已过万重山。
【名家评价】张揔《唐风怀》:汉仪曰:境之所到,笔即追之,有声有情,腕疑神助,此真天才也。
【轻舟】人生的轻舟已经驶过万重山了,往前是坦途吗?未必。但是没关系,没关系,“已”过万重山。
送杜少府之任蜀州
唐·王勃
城阙辅三秦,风烟望五津。
与君离别意,同是宦游人。
海内存知己,天涯若比邻。
无为在歧路,儿女共沾巾。
【名家评价】明代顾璘《批点唐音》:读《送卢主簿》并《白下驿》及此诗,乃知初唐所以盛,晚唐所以衰。清代王尧衢《古唐诗合解》:此等诗气格浑成,不以景物取妍,具初唐之风骨。
【离别】离别总是让人伤感,乐观的人总是觉得即是结束也是开始,干了朋友的这杯酒,祝福下一站拥有更多的精彩。
春望
唐·杜甫
国破山河在,城春草木深。
感时花溅泪,恨别鸟惊心。
烽火连三月,家书抵万金。
白头搔更短,浑欲不胜簪。
【名家评价】清·纪昀:语语沉着,无一毫做作,而自然深至。
【家国】我跟杜子美的心一起滴血,欲哭无泪的感觉。
题破山寺后禅院
唐·常建
清晨入古寺,初日照高林。
曲径通幽处,禅房花木深。
山光悦鸟性,潭影空人心。
万籁此都寂,但余钟磬音。
【名家评价】明末清初冯班:字字入神。(《瀛奎律髓汇评》)明末清初邢昉:诗家幽境,常尉臻极,此犹是其古体也。(《唐风定》)
【清幽】林木深处是禅房,那份宁静那份脱俗,纵使在红尘中,也让人心生出世之心。
望月怀远
唐·张九龄
海上生明月,天涯共此时。
情人怨遥夜,竟夕起相思。
灭烛怜光满,披衣觉露滋。
不堪盈手赠,还寝梦佳期。
【名家评价】《五七言今体诗钞》:是五律中《离骚》。
【月升】大海吞吐出明月,明月静静升起,像一场神圣的仪式。
登高
唐·杜甫
风急天高猿啸哀,渚清沙白鸟飞回。
无边落木萧萧下,不尽长江滚滚来。
万里悲秋常作客,百年多病独登台。
艰难苦恨繁霜鬓,潦倒新停浊酒杯。
【名家评价】清代杨伦《杜诗镜铨》:高浑一气,古今独步,当为杜集七言律诗第一。
【悲凉】去江边看十分钟滚滚江水,去树林里听万物萧瑟,树木群起而浩瀚凋零,你就直接懂了杜甫的心。
黄鹤楼
唐·崔颢
昔人已乘黄鹤去,此地空余黄鹤楼。
黄鹤一去不复返,白云千载空悠悠。
晴川历历汉阳树,芳草萋萋鹦鹉洲。
日暮乡关何处是?烟波江上使人愁。
【名家评价】南宋·严羽《沧浪诗话》:唐人七言律诗,当以崔颢《黄鹤楼》为第一。明·高棅《批点唐诗正声》:气格音调,千载独步。
【黄鹤楼】黄鹤走了,崔颢不在了,黄鹤楼却一直留在心间。
赠卫八处士
唐·杜甫
人生不相见,动如参与商。
今夕复何夕,共此灯烛光。
少壮能几时,鬓发各已苍。
访旧半为鬼,惊呼热中肠。
焉知二十载,重上君子堂。
昔别君未婚,儿女忽成行。
怡然敬父执,问我来何方。
问答乃未已,驱儿罗酒浆。
夜雨剪春韭,新炊间黄粱。
主称会面难,一举累十觞。
十觞亦不醉,感子故意长。
明日隔山岳,世事两茫茫。
【名家评价】《杜臆》:信手写去,意尽而止,空灵宛畅,曲尽其妙。
【伤感】以为是古时候的伤感,现在有微信和视频。然而,相见的心情和机缘,从古至今都是一样的。
白雪歌送武判官归京
唐·岑参
北风卷地白草折,胡天八月即飞雪。
忽如一夜春风来,千树万树梨花开。
散入珠帘湿罗幕,狐裘不暖锦衾薄。
将军角弓不得控,都护铁衣冷难着。
瀚海阑干百丈冰,愁云惨淡万里凝。
中军置酒饮归客,胡琴琵琶与羌笛。
纷纷暮雪下辕门,风掣红旗冻不翻。
轮台东门送君去,去时雪满天山路。
山回路转不见君,雪上空留马行处。
【名家评价】清·方东树《昭昧詹言》:岑嘉州《白雪歌送武判官归京》奇峭。起飒爽,“忽如”六句,奇气奇情逸发,令人心神一快。须日诵一过,心摹而力追之。
【超逸想象】瞬间就可以脑补漫山遍野的梨花,太美了!
登幽州台歌
唐·陈子昂
前不见古人,后不见来者。
念天地之悠悠,独怆然而涕下!
【名家评价】明末清初黄周星《唐诗快》卷二:胸中自有万古,眼底更无一人。古今诗人多矣,从未有道及此者。此二十二字,真可以泣鬼。
【孤独】时间是无尽的,渺小的我短暂而一生,哪怕是悟出了什么道理,也无人可懂,无人可诉,唯有孤独相伴,孑然一身。
将进酒
唐·李白
君不见黄河之水天上来,
奔流到海不复回。
君不见高堂明镜悲白发,
朝如青丝暮成雪。
人生得意须尽欢,莫使金樽空对月。
天生我材必有用,千金散尽还复来。
烹羊宰牛且为乐,会须一饮三百杯。
岑夫子,丹丘生,将进酒,杯莫停。
与君歌一曲,请君为我倾耳听。
钟鼓馔玉不足贵,但愿长醉不愿醒。
古来圣贤皆寂寞,惟有饮者留其名。
陈王昔时宴平乐,斗酒十千恣欢谑。
主人何为言少钱,径须沽取对君酌。
五花马、千金裘,
呼儿将出换美酒,与尔同销万古愁。
【名家评价】明代徐增:太白此歌,最为豪放,才气干古无双。(《而庵说唐诗》)
【豪情】人生有许多不如意,能够快乐的时候就应该尽情地享受那一刻。
清平调·其一
唐·李白
云想衣裳花想容,春风拂槛露华浓。
若非群玉山头见,会向瑶台月下逢。
【名家评价】清代沈谦《填词杂说》:“云想衣裳花想容”,此太白佳境。
【美人】第一个以美人比花的人,才是真天才。
游子吟
唐·孟郊
慈母手中线,游子身上衣。
临行密密缝,意恐迟迟归。
谁言寸草心,报得三春晖。
【名家评价】明代邢昉《唐风定》:仁孝蔼蔼,万古如新。
【母爱】每一次想起母亲,眼中的泪就固执地跑了出来。
长干行·君家何处住
唐·崔颢
君家何处住,妾住在横塘。
停船暂借问,或恐是同乡。
【名家评价】《历代诗发》:一问一答,婉款真朴,居然乐府古制。
【遇见】男人遇到真爱时第一反应是胆怯,女人遇到真爱的第一反应是勇敢。
送元二使安西
唐·王维
渭城朝雨浥轻尘,客舍青青柳色新。
劝君更尽一杯酒,西出阳关无故人。
【名家评价】明代敖英《唐诗绝句类选》:唐人别诗,此为绝唱。
【送友人】每个人都行走在自己的路上,都有着自己的聚散。
锦瑟
唐·李商隐
锦瑟无端五十弦,一弦一柱思华年。
庄生晓梦迷蝴蝶,望帝春心托杜鹃。
沧海月明珠有泪,蓝田日暖玉生烟。
此情可待成追忆,只是当时已惘然。
【名家评价】清代姜炳璋《选玉溪生补说》:心华结撰,工巧天成,不假一毫凑泊。
【追忆】人间有多少芳华,就有多少遗憾,一个人经历了许多事情就会发现,青春真的是一个人拥有过的最美好的东西。
雁门太守行
唐·李贺
黑云压城城欲摧,甲光向日金鳞开。
角声满天秋色里,塞上燕脂凝夜紫。
半卷红旗临易水,霜重鼓寒声不起。
报君黄金台上意,提携玉龙为君死。
【名家评价】清·沈德潜《唐诗别裁》:字字锤炼而成,昌谷集中定推老成之作。
【震撼】每次一到下大雨乌云压顶就会不由自主的想到这句诗。
江南春
唐·杜牧
千里莺啼绿映红,水村山郭酒旗风。
南朝四百八十寺,多少楼台烟雨中。
【人间春】清代范大士《历代诗发》:“四百八十寺”,无景不收入结句,包罗万象,真天地间惊人语也。
【江南】江南不仅有如画的风景,还有沧桑的历史。
声明:本文由入驻焦点开放平台的作者撰写,除焦点官方账号外,观点仅代表作者本人,不代表焦点立场。


