外滩元境(营销中心)官方网站-外滩元境销售中心(售楼处电话)-外滩元境楼盘欢迎您-地址-价格-户型-小区环境-楼盘详情-交房时间-周边配套-售楼处电话
扫描到手机,新闻随时看
扫一扫,用手机看文章
更加方便分享给朋友


过程效果图,仅供参考,以实际交付为准

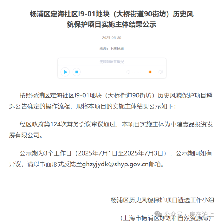
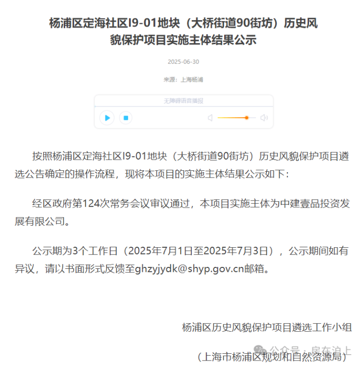
前段时间,杨浦定海社区I9-01地块(大桥街道90街坊)历史风貌保护项目遴选结果公示:中建壹品投资发展有限公司成功拿下杨浦大桥街道90街坊地块。

地块东至三星南路、南至周家牌路,西至松潘路,北至杭州路,建设用地面积21210.66㎡,容积率1.4,地上计容建筑面积29694.92平方米,协议出让价格225682万元,楼面价约76000元/㎡。
地块指标
该项目是历史风貌保护项目,容积率1.4,建筑面积约2.97万㎡,限高12米,项目设立土地使用权底价,底价为225682万元,楼板价约7.6万元/㎡。



产品方面,从建筑布局及风格特色来看,保留了低密风貌住宅街巷里弄的格局,以及露台铁艺栏杆、孟莎屋顶及老虎窗等建筑构件,彰显上海海派文化独有的味道和“腔调”。

规划效果示意图,过程稿仅供参考,以开发商公告为准
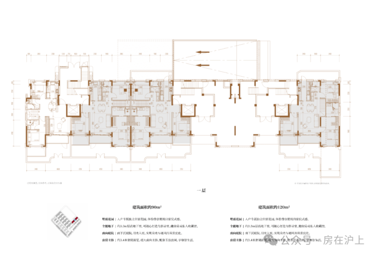
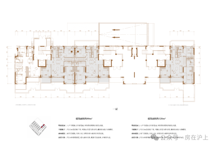
从内部空间体系来看,地上三层,层高分别是3.6米、3.3米和3.3米;每个单元一梯两户,每户均拥有类独立电梯厅;一楼带地下室及庭院,并通过创新退台式设计为二楼和三楼打造私家空中花园,形成户户有花园的墅居生活方式。

效果示意,仅供参考,以开发商公告为准
从户型设计来看,一楼户型附赠超大地下室及双层庭院;二楼户型附赠星空露台;三楼附赠露台及其他空间;户型实得率最大可以超过200%!平均也能达到约150%左右!
风貌建筑的风骨、平层户型的舒适、别墅级的功能附赠——这三者的结合,使外滩元境对传统高层住宅及普通洋房形成碾压式的降维打击!

更狠的是,洋房主力建面为一楼约174㎡,二楼约138㎡,三楼约128㎡;另外还有一些建面约80-115㎡的小户型洋房。
户型图如下:

















如果说产品是内核,区域就是价值基石。
中建壹品・外滩元境所处的杨浦滨江 “九宫格”,不仅是上海内环旁最后的低密风貌区,更是未来十年城市发展核心引擎 —— 产业、配套、土地价值均进入 “爆发期”,成为不可复制的价值高地。
上海滨江的发展早已走过 “1.0外滩金融时代”“2.0陆家嘴摩天楼时代”“3.0徐汇滨江人文时代”,如今迈入 “4.0杨浦滨江科创生活时代”。作为上海 “一江一河” 战略最后黄金拼图,杨浦滨江先天优势无可替代:
约15.5公里岸线整体开发,总规划建面约796万㎡,相当于 2个前滩、5个陆家嘴,是上海滨江压轴段的终章珍藏;
以 “科创研发” 为核心战略,超6000亿投入打造世界级科创中心,承担 “人民城市最佳实践地、新质生产力创新策源地、Z世代精神堡垒” 三大使命;
超40%蓝绿空间、约1.5公里世界级滨水慢行系统,约5.5公里岸线保留24处66幢历史建筑,工业遗存与现代生活交融,成为上海最具人文气息的滨水区。(以上数据来源:杨浦滨江"十四五规划)

区域价值的核心在于产业驱动力 —— 杨浦滨江已成为世界级科创总部集聚区,高净值人才流入或直接引爆居住需求。
美团上海科技中心总投资约106亿元,创造超10000个高端岗位;
B站全球总部总投资约198.5亿元,提供逾10000个岗位,规划近13万方商业体,打造 “二次元” 文化圣地;
杨浦滨江创智中心由声网、星空华文等联合开发,每年承办不少于3场重大文化活动。(以上数据来源:杨浦滨江"十四五规划)
预计至2026-2027年,仅这些巨头就将导入超2万高净值人才,他们追求 “低密、舒适、有文化底蕴” 的居住,而外滩元境正是为这群人量身打造的理想居所。产业驱动下的人才集聚,更将形成高知、高薪、高品味的社区圈层,进一步提升居住价值与资产溢价。
区位效果示意图
杨浦滨江的价值,不仅在于未来潜力,更在于当下成熟与逐步兑现的配套,实现 “居住即享受”。
交通上,紧邻内环、中环双高架,三横主干道贯通东西,5条隧道联通浦江两岸,12号线、18号线双轨交在侧,规划24号线加持,自驾与公共出行皆高效便捷;
商业上,百联滨江、大润发等现有配套满足日常,字节跳动(在建中)、B站(在建中)、美团(在建中)自带商业体及在建超极合生汇,将打造全新商业地标。教育上,汇聚6所一梯队小学、4所一梯队初中及4所市重点高中(含复旦附中、控江中学),优质教育矩阵护航成长;(不作入学承诺,具体政策以政府官方通知为准。)
医疗上,复旦附属妇产科医院(三甲)、上海第一康复医院、新华医院(三甲)等环伺,为健康保驾护航;
生态上,约5.5公里滨水岸线是天然休闲场域,电站辅机厂驿站、皂梦空间等工业遗存蜕变为超26.2万㎡文化空间,生活与艺术无缝衔接。

售楼处电话☎:中建壹品外滩元境官方售楼处电话:400-9939-964【售楼处预约热线】(一对一热情服务)
看房请务必提前致电销售确认时间,只有预约客户才能享受开发商提供的内部优惠以及专属的老客户推荐奖励!我们提供专业的一对一热情服务,助您以专业视角挑选理想的房产
◆开发商营销中心诚挚邀请,一键预约,尊享内部独家折扣!匠心独运的精品项目,恭候您的品鉴与选择。
中建壹品外滩元境官方售楼处电话:400-9939-964如有问题欢迎来电咨询,预约来电尊享购房优惠,可预约案场内部销售人员,专业一对一热情服务,让您用专业眼光去买房,【售楼处预约热线】(一对一热情服务)
中建壹品外滩元境官方售楼处电话:400-9939-964如有问题欢迎来电咨询,专业一对一热情服务,让您用专业眼光去买房。楼盘项目全面介绍(包含楼盘简介,均价,房价,现房,期房,别墅,叠墅,大平层,价格,楼盘地址,户型图,交通规划,备案价,备案名,项目配套,样板间,开盘时间,认筹时间,楼盘详情,售楼处电话,最新消息,最新详情,周边配套,一房一价,最新进展等详情咨询)楼盘详情丨价格丨更多优惠丨机不可失丨欢迎致电丨诚邀品鉴!售楼处位置丨特价房丨工抵房丨剩余房源丨户型图丨最新消息配套设施是反映楼盘生活便利程度的重要因素,包括小区内的运动场所、停车场、公共设施等。物业服务则直接关系到居住者的生活品质,包括安保服务、保洁服务、设备维护等。具体到街道、区域名称,临近交通线路、自驾路线。商业、教育、医疗等配套设施分布,总占地面积、总建筑面积数据,容积率,绿化率,得房率,梯户比,物业费,小高层、洋房、高层、独栋别墅、叠加别墅、联排别墅,总户数、楼层分布,面积范围,均价/总价。首付比例、贷款政策,精装交付,含中央空调、地暖等系统,70年住宅产权,物业公司及资质,预计交付时间或施工进度,当前购房优惠政策中建壹品外滩元境官方售楼处电话:400-9939-964@#@
Have you noticed, everyone? As the year draws to a close, not only have second-hand houses in Shanghai witnessed a "peak" increase in transactions, but recently, new houses for sale, especially luxury projects, have also been extremely popular, far exceeding previous expectations.
大家发现没,临近年末,上海不仅二手房出现“翘尾”放量行情,最近认购的新房特别是豪宅项目也异常火爆,完全超出此前预期。
Upon careful examination, these newly launched luxury projects with high sales volumes all possess several key elements: strong product innovation, ample additional space, top product quality, and reasonable prices.
仔细审视,这些认购火爆的豪宅新盘,都具备几个要素:产品创新性强,附赠空间足,产品力顶,且价格有诚意。
The culmination of these key elements - the "Style Mansion" of China Construction One-Piece · Bund Yuanjing - is about to make its grand debut at the end of the year.
这些要素的集大成者——中建壹品·外滩元境“风貌洋房”也即将在岁末压轴上映。
"The product is novel and rare, offering a true sense of a villa lifestyle;
“产品新颖罕见、真正的洋房生活;
the imagination space on the terrace is very large;
露台的想象空间非常大;
there is a lot of homogeneity on the Bund and too much speculation in the riverside area;
外滩同质化、滨江炒太多;
such a product has never been seen before;
这样的产品之前真没见过;
and so on" - these are the exact words of the visitors.
等等”这些都是到访客户的原话。
With over 20 years of experience, I now visit at least 50楼盘 every year in Shanghai. After seeing this project, I couldn't help but exclaim in amazement: This is truly a groundbreaking product innovation for high-end residential properties in Shanghai.
"Style Appearance + Flat Layout + Villa-style Living" - all three elements combined.
从业20多年,如今在上海每年至少看50个楼盘,我在看了这个项目之后,也不由啧啧惊叹:这才是上海高端住宅一次真正划时代的产品创新。
Bund Yuanjing not only pushes the product quality of Shanghai's residential properties to a new height, but also creates a completely new category for residential properties in Shanghai: "Style Mansion".
“风貌外观+平层格局+墅质生活”三位一体,外滩元境不仅把上海住宅产品力再次推向新的高度,而且创造了上海住宅一个全新的品类:“风貌洋房”。
Yangpu Riverfront, East Bund
杨浦滨江 东外滩
3-story Phased Residence with a floor area ratio of only 1.4
3层风貌平墅 容积率仅1.4
"China Construction One Brand · Bund Yuanjing"
「中建壹品·外滩元境」
It will build approximately 68-170 square meters of high-end attached residences with three floors of waterfront views.
将推建面约68-170㎡高附赠滨江三层风貌洋房
The registered average price is 128,042 yuan per square meter.
备案均价128042元/m²
Full interior decoration delivery, with the maximum floor area ratio reaching 200%.
全精装交付,最高得房率200%
.

.
01、
基本信息
日前,杨浦滨江中建壹品外滩元境产品曝光,样板间也开启接待,项目带来了上海未曾有过的3层风貌退台洋房产品,在上海豪宅圈层引发了不小的关注!

China Construction One Brand has a deep understanding of the value of urban land. With a forward-looking strategic vision, it focuses on the acquisition direction: one is to enter the high-end real estate market, and the other is to deeply explore the core plots of first- and second-tier cities. And the 100-year-old Yangpu Riverside is the golden map that combines the two.
中建壹品深谙城市土地价值, 以前瞻战略眼光聚焦拿地方向:一是进击高端房产市场,二是深耕一二线城市核心地块,而百年杨浦滨江正是两者结合的烫金版图。
Since the middle of 2023, China Construction One Brand has continuously focused on Yangpu, making it the only developer in Shanghai that currently has operational experience in three types of style products: "style residential buildings", "style offices", and "style villas". This is precisely because it has continuously explored various style products, that China Construction One Brand has gained the forward-looking insight to create style residential buildings.
自 2023年中建壹品持续深耕杨浦,是上海当前唯一同时拥有“风貌洋房+风貌办公+风貌别墅”三种风貌产品操盘经验的开发商 , 也正是因为持续在各类风貌产品里不断探索,中建壹品才拥有了创造出风貌洋房的前瞻性洞察。

China Construction One Brand · The Bund Yuanjing is located within the nine-grid layout of Yangpu Riverfront, adjacent to the inner ring road. It is a low-density residential area uniformly planned by Shanghai, featuring a unique and exclusive low-density urban resources. Not only does it enjoy these scarce resources, but it is also adjacent to the headquarters of leading riverfront innovation companies such as Meituan (under construction), Bilibili (under construction), and Huawen (under construction). On one hand, it preserves the century-old historical heritage, and on the other hand, it welcomes the Yangpu Riverfront World, making the future high-end community in Yangpu showcase "a new face of the world".
中建壹品 · 外滩元境位于杨浦滨江九宫格之中,紧邻内环,是上海统一规划出的低密风貌住宅区 , 不仅享受稀缺的城市核心低密资源,还与美团(在建中)、 B站(在建中)、华文(在建中)等滨江科创龙头的总部相邻,一面承载着百年历史文脉,一面与杨浦滨江世界相迎,让未来杨浦高端社区,展示出“世界的新风貌”。
First of all, I believe the essence of this type of product is the division of villas!
首先,我认为这类产品的本质是风貌别墅的拆分!
China Architecture One Brand · The Bund Yuanjing combines the advantages of villas and high-rise buildings. It not only returns to the warmth of the Shanghai courtyard-style homes, but also has the privacy and scale of villas. It is precisely this innovative breakthrough from the source that China Architecture One Brand · The Bund Yuanjing adheres to the core concept of "people-oriented", highly integrating low-density style and living comfort, and creating a benchmark work that is low-density, comfortable, and resonates with the urban cultural context.
中建壹品 · 外滩元境融合了别墅和高层的优势,既回归了上海里弄人家的烟火气,又拥有别墅的私密性和尺度感,正是这种从源头端的创新突破, 中建壹品 · 外滩元境 “以人为本”的核心理念,将低密风貌与居住舒适度进行高度融合, 打造一个低密、舒适且与城市文脉共鸣的标杆作品。

Just like creating a work of art, creating a new species of luxury houses: Every unique, livable and desirable luxury house that embodies a vibrant living culture is proving that the most dynamic living culture is always in a state of evolution.
像打造艺术品一样,打造洋房新物种: 每一座风格独特、宜居舒适、令人向往的洋房都在证明,最鲜活的居住文化永远是进行时。
A good house is not only an artistic masterpiece for appreciation, but also brings a wonderful and beautiful journey of time to the residents, leading to the door of "coexistence of globality and locality".
好房子,不仅是供人品鉴的艺术品,而且能给居者带来曼妙且美好的时光之旅,通往 “世界性与本土性共存”的大门。
And China Construction One Brand · Bund Yuanjing is a worthy treasure to be cherished, a rare and distinctive style of luxury house.
而中建壹品 · 外滩元境,是值得臻藏的好房子,是稀世存在的风貌洋房。

Compared with traditional 6-7 storey houses, there are many advantages:
对比传统6-7层的洋房,有很多优势:
First, there are fewer floors, only 3 floors, resulting in a lower residential density and higher utilization rate of public resources (such as elevators).
第一、楼层更少,只有3层,居住密度更低,公共资源(比如电梯)利用率更高。
Second, the floor height is also higher than that of traditional conventional houses, with a height of 3.3-3.6 meters, which is comparable to the height of villa products.
第二、层高也高于传统常规洋房产品,3.3-3.6m层高对标别墅产品层高。

从内部空间体系来看,地上三层,层高分别是3.6米、3.3米和3.3米;每个单元一梯两户,每户均拥有类独立电梯厅;一楼带地下室及庭院,并通过创新退台式设计为二楼和三楼打造私家空中花园,形成户户有花园的墅居生活方式。

From the perspective of design concept, the original texture of the building is fully respected: The overall layout planning of the project was handled by Shanghai Lan Dao Environmental Design. It follows the north-south main alleys as the axis, retains the naming of alleys such as Xuyinfang and Liminli based on the old names, continues the street and alley texture of the Shanghai-style alleys, and recreates the bustling atmosphere of old Shanghai with one axis and three alleys.
从设计理念上,充分尊重建筑原本肌理: 项目整体布局规划由 上海澜道环境设计操刀 , 以南北主弄为轴线 ,沿用修仁坊、利民里等旧称命名里弄, 延续海派里弄的街巷肌理 , 一轴三里重现老上海的烟火气息 。
Through the courtyards of "Wave Surge Garden", "Artistic Realm Garden", and "Forest Island Ripple Garden", it creates "Order - Continuation - Integration" three-stage respectful rituals for returning home, introduces four-layered artistic scenes by Monet and Rousseau, immerses in the four gardens of art, and makes life magnificent.
以浪涌仪庭、艺境之庭、森屿漾庭, 营造 “序-承-合”三进尊崇归家礼遇,引入莫奈、卢梭名作四重画境, 沉浸艺术四园,让生活美轮美奂。
In terms of design inspiration, we draw from the century-old classic architecture of Wu Dake: The century-old classic architecture "Green House", which, with its timeless aesthetic appeal, has infused us with profound creative inspiration.
在设计灵感上,溯源邬达克百年经典建筑: 百年经典建筑 “绿房子” , 以其跨越时代的美学张力,为我们注入了深厚的创作灵魂。
As a work from 1938, its smooth curved facade, the sunroom that connects the spaces, and the wisdom of preserving the intact garden, still exude an enduring charm to this day.
作为 1938年的作品, 其流畅的弧形立面、贯通空间的阳光房、以及保全完整花园的智慧,至今仍散发着历久弥新的魅力。



In terms of living comfort, the multi-level terraces offer a panoramic view of the garden: The exquisite craftsmanship creates a building with a floor area of approximately 68-170 square meters, featuring a one-lift-six-family layout that provides full-floor amenities. The high floor-to-floor ratio is achieved.
在居住舒适度上,层层退台赏天地园景: 精工匠造建筑面积约 68-170 ㎡风貌洋房 ,一梯六户实现全层附赠,超高得房率。
Whether it's a private courtyard, a starry sky terrace, or a functionally versatile underground space, the "multi-level terraces" design encompasses the magnificent scenery of the world. It not only fulfills the dream of a luxurious residence with "both sky and land" but also enables a seamless integration of the building with nature.
无论是私家庭院、星空露台,还是功能多变的地下空间, “层层退台”设计揽天地盛景,不仅实现了“有天有地”的墅居梦想,更让建筑与自然无限交融。
With more delicate strokes, we meticulously create a luxurious living environment: Dual entrance halls effectively block noise and create a quiet space.
以更细腻的笔触,精工打造奢适人居场景: 内外双玄关,更好地隔绝噪音,营造静谧空间。
The 270° bay windows seamlessly connect the views, offering a "panoramic screen" of the four seasons' beauty.
270°飘窗将景色无缝衔接,揽四季美景“全景巨幕”。
The classic aircraft-style layout features a seamless dining and living area, separate dry and wet areas for bathrooms, maximizing the living comfort.
经典飞机户型 ,餐客一体通透格局,干湿分离明卫,让居住舒适度最大化。

一线豪宅的品质,超配奢装
不同于一般毛坯交付的风貌别墅,项目洋房也精装交付,且选用嘉格纳等一线豪宅奢装标准,还引入六恒科技系统等,品质上也做到极致。

"Spending money on high-rise buildings, buying villas and living in mansions", this comment from the visiting client is concise and to the point.
“花高层的钱,买洋房,住别墅”,这位到访客户的评价言简意赅。
But in my opinion, the true value of the Yuanjing project on the Bund goes far beyond merely providing a high-end luxury property with high spatial value. It is also a groundbreaking innovative architectural "work":
但在我看来,外滩元境的真正价值,远不止于提供了一款高空间附加值的豪宅产品,更是一个划时代的创新建筑“作品”:
It has broken through the existing residential product in Shanghai, created a modern lifestyle of villa-like residences, and enabled the improvement-oriented customers to have the opportunity to acquire the core assets of the nine-grid style residential area along the river.
TA实现了上海风貌住宅产品的破局,创造了一种墅质洋房的摩登生活方式,并且让改善客群能够有机会入手滨江九宫格风貌住宅核心资产。
This might be the deepest inspiration of the Shanghai-style culture: When a national brand and the century-old legend of Yangpu meet, they blend with each other, transcend the century, and face the future. In the mutual gaze, they see the better selves in each other's eyes.
这或许就是海派文化最深的启示:当国匠品牌和百年杨浦传奇相遇,互为融合、穿越百年、面向未来,在对视中,看见了彼此眼睛里那个更好的自己。

.
02、
推售信息
房产价值有一条铁律: 别墅>洋房>小高层>高层。
这不是偏好,是物理事实决定的。形态越接近地面,居住的私密性更好、空间的附赠更多、与自然的接触面就越高
An apartment building is inherently a valuable asset in the high-end market.
洋房,本身就是高层市场中的价值高地。
And the "3-story style villas" of Zhongjian Yipin - The Bund Yuanjing, on this elevated ground, have built another tower.
而 中建壹品·外滩元境的“3层风貌洋房” ,是在这个高地上,又建了一座塔。
1. The floor area ratio is approximately 82%, which is the benchmark for its value!
1. 约82% 得房率,是它的价值基准线!
For a normal new house, the maximum floor area ratio within the unit is usually 75%.
正常的新房,其套内的得房率最高也就是75%。
However, the floor area ratio of Zhongjian Yipin - The Bund Yuanjing is a whopping approximately 82%.
而中建壹品·外滩元境的得房率足足有约82%。
The advantage is huge:
优势是巨大的:
This is naturally determined by its three-story villa form and the structural features of the architectural style.
这是由它 3层的洋房形态 与 风貌建筑的结构 天然决定的。
It fundamentally avoids the large common areas of high-rise residences. With the same property area, the actual usable space you get here is much more.
它从根源上规避了高层住宅庞大的公摊,同样的产权面积,这里给你的实得空间,就是更多。
This is an advantage written into the product's DNA.
这是写在产品基因里的优势。
2. The inclusion is its value multiplier.
2. 附赠,是它的价值倍增器。
This is the key to overturning the rules!
这才是颠覆规则的关键!
At present, almost all new regulations have led to products featuring additional inclusions.
现阶段,几乎都在的新规后产品都在卷附赠。
But the limit of high-rise buildings has gradually emerged. It's approximately between 95% and 97%.
但高层的极限已经渐渐显露出来了,大概也就是约95-97%之间。
However, in Zhongjian Yipin · The Bund Yuanjing, the highest usable rate is over 200%, even on average it's around 150%, which is a complete blow to the opponent.
但在中建壹品·外滩元境,最高的实得率都在约200%以上,即使平均来看也都在约150%左右,这完全就是降维打击。
Moreover, there are surprises at every level, and there are always products suitable for you:
并且,层层有惊喜,总有适合你的产品:
The first floor expands downward.
一层,扩展向下。
What is included is not just about 135 square meters of an extremely large basement, but a separate-planned family hall, wine cellar or studio.
赠送的不只是 约135㎡的超大 地下室,而是一个可独立规划的家庭厅、藏酒室或工作室。
In addition, there is also a considerable-sized south-facing front garden, enhancing the sense of ceremony when returning home.
除此之外,还有面积相当可观的南向庭前绿地,让归家拉满仪式感。
二层,扩展向外。
赠送的不只是露台,是一个俯瞰社区的空中花园,是私人户外客厅。
三层,扩展向上。
赠送的不只是阁楼,是一个带斜面天窗的星空房,是精神角落。
.
售楼处电话☎:中建壹品外滩元境官方售楼处电话:400-9939-964【售楼处预约热线】(一对一热情服务)
看房请务必提前致电销售确认时间,只有预约客户才能享受开发商提供的内部优惠以及专属的老客户推荐奖励!我们提供专业的一对一热情服务,助您以专业视角挑选理想的房产
◆开发商营销中心诚挚邀请,一键预约,尊享内部独家折扣!匠心独运的精品项目,恭候您的品鉴与选择。
中建壹品外滩元境官方售楼处电话:400-9939-964如有问题欢迎来电咨询,预约来电尊享购房优惠,可预约案场内部销售人员,专业一对一热情服务,让您用专业眼光去买房,【售楼处预约热线】(一对一热情服务)
中建壹品外滩元境官方售楼处电话:400-9939-964如有问题欢迎来电咨询,专业一对一热情服务,让您用专业眼光去买房。楼盘项目全面介绍(包含楼盘简介,均价,房价,现房,期房,别墅,叠墅,大平层,价格,楼盘地址,户型图,交通规划,备案价,备案名,项目配套,样板间,开盘时间,认筹时间,楼盘详情,售楼处电话,最新消息,最新详情,周边配套,一房一价,最新进展等详情咨询)楼盘详情丨价格丨更多优惠丨机不可失丨欢迎致电丨诚邀品鉴!售楼处位置丨特价房丨工抵房丨剩余房源丨户型图丨最新消息配套设施是反映楼盘生活便利程度的重要因素,包括小区内的运动场所、停车场、公共设施等。物业服务则直接关系到居住者的生活品质,包括安保服务、保洁服务、设备维护等。具体到街道、区域名称,临近交通线路、自驾路线。商业、教育、医疗等配套设施分布,总占地面积、总建筑面积数据,容积率,绿化率,得房率,梯户比,物业费,小高层、洋房、高层、独栋别墅、叠加别墅、联排别墅,总户数、楼层分布,面积范围,均价/总价。首付比例、贷款政策,精装交付,含中央空调、地暖等系统,70年住宅产权,物业公司及资质,预计交付时间或施工进度,当前购房优惠政策中建壹品外滩元境官方售楼处电话:400-9939-964@#@
Have you noticed, everyone? As the year draws to a close, not only have second-hand houses in Shanghai witnessed a "peak" increase in transactions, but recently, new houses for sale, especially luxury projects, have also been extremely popular, far exceeding previous expectations.
大家发现没,临近年末,上海不仅二手房出现“翘尾”放量行情,最近认购的新房特别是豪宅项目也异常火爆,完全超出此前预期。
Upon careful examination, these newly launched luxury projects with high sales volumes all possess several key elements: strong product innovation, ample additional space, top product quality, and reasonable prices.
仔细审视,这些认购火爆的豪宅新盘,都具备几个要素:产品创新性强,附赠空间足,产品力顶,且价格有诚意。
The culmination of these key elements - the "Style Mansion" of China Construction One-Piece · Bund Yuanjing - is about to make its grand debut at the end of the year.
这些要素的集大成者——中建壹品·外滩元境“风貌洋房”也即将在岁末压轴上映。
"The product is novel and rare, offering a true sense of a villa lifestyle;
“产品新颖罕见、真正的洋房生活;
the imagination space on the terrace is very large;
露台的想象空间非常大;
there is a lot of homogeneity on the Bund and too much speculation in the riverside area;
外滩同质化、滨江炒太多;
such a product has never been seen before;
这样的产品之前真没见过;
and so on" - these are the exact words of the visitors.
等等”这些都是到访客户的原话。
With over 20 years of experience, I now visit at least 50楼盘 every year in Shanghai. After seeing this project, I couldn't help but exclaim in amazement: This is truly a groundbreaking product innovation for high-end residential properties in Shanghai.
"Style Appearance + Flat Layout + Villa-style Living" - all three elements combined.
从业20多年,如今在上海每年至少看50个楼盘,我在看了这个项目之后,也不由啧啧惊叹:这才是上海高端住宅一次真正划时代的产品创新。
Bund Yuanjing not only pushes the product quality of Shanghai's residential properties to a new height, but also creates a completely new category for residential properties in Shanghai: "Style Mansion".
“风貌外观+平层格局+墅质生活”三位一体,外滩元境不仅把上海住宅产品力再次推向新的高度,而且创造了上海住宅一个全新的品类:“风貌洋房”。
Yangpu Riverfront, East Bund
杨浦滨江 东外滩
3-story Phased Residence with a floor area ratio of only 1.4
3层风貌平墅 容积率仅1.4
"China Construction One Brand · Bund Yuanjing"
「中建壹品·外滩元境」
It will build approximately 68-170 square meters of high-end attached residences with three floors of waterfront views.
将推建面约68-170㎡高附赠滨江三层风貌洋房
The registered average price is 128,042 yuan per square meter.
备案均价128042元/m²
Full interior decoration delivery, with the maximum floor area ratio reaching 200%.
全精装交付,最高得房率200%
.

.
01、
基本信息
日前,杨浦滨江中建壹品外滩元境产品曝光,样板间也开启接待,项目带来了上海未曾有过的3层风貌退台洋房产品,在上海豪宅圈层引发了不小的关注!

China Construction One Brand has a deep understanding of the value of urban land. With a forward-looking strategic vision, it focuses on the acquisition direction: one is to enter the high-end real estate market, and the other is to deeply explore the core plots of first- and second-tier cities. And the 100-year-old Yangpu Riverside is the golden map that combines the two.
中建壹品深谙城市土地价值, 以前瞻战略眼光聚焦拿地方向:一是进击高端房产市场,二是深耕一二线城市核心地块,而百年杨浦滨江正是两者结合的烫金版图。
Since the middle of 2023, China Construction One Brand has continuously focused on Yangpu, making it the only developer in Shanghai that currently has operational experience in three types of style products: "style residential buildings", "style offices", and "style villas". This is precisely because it has continuously explored various style products, that China Construction One Brand has gained the forward-looking insight to create style residential buildings.
自 2023年中建壹品持续深耕杨浦,是上海当前唯一同时拥有“风貌洋房+风貌办公+风貌别墅”三种风貌产品操盘经验的开发商 , 也正是因为持续在各类风貌产品里不断探索,中建壹品才拥有了创造出风貌洋房的前瞻性洞察。

China Construction One Brand · The Bund Yuanjing is located within the nine-grid layout of Yangpu Riverfront, adjacent to the inner ring road. It is a low-density residential area uniformly planned by Shanghai, featuring a unique and exclusive low-density urban resources. Not only does it enjoy these scarce resources, but it is also adjacent to the headquarters of leading riverfront innovation companies such as Meituan (under construction), Bilibili (under construction), and Huawen (under construction). On one hand, it preserves the century-old historical heritage, and on the other hand, it welcomes the Yangpu Riverfront World, making the future high-end community in Yangpu showcase "a new face of the world".
中建壹品 · 外滩元境位于杨浦滨江九宫格之中,紧邻内环,是上海统一规划出的低密风貌住宅区 , 不仅享受稀缺的城市核心低密资源,还与美团(在建中)、 B站(在建中)、华文(在建中)等滨江科创龙头的总部相邻,一面承载着百年历史文脉,一面与杨浦滨江世界相迎,让未来杨浦高端社区,展示出“世界的新风貌”。
First of all, I believe the essence of this type of product is the division of villas!
首先,我认为这类产品的本质是风貌别墅的拆分!
China Architecture One Brand · The Bund Yuanjing combines the advantages of villas and high-rise buildings. It not only returns to the warmth of the Shanghai courtyard-style homes, but also has the privacy and scale of villas. It is precisely this innovative breakthrough from the source that China Architecture One Brand · The Bund Yuanjing adheres to the core concept of "people-oriented", highly integrating low-density style and living comfort, and creating a benchmark work that is low-density, comfortable, and resonates with the urban cultural context.
中建壹品 · 外滩元境融合了别墅和高层的优势,既回归了上海里弄人家的烟火气,又拥有别墅的私密性和尺度感,正是这种从源头端的创新突破, 中建壹品 · 外滩元境 “以人为本”的核心理念,将低密风貌与居住舒适度进行高度融合, 打造一个低密、舒适且与城市文脉共鸣的标杆作品。

Just like creating a work of art, creating a new species of luxury houses: Every unique, livable and desirable luxury house that embodies a vibrant living culture is proving that the most dynamic living culture is always in a state of evolution.
像打造艺术品一样,打造洋房新物种: 每一座风格独特、宜居舒适、令人向往的洋房都在证明,最鲜活的居住文化永远是进行时。
A good house is not only an artistic masterpiece for appreciation, but also brings a wonderful and beautiful journey of time to the residents, leading to the door of "coexistence of globality and locality".
好房子,不仅是供人品鉴的艺术品,而且能给居者带来曼妙且美好的时光之旅,通往 “世界性与本土性共存”的大门。
And China Construction One Brand · Bund Yuanjing is a worthy treasure to be cherished, a rare and distinctive style of luxury house.
而中建壹品 · 外滩元境,是值得臻藏的好房子,是稀世存在的风貌洋房。

Compared with traditional 6-7 storey houses, there are many advantages:
对比传统6-7层的洋房,有很多优势:
First, there are fewer floors, only 3 floors, resulting in a lower residential density and higher utilization rate of public resources (such as elevators).
第一、楼层更少,只有3层,居住密度更低,公共资源(比如电梯)利用率更高。
Second, the floor height is also higher than that of traditional conventional houses, with a height of 3.3-3.6 meters, which is comparable to the height of villa products.
第二、层高也高于传统常规洋房产品,3.3-3.6m层高对标别墅产品层高。

从内部空间体系来看,地上三层,层高分别是3.6米、3.3米和3.3米;每个单元一梯两户,每户均拥有类独立电梯厅;一楼带地下室及庭院,并通过创新退台式设计为二楼和三楼打造私家空中花园,形成户户有花园的墅居生活方式。

From the perspective of design concept, the original texture of the building is fully respected: The overall layout planning of the project was handled by Shanghai Lan Dao Environmental Design. It follows the north-south main alleys as the axis, retains the naming of alleys such as Xuyinfang and Liminli based on the old names, continues the street and alley texture of the Shanghai-style alleys, and recreates the bustling atmosphere of old Shanghai with one axis and three alleys.
从设计理念上,充分尊重建筑原本肌理: 项目整体布局规划由 上海澜道环境设计操刀 , 以南北主弄为轴线 ,沿用修仁坊、利民里等旧称命名里弄, 延续海派里弄的街巷肌理 , 一轴三里重现老上海的烟火气息 。
Through the courtyards of "Wave Surge Garden", "Artistic Realm Garden", and "Forest Island Ripple Garden", it creates "Order - Continuation - Integration" three-stage respectful rituals for returning home, introduces four-layered artistic scenes by Monet and Rousseau, immerses in the four gardens of art, and makes life magnificent.
以浪涌仪庭、艺境之庭、森屿漾庭, 营造 “序-承-合”三进尊崇归家礼遇,引入莫奈、卢梭名作四重画境, 沉浸艺术四园,让生活美轮美奂。
In terms of design inspiration, we draw from the century-old classic architecture of Wu Dake: The century-old classic architecture "Green House", which, with its timeless aesthetic appeal, has infused us with profound creative inspiration.
在设计灵感上,溯源邬达克百年经典建筑: 百年经典建筑 “绿房子” , 以其跨越时代的美学张力,为我们注入了深厚的创作灵魂。
As a work from 1938, its smooth curved facade, the sunroom that connects the spaces, and the wisdom of preserving the intact garden, still exude an enduring charm to this day.
作为 1938年的作品, 其流畅的弧形立面、贯通空间的阳光房、以及保全完整花园的智慧,至今仍散发着历久弥新的魅力。



In terms of living comfort, the multi-level terraces offer a panoramic view of the garden: The exquisite craftsmanship creates a building with a floor area of approximately 68-170 square meters, featuring a one-lift-six-family layout that provides full-floor amenities. The high floor-to-floor ratio is achieved.
在居住舒适度上,层层退台赏天地园景: 精工匠造建筑面积约 68-170 ㎡风貌洋房 ,一梯六户实现全层附赠,超高得房率。
Whether it's a private courtyard, a starry sky terrace, or a functionally versatile underground space, the "multi-level terraces" design encompasses the magnificent scenery of the world. It not only fulfills the dream of a luxurious residence with "both sky and land" but also enables a seamless integration of the building with nature.
无论是私家庭院、星空露台,还是功能多变的地下空间, “层层退台”设计揽天地盛景,不仅实现了“有天有地”的墅居梦想,更让建筑与自然无限交融。
With more delicate strokes, we meticulously create a luxurious living environment: Dual entrance halls effectively block noise and create a quiet space.
以更细腻的笔触,精工打造奢适人居场景: 内外双玄关,更好地隔绝噪音,营造静谧空间。
The 270° bay windows seamlessly connect the views, offering a "panoramic screen" of the four seasons' beauty.
270°飘窗将景色无缝衔接,揽四季美景“全景巨幕”。
The classic aircraft-style layout features a seamless dining and living area, separate dry and wet areas for bathrooms, maximizing the living comfort.
经典飞机户型 ,餐客一体通透格局,干湿分离明卫,让居住舒适度最大化。

一线豪宅的品质,超配奢装
不同于一般毛坯交付的风貌别墅,项目洋房也精装交付,且选用嘉格纳等一线豪宅奢装标准,还引入六恒科技系统等,品质上也做到极致。

"Spending money on high-rise buildings, buying villas and living in mansions", this comment from the visiting client is concise and to the point.
“花高层的钱,买洋房,住别墅”,这位到访客户的评价言简意赅。
But in my opinion, the true value of the Yuanjing project on the Bund goes far beyond merely providing a high-end luxury property with high spatial value. It is also a groundbreaking innovative architectural "work":
但在我看来,外滩元境的真正价值,远不止于提供了一款高空间附加值的豪宅产品,更是一个划时代的创新建筑“作品”:
It has broken through the existing residential product in Shanghai, created a modern lifestyle of villa-like residences, and enabled the improvement-oriented customers to have the opportunity to acquire the core assets of the nine-grid style residential area along the river.
TA实现了上海风貌住宅产品的破局,创造了一种墅质洋房的摩登生活方式,并且让改善客群能够有机会入手滨江九宫格风貌住宅核心资产。
This might be the deepest inspiration of the Shanghai-style culture: When a national brand and the century-old legend of Yangpu meet, they blend with each other, transcend the century, and face the future. In the mutual gaze, they see the better selves in each other's eyes.
这或许就是海派文化最深的启示:当国匠品牌和百年杨浦传奇相遇,互为融合、穿越百年、面向未来,在对视中,看见了彼此眼睛里那个更好的自己。

.
02、
推售信息
房产价值有一条铁律: 别墅>洋房>小高层>高层。
这不是偏好,是物理事实决定的。形态越接近地面,居住的私密性更好、空间的附赠更多、与自然的接触面就越高
An apartment building is inherently a valuable asset in the high-end market.
洋房,本身就是高层市场中的价值高地。
And the "3-story style villas" of Zhongjian Yipin - The Bund Yuanjing, on this elevated ground, have built another tower.
而 中建壹品·外滩元境的“3层风貌洋房” ,是在这个高地上,又建了一座塔。
1. The floor area ratio is approximately 82%, which is the benchmark for its value!
1. 约82% 得房率,是它的价值基准线!
For a normal new house, the maximum floor area ratio within the unit is usually 75%.
正常的新房,其套内的得房率最高也就是75%。
However, the floor area ratio of Zhongjian Yipin - The Bund Yuanjing is a whopping approximately 82%.
而中建壹品·外滩元境的得房率足足有约82%。
The advantage is huge:
优势是巨大的:
This is naturally determined by its three-story villa form and the structural features of the architectural style.
这是由它 3层的洋房形态 与 风貌建筑的结构 天然决定的。
It fundamentally avoids the large common areas of high-rise residences. With the same property area, the actual usable space you get here is much more.
它从根源上规避了高层住宅庞大的公摊,同样的产权面积,这里给你的实得空间,就是更多。
This is an advantage written into the product's DNA.
这是写在产品基因里的优势。
2. The inclusion is its value multiplier.
2. 附赠,是它的价值倍增器。
This is the key to overturning the rules!
这才是颠覆规则的关键!
At present, almost all new regulations have led to products featuring additional inclusions.
现阶段,几乎都在的新规后产品都在卷附赠。
But the limit of high-rise buildings has gradually emerged. It's approximately between 95% and 97%.
但高层的极限已经渐渐显露出来了,大概也就是约95-97%之间。
However, in Zhongjian Yipin · The Bund Yuanjing, the highest usable rate is over 200%, even on average it's around 150%, which is a complete blow to the opponent.
但在中建壹品·外滩元境,最高的实得率都在约200%以上,即使平均来看也都在约150%左右,这完全就是降维打击。
Moreover, there are surprises at every level, and there are always products suitable for you:
并且,层层有惊喜,总有适合你的产品:
The first floor expands downward.
一层,扩展向下。
What is included is not just about 135 square meters of an extremely large basement, but a separate-planned family hall, wine cellar or studio.
赠送的不只是 约135㎡的超大 地下室,而是一个可独立规划的家庭厅、藏酒室或工作室。
In addition, there is also a considerable-sized south-facing front garden, enhancing the sense of ceremony when returning home.
除此之外,还有面积相当可观的南向庭前绿地,让归家拉满仪式感。
二层,扩展向外。
赠送的不只是露台,是一个俯瞰社区的空中花园,是私人户外客厅。
三层,扩展向上。
赠送的不只是阁楼,是一个带斜面天窗的星空房,是精神角落。
.

这是为美术生打造的270度环幕江景大平层,高楼层赋予的辽阔视野,江景成为空间的天然背景。
整体以现代自然主义为基调,借自由开放的空间美学与个性家居布置,诠释简约松弛的生活哲学。


玄关
Vestibule
归家序章,以简素勾勒空间韵律
作为入户第一幕,玄关以极简姿态开启生活叙事,素净墙面如天然画布。清透支架托举着素白花瓶,植物姿态俏皮延展,成为连接户外与生活的温柔过渡。

客厅
Living Room
没有 “标准答案” 的互动场
全开放式设计,岛形沙发打破边界,让交流随光影自由发生。午后的光线从侧面洒落,家具被赋予立体的光影层次。

中央的B&B Camaleonda模块组合沙发,以岛状布局重构空间逻辑,双向陈设的低椅背设计。一面朝向书柜电视墙,一面衔接餐厨区。让场景切换随心意而生,既保持空间通透感,又以功能分区提升使用效率。



休闲区
Leisure Area
多元需求的美学平衡




厨房
Kitchen
暮光先抵达的日常剧场






餐厅
Dining Room
暮色里的光影焦点







主卧
Master Bedroom
个性与舒适的共生
















小儿子房
Younger Son's Room
斑斓里的活力感




大儿子房
Elder Son's Room
简素里的生长感







这是为美术生打造的270度环幕江景大平层,高楼层赋予的辽阔视野,江景成为空间的天然背景。
整体以现代自然主义为基调,借自由开放的空间美学与个性家居布置,诠释简约松弛的生活哲学。


玄关
Vestibule
归家序章,以简素勾勒空间韵律
作为入户第一幕,玄关以极简姿态开启生活叙事,素净墙面如天然画布。清透支架托举着素白花瓶,植物姿态俏皮延展,成为连接户外与生活的温柔过渡。

客厅
Living Room
没有 “标准答案” 的互动场
全开放式设计,岛形沙发打破边界,让交流随光影自由发生。午后的光线从侧面洒落,家具被赋予立体的光影层次。

中央的B&B Camaleonda模块组合沙发,以岛状布局重构空间逻辑,双向陈设的低椅背设计。一面朝向书柜电视墙,一面衔接餐厨区。让场景切换随心意而生,既保持空间通透感,又以功能分区提升使用效率。



休闲区
Leisure Area
多元需求的美学平衡




厨房
Kitchen
暮光先抵达的日常剧场






餐厅
Dining Room
暮色里的光影焦点







主卧
Master Bedroom
个性与舒适的共生
















小儿子房
Younger Son's Room
斑斓里的活力感




大儿子房
Elder Son's Room
简素里的生长感



房地产基础知识300问
1、什么是房产:房屋产权的简称。
2、什么是地产:是指土地财产。
3、什么是房地产:是房产和地产的总称。
4、什么是房地产业:从事房地产开发、建设、经营、管理以及维修、装饰和服务的综合性产业。
5、什么是房地产开发:是指在依法取得土地使用权的土地上按照使用性质的要求进行基础设施、房屋建筑的活动。
6、什么是土地开发:是将“生地”开发成可供使用的土地。
7、集体土地是指:农村集体所有的土地。
8、征用土地是指:国家为了公共利益的需要,可依照法律规定对集体所有的土地实行征用。
9、什么是土地所有权:是指国家或集体经济组织对国家土地和集体土地依法享有的占有、使用、收益和处分的权能。
10、什么是土地使用权的出让:指国家以协议、招标、拍卖的方式将土地所有权在一定年限内出让给土地使用者,由使用者向国家支付土地使用权出让金的行为。
11、什么是土地使用权转让:是指土地使用者通过出售、交换、赠与和继承的方式将土地使用权再转移的行为。
12、什么是地籍、产籍:是对在房地产调查登记过程产生的各种图表、证件等登记资料,经过整理、加工、分类而形成的图、档、卡、册等资料的总称。
13、 生地是指:不具备开发条件的土地。
14、熟地是指:已完成三通一平(水、电、道路,土地平整)或七通一平,具备开发条件的土地。
15、什么是宗地:是地籍的最小单元,是指以权属界线组成的封闭地块。
16、什么是宗地图:是土地使用合同书附图及房地产登记卡附图。它反映一宗地的基本情况。包括:宗地权属界线、界址点位置、宗地内建筑位置与性质、与相邻宗地的关系等。
17、证书附图是指:房地产后面的附图,主要反映房地产情况及房地产所在宗地情况。
18、什么是物业管理:泛指一切有关房地产开发、经营、商品房销售、租赁及售后服务。
19、什么是业主委员会:是在物业管理区域内代表全体业主实施自治管理的组织。是代表物业全体业主合法权益的社会团体,其合法权益受国家法律保护。
20、业主委员会是如何产生的:由业主大会从全体业主中选举产生。
21、住房补贴是指:国家为职工解决住房问题而给予的补贴资助。
22、房屋的所有权是指:对房屋全面支配的权利。
23、房地产交易的两种主要形式是:地产交易形式 与 房产交易形式。
24、建筑物是指:人工建造而成的房屋和构筑物。
25、构筑物是指:建筑物中除房屋以外的东西。
26、什么是期房:是指消费者在购买时不具备即买即可入住的商品房。
27、期房是如何介定的:房地产开发商拿到商品房预售许可证开始至取得房地产权证大产证或竣工验收合格可以直接入住使用)为止。
28、什么是预售合同:消费者在购买期房时签定的销售合同。
29、什么是现房:是指消费者在购买时具备即买即可入住的商品房,即开发商已办妥所售的商品房的大产证(或已经竣工验收合格并交付使用)的商品房。
30、什么是毛坯房:房地产商交付屋内只有门框没有门,墙面地面仅做基础处理而未做表面处理的房叫毛坯房。
31、什么是成品房:是指对墙面、天花、门套、地板实行装修。
32、什么是商品房:是指以完全的市场价格向购房者出售的房子。
33、商品房预售是指:在房地产尚未建成以前,房地产的经销商在取得受买人一定数量的定金后,将期房出售给受买人。
34、商品房现售是指:指房地产开发企业将竣工验收合格的商品房出售给买受人。
35、二手房通常指的是:再次进行买卖交易的住房。
36、经济适用房指的是:面向中低收入家庭的普通住宅。
37、例出3种以上的安居房的种类:准成本房、全成本房、全成本微利房和社会微利房。
38、低层住宅的介定:1-3层的住宅。
39、多层住宅的介定:4-6层的住宅。
40、小高层住宅的介定:7-11层的住宅。
41、中高层住宅的介定:12-16层的住宅。
42、高层住宅的介定:16层以上为高层住宅。
43、超高层建筑的介定:总高度超过100米的建筑。
44、商品房的结构是指:房屋主体所使用的施工工艺和用材。
45、钢结构的意思是:承重的主要结构是用钢材料建造的,包括悬索结构。
46、钢混结构的意思是:承重的主要结构是用钢和混凝上建造的。
47、砖木结构的意思是:承重的主要结构是用砖、木材建造的。
48、砖混结构的意思是:主要是砖墙承重,部分是钢盘混凝土承重的结构。
49、框架结构的意思是:以钢筋混凝土浇捣成承重梁柱,再用预制的隔墙分户的结构。
50、开间指的是:一间房屋内一面墙的定位轴线到另一面墙的定位轴线之间的实际距离。
51、进深指的是:一间独立的房屋或一幢居住建筑内从前墙的定位轴线到后墙的定位轴线之间的实际长度。
52、层高指的是:下层地板面或楼板面到上层楼层面之间的距离。
53、净高指的是:下层楼板上表面到上层楼板下表面之间的距离。
54、占地面积指的是:地块的总面积。
55、1亩约等于多少平方米:666.66㎡
56、居住小区总用地指的是什么用地的总和:住宅总用地,公共建筑设施总用地,道路、广场用地、庭院、绿化用地的总和。
57、住宅总用地是指:住宅用地面积的总和。
58、公建总用地是指:小区内部公共建筑占地面积的总和。
59、建筑用地面积的介定:建设用地位置和界线所围合的用地之水平投影面积。
60、建筑基底面积是指:建筑物首层的建筑面积。
61、建筑高度是指:建筑物室外地平面至外墙面顶部的总高度。
62、房屋的基底面积是指:房屋的基底面积是指建筑物底层勒脚以上外围水平投影面积。
63、道路面积是指:小区内宽度大于1.5米道路的面积总和。
64、广场面积是指:停车、回车广场和有铺砌地面的场地面积之和。
65、庭院、绿化面积是指:小区内集中绿化带、小公园,以及公共活动场所等为小区所有居住人员 共同使用权的绿化面积的总和。
66、假山、小池算不算庭院、绿化面积:算。
67、人均总占地面积(㎡/人)的计算公式:人均总占地面积=建筑红线内总用地÷本小区规划居住总人数。
68、人均住宅用地面积(㎡/人)的计算公式:人均住宅用地面积=小区内总住宅用地÷本小区规划居住总人数。
69、总建筑面积是指:小区内住宅、公共建筑、人防地下室面积总和。
70、人防地下室算不算在总建筑面积之内:算
71、住宅建筑面积是指:住宅建筑外墙外围线测定的各层平面面积之和。
72、套建筑面积是指:一套房屋的整体面积。
73、套建筑面积的构成是:套内建筑面积和套分摊的公用建筑面积
74、幢(栋)是指:一座独立的,包括不同结构和不同层次的房屋。
75、架空房屋是指:一般为底层架空,以柱子作为承重支撑物的房屋。
76、夹层是指:位于两自然层之间的楼层,指房屋内部空间的局部层次。
77、技术层的意思是:用作水、电、暖、卫生等设备安装的局部层次。
78、技术层层高在多少以上计算层数:2.20米以上的计算层数。
79、结构转换层是指:建筑物某楼层的上部与下部因平面使用功能不同,该楼层上部与下部采用不 同结构类型,并通过该楼层进行结构转换,则该楼层称为结构转换层。
80、跃层式住宅是指:一套住宅占两个楼层,由户内楼梯联系上下层,上下两层完全分隔。
81、阁楼是指:利用房屋内的上部空间加建的楼层。
82、阁楼层高在多高以上计算面积:2.20米以上。
83、地上层数是指:即房屋的自然层数,指室内地坪±0.00以上的按楼板结构分层的层高在2.20米以上的楼层数。
84、地上层数用什么数表示:自然数。
85、地下层数是指:采光窗在室外地坪以下的,其室内层高在2.20米以上的地下室的层数。
86、地下层数用什么数表示:负数。
87、房屋总层数是指:房屋的地上层数与地下层数之和。
88、地下层数算不算在房屋总层数之内:算。
89、例出3个以上不算在房屋总层数内的建筑层:假层、夹层、阁楼、装饰性塔楼、楼梯间、水箱间。
90、柱廊是指:有顶盖和支柱,供人通行的建筑物,称为有柱走廊,简称柱廊。
91、骑楼是指:底层为有柱廊房,廊道上方建为楼房的一部分。
92、挑廊是指:指二层以上挑出房屋墙体外,有围护结构,无支柱有顶盖的外走廊。
93、门廊是指:建筑物门前有顶盖,有支柱或围护结构的进出通道。
94、门斗是指:支撑建筑物门前顶盖的是实体墙称为门斗。
95、檐廊是指:房屋檐下方两端有支撑墙体无柱的通道。
96、天棚是指:即天篷,有透明顶篷履盖的屋面。
97、晒台又称什么:露台。
98、露台是指:供人室外活动的上人屋面或底层地面伸出室外的有维护无顶盖的台面。
99、阳台是指:有永久性上盖、有围护结构、有台面、与房屋相连、可以供人活动或利用的房屋附属设施。
100、阳台的分类有:封闭式阳台和半封闭式阳台。
101、封闭阳台是指:在围护栏、墙上部用铝合金玻璃窗等围闭的阳台。
102、封闭阳台面积如何计算:全部计算建筑面积。
103、半封闭阳台是指:除围护栏、墙以外没有进行围闭的阳台。
104、半封闭阳台面积如何计算:计算一半建筑面积。
105、楼梯是指:是指房屋层之间供垂直交通用的通道,
106、室外楼梯是指:依靠房屋外墙体搭建的永久性楼梯。
107、屋顶楼梯间是指:突出房屋屋面有顶盖,四周有围护结构,层高在2.20米以上供上屋顶维修或安全出口用的用房。
108、屋顶楼梯间算不算总层高:不算。
109、屋顶电梯间:指突出房屋屋面,层高在2.20米以上,供停放、检修、升降电梯的用房。
110、屋顶电梯间算不算总层高:不算。
111、设备间是指:一幢大楼内放置各种应用设备以及进行综合布线交接的房屋。
112、功能区的意思是:根据各共有建筑部位的用途而划分的服务范围称为功能区。
113、连廊是指:连接两幢房屋的走廊。
114、连楼是指:连接两幢房屋的楼房。
115、过街楼是指:底层局部为通道的楼房。
116、架空通廊是指:指以两端房屋为支撑,有围护结构,有顶盖无支柱的架空通道。
117、围护结构是指:将空间竖向分割成相对独立,不易通行的两个或多个部分的实体,起隔离作用。
118、墙和栏杆算不算围护结构:算。
119、基地面积是指:一个小区总的占地面积。
120、间距是指:建筑平面外轮廓线之间的距离。
121、国家间距标准的比例是:楼高:间距=1:1.2。
122、国家日照标准是:2个以上居住空间大寒日底层满窗连续日照不低于1小时,全天满足2小时。
123、结构面积是指:房屋建筑中外墙、内墙、柱等结构构件所占面积的总和。
124、公用面积是指:住宅楼内为住户方便出入,正常交往而设置的公共走廊、楼梯、电梯间等所占面积总和。
125、公用面积是如何分摊的:按栋或单元户数面积按比率分摊。
126、套内建筑面积是指:套门内范围的建筑面积。
127、套内建筑面积包括:套内使用面积、套内墙体面积和阳台建筑面积。
128、套内使用面积是指:指套内住户独自使用的面积。
129、套内使用面积的计算包括:卧室、厨房、卫生间、过厅、起居室、内走道、阳台、壁柜等净面积的总和。
130、套内墙体面积是指:套内使用空间周围的维护或承重墙体或其它承重支撑体所占的面积。
131、套内墙体面积的计算:全部。
132、各套之间的分隔墙按多少计入套内墙体面积:一半。
133、套与公共建筑空间的分割墙以多少计入套内墙体面积:一半。
134、外墙以多少计入套内墙体面积:一半。
135、套内自由墙体以多少计入套内墙体面积:全部。
136、套内阳台建筑面积是指:阳台外围与房屋外墙之间的水平投影面积。
137、公用建筑面积是指:各产权主体共同占有或共同使用权的建筑面积,指各套(单元)以外为各户共同使用,不可分割的建筑面积。
138、容积率是指:项目规划建设用地范围内全部建筑面积与规划建设用地面积之比。
139、一个项目总建筑面积为64000㎡,占地面积为40亩,容积率是多少:2.4
140、建筑密度又称:建筑覆盖率。
141、建筑密度是指:项目用地范围内所有基底面积之和与规划建设用地之比。
142、人口毛密度的计算公式:人口毛密度=小区内总居住人数÷小区内占地面积。
143、平均每平方米造价(元):平均每平方米造价=建筑物总造价÷建筑面积。
144、使用面积系数K1(%):使用面积系数=总使用面积(平方米)÷总建筑面积(平方米)×100%。
145、居住面积系数K2(%):居住面积系数=总居住面积(平方米)÷总建筑面积(平方米)×100%。
146、绿地率:指公共绿地、宅旁(宅间)绿地、公共服务设施所属绿地和道路绿地等四类绿地面积的总和占居住区用地总面积的比率。
147、公共绿地的介定:最小的要求是宽度不小于8米,面积不小于400平方米,
148、哪些绿化不能算入绿地面积:距建筑外墙1.5米和道路边线1米以内的用地,地下车库、化粪池等地表覆土达不到3米深度的设施不能计入。
149、绿化覆盖率:所有绿化面积与建设用地面积之比。即绿化面积÷基地面积×100%
150、绿化覆盖面积:所有植被垂直投影面积的总和。
151、得房率:指套(单元)内建筑面积与套建筑面积的比率。
152、公共能耗:是小区共用部位、共用设备和公共设施及在公共性服务中所发生的水、电、煤等能源消耗。
153、公共能耗费:因公共能耗而产生的费用
154、公共能耗费由谁承担:由全体业主承担。
155、规划形态是指:项目的具体建筑构成。
156、单元式住宅:是指在多层、高层楼房中的一种住宅建筑形式
157、居住单元:每个楼梯的控制面积称为一个居住单元。
158、一梯几户是指:一个单元里平层有几户的俗称。
159、房型(户型):是指一套住宅由多少卧厅、厨、卫等组成的总称。
160、面积配比:指的是各种房型面积在项目或单元中所占比例的多少。
161、房型配比:指的是各种房型在项目或单元中所占的比例的多少。
162、阁楼:是指位于房屋坡屋顶下部的房间。
163、普通住宅:是指按一般民用住宅标准造的居住用住宅。
164、准现房:准现房是指房屋主体已基本封顶完工,工程正处在内外墙装修和进行配套施工阶段的房屋。
165、居住组团:指一般被小区道路分隔,配建有居民所需的基层公共服务设施的居住生活聚居地。
166、公寓:是指二层以上供多户人家居住的楼房建筑。
167、纯办公楼:是指专为各类公司的日常营运提供办公活动空间的大楼。
168、商场:是指规划为对外公开进行经营的建筑物。
169、综合楼:是指兼有住家、办公甚至商场的大楼。
170、商住住宅:是住宅观念的一种延伸,它属于住宅,但同时又融入写字楼的诸多硬件设施,使居住者在居住同时又能从事商业活动的住宅形式。
171、别墅:是指在郊区或风景区建造的供住宿休养用的花园住宅。
172、联排别墅:三户或三户以上连体的别墅。
173、双拼别墅:二户连体的别墅。
174、独栋别墅:单楼独栋的别墅。
175、跃层式产品:住宅占有上下两层楼南,卧室、起居室、客厅、卫生间、厨房、及其它辅助用房可以分层布置,上下层之间的交通采用户内独用小楼梯联接。
176、跃层式产品的优点:跃层式住宅的优点是每户都有较大的采光面,通风较好,户内居住面积和辅助面积较大,布局紧凑,功能明确,相互干扰较小。
177、复式产品(LOFT):在建造上仍每户占有上下两层,实际是在层高较高的一层楼中增建一个夹层,两层合计的层高要大大低于跃层式住宅。
178、错层式住宅:是指楼面高度不一致错开之处有楼梯联系的住宅。
179、SHOPPING MALL:大型购物广场的英文名称。
180、共有房产:共有房产是指某一房产属于两个或两个以上的所有人共同所有。
181、半地下室:是指房间地面低于室外地平面的高度超过该房间净高的1/3,且不超过1/2者。
182、地下室:地下室是指房间地面低于室外地平面的高度超过该房间净高的1/2者。
183、一地下室室内净高2.6米,2米低于室外地平面,属于半地下室还是地下室:属于地下室。
184、商品房验收合格指的是:单体(即单幢楼盘)验收合格。
185、商品房综合验收合格指的是:包含所有配套设施在内的全部建筑物的验收合格。
186、空鼓:局部面与基层没有胶合剂或胶合剂没有起作用。
187、地基:建筑物下面直接承受建筑物重量的土层称为地基。
188、基础:建筑物的最下端与土壤直接接触的部分称为基础。
189、基础的作用:基础的作用是承受建筑物全部重量并将之分散传递给地基。
190、墙体是构件,也可以是构件:是维护分割构件,同时也可以是承重构件。
191、在一般砖混结构房屋中,墙体也是主要的:承重构件。
192、停车场:指在建设用地内为停放机动车和非机动车须配置的场地。
193、停车场小型机动车位面积计算:按每车位25平方米计算。
194、自行车位按每车位多少平方计算:1.2平方米计算。
195、商品房销售面积又称之为:套建筑面积
196、套建筑面积包括哪两部份:套内建筑面积和分摊的公用建筑面积。
197、商品房预售许可证是由什么单位向什么单位发放的一项证书:是房地产管理部门向房地产开发公司颁发的一项证书。
198、商品房预售许可证的作用是:用以证明列入证书范围内的正在建设中的房屋已经可以预先出售给承购人。
199、契税是指:房屋所有权发生变更时,就当事人所订契约按房价的一定比例向产权承受人征收的一次性税收。
200、公共维修基金是指:住宅楼房的公共部位和共用设施、设备的维修养护基金。
201、公共维修基金的交纳人是:购房人。
202、公共维修基金何时交纳:在交房时交纳。
203、印花税是指:印花税是对经济活动和经济交往中书立、领受凭证征收的一种税。
204、居住用地使用年限:70年。
205、商业用地使用年限:40年。
206、工业用地使用年限:40年。
207、综合用地使用年限:50年。
208、土地使用年限届满后怎么办:业主可以在继续交纳土地出让金或使用费的前提下,继续使用该土地。
209、申办产权需具备哪些资料:审核后购销合同一份、收件收据、产权申请登记表、产权登记发证审批表、房屋所有权情况调查表、测量后的正式图纸。
210、办理产权需交纳哪些费用:产权登记费、勘丈测绘费、工本费。
211、房地产产权初始登记是指:对未经登记机关确认其房地产权利,领取房地产权利证书的土地使用权及建筑物、附着物的所有权进行的登记。
212、房地产登记是指:房地产产权登记。
213、房地产登记的种类:分为初始登记、转移登记、抵押登记、变更登记、其它登记。
214、什么情形属于房地产变更登记:
(1)地产使用用途改变;
(2)权利人姓名或名称发生变化的;
(3) 房地产座落名称或房地产名称发生变化的;
(4)建筑物、附着物倒塌、拆除。
215、房地产登记是以什么单位进行登记的:是以一宗土地为单位进行登记的。
216、申请房地产登记可否委托他人代理:可以委托他人代理。
217、由代理人办理申请房地产登记的,应向登记机关提交什么材料:申请人的委托书。
218、通过买卖、交换、赠与将房地产转移给他人的法律行为称之为:房地产转让。
219、房地产转让时其他公用设施是否一起转让:转让人对其他公用设施所拥有的权益同时转移。
220、在什么情况下房地产开发项目可以交付使用:房地产开发项目竣工,经验收合格后,方可交付使用;
221、未经验收或者验收不合格的房地产开发项目可否交付使用:不得交付使用。
222、预售面积是指:预售面积是指全部按建筑设计图上尺寸计算的房地产建筑面积。
223、预售面积只供什么情况下使用:只供房地产预售时使用。
224、竣工面积是指:竣工面积是指房地产竣工后实测的面积。
225、商品房预售须符合哪些条件?:
(1)交付全部土地使用权出让金,取得土地使用权证书;
(2)有建设工程规划许可证;
(3)按提供预售的商品房计算,投入开发建设资金达到工程建设总投资的25%以上,并已经确定施工进度和竣工交付日期;、
(4)向县级以上人民政府房产管理部门办理预售登记,取得商品房预售许可证明。
226、哪些情况下预售房购买者可以要求取消预售房合同:
(1)房屋开发公司不能按照原定日期交付预购房屋;
(2)建成后的房屋实际面积与预售房合同确定的面积不相符;
(3)建成后房屋建筑的材料与预售合同所列建材不相符。
227、五证是指:《国有土地使用证》、《建设用地规划许可证》、《建设工程规划许可证》、《建设工程开工证》、《商品房预售许可证》。
228、国有土地使用证:是证明土地使用者向国家支付土地使用权出让金,获得了在一定年限内某块国有土地使用权的法律凭证。
229、建设用地规划许可证:是建设单位在向土地管理部门申请征用、划拨土地前,经城市规划行政主管部门确认建设项目位置和范围符合城市规划的法定凭证。
230、建设工程规划许可证:是有关建设工程符合城市规划要求的法律凭证。
231、二书是指:《新建住宅质量保证书》和《新建住宅使用说明书》。
232、房地产抵押是指:指债务人或第三人(抵押人)以其合法拥有的房地产作为担保物向债权人(或押权人)提供债务履行担保的行为。
233、房地产按揭是否属于房地产抵押的一种形式:是。
234、申请抵押登记应提交什么资料:
(1)《房地产抵押登记申请书》;
(2)委托书;
(3)房地产证;
(4)夫妻双方身份证、户口簿、结婚证或未婚姻证明;
(5)商品房买卖合同和个人住房借款合同。
235、贷款期限在1年内的如遇利息调整如何处理:不做调整。
236、贷款期限在1年以上的如遇利息调整如何处理:于下一年1月1日开始,按相应期限档次利率执行新利率。
237、贷款人提前偿还贷款时本息如何计算:提前清偿的部分在以后期限不再计息,此前已计收贷款利息不作调整。
238、银行按揭是指:购房抵押贷款,是购房者以所购房屋的产权作抵押,由银行先行支付房款给发展商,以后购房者按月向银行分期支付本息。
239、个人住房按揭需提交哪些资料:购房身份证、户口簿、结婚证原件及复印件(未婚证明原件)、 收入证明(个体户则提供营业执照及税票)、已首付购房款收据原件及复印件、购房合同、贷款行的活期存折、贷款申请书、个人住房借款合同、借款借据、委托银行扣收购房还款协议书、住房抵押承诺书。
240、住房公积金是指:单位为其在职职工缴存的长期住房储金。
241、公积金贷款是指:由城市住房资金管理中心委托银行向购买自住住房的公积金交存人发放的贷款。
242、公积金贷款担保费用计算公式:贷款金额×贷款年限×千分之0.75。
243、什么情况下公积金贷款担保服务费可有优惠:首次购买普通自住房和改善型住房的客户在申请公积金(组合)贷款时。
244、公积金贷款担保服务费优惠幅度是:减免40%。
245、申请住房公积金贷款的条件:凡住房公积金连续缴存6个月以上或累计缴存公积金一年以上, 并且目前仍在缴存公积金,才有资格申请。
246、办理公积金贷款应提供哪些资料:身份证、户口簿、结婚证、收入证明、公积金卡、审核后购房合同一份,首付款票据。
247、组合贷款是指:公积金贷款与商业贷款的合称。
248、北京市限购政策:连续满五年的社保或五年的纳税申报记录。
249、目前住房公积金贷款最高额度为:80万元。
250、存量成套住房公积金贷款首付款比例为:30%。
251、90平方米以内(含)商品住房公积金贷款首付比例为:30%。
253、什么情况下可再次申请办理住房公积金贷款:借款申请人还清住房公积金贷款后。
254、契税是以什么价格为基数收取的:总房价。
255、契税税率为:90㎡以下的1%;90~140㎡为1.5%;140㎡以上为3%。
259、纯企划是指:由发展商出广告费,代理公司根据项目的特点,来为这个项目进行一系列的广告策划,不包括现场业务。
260、企划代销是指:由发展商提供广告费用,我们公司根据这个项目的特点给这个项目重新定位,从前期的案前准备、广告策划以及现场的销售进行一系列正题的运行。
261、包柜是指:代理销售者或公司仅负责销售,而企划则由其它的广告公司负责。
262、包销是指:由代理公司来承担广告费用的一种代理形式。
263、个案是指:房地产项目。
264、开盘:一个项目正式公开发售。
265、销售率:指售出的户数占可销的总户数的比例。
266、起价:是指商品房在销售时各单元或整个项目销售价格中的最低价格。
267、均价:单元或整个项目总销售额除以可销售面积得出的价格。
268、基价:经过核算而确定的每平方米的基本价格。
269、销售价:以基价增减楼层和朝向差价后得出的价格。
270、总价:总价是指每套房子的单价乘以面积所得出的价格,是购房者购买该套房子所要付出的全款。
271、定金:只是预付款的一部分,起到担保债权的作用。
274、SP的中文解释:销售促进。
275、SP是指:一种个人或团体用以促进成交或营造现场热烈气氛的炒作行为。
276、DSP:有一定针对性的网路弹窗广告。
277、PR:用以提升企业和产品形象的公关活动。
278、CF:电视广告。
279、DM:一种对于目标客源进行专门邮寄的邮政专递广告。
280、POP:指树立在户外的,大型的平面看板广告。
281、NP:报纸广告。
282、VI:平面广告表现的总称。
283、CI:企业形象表现的总称。
284、SOWT:个案的优势、劣势、市场威胁和市场机会的英文简写。
285、销海:用以促进销售的单张平面印刷海报。
286、夹报:一种跟销售海报类似的平面印刷品,用以夹在各类报纸中做宣传。
287、KT板:售楼处现场内布置的一种表现企业和产品形象的看板。
288、LOGO:展现产品形象和特色的标志。
289、鸟瞰图:从空中俯视的整个区域的效果表现图。
290、墨线图:单个产品或楼层的平面表现图,一般会标明比例及尺寸。
291、家配图:在墨线图的基础上配置上家具的平面效果表现图。
292、效果图:一种表现建筑外立面、小区景观等的平面图片。
293、地理位置图:一种表明个案所处位置的平面表现图。
294、交通表现图:一种表明个案周边交通情况的平面表现图。
295、生活机能图:一种表明个案周边生活、休闲、娱乐场所、学校、金融设施等的平面表现图
296、房型单片:印有单个房型或家配图的单片印刷图纸。
297、楼书:对小区的基本情况、发展商、产品、配套设施、智能化等做全面介绍的印刷文本。
298、道旗:沿马路设置在灯杆或其它立杆上的宣传旗帜。
299、灯箱:一种有内部灯光设置的,用以宣传企业和产品形象的广告表现物,一般为箱体结构。
300、高炮:一种不依附建筑物,用钢管或钢架等直接在空地上树立起来的巨大的广告物。
301、软文:直接以文字表达,着重企业形象推广和个案报导的广告形式。
302、硬广告:以直觉的平面表达形式(如效果图、房型图),配以少量的文字,直接述说企业或产品形象的广告手法。
303、控台:销售现场用以行政作业或控制销售速度、现场气氛、SP活动等的操作台。
304、BY位表:业务人员轮流接待客户的顺序表。
305、来访登记表:记录每组来访客户基本信息及购房需求的表格。
306、来电登记表:记录客户来电询问重点及需求的表格。
307、日报表:记录销售现场当天销售情况及人员出勤、资金流量情况和突发事件的综合表格。
308、周报表:记录销售现场一周销售情况及人员出勤、资金流量情况和突发事件的综合表格。
309、月报表:记录销售现场每月销售情况及人员出勤、资金流量情况和突发事件的综合表格。
310、销控表:综合记录现场销售情况及所剩房源的表格。
311、底价:一般为开发商开发成本和期望收益合成的销售价格。也指代理公司与开发商约定的合作最低销售价格。
312、表价:现场或对外的公开报价(一般会在底价上加上一定的百分比)。
313、佣金:业务人员根据销售业绩及提成比例所得的收入。
314、主力户型:个案中最为主要或最多的户型。
315、主力面积:主力户型的面积。
316、去化:指个案的销售情况。
317、利多:指个案的优点或主要卖点。
318、利空:指个案的缺点或明显不足点,也是个案的弱点。
319、市场调研:对相关项目的市场信息进行系统的收集、整理、记录和分析的过程。
320、市场调查包括哪几项:环境分析、产品分析、价格分析、去化分析、客源分析、业务分析、媒体分析、综合分析。
321、环境分析:包括区位情况、交通情况、配套设施等。
322、产品分析:包括基地情况、经济指标、房型配比、面积配比等。
323、价格分析:包括单价范围、总价范围、付款方式、折扣情况等。
324、去化分析:包括去化顺序、去化特征、去化抗性等。
325、客源分析:包括区域划分、客源层次、消费意图等。
326、业务分析:包括业务配备、业务能力、业务执行等。
327、媒体分析:包括媒体选择、宣传模式、主要述求等。
328、综合分析:包括优势分析、劣势分析、综合结论等。
329、计算全部建筑面积有哪些,例出5种:
房屋、夹层、插层、技术层、楼梯、电梯间、通道、门厅、回廊、楼梯间、电梯井、垃圾道、管道井、电梯机房、斜面构屋顶2.20米以上的部位、挑楼、全封闭的阳台、室外楼梯、通廊、地下室、半地下室、门廊、门斗、、车棚、货棚等。
330、计算一半的建筑面积有哪些,例出5种:
有盖无柱的外走廊、檐廊、单排柱的车棚、货棚、站台、未封闭的阳台、建筑物外有顶盖,无柱的走廊、檐廊、建筑物间有顶盖的架空通廊等。
331、不计算建筑面积的有那些,例出5种?:
柱、垛、无柱雨篷、悬挑窗台、室外爬梯、屋顶水箱、建筑物上无顶盖的平台(露台)、游泳池、独立烟囱、油罐、贮油(水)池、地下人防干道、支线等。
332、分摊公用建筑面积的计算方法:分摊公用建筑面积=套内建筑面积×公用建筑面积分摊系数
333、公用建筑面积分摊系数计算方法:公用建筑面积分摊系数=公用建筑面积÷套内建筑面积之和
334、公用建筑面积计算方法:公用建筑面积=整幢建筑的面积-套内建筑面积之和-不应分摊的建筑面积
335、哪些公用面积应分摊,例出5种:室内外楼梯、内外廊、公共门厅、通道、电梯、配电房、设备层、设备用房、结构转换层、技术层、空调机房、消防控制室、为整栋楼层服务的值班警卫室、建筑物内的垃圾房以及空出屋面有围护结构的楼梯间、电梯机房、水箱间等。
336、哪些公用面积不能分摊,例出5种:不能分摊的公用面积为底层架空层中作为公共使用的机动车库、非机动车库、公共开放空间、城市公共通道、沿街的骑楼作为公用开放使用的建筑面积、消防避难层;为了整栋建筑物使用的配电房;公民防护地下室以及地下车库、地下设备用房等。
声明:本文由入驻焦点开放平台的作者撰写,除焦点官方账号外,观点仅代表作者本人,不代表焦点立场。


