上海徐汇金巢铂瑞阁售楼处地址-首开价格-在售面积-售楼处电话
扫描到手机,新闻随时看
扫一扫,用手机看文章
更加方便分享给朋友
【 金巢铂瑞阁】
售楼处电话:400-886-1718 【营销中心】
看房提前来电预约登记
样板房采取预约制 仅限预约客户可参观徐汇区·高品质·高定官邸
【 金巢铂瑞阁】
建面约:50~105㎡
总价约:440~863万
不限购 不限贷 精装交付
项目基础信息
项目名称金巢铂瑞阁
行政区徐汇区物业类型50年商办
板块斜土路销售面积50-105㎡,主力60㎡
销售总价段420-820万付款方式首付7.5成
交付标准硬装交付定金20万
梯户比5梯26户项目地址徐汇区合宝路18号
开发商上海新融置业发展有限公司层高3米
物业公司上海同进物业服务有限公司总层数14层
竣工时间2015年车位数量共211个,地上12,地下199个
容积率3.89产权时间2004-2054年
交房时间2022年5月30日前
详细费用
各项费用明细水费6.49元/吨电费1.25元/度物业费8元/平/月停车费租金650元/月车位售价26万/个
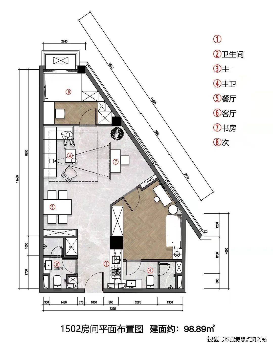
户型图及样板间照
【金巢铂瑞阁】整个项目由酒店、公寓、商铺三大核心产品组成,整个小区的居住环境不仅便捷,周围工作人群相对也比较简单。
项目户型分布图如下:
项目户型图如下:
【 金巢铂瑞阁】
售楼处电话:400-886-1718 【营销中心】
看房提前来电预约登记
样板房采取预约制 仅限预约客户可参观徐汇区·高品质·高定官邸
样板间照如下:


项目区位配套
【金巢铂瑞阁】作为内环内极度稀缺的小面积段商住产品,在地块的先天优势基础上重塑上海现代生活文化聚集空间,打造独具特色的诺阁雅酒店、酒店式公寓以及沿街商业,成为泛CBD核心区域不可或缺的定制配套
交通配套方面:项目距离9、12号线地铁嘉善路站4号口直线距离600米左右,4号线大木桥路站1号口800米,3条轨交线路与贯穿上海的南北高架及内环高架组成了三维立体的交通模式
医疗资源方面:中山医院,瑞金医院,上海市徐汇区中心医院,肿瘤医院(南部),华山医院,龙华医院等
教育资源方面:上海图书馆,上海市教育科学研究院,复旦大学(枫林校区),南洋中学,外国语小学,上海音乐学院,上海交通大学医学院,西南位育中学,中国科学院(上海分院),复旦大学上海医学院
商业及生活配套:购物及生活配套有日月光中心、金玉兰广场、田子坊距离本项目仅800米距离,距上海法租界也仅1.5公里距离。绿地缤纷城,尚街Loft(嘉善路),徐汇区茶陵菜市场,正大乐城等都在项目周边基本都是步行10分钟左右及可到达。
徐汇区·高品质·高定官邸
【 金巢铂瑞阁】
在售面积:50~105㎡
总价约:440~863万
不限购 不限贷 精装交付
【 金巢铂瑞阁】
售楼处电话:400-886-1718 【营销中心】
看房提前来电预约登记
声明:本文由入驻焦点开放平台的作者撰写,除焦点官方账号外,观点仅代表作者本人,不代表焦点立场。


