华发四季听澜 售楼处电话:400-8118-224【预约看房热线】 华发四季听澜 官方售楼处电话:4008118224【售楼处电话/地址】 华发四季听澜 售楼处电话:400-811-8224【开发商认证】
这两年,园区新房门槛一路攀升,中产想在核心区安家,难度越来越大。
对此,不少人把目光投向了 “用时间换空间” 的近园区别墅项目。
其中比较典型的案例就是近园区的四季听澜,一条星济隧道直通湖西,加上高性价比别墅产品,让其屡创即开即罄的销售神话,很多客户只能陪跑…
如今在四季听澜南侧,又一纯别墅小区即将入市!
它就是——旭辉建管Z40号地块。
华发四季听澜售楼处电话☎:400-8118-224

在别墅的选择里,“纯粹” 二字,往往决定了居住的终极品质。
旭辉建管Z40号深谙此道,所以比起四季听澜“洋房+叠墅+联排”的混合社区,它从根源上就做到了碾压——
1.01的极致低密,全盘只做3F联排与4F叠墅,仅276户,没有杂糅的业态干扰,只有同等圈层的邻里,这份私密与纯粹本身就是稀缺的奢侈品。
华发四季听澜售楼处电话☎:400-8118-224

华发四季听澜售楼处电话☎:400-8118-224
更惊艳的是产品力的全面跃升。
作为板块内首座宋风纯墅区,它不仅带来骨子里的东方雅致,更配建高端会所,自带恒温泳池、私宴厅…每一处细节都彰显着居者的品味与身份。

效果图,后续如有变以最新为准
而圈层的纯粹性,更是无可替代的加分项。联排约220-260㎡、叠加约143-160的户型规划,注定了社区客群的高度纯粹。
华发四季听澜售楼处电话☎:400-8118-224
项目近日,项目批后公示出炉!这也意味着这座近园区的纯墅区入市的脚步又快了一步!
华发四季听澜售楼处电话☎:400-8118-224
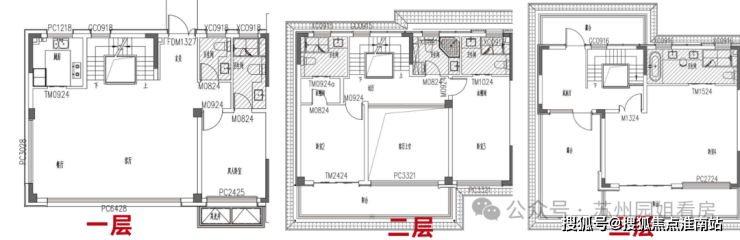
下面我们直接来看产品。
Z40号地块由旭辉建管代建,此前旭辉建管已经在相城落地了好几个创新产品,比如溪前雅居、四代宅蠡棠森屿等都是叫好又叫座!
轮到此次Z40号地块,同样值得期待。
就在近日,项目批后公示出炉,联排与下叠户型同步曝光!
华发四季听澜售楼处电话☎:400-8118-224
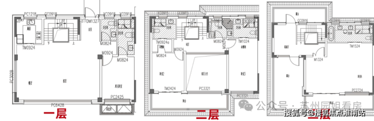
先看联排边户,测算面积约260㎡,地上3层+地下1层设计;地下室挑高约5米;地上3层,5房6卫,且为全明卫;
赠送面积很多,包括花园、阳台、露台、挑空等部分;

屋顶甚至还预留了阳光房框架。

华发四季听澜售楼处电话☎:400-8118-224
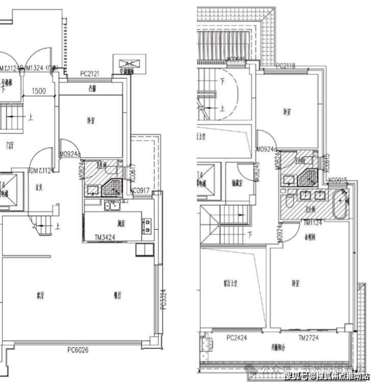
叠墅是4层真叠墅,分上下两叠,均带地下室,同样有大面积的挑空赠送!
目前仅公示了约160㎡下叠,经改造可做4房3卫。

华发四季听澜售楼处电话☎:400-8118-224
产品方面,项目将从规划、居住、形象、景观、体验5大维度进行产品升级,匠心打造当代新宋风美学院墅,以极致空间赠送,实现生活资源的尽大化享有。

华发四季听澜售楼处电话☎:400-8118-224
自带高端会所,设置有泳池,私宴厅等配套;会所就在小区北大门,未来也是业主的归家大堂。

华发四季听澜售楼处电话☎:400-8118-224
外立面首次曝光!传统宋式建筑的重檐、撺帘杆等元素,融入现代视觉手法,搭配大面积玻璃,豪宅感强烈!
效果图,后续如有变以最新为准


02
最后,我们再来看一下项目地段。
华发四季听澜售楼处电话☎:400-8118-224
位于相城太平街道,周边毗邻天然水系,坐拥多所优质学府,涵盖幼儿园至大学,已经形成一条完整而卓越的教育链。
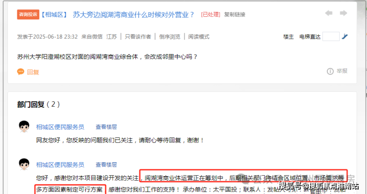
此外,一路之隔的阅湖湾商业也传来好好消息,据官方回复,商业体运营正在筹划中,相关部门正结合区域位置、市场需求等制定可行方案!

交通条件更是优秀,区域内有多条快速路畅达各大核心区;近地铁8号线,6站直达湖东时代广场;

华发四季听澜售楼处电话☎:400-8118-224
此外,约2个红绿灯即可进星济隧道(在建,预计2027年建成通车),未来一脚油门直达湖西CBD!真正一步园区!

华发四季听澜售楼处电话:400-8118-224【售楼中心热线】营销中心热线400-8118-224官方售楼处地址
4008118224楼盘项目全面介绍,本电话为开发商提供线上预约售楼电话,楼盘项目全面介绍(包含楼盘简介,均价,房价,现房,期房,别墅,叠墅,大平层,价格,楼盘地址,户型图,交通规划,备案价,备案名,项目配套,样板间,开盘时间,认筹时间,楼盘详情, 售楼处电话,最新消息,最新详情,周边配套,一房一价,最新进展等详情咨询)楼盘详情丨价格丨更多优惠丨机不可失丨欢迎致电丨诚邀品鉴!售楼处位置丨特价房丨工抵房丨剩余房源丨户型图丨最新消息丨免责声明:将文章内容综合来源于网络、只作分享,版权归原作者所有!!如有侵权,请联系我们。(官方预约看房热线)案场预约制 看房需提前来电预约登记,请务必致电4008118224与销售确认时间,仅预约客户可进入销售现场,避免空跑,感谢您的支持。售楼处楼盘详情,售楼处电话400-8118-224,售楼处官方电话400-811-8224,售楼处地址,售楼处面积,售楼处户型,售楼处价格,售楼处优惠,售楼处交通,售楼处学区,售楼处商业,售楼处得房率,售楼处绿化率,售楼处开盘时间,售楼处交房时间,售楼处百科详情!