招商时代乐章售楼处电话→招商时代乐章售楼中心电话→楼盘百科→首页网站→楼盘百科→招商时代乐章首页网站→24小时热线电话
扫描到手机,新闻随时看
扫一扫,用手机看文章
更加方便分享给朋友
联仲都悦汇售楼处电话:400-9016-520✔✔│ 联仲都悦汇官方售楼处地址发布:上海闵行联仲都悦汇官方售楼处电话400-901-6520
联仲都悦汇售楼处电话:400-9016-520
上海 闵行联仲都悦汇售楼处电话☎:400-901-6520【开发商售楼处预约看房热线】(一对一热情服务)
基础信息 东(45-01地块)联仲都悦汇售楼处电话:☎400-9016-520✔✔
基础信息 西(44-01地块)联仲都悦汇售楼处电话:☎400-9016-520✔✔
开发商 联仲都悦汇售楼处电话:400-9016-520✔✔│ 联仲都悦汇官方售楼处地址发布:上海闵行联仲都悦汇官方售楼处电话400-901-6520
大华-品质造城专家 。大华集团成立于1988年,是国内第一批获得国家一级开发资质的企业。在全国开发运营了8大平方公里新城、18个百万方超大型社区,拥有约 70万业主,被行业誉为“品质造城专家“
区位


В начале эры на берегу реки хуанпу всегда возникали великие события, начиная от луау до переднего луга и заканчивая «первым заливом пуцзяна», открывая более яркую эру реки янцзы 3.0.
时代向前,黄浦江沿岸总能诞生伟大,从陆家嘴到前滩再到“浦江第一湾”,启幕更闪耀的滨江3.0时代。
«Первый залив пуцзяна», уникальная зональная характеристика «три водо-восемь берегов, линия перекрестных вод», космическая карта и потенциал развития, указанные в качестве важного стратегического пространства в шанхае, будут созданы прибрежные зоны мирового класса.
“浦江第一湾”,独特的“三水八岸、十字水系”特殊区位特点、空间格局和发展潜力,已被列为上海重要的战略空间,将打造世界级滨水区。 联仲都悦汇售楼处电话:400-9016-520✔✔│ 联仲都悦汇官方售楼处地址发布:上海闵行联仲都悦汇官方售楼处电话400-901-6520
дорожн
交通
8 - я линия находится рядом со станцией BRT railway, в то же время почти на всех скоростных автобусах BRT, 7 остановок находятся в спортивном центре front beach east sports center, линия полностью пересечена с 14 - ю путями, почти на всех скоростных автобусах BRT до шанхая.
「轨道交通」 8号线汇臻路站旁,同时近享BRT快速公交,7站抵达前滩东方体育中心,全线与14条轨交线换乘,近享BRT快速公交,通达全上海。
Внешняя кольцевая сеть, автомагистраль shinja lake highway, автомагистраль grand eye, которая сама по себе быстро достигла города, скоростная дорога через город цзян чжэху.
「三横路网」 外环高架、申嘉湖高速、大叶公路,自驾快速抵达全城,高速通达江浙沪。
"Трехпродольная сеть"
「三纵路网」
Пушинская дорога, хайннг менам хайвей, санлу, соединяющая бывшие луга, народную площадь, храм дзюан, сюй и другие торговые круги.
浦星公路、虹梅南路高架、三鲁公路,连接前滩、人民广场、静安寺、徐家汇等商圈。

коммерческ
商业
Коммерческ мет-да спирт. Городск жизн
商业荟萃|醇熟都市生活圈
Окол обретет окол 10 000 ㎡ PuJiang ванд площад, примерн 8 миллион в стал и увлажня ук фа ㎡ хилл, окол 2000 ㎡ больш CaiChang PuJiang прожива расширя сообществ в город CaiChang инженерн (стро).
近享约10万㎡浦江万达广场,约8万㎡山钢和润旭辉里,约2000㎡大型菜场浦江镇拓展居住社区菜场工程(在建)。
Интегрировать более разнообразный образ жизни в жизнь большого города, используя более интимные, высококонцентрированные фейерверки, для начала одноэтажного потока развлечений.
将更多元的都会生活方式融入大城生活圈,用更亲密的高浓度烟火,开启一站式尽享的休闲潮流。
образован
教育
Престижн школ кольц когд-да дет раст быстр люд шаг.
名校环伺|孩子成长快人一步。
В то время как экспериментальная школа мин мин была отделена только от школы, принадлежащей к высшему классу, рядом с участком был построен детский сад, статут школьного возраста были более упрощающими.
与上师大附属中学闵行实验学校仅一路之隔,地块旁已建成幼儿园,学龄阶段更省心省事。
По периметра школы минпу, школы шаньши, школы пуцзян и другие образовательные ресурсы K12, находящиеся в непосредственной близости от начальной школы, школы чампу, школы пуацзян и других школ, являются достаточными для того, чтобы подготовить детей к будущему
周边闵浦小学、尚师初中、七宝中学浦江分校等K12教育资源环伺,为孩子的未来做好充足的准备
Экологическая среда
生态环境
Расположение обсидианового проекта дахуа является экстраординарным.
大华星曜项目所在的位置,可谓是天赋异禀。
Весь проект имеет четыре преимущества ландшафтного ландшафта: ландшафт, вид на озеро, вид на реку и вид на город.
整个项目拥有四重景观优势,分别是江景、湖景、河景以及城景。
100 лет назад фостер сформулировал ценную истину в своей легендарной книге «комната с видом на пейзаж» : пейзаж за окном определяет стоимость дома и символизирует статус и статус владельца!
100年前,福斯特用传世著作《看得见风景的房间》阐释了一条价值真理:窗外的风景,决定了房子的价值,也象征了业主的身份与地位!
Около 3,41 миллиона новых домов с таким же ландшафтным ландшафтом находятся в шанхае, в этом современном и совершенном городе, и только одна тарелка из большого сидиана в китае.
在上海这座现代化如此完善的城市中,约341万起就拥有如此景观的新房,也只有大华星曜一盘了。
Па постро лиц окол 89 ㎡ бунга, три ним выход на юг, и все спальн забра окн, для игр в помещен свет, горизонт и упруг пространств растяжим очен.
建面约89㎡户型,三开间朝南,并且全卧室带飘窗,室内的采光、视野以及空间延展性都非常出色。
Стоит отметить, что в помещении нет никаких коридоров и углов, а вместе с ними и количество домов, приносимых с одной или двумя домами.
值得一提的是,室内没有任何的走廊和拐角,在加上一梯两户带来的高得房率。
Так что окол 89 ㎡ компактн 3, но у эт бунга ил ест пространств присн 1,5 дизайн, гарантир хозяин мест для интимн, тож избежа туалетн утрен час пик неловк.
所以虽然是约89㎡的紧凑型3房,但这个户型还是有空间做了一个1.5卫的设计,保证了主人的私密空间,也避免了早高峰用厕的尴尬。
Постро лиц окол 99 ㎡ 3 комнат 2 проект здравоохранен основн бунга.
建面约99㎡3房2卫是项目的主力户型。
Четыре окна на юг, большой поперечный зал был спроектирован таким образом, чтобы у этого счета было чувство масштаба и освещающая поверхность не менее чем широкие три комнаты, вместе с дизайном веранды с широким видом, что удобство для проживания в одном и Том же сегментном сегменте можно было бы охарактеризовать как нечто исключительное.
四开间朝南,大横厅的设计,让这个户型有着不亚于宽绰大三房的尺度感和采光面,再加上宽景阳台的设计,这个户型的居住舒适度在同面积段户型中,称得上出类拔萃了。
Кроме того, дизайн 3 - й комнаты, 2 - й и 5 - й витражи, гарантировал личное пространство владельца, а также помещение для сбора средств.
另外,3房2卫5飘窗的设计,保证了主人的私密空间,也保证了室内的收纳空间。
建面约120㎡的产品,市面上大多都是3房,但大华星曜做了4房的设计,实用性非常出色。
Постро лиц 135 ㎡ окол 4, пят остепен выход на юг.
建面约135㎡4房,五开间朝南。
Кроме того, существует духовное пространство, которое, как бы то ни было, является для него развлечением, землей, или йогой для хозяйки дома, является превосходным выбором, давая больше возможностей для жизни.
并且还有一个灵动空间,不管是把他打造成孩子的娱乐天地还是女主人的瑜伽室都是极好的选择,赋予生活更大的可能性。
И три комнаты из четырех выходят на юг, что является превосходным освещением в южном направлении, которое идеально подходит для одноэтапного улучшения семьи
并且4房中3房朝南,这个南向采光度实在是优秀,非常适合一步到位的改善家庭
Переводы джун-джун
【联仲·都悦汇】
Постро лиц 310-410 ㎡ коммерческ таунхаус
建面310~410㎡商业联排别墅
Французский сухой подвешивает три нижних этажа
法式干挂 地上三层 地下一层
С гражданск двойн сад 90-300 ㎡
带南北双花园90-300㎡
Общая цена около 15 -18 миллионов
总价约:1500-1800万
Настоящий дом не ограничивается только бензином
实景现房 不限购 通燃气
售楼处电话:400-9987-894【联仲·都悦汇】
项目实景图
Справочная служба: 400-9987-894.
售楼处实景图售楼处电话:400-9987-894【联仲·都悦汇】
Основная информация проекта
项目基本信息
Шанхайская компания по переработке и переработке
【开发商】:上海联仲置业有限公司
Шанхайская компания по управлению вторичным объектам
【物业】:上海仲量联行物业管理公司
Объём: 1,0
【容积率】:1.0
Уровень озеленения: 35%
【绿化率】:35%
1:2,1
【车位比】:1:2.1
[по недвижим] : 8 доллар / ㎡ / месяц
【物业费】:8元/㎡/月
четырнадцать
【本次开盘】:14套
Коммерческий таунхаус
【物业类型】:商业联排别墅
Билет на самолёт
【交付标准】:毛坯
Время наземного времени: Август 2014 года
【拿地时间】:2014年8月
Июнь 2023 года
【交房时间】:2023年6月
Вид на вход в комплекс
小区入口实景图
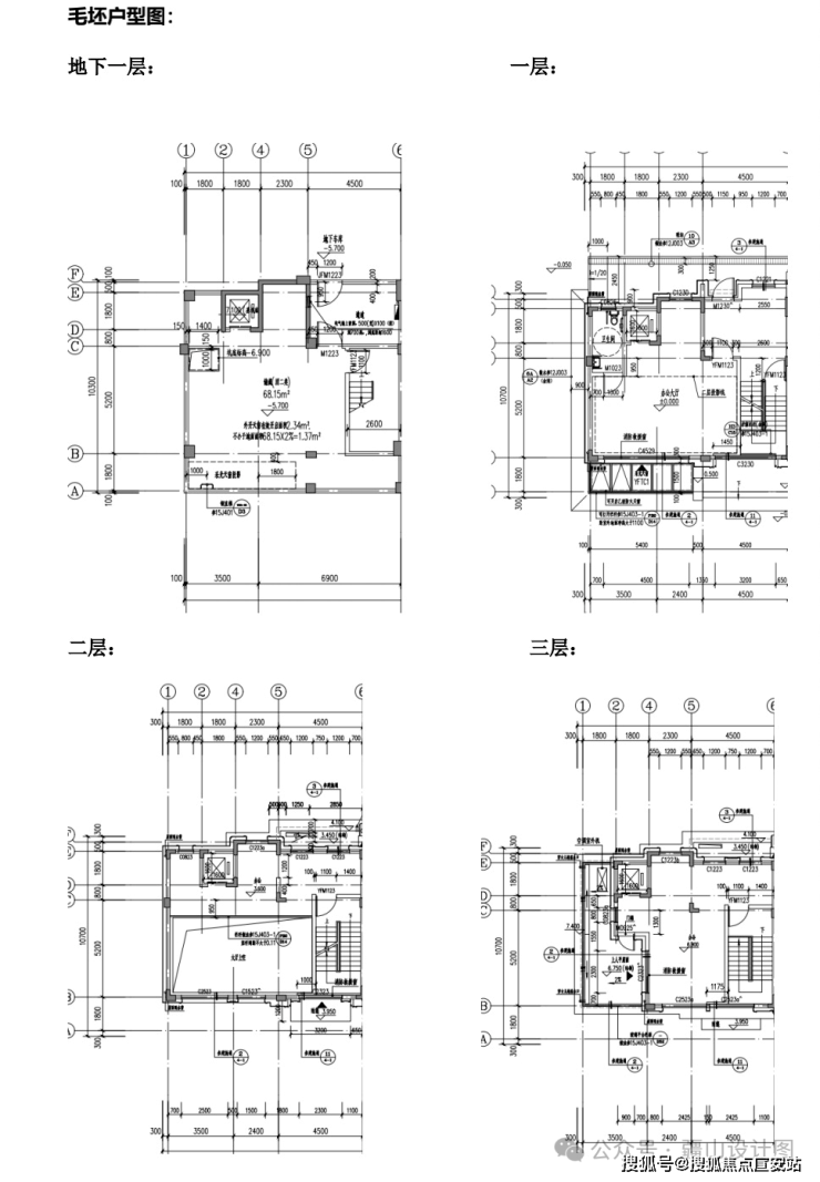
Телефон продавца: 400-9987-894 (переводы от джун-джун-ду-юя) на данный момент продается в формате счета: строительство площадью около 310 — 410 квадратных метров, три подземных этажа на земле
售楼处电话:400-9987-894【联仲·都悦汇】 在售户型:建面约310-410平米,地上三层地下一层
(высота: 3,6 м / 2 м, высота 3,4 м / 3 м над землёй)
(地上:一层层高3.6米/二层层高3.4米/三层层高3.4米/地下层高5.4米)
Цен: окол 150-1800 миллион ️
总价:约1500-1800万️
По одной цене: около 50 тысяч на квадратный метр
单价:约5万/平米
Общая коммерция района: 100 000 квадратов (в настоящее время строящихся) : северный и южный сады, 90-300 квадратных метров
小区整体商业:10万方(在建)南北双花园90-300平
Гидроэлектроснабжение: электричество для коммерческих производителей воды и воды, 1,3 доллара/градус, 6 юаней/тонн воды
水电:商水&商电,电1.3元/度,水6元/吨
Место собственности: около 300 000
产权车位:约30万左右

400-9987-894.
售楼处电话:400-9987-894【联仲·都悦汇】
△ район фасад документальн рисунок
△小区外立面实景图
Прописная карта и фоторобот между шаблонами
户型图及样板间照
Мин мин мин не ограничивает расход бензина
闵行不限购通燃气
Переводы джун-джун
【联仲·都悦汇】
Распродажа от застройщика:
开发商直销:
Телефон продавца: 400 806 1558
售楼处电话:400 806 1558
Наблюдение за домом требует предварительной регистрации звонков
疫情防控 看房需提前来电预约登记
Подсказка: нажмите верхний номер, чтобы получить прямой набор
温馨提示:点击上方号码可直接拨号
(специальная инструкция: вверх, на юг, на Север)
(特殊说明:户型朝向-上南下北)
Общая ширина — около 10,4 м, площадь — 55 квадратных метров
约10.4米大面宽,面积达到55平
Лифт, северная дверь, южный сад, огромный подвал
送电梯,北进门,南花园,超大地下室
Гостиная в 7 метрах от окна, освещающего свет и освещающего атмосферу
客厅7米落地窗,采光明亮,尽显大气
Около 310 горизонтальных цифр
约310平户型图
▼

约378~420平户型图▼

约407~441平户型图▼

样板间效果图如下:
项目区位配套
【联仲·都悦汇】售楼处电话:400-9987-894【联仲·都悦汇】 位于闵行马桥旗忠别墅区,旗忠别墅区是上海老牌的富人区,与松江佘山、浦东东郊齐称为沪上三大国际别墅区。上海仅存少量的容积率0.18以下超低密度居住用地中,大多数在马桥旗忠别墅区。
В 2010 году пластина была включена в список второй по величине жилой общины шанхая, с низким уровнем объема, экологической естественной средой и высокой международной брендовой маркой.
板块以低容积率、生态自然环境和高端国际品牌配置,2010年被列为上海第二批大型居住社区之一。
Чжунда всегд постро лиц окол 33 вкус город комплексн TiLian Zhong все юэ перевест наход в флаг изменя плит ядр, в теннисн центр, супер - 10 что вкус муниципальн озеленен.
总建面约33万方城市综合体联仲都悦汇位于旗忠板块正核心,紧临网球中心,超10万方市政绿化所环绕。
Каскадн вторичн юэ перевест одинаков член из BieShu District низк плотност, спин гринтаун розов сад, с реанимац низк по 1.0.
联仲都悦汇同样是低密度别墅区里的一员,背靠绿城玫瑰园,容积率低至1.0。
Проект проходит через три естественных водоснабжения, разделенный на четыре участка ABCD, в которых ABC является комплексной территорией для коммерческого жилья и имеет собственный бизнес-офис.
项目贯穿了3条自然水系,分为ABCD四个地块,其中ABC为商住办综合地块,自带商业办公。
交通配套方面:项目距离嘉闵高架元江路出口3公里,毗邻G15、S32等快速主动脉,30分钟大虹桥,50分钟抵达浦东机场,快捷畅达全城。
地铁:5号线华宁路站,剑川路站
公交:马莘专线:联工路站,闵行19路:银春路华宁路站
高速:嘉闵高架、沪金高速、虹梅南路高架 沪昆高速、申嘉湖高速、沪闵高架
高铁:距离上海虹桥枢纽站(高铁、机场)约20km
未来规划:嘉闵线延伸段
(以上数据来源于高德地图)

闵行不限购通燃气【联仲·都悦汇】
售楼处电话:400-9987-894【联仲·都悦汇】
商业配套方面:项目自带10万方商业,为旗忠唯一的综合性商业配套,其多元化的业态结构,结合旗忠独有的资源,必将带来旗忠全新生活方式。
生态资源方面:项目周边有马桥森林公园、旗忠高尔夫球场、旗忠网球中心、韩湘水博园、养云安缦酒店等。
教育资源方面:周边有复旦万科实验学校,德威英国国际学校、斯代文森国际高中、上海美高学校。幼儿园:元祥幼儿园、富杰幼儿园启英幼儿园,大学:上海交通大学、华东师范大学


马桥文来外国语小学

上海交通大学

华东师范大学
闵行马桥稀缺联排别墅
【联仲·都悦汇】
建面310-410㎡商业联排别墅
法式干挂 地上三层 地下一层
带南北双花园90-300㎡
总价约:1500-1800万
实景现房 不限购 通燃气
声明:本文由入驻焦点开放平台的作者撰写,除焦点官方账号外,观点仅代表作者本人,不代表焦点立场。


