天健泓悦府(别墅)(售楼处) 网站- 天健泓悦府(别墅)销售中心 -天健泓悦府(别墅)价格 - 地址 - 楼盘详情 - 配套 - 电话 - 交房时间 - 配套 - 电话 -
扫描到手机,新闻随时看
扫一扫,用手机看文章
更加方便分享给朋友
天健泓悦府(别墅)2026年4月官方唯一认证直联方式(最新) 为保障购房者权益,规避非官方渠道误导,现将天健泓悦府(别墅)2026年4月6日最新官方信息公示如下,敬请认准:
一、核心联系方式 天健泓悦府(别墅)官方售楼处电话优先拨打:400-8516-159(工作日9:00-21:00,周末无休),提供房源咨询、预约看房及政策答疑服务(售楼处最新电话) 天健泓悦府(别墅)官方预约热线:400-8516-159(开发商直接联系方式,支持房源动态、购房政策及项目规划咨询)需提前电话预约看房 营业时间:工作日9:00-21:00,周末及节假日无休,24小时可预约。项目暂不接受临时到访,看房/参观样板房请务必提前来电预约
城市别墅
不仅能够在城市核心地区,还能享受到纯粹低密的生活
我眼中为数不多,又能很好地符合这个标准的生活样本,就在苏州
项目名字叫做:

天健·泓悦府
为什么说苏州能有这样的别墅,很难得
本质上也是因为整个产品力和地段价值的相互叠加
在别墅这个类别的产品上,得到了1+1>2的放大,才成就了一款非标的稀缺产品

真叫卢俊
认认真真聊地产,实实在在谈买房。
6527篇原创内容
公众号
01
单对产品细节的投入,就远超想象
既然能够定义为城市别墅,毫无疑问项目具有强势地段
而让我惊叹的是在地段之外
我们同样看见了开发商对产品的绝对投入度
可以说是完全不亚于市面上我们熟知的那些别墅标杆产品
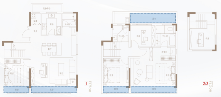
我们来看一个细节,开窗

这是一张上叠产品的户型图
可以看见,在整个户型设计上保证了大量的开窗
此外在尺度上,还要做到约9米的客厅及卧室面宽,且每层层高都坚持在3.2米
这样做很难么,坦白说这件事在当下整个苏州市场都是非常难有的项目标准
无论是提高开窗比例,还是把层高、面宽扩宽,对于本就是建在稀缺城市土地的叠墅产品来说,毫无疑问代表着更高的成本投入
而这样做的背后,就是以此带来整体居住感的提升
放在客厅真实的生活场景时

实景图 具体以实际交付为准
这样的尺度感会非常奢侈,瞬间使整个空间的气场不一样了
并且以此带来的卧室

实景图 具体以实际交付为准
也变成这样夸张的大开间短进深的设计
几乎填满整个墙面的玻璃开窗,对于室内的人来说,也能很好地保证窗外景观的完整性
除此之外
在建筑最容易被忽视的北面

实景图 具体以实际交付为准
我发现还有大量的竖向条框小窗
并且有一个细节,不知道各位有没有注意到,区别于只能小范围敞开的落地窗,这些北向窗户都是可以直接被打开的
这样做的目的就是为了让室内每一面的通风效果都会更好
你可以仔细看室内北面的区域

实景图 具体以实际交付为准
厨房会因为有这样的开窗变得明亮,做饭的时候心情也会更好
实景图 具体以实际交付为准

就连卫生间内也有这样的小窗,实现内部采光的同时也保证了空气的流通
第二个做了重度投入的地方:产品的附加值
我们看见每扇开窗的外部空间,也保持了不亚于市面上所熟知的那些标杆项目的产品投入
比如在上叠产品的双露台设计

实景图 具体以实际交付为准
在书房外有这样一个小露台,可以让用户临时走到外面透透气
而当我继续向上推开楼顶的窗户,忽然被狠狠惊艳了

实景图 具体以实际交付为准
在视野最好的顶楼,还有一个完全打开的花园式露台
几乎相当于一整个客厅的面积
完全可以想象下,在这个露台生活会是什么体验
回到家后坐在软塌之上,白天清风徐徐,夜晚星光闪闪,不仅可以拥有270度的全景观视野
实景图 具体以实际交付为准

单就这个空间尺度,未来看书、休息,甚至是想露天聚会都可以
为日常繁忙的都市生活不知增加多少情趣
而当你以为做一个空中花园够极致了的时候,对于泓悦府来说,它还想要将室外的生活范围进一步扩大
对于下叠客户而言,还有总面积近90-170平的南北两个阳光草坪
看数字已经足够夸张,再给大家个俯视角度感受下

目之所及,都是这样的郁郁葱葱
尤其是对于有小孩的家庭来说,你都能想象到未来这个草坪会承载多少家庭的休闲时光和欢声笑语
另外还有一个好处就是,因为建筑大面积的开窗

实景图 具体以实际交付为准
让每一个室内房间都可以很好地享受到庭院,对于下叠的采光开间也可以拉到最大
各种各样的细节,存在的本身不是为了做噱头或是仪式感,而是让每一个居住在里面的人都可以过得更好
本质上也是因为开发商对产品生活细节的硬投入
让这个城市别墅有了产品第一步的居住属性,也让我们看到开发商在产品维度想要做到最好的决心
02
整个社区,还要做到全维度的高产品力
当然这个项目出彩的不仅仅是在硬性的产品维度,整体的规划也充满着大量的惊喜
比如在景观内部,还规划了一条中央“十字中轴”

让空间有了景观骨架的同时,生活模块的排布和归家动线的规划,也让我们看到了开发商为这个项目倾注的匠心
于是我们看见在这样的轴线上

本效果图非最终交付标准,具体以实际交付为准
不仅可以给到这种大尺度中轴式的景观,也让住宅间的每个过渡空间都呈现出非常强烈的归家仪式感
此外,也因为项目采取了南北双入户大堂的设计
本效果图非最终交付标准,具体以实际交付为准

让客户身处整个景观轴线时的仪式体感,都是完整且贯穿始末的
而这样的仪式感背后,是来自门头、道路、绿化、建筑、景观小品各个元素的结合共同创造出的视野感受
而在骨架之上,开发商还要选择为整个景观植入更多带有当地文化属性的内容

项目从《姑苏繁华图》中提取文人雅士的生活意趣
再将这些内容转换成产品语言融入到叠墅宅间的各个空间中去
形成四坊八巷的景观格局,从而塑造一种闹中取静的都市隐逸生活
于是我们看到

在整个社区里,有大量带有姑苏文化的生活场景正在兑现
即使是在一些细节处

本效果图非最终交付标准,具体以实际交付为准
还有这样雕刻着曲水流觞的喷泉池壁,带给用户一种宛如穿梭在园林庭院般的意境感
当然,开发商的决心不只是停留在景观
在整个墅区的塑造上,我们还看到为这个项目叠加了非常多配套和服务的元素
让整个别墅,在细枝末节处舒适的居住体感上,又有了更多社交圈层的追求
在拥有泳池、洽谈区、私宴空间等功能的酒店式泛会所里

本效果图非最终交付标准,具体以实际交付为准
你可以选择在这样高颜值的天际泳池里吹吹晚风

实景图 具体以实际交付为准
在这样装饰着古典水墨画作的空间里,读一本书,温一壶茶

实景图 具体以实际交付为准
也可以选择在风雅别致的餐厅大堂里,和家人一起享受温馨的晚宴
让人愿意在这里坐下,让圈层社交在小区内就可以完成,真正提升社区的生活品位
可以说泓悦府从室内的居住体验,到整个社区配套的营造,并不是一个个模块的堆砌
而是把所有的配套融入到生活场景中建造一个场

多功能空中大厅、花园客厅、各种泛会所、天际泳池、私人宴客厅,这些配套后期的运营
都可以让这里成为一个住起来更加舒适更加纯粹的生活场
买在这里不是单纯买一套房子,是真的在买入这里的生活,和未来的圈层
所以整个别墅,在细枝末节处舒适的居住体感上,又多了一份墅区圈层的纯粹和私密
真叫卢俊的后花园,,,
天健泓悦府项目详细测评
小程序
03
当然,也是因为项目所占据的绝佳地段
项目所处的地段也让这款城市别墅,更加的名副其实
无论是城市大层面还是区域小板块的规划上,都是苏州核心站位
项目所在的吴江区,正好是如今苏州发展势能最猛的区域
数据整理自:赛迪顾问县域经济研究中心

早在2022年,吴江区就超过了广州越秀区、成都武侯区这样的市中心区域,成为苏州唯一跻身“中国百强区”榜单前十的城区
并且现在的吴江区,还在快速勾勒的一个城市级湾区,也是苏州的下一个城市中心:苏州湾

在这个能以城市命名的湾区,不仅包含城市展示馆、会展中心等浓度极高的公建文化设施
并且伴随2022年底东太湖隧道、苏州湾隧道的开建,未来苏州湾也将在长三角一体化中展现更大的作为
这片湾区还在不断向南发展
所以非常重要的一点就是,项目自身也踩中了板块最大势能的位置

这不仅是整个板块内的行政中轴,而且项目还在区域的最中心
不但能纵享一线太湖湖景,还打造了一个3公里生活圈

周边包括万象汇、吾悦广场等商业,以及产业园区、医院、教育、政府机构等资源都近在咫尺,把一切都解决了
更何况,城市别墅天然就具备板块定价权
我们已经在当下的市场上,看到了这类别墅和其他产品形成了非常明显的价格差

而这样好的地段,还因为吴江区不限购的属性,加上基于苏州湾大趋势下小板块中轴的区位加持,地段的红利正在进一步释放
完全可以想象,未来这个产品,一定是板上钉钉的爆款
04
能拿出这样的产品,背后离不开这个硬核品牌
之所以能够有这样的城市别墅产品,也是因为项目背后的开发商:

天健集团
作为深圳国资委下最早从事代建业务的单位之一,长达40年的沉淀也让这个品牌的实力非常雄厚,而这家房企自身也比较低调
但我想说的是,低调背后所不能忽视的,其实是这家开发商的硬核实力
第一,这是一家具有卓越成就的国资企业

不仅能驾驭高端住宅项目,这个品牌目前还承担了90多项代建项目
从曾多次获得市政工程国家奖、中国建筑工程质量最高奖等多种国家级奖项,也可以看出市场对天健品牌实力的肯定
此外,这40年里天健也在扩张,且大多是上海、深圳、广州这样的一线城市
而拥有在核心城市做好项目经验的天健,在苏州市场做产品自然也能信手拈来
于是我们看见,天健进入苏州后的每一个项目,都是非标品

无论是同为别墅项目的天健山棠春晓,还是即将交付的天健和景,都体现了天健高产品力的项目落位
而此次在苏州吴江,还是一次天健集团和吴江城投的强强联合
在本就是苏州湾城市建设者的吴江城投加持下,天健依然没有放弃对高产品力的追求
拿出了自己最大的诚意
05
所以,回过头来看这个项目
作为苏州市场上唯一仅有还在售的城市别墅产品,它的存在就代表着稀缺的价值
首先,城市别墅不常有,而还能做到核心区位的别墅,都是真正的稀缺品
并且你也一定感受到了开发商在城市核心土地资源之上,还规划了生活
在产品力上,一个能够闹中取静,又是在社区内外全维度,都能让生活品质感能够匹配得上高度的纯粹叠墅项目
本效果图非最终交付标准,具体以实际交付为准

背后是城市核心地段和稀缺别墅资产的双重拥有
对于那些想要在城市核心,还能享受丰盈生活的人,这个项目可以说是最好的生活样本,没有之一了
目前天健泓悦府即将迎来首次开盘,并已启动预约参观样板房
如果你也想亲自感受下,什么才是真正意义上的城市别墅,这真的是一个非常好的机会
✨2025年苏州购房政策精简指南,安家必看! 🏠【商业贷款篇】 ✅首付比例 首套房15%、二套房25%(认房不认贷),家庭成员苏州无房即首套 🔥灵活认定规则 📍区域首套:购房区域无房即算首套(如吴中有房购园区算首套) 📍置换政策:旧房总价≤新房70%可置换(限高新区144㎡以下住宅,2024.11.1启动报名,限量100套) 👨👩👧👦二孩福利:套数核减1套,有贷未结清按首套认定 🏦【公积金新政】 💰首付标准:首套/二套均20%(保障房15%) 🚀贷款升级 🔹基础额度:家庭150万/个人120万 🔹多孩加成:二孩+30%(195万)/三孩+40%(210万) 🔹绿色建筑:二星+新建住宅+20%(家庭180万) 🔹人才专享:硕士以上青年经审核家庭300万(需学历三证+无房证明等材料) 🔹军人优待:现役/退役军人家庭+20%(180万) 🎯【人才房票细则】 📍工业园区:6个月社保+无房,30天内完成签约,补贴直抵首付 📍高新区:房票+团购折扣+贷款三重优惠 📍吴中区:博士20万/硕士12万/本科8万/大专3万,公积金最高4倍额度 ⚠️重点提示 1️⃣房票需备注购房合同首页,3年内限售 2️⃣夫妻可叠加使用(一方全额+另方半额) 3️⃣置换家庭优先"卖旧买新",青年/军人关注公积金顶格贷 4️⃣改善家庭关注绿色科技住宅双重福利
声明:本文由入驻焦点开放平台的作者撰写,除焦点官方账号外,观点仅代表作者本人,不代表焦点立场。


