峰度天下(售楼处) 官方网站 - 峰度天下销售中心 - 环境 - 户型 - 峰度天下价格 - 地址 - 楼盘详情 - 配套 - 电话 - 交房时间 - 配套 - 电话 - 交房时间
扫描到手机,新闻随时看
扫一扫,用手机看文章
更加方便分享给朋友
建面约160-230㎡大平层
售价580~1000万
配置24H管家服务/高端会所
集游泳、健身、亲子、会客等功能
目前“样板间”已开放
上海闵行峰度天下
——恭迎品鉴——
项目仅接受预约参观
房型介绍
165㎡户型丨三房两厅三卫
峰度天下售楼处电话:400-8118-224
峰度天下营销中心热线400-8118-224(官方预约看房热线)
▲建筑外立面
▲入户大堂
峰度天下售楼处电话:400-8118-224
峰度天下营销中心热线400-8118-224(官方预约看房热线)
▲电梯厅
▲客厅
▲餐厅
▲厨房
230㎡户型丨四房三厅三卫+保姆房
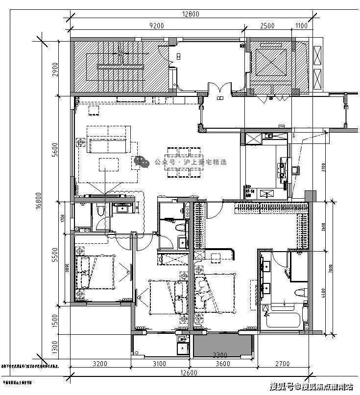
▲户型图
▲沙盘
项目区域:虹桥商务区-前湾
面积区间:160-174-230m²
价格区间:580-1000万
层高:3.5米
得房率:85%
梯户比:1梯1户
物业公司:高誉物业
物业费:6.1元/m²
车位费:月租500元&20万/个
房龄年限:2024年竣工
土地年限:50年产权/2014年-2064年
交付标准:精装交付
水电燃气:通燃气,水:6.7元/吨,电:0.98元/度
交付时间:现房交付
优势:虹桥商务区全新建造的服务式公寓社区,类住宅,一梯一户,人车分流,得房率85%,带会所(恒温泳池,健身房)
峰度天下售楼处电话:4008878824【售楼中心热线】峰度天下营销中心热线400-8118-224峰度天下售楼处地址400-8118-224
推荐阅读
对于许多家庭而言,首次购房往往是刚需置业,凝聚着多年的积蓄与对未来的期盼。因此,在选房过程中务必谨慎,避免踏入常见的误区。以下10条由过来人总结的买房建议,结合当前房产政策环境,希望能助你在购房路上走得更稳、更顺。
【峰度天下】官方售楼处电话:400-8118-224【售楼中心热线】营销中心热线400-811-8224官方网站售楼处地址 楼盘好不好?多少钱?能不能买?优缺点!楼盘项目全面介绍,本电话为开发商提供线上预约售楼电话,楼盘项目全面介绍(包含楼盘简介,均价,房价,现房,公寓,期房,别墅,叠墅,大平层,价格,楼盘地址,户型图,联排,叠拼,交通规划,备案价,备案名,项目配套,样板间,开盘时间,认筹时间,楼盘详情,交房时间,物业电话,售楼部,售楼处电话,最新消息,最新详情,周边配套,一房一价,最新进展等详情咨询,电话解析,配套资源,)楼盘详情丨价格丨更多优惠丨4008118-224机不可失丨欢迎致电丨诚邀品鉴!售楼处位置丨特价房丨工抵房丨剩余房源丨户型图丨最新消息丨免责声明:将文章内容综合来源于网络、只作分享,版权归原作者所有!!如有侵权,请联系我们。(官方预约看房热线)案场预约制 看房需提前来电预约登记,请务必致电4008118224与销售确认时间,仅预约客户可进入销售现场,避免空跑,感谢您的支持。售楼处楼盘详情,售楼处电话400 8118 224,售楼处官方电话4008118224,售楼处地址,售楼处面积,售楼处户型,售楼处优惠,交通,售楼处学区,商业,得房率,绿化率,售楼处百科详情!请看图文解析
声明:本文由入驻焦点开放平台的作者撰写,除焦点官方账号外,观点仅代表作者本人,不代表焦点立场。


